nVent AEK460 Electrical Interlocks
Product Usage Instructions
Follow the instructions below to use the product:
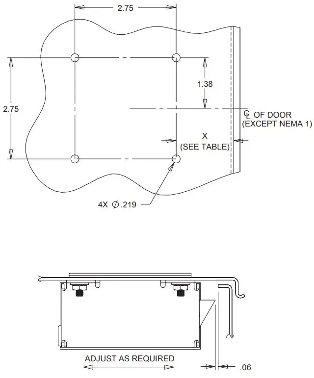
- Ensure that the product is installed in accordance with the specified enclosure description. Refer to the user manual for specific details on the different types of enclosures.
- Make sure to connect the electrical interlock as per the provided wiring diagram. Incorrect wiring may result in malfunction or damage to the product.
- Verify that the A dimension (enclosure height) is less than 30 in. for NEMA 1 enclosures. If the A dimension is 30 in. or more, NEMA 1 rating is applicable.
- For large JIC boxes, determine whether the B dimension (enclosure width) is 24 in. or less or more than 24 in. This will determine the appropriate NEMA rating for the enclosure.
- Refer to Detail A for flush-mounted NEMA 12 single-door enclosures and Detail B for NEMA 1 enclosures with an A dimension (enclosure height) less than 30 in.
- Ensure that the electrical interlock maintains UL/CSA Type 12, 4, 4X ratings when installed correctly.
- Refer to the provided UL file E61997 and CSA file LR42186 for additional information on the coverage of this accessory.
Enclosure Description
| X | Bulletin Number | Enclosure Description |
| 2.12 | A4 A12 A13* | NEMA 4 and NEMA 12 Single-Door Enclosures |
| 2.19 | A4 | Two-Door NEMA 4 Enclosures |
| 3.00 | A15* | Flush-Mounted NEMA 12 Single-Door Enclosures (see Detail A) |
| 2.00 | A1SM A1M A1L | NEMA 1 when “A” dimension (enclosure height) is less than 30 in. (see Detail B) |
| 1.69 | A1SM A1M A1L | NEMA 1 when “A” dimension (enclosure height) is 30 in. or more |
| 2.19 | A1SM A1M A1L | Extra Large NEMA 1 |
| 1.56 | A51CH A51NF A53 A51FL A51 A51A A51S A51SE | Larger sizes of Hinge-Cover JIC Boxes: A51CH: CH and CHS suffix A51NF: CHNF and CHNFS suffix A53: CHEMC suffix A51FL: CHFL suffix A51: CHQR suffix A51A: CHAL suffix A51S: CHNFSS and CHNFSS6 suffix A51SE: CHEMCSS suffix |
| 2.06 | A52* | Large JIC Boxes when “B” dimension (enclosure width) is 24 in. or less |
| 2.56 | A52* | Large JIC Boxes when “B” dimension (enclosure width) is more than 24 in. |
This accessory maintains UL/CSA Type 12, 4, 4X when installed per these instructions.
This accessory is covered by UL file E61997 and CSA file LR42186.
INSTALLATION
NEMA 1. JIC. AND LARGE JIC ENCLOSURES

NEMA 4 AND NEMA 12 ENCLOSURES



LARGE NEMA 3R ENCLOSURES



CONCEPT ENCLOSURES
© 2020 Hoffman Enclosures Inc.
PH 763 422 2211

nVent.com/HOFFMAN
















