carmanah MX 300 Solar to AC Retrofit

Product Information
The MX Series is a solar to AC retrofit system designed for the MX 300 and MX 400 models. This guide provides instructions for converting the solar-powered system to AC power. The retrofit requires a replacement AC power module circuit board.
The MX 300 AC cabinet accepts nominal input voltages of 120 V or 240 V and is equipped with a 4 A input fuse. It provides supplementary overcurrent protection, so ensure branch-rated overcurrent protection is provided during installation.
Product Usage Instructions
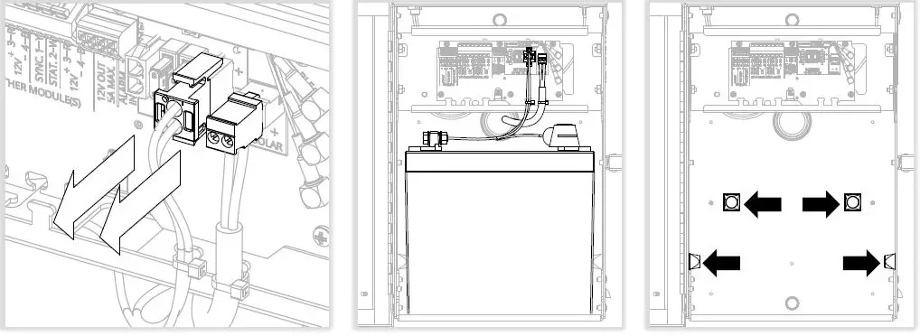
- Disconnect the solar connector and then the battery connector.
- Remove the battery harness from the battery. Dispose of the battery, battery harness, and solar harness properly.
- Remove the four battery bumpers and dispose of them properly.
- Follow the LEVEL 4 Power Module Circuit Board Replacement Guide to replace the existing solar circuit board with the supplied AC version. The old solar circuit board can be kept as a spare for solar powered systems or disposed of properly. Note that the SIM card will become inactive and cannot be reused.
- Remove the solar panel and solar panel mount from the system. For top of pole applications, use a pole cap.
- Install the power supply DIN rail assembly in the shown orientation using the supplied nuts.
- Fasten the ground ring terminal to the door stud using the supplied nut. Secure and route the wire in the shown location using the supplied cable tie bases and cable ties.
- Connect the power supply output harness connector to the circuit board shown. Secure and route the harness using cable ties.
- Ensure all wires are secure and install a cable tie to the incoming cable jacket.
- Proceed to Section 2.0 for further instructions.
Note: For the MX 400 model, additional steps are involved. Follow the instructions provided in Section 1.1 of the guide.
If you have any further questions or need assistance, please contact Carmanah Technologies Corp. at 1.250.380.0052 or [email protected].
MX Series
MX 300 & 400 SOLAR TO AC RETROFIT

Note
This document covers instructions for MX 300/400 solar to AC retrofits. A replacement AC power module circuit board is required for this retrofit.
MX 300 Solar to AC Retrofit
- Disconnect solar connector and then battery connector as shown.
- Remove battery harness from battery. Remove battery, battery harness and solar harness from system and properly dispose.
- Remove four battery bumpers shown and properly dispose.
- Follow LEVEL 4 Power Module Circuit Board Replacement Guide to replace existing solar circuit board with AC version supplied. Solar circuit board may be kept as a spare for solar powered systems or be properly disposed of. SIM card will become inactive and cannot be reused.

- Remove solar panel and solar panel mount from system. Top of pole applications will require a pole cap.

- Install power supply DIN rail assembly in orientation shown using supplied nuts.
- Fasten ground ring terminal to door stud with supplied nut. Secure and route wire in location shown using supplied cable tie bases and cable ties.
- Connect power supply output harness connector to circuit board shown. Secure and route harness using cable ties.
Note
The MX 300 AC cabinet accepts nominal input voltages of 120 V or 240 V and is equipped with a 4 A input fuse.
Caution
The MX 300 AC provides supplementary overcurrent protection only. Ensure branch-rated overcurrent protection is provided when installing. - Open fuse holder as shown.
- Strip jacket of incoming AC cable by 5 – 6″. Strip insulation 0.35 – 0.40″ on the three wires.
- Loosen terminal block and fuse holder screws and insert wires into terminals. Tighten to 6 in-lb. Pull test wires to ensure they are secure. Install cable tie to incoming cable jacket.
- Go to Section 2.0.

MX 400 Solar to AC Retrofit
- Disconnect solar connector and then battery connector as shown. Battery/DC power harness on top of fuse holder will be reused in Section 2.0.
- Remove battery harness from battery. Remove battery, battery harness and solar harness (both top and bottom of fuse holder) from system and properly dispose. Leave battery/DC power harness on top side of fuse holder installed.
- Remove six battery bumpers shown and properly dispose.
- Follow LEVEL 4 Power Module Circuit Board Replacement Guide to replace existing solar circuit board with AC version supplied.

- Remove solar panel and solar panel mount from system. Top of pole applications will require a pole cap.

- Install power supply backplane assembly in orientation shown using supplied screws.
- Connect ground wire to cabinet. Secure and route wire in location shown using supplied screw mount cable tie.
- Connect power supply output harness to fuse holder shown. Secure and route harness using a cable tie.
- Red wire = Battery/DC Power + terminal (fuse).
- Black wire = Battery/DC Power – terminal.

Note
The MX 400 AC cabinet accepts nominal input voltages of 120 V or 240 V and is equipped with a 4 A circuit breaker.
Caution
The MX 400 AC provides supplementary overcurrent protection only. Ensure branch-rated overcurrent protection is provided when installing.
- Ensure breaker is in off position.
- Strip jacket of incoming AC cable by 5 –6″. Strip insulation 0.35 –0.40″ on the three wires.
- Loosen terminal block and ground bus bar screws and insert wires into terminals shown. Tighten terminals and pull test wires to ensure they are secure. Install cable tie to incoming cable jacket.
- .Go to Section 2.0.

Final Connections and System Test
- Ensure flasher module or other peripheral device installation and wiring is completed (if applicable).
- Reapply power to system:
- MX 300 –close fuse holder.
- MX 400 –reconnect DC power connector from fuse holder to circuit board. Turn on circuit breaker.
- Check the MX Field App to ensure system voltage is outputting 14.8 –15.2 V. See the MX Field App guide for more information.

- Carmanah Technologies Corp.
- 250 Bay St, Victoria, BC V9A 3K5, Canada
- 1.250.380.0052
[email protected]
carmanah.com



Note



Note












