A member of the Interpump Group
DHRA50150SS/300SS/450SS
Stainless Steel Industrial Hose Reels
SPECIFICATIONS
| PART NUMBER | DHFtA50150SS | DHFtA50300SS | DHFtA50450SS |
| 3/8″ Hose Capacity | 150 ft. | 300 ft. | 450 ft. |
| 5/8″ Garden Hose Cap | 125 ft. | 225 ft. | 325 ft. |
| 3/4″ Garden Hose Cap | 100 ft. | 175 ft. | 250 ft. |
| Swivel Pressure Rating | 5,000 PSI | ||
| Inlet | 1/2″ NPT-F | ||
| Outlet | 1/2″ NPT-F | ||
| Max. Temp | 250° F | ||
FEATURES / BENEFITS
- Variable friction brake
- Direct hand-crank rewind with locking pin and folding mechanism
- Heavy duty stainless steel construction
- Full flow swivel stainless swivel
- Swivel contains PTFE loaded Viton o-ring for soft wash applications
- Many available accessories
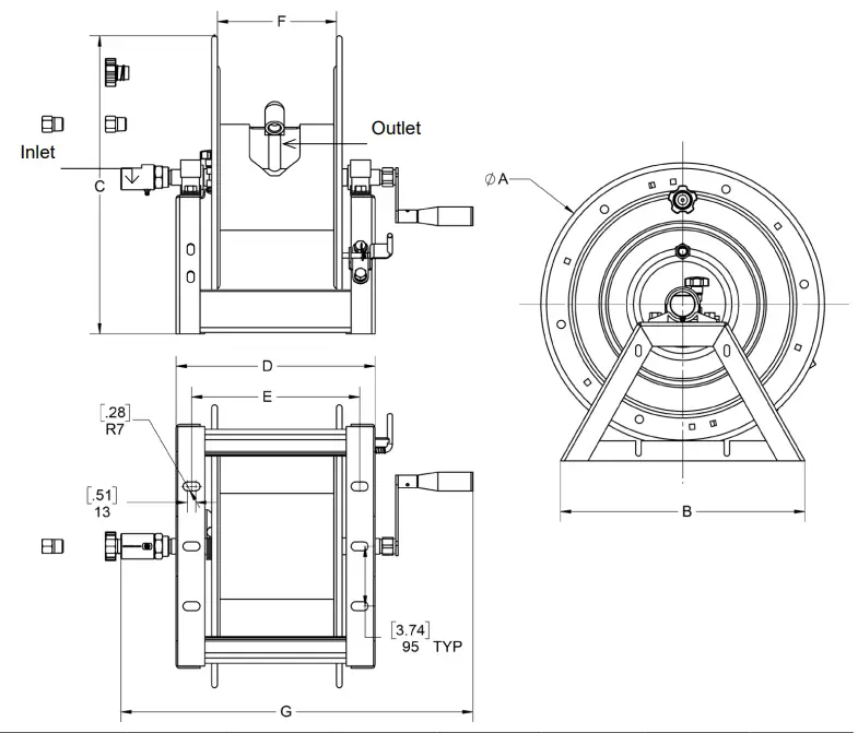
DIMENSIONS

ACCESSORIES
| Dimensions inches/mm | |||||||
| A | B | C | D | E | F | G | |
| DHRA50150SS | 17.7/450 | 15.2/387 | 18.6/473.6 | 12.4/315 | 10.4/264 | 7.7/196 | 22.0/558 |
| DHRA50300SS | 17,7/450 | 15.2/387 | 18.6/473.6 | 17.5/445 | 15.5/394 | 12.8/326 | 27.0/688 |
| DHRA50450SS | 17.7/450 | 15.2/387 | 18.6/473.6 | 23.0/585 | 21.2/539 | 18.3/466 | 32.6/829 |
General Pump is a member of the Interpump Group![]()
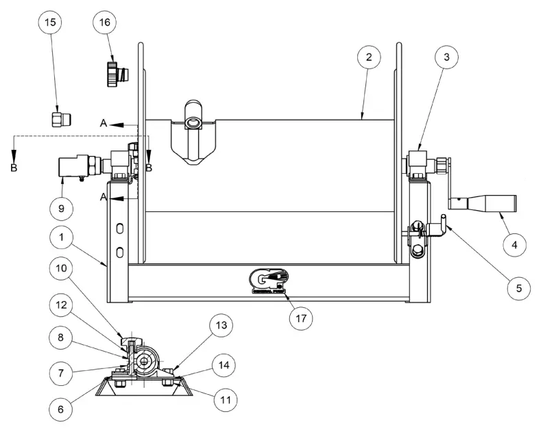
PARTS LIST
| Item | Part No. | Description | QTY |
| 1 | 2103142 | ASSY, HUB & FLANGE, 150′ | 1 |
| 2103148 | ASSY, HUB & FLANGE, 300′ | ||
| 2103160 | ASSY, HUB & FLANGE, 450′ | ||
| 2 | 2103140 | FRAME, HOSE REEL, 150′ | 1 |
| 2103146 | FRAME, HOSE REEL, 300′ | ||
| 2103161 | FRAME, HOSE REEL, 450′ | ||
| 3 | 2640043 | PILLOW BLOCK | 2 |
| 4 | 2103143 | FOLDED HANDLE, 1/2NPT-F, SS | 1 |
| 5 | 2103346 | ASSY, LOCK PIN SS | 1 |
| 6 | 2540182 | BRACKET, LOCK, SS | 1 |
| 7 | 2660268 | BRAKE | 1 |
| 8 | 2200103 | BOLT, M8 | 1 |
| 9 | DSW9012SS | Swivel, 1/2″NPT-F BALL BEARING | 1 |
| 10 | 2660405 | KNOB, BRAKE | 1 |
| 11 | 2203017 | Nut, M10, NYLOK, SST | 6 |
| 12 | 2200013 | WASHER, M8, SS | 1 |
| 13 | 2200104 | BOLT, M10 | 6 |
| 14 | 2203413 | WASHER, FLAT, M10 | 12 |
| 15 | 2520227 | Adapter, 1/2″NPT-Mx3/8″NPT-F, SS | 2 |
| 16 | D10032K | FITTING, GH-F X 1/2 NPT-M, FILTER & SPRING | 1 |
| 17 | 2400004 | DECAL, GP | 1 |


Lock Pin Repair Kit 2103346 | |||
| Item No. | Part Number | Description | QTY. |
| 1 | 2540141 | BRACKET, LOCK | 1 |
| 2 | 2540142 | PIN, LOCK | 1 |
| 3 | 2720025 | SPRING, LOCK PIN | 1 |
| 4 | 2200013 | WASHER, M8, SS | 1 |
| 5 | 2202033 | PIN, COTTER, 2×20 | 1 |
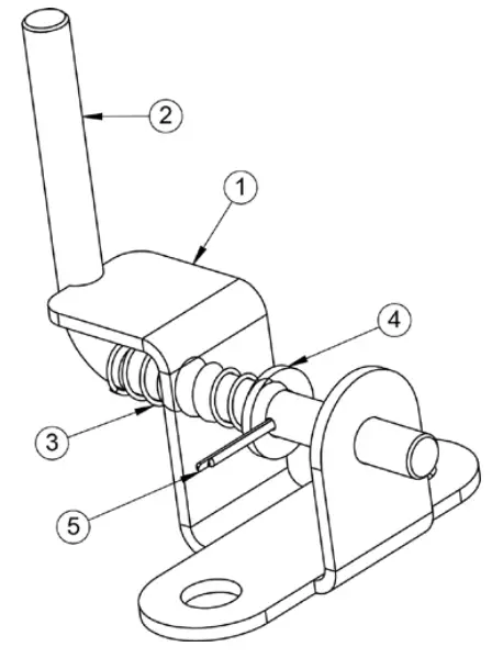
Brake Repair Kit 2103139 | |||
| Item | Part No. | Description | QTY. |
| 1 | 2660268 | Brake | 1 |
| 2 | 2200103 | Bolt, M8 | 1 |
| 3 | 2660405 | Knob, Brake | 1 |
| 4 | 2200013 | Washer, M8, SS | 1 |

ASSEMBLY / OPERATING INSTRUCTIONS
- Connect the handle to either end of the axle which doubles as a fluid path, use a suitable thread sealant and tighten accordingly.
- Connect the swivel on the opposite end of the axle as the handle, use a suitable thread sealant and tighten accordingly.
* See parts list image for orientation of swivel* - Attach outlet hose to the outlet fitting located in the hub, use a suitable thread sealant and tighten accordingly.
- Attach supply hose to the hose reel swivel, use a suitable thread sealant and tighten accordingly.
- Use 1/2” or 13 mm bolts when securing the hose reel to ceiling or wall.
- The hose reel is ready for operation.
NOTE: THREAD SEALANT NOT INCLUDED
CAUTION: When using hardened NPT fittings DO NOT over tighten, over-tightening can result in a cracked swivel or fitting.
WARNING!
Exposure of skin directly to pressurized air or fluids could result in severe bodily injury!
Warning. Only trained and qualified personnel should install or replace the device.
Warning. De-pressurize prior to servicing.
AVAILABLE A-FRAME ACCESSORIES

Hose Reel Hose Guide
- DHRA50150/SS use part #2100462 (Stainless Steel Version) #2100462SS
- DHRA50300/SS use part #2100463 (Stainless Steel Version) #2100463SS
- DHRA50450/SS use part #2100503 (Stainless Steel Version) #2100503SS
- Protects hose when pulling out at any angle
- 4-way pinch-proof stainless steel guides

Hose Reel Stacking Kit
- Part #2100437
- Part #2100437SS (Stainless Steel)
- Fits all DHRA hose reels
- Stack up to 4 hose reels high
- Powder-coated steel construction (#2100437 Only)

Electric Hose Reel Motor Kit
- Part #2103410
- Fits all DHRA hose reels
- Allows for effortless rewinding of hose
- Free spin allows for easy pulling of hose
- Stainless steel hardware

Hose Reel Cart
- Part #2103410
- Fits all DHRA hose reels
- Easy storage and movement
- Powder-coated steel frame
- Solid polyurethane wheels

12 Volt DC Variable Speed Controller Rewind Kit
- Part #DMC12V
- Fits all DHRA hose reels
- 30 amp auto-reset circuit breaker
- Variable Speed knob with built-in on/off function
- Reversible powder-coated mounting plate for left or right orientation
- Sealed housing
GENERAL PUMP 1174 Northland Drive Mendota Heights, MN 55120
Phone: 651.686.2199
Fax: 800.535.1745
email: [email protected]
www.generalpump.com
Ref 301058 Rev E 01-23



















