
Installation Instructions
for use by heating contractor for
Vitocrossal 200 CI2 series
Exhaust Vacuum Relief Damper

Product may not be exactly as shown
IMPORTANT
Read and save these instructions for future reference.
Safety
Safety, Installation and Warranty Requirements
Please ensure that these instructions are read and understood before commencing installation. Failure to comply with the instructions listed below and details printed in this manual can cause product/property damage, severe personal injury, and/or loss of life. Ensure all requirements below are understood and fulfilled (including detailed information found in manual subsections).
- Licensed professional heating contractor
The installation, adjustment, service and maintenance of this equipment must be performed by a licensed professional heating contractor.
▶ Please see section entitled
“Important Regulatory and Installation Requirements” in the Installation Instructions.
- Product documentation
Read all applicable documentation before commencing installation. Store documentation near boiler in a readily accessible location for reference in the future by service personnel.
► For a listing of applicable literature, please see section entitled “Important Regulatory and Safety Requirements” in the Installation Instructions.
- Carbon monoxide
Improper installation, adjustment, service and/or maintenance can cause flue products to flow into living space. Flue products contain poisonous carbon monoxide gas.
► For information pertaining to the proper installation, adjustment, service and maintenance of this equipment to avoid formation of carbon monoxide, please read these Installation Instructions carefully.
- Equipment venting
Never operate boiler without an installed venting system. An improper venting system can cause carbon monoxide poisoning. - Warranty
Information contained in this and related product documentation must be read and followed. Failure to do so renders the warranty null and void.
- Advice to owner
Once the installation work is complete, the heating contractor must familiarize the system operator/ ultimate owner with all equipment, as well as safety precautions/requirements, shutdown procedure, and the need for professional service annually before the heating season begins.
WARNING
Installers must follow local regulations with respect to installation of carbon monoxide detectors. Follow manufacturer’s maintenance schedule boiler.
Important Regulatory and Installation Requirements
Approvals
Viessmann boilers, burners and controls are approved for sale in North America by CSA International.
Codes
The installation of this unit shall be in accordance with local codes. In the absence of local codes, use:
- CSA C22.1 Part 1 and/or local codes in Canada
- National Electrical Code ANSI/NFPA 70 in the U.S.
Always use latest editions of codes.
The heating contractor must comply with the Standard for Controls and Safety Devices for Automatically Fired Boilers, ANSI/ASME CSD-1 where required by the authority having jurisdiction.
Working on the equipment
The installation, adjustment, service, and maintenance of this product must be done by a licensed professional heating contractor who is qualified and experienced in the installation, service, and maintenance of hot water boilers. There are no user serviceable parts on the boiler, burner, or control.
Power supply
Install power supply in accordance with the regulations of the authorities having jurisdiction or, in absence of such requirements, in accordance with National Codes. Viessmann recommends the installation of a disconnect switch to the 120V power supply outside of the boiler room.
Ensure main power supply to equipment, the heating system, and all external controls have been deactivated.
Close main oil or gas supply valve. Take precautions in both instances to avoid accidental activation of power during service work.
► Please carefully read this manual prior to attempting installation. Any warranty is null and void if these instructions are not followed.
For information regarding other Viessmann System Technology componentry, please reference documentation of the respective product.
We offer frequent installation and service seminars to familiarize our partners with our products. Please inquire.
The completeness and functionality of field supplied electrical controls and components must be verified by the heating contractor. These include low water cut-offs, flow switches (if used), staging controls, pumps, motorized valves, air vents, thermostats, etc.
The completeness and functionality of field supplied electrical controls and components must be verified by the heating contractor. These include low water
cut-offs, flow switches (if used), staging controls, pumps, motorized valves, air vents, thermostats, etc.
![]()
WARNING
Turn off electric power supply before servicing. Contact with live electric components can cause shock or loss of life.
For installations on the Commonwealth of Massachusetts, the following modifications to NFPA-54 chapter 10 apply:
Excerpt from 248 CMR 5-08:
2(a) For all side-wall horizontally vented gas fueled equipment installed in every dwelling, building or structure used in whole or in part for residential purposes, including those owned or operated by the Commonwealth and where the side-wall exhaust vent termination is less than (7) feet above finished grade in the area of the venting, including but not limited to decks and porches, the following requirements shall be satisfied:
- INSTALLATION OF CARBON MONOXIDE DETECTORS. At the time of installation of the side-wall horizontal vented gas fueled equipment, the installing plumber or gas fitter shall observe that a hard wired carbon monoxide detector with an alarm and battery back-up is installed on the floor level where the gas equipment is to be installed. In addition, the installing plumber or gas fitter shall observe that a battery operated or hard wired carbon monoxide detector with an alarm is installed on each additional level of the dwelling, building or structure served by the side-wall horizontal vented gas fueled equipment. It shall be the responsibility of the property owner to secure the services of qualified licensed professional for the installation of hard-wired carbon monoxide detectors.
a. In the event that the side-wall horizontally vented gas fueled equipment is installed in a crawl space or an attic, the hard-wired carbon monoxide detector with alarm and battery back-up may be installed on the next adjacent floor level.
b. In the event that the requirements of this subdivision can not be met at the time of completion of installation, the owner shall have a period of thirty (30) days to comply with the above requirements; provided, however, that during said thirty (30) day period, a battery operated carbon monoxide detector with an alarm shall be installed. - APPROVED CARBON MONOXIDE DETECTORS. Each carbon monoxide detector as required in accordance with the above provisions shall comply with NFPA 720 and be ANSI/UL 2034 listed and IAS certified.
- SIGNAGE. A metal or plastic identification plate shall be permanently mounted to the exterior of the building at a minimum height of eight (8) feet above grade directly in line with the exhaust vent terminal for the horizontally vented gas fueled heating appliance or equipment. The sign shall read, in print size no less than one-half
(b) inch in size, “GAS VENT DIRECTLY BELOW. KEEP CLEAR OF ALL OBSTRUCTIONS”. - INSPECTION. The state or local gas inspector of the side-wall horizontally vented gas fueled equipment shall not approve the installation unless, upon inspection, the inspector observes carbon monoxide detectors and signage installed in accordance with the provisions of 248 CMR 5.08(2)(a) 1 through 4.
(b) EXEMPTIONS: The following equipment is exempt from 248 CMR 5.08(2)(a) 1 through 4:
- The equipment listed in Chapter 10 entitled “Equipment Not Required To Be Vented” in the most current edition of NFPA 54 as adopted by the Board; and
- Product Approved side-wall horizontally vented gas fueled equipment installed in a room or structure separate from the dwelling, building or structure used in whole or in part for residential purposes.
About these Installation Instructions
Take note of all symbols and notations intended to draw attention to potential hazards or important product information.
WARNING
Warnings draw your attention to the presence of potential hazards or important product information.
CAUTION
Cautions draw your attention to the presence of potential hazards or important product information.
IMPORTANT
► 
► Indicates an imminently hazardous situation which, if not avoided, could result in death, serious injury or substantial product/property damage.
► Indicates an imminently hazardous situation which, if not avoided, may result in minor injury or product / property damage.
► Helpful hints for installation, operation or maintenance which pertain to the product.
► This symbol indicates to note additional information
► This symbol indicates that other instructions must be referenced.
Venting
General Venting Information
Installation steps (outline)
See Installation Instructions supplied with the boiler.
WARNING
Ensure that the entire venting system is protected from physical damages. A damaged venting system may cause unsafe conditions.
IMPORTANT Boiler operation in marine environments (damp, salty coastal areas):
The service life of the boiler’s exposed metallic surfaces, such as the casing and fan housing, is directly influenced by proximity to damp and salty marine environments. In such areas, higher concentration levels of chlorides from sea spray, coupled with relative humidity, can lead to degradation of the exposed metallic surfaces mentioned above. Therefore, it is imperative that boilers installed in such environments not be installed using direct vent systems which draw outdoor air for combustion. Such boilers must be installed using room air dependent vent systems; i.e. using room air for combustion. The indoor air will have a much lower relative humidity and, hence, the corrosion will be minimized.
- Route vent pipe as directly as possible and with as few bends as possible to the boiler.
- Check proper location of gaskets in rigid PP pipe collars.
(Only use supplied parts with the polypropylene venting system.) Apply water to lubricate the joint ends of the vent pipe collar and if used, the air intake pipe collar. - Slide pipes into each other with a gentle twisting motion.
- Condensate must drain from the flue pipe to the boiler. Ensure a suitable gradient of at least 2-3º based on the vent manufacturer’s system design [example: for a 3º system approx. 2 in. per 3.3 ft. (50 mm per 1 m) on any horizontal venting components].
- Use a hacksaw or sheet metal snips (for stainless steel) to cut pipes to length (if necessary). Use a file to smooth rough edges. Pipe must be round and not bent into an oval shape.
IMPORTANT
When cutting pipes to length, debur and clean pipes.
- For stainless steel and PP venting systems: In conjunction with these instructions, follow the installation instructions supplied by the special venting manufacturer.
Combustion air intake, flex hose and adaptor must be installed. If using room air-independent venting system, connect the air intake pipe (from outdoors)to the adaptor provided. If room air-dependent venting system is used, the air is drawn into the burner inlet through adaptor and flexible pipe.
Recommended venting practice
When installing a venting system the following recommended venting practices apply:
- Keep length and number of 90º elbows to a minimum.
- Try not to use back-to-back 90º elbows.
- Use 45º elbows where possible to minimize the number of 90º elbows in case redirection of flue gas is required.
- The special vent system shall not be routed into, through, or within any other vent such as an existing masonry or factory-built chimney.
Exception:
A masonry chimney flue may be used to route the venting system only if no other appliance is vented in the same flue.
Combustion air intake materials
| Part | Material | Certified to Standards | Applicability |
| Combustion air intake pipe and fitting | Stainless steel | No applicable standards | U.S.A./Canada |
| Galvanized steel | Suitable for outdoor use | ||
| PVC-DWV Schedule 40 | ANSI/ASTM D2661 CSA 8181.1 ULC S102.2 ANSI/ASTM D2665, D1785 CSA 8137.3, 8181.2 ANSI/ASTM F441 | ||
| CPVC Schedule 40 | ANSI/ASTM D2661 CSA 8181.1 ULC S102.2 ANSI/ASTM D2665, D1785 CSA 8137.3, 8181.2 ANSI/ASTM F441 | ||
| ABS-DWV Schedule 40 | ANSI/ASTM D2661 CSA 8181.1 ULC S102.2 ANSI/ASTM D2665, D1785 CSA 8137.3, 8181.2 ANSI/ASTM F441 | ||
| PP Polypropelene | UL1738 “Venting systems for gas-burning appliances, Categories II, Ill, IV” | ||
| ULC S636 “Standard for Type BH gas venting systems” Class IIC 110° C | |||
| Pipe cement, primer (for combustion air intake pipe) | PVC | ANSI/ASTM D2564 CSA 8137.3 | |
| CPVC | ANSI/ASTM F493 CSA 8137.6 | ||
| ABS | ANSI/ASTM D2235 CSA B181.1/B182.1 |
Note: Venting systems may combine two different approved venting materials, provided that all venting materials and all required transition adaptors are supplied by one venting manufacturer.
Always use latest edition of applicable standard.
CAUTION
On the job site, ensure that non-listed combustion air pipe materials are not inadvertently used instead of listed vent pipe material.
CAUTION
Do not use cellular (foam) core pipe material to vent this Vitocrossal boiler.
Flashing and storm collar installation
Flashings and storm collars are field supplied. Flashings and storm collars suitable for Type B vent materials (or better) may be used.
To obtain flashings and storm collars, please contact your local vent material supplier. Follow the installation instructions supplied by the special venting manufacturer.
Follow local codes to properly isolate the exhaust vent pipe when passing through floors, ceiling and roof.
Always check the marking on the pipe to make sure you are using the correct material.
Contact one of the suppliers (see listing on right) to order the vent system.
For sealed combustion systems that are vertically vented, a Viessmann vacuum relief damper may be needed to protect the vent system against vacuum conditions.
This very rare occurrence can happen when a boiler is firing at maximum capacity and the burner cycle is suddenly interrupted.(i.e. power failure) For more information on this device, or questions specific to your application, please consult with the vacuum relief damper installation instructions or contact your local Viessmann representative.
Prior to installation, check that the correct single-wall vent parts were ordered and supplied.
Exhaust vent/air intake connection to boiler
The vent connection to the Vitocrossal boiler must be made with the starter stainless steel adaptor when using stainless steel (supplied by others).
Combustion air intake, flex hose and adaptor must be installed. If using room air-independent venting system, connect the air intake pipe (from outdoors) to the adaptor provided. If room air-dependent venting system is used, the air is drawn into the burner inlet through adaptor and flexible pipe.
IMPORTANT
For exhaust vent pipe material:
Do not use any other vent material.
Vent System Suppliers
Use special venting system (UL/ULC listed for Category IV) for exhaust vent material of the Vitocrossal boilers (contact one of the venting suppliers).
| Duravent www.duravent.com | ICC – Industrial Chimney Co. www.icc-rsf.com |
| Selkirk Canada Corporation www.selkirkchimney.com | Z-Flex U.S.Inc. (Flexmaster Canada) www.Z-Flex.com |
| Jeremias Inc. www.jeremiasinc.com | Van-Packer Co. Inc. www.vpstack.com |
| Security Chimneys International Ltd. www.securitychimneys.com | Enervex Inc. (formerly Exhausto) www.enervex.com |
| METAL-FAB, INC. www.mtlfab.com |
Note: For SS venting system order transition adaptors from the above mentioned suppliers.
Requirement for Rigid SS/PP(s) Vent Pipe Material
Requirements for PP(s) and stainless steel
See Installation Instructions supplied with the boiler.
The venting system must be installed by a licensed professional heating contractor familiar with the operation and maintenance of heating appliances and venting.
Before installing, ensure that the complete installation literature has been read. Failure to follow proper installation procedures as stated in these instructions, including vent pitch and proper appliance connections, may violate local, provincial/state, or national codes and cause unsafe conditions which may lead to severe property damage or personal injury.
The venting system must be installed in accordance with local building code requirements as well as national codes.
For installations in Canada use CAN/CSA-B149.1 Natural Gas Installation Code or CAN/CSA-B149.2 Propane Installation Code as applicable; in the U.S. use the National Fuel Gas Code ANSI Z223.1 or NFPA Standard 54. Always use latest edition of applicable standard.
To ensure safe operation of the appliance, Viessmann recommends that the system be inspected once a year by a qualified service technician.
Every venting system must be planned and installed for optimum performance and safety. These Installation Instructions are designed to help you determine venting requirements and limitations with respect to installation. Please read and follow these instructions carefully. It is the responsibility of the installer to contact local building and fire officials concerning any installation restrictions and/or inspection requirements that may apply. Permits may be required before commencement of the installation. The air intake termination (if installed on a side wall) should be located on a wall that is least affected by prevailing winds. High winds may affect boiler operation.
If wind is a problem, steps must be taken to shield the air intake termination from high winds, such as building a fence or planting shrubs. Ensure that the total equivalent vent length is not exceeded.
Because of its sealed combustion chamber, the Vitocrossal 200 CI2 gas-fired condensing boiler is suitable for operation with balanced flue (when using air intake
system).
This PP vent system is constructed from flame-retardant plastic [polypropylene rated for a maximum temperature of 230º F (110º C)].
The PP venting system components must be listed to ULC S636 / UL-1738 (contact one of the venting suppliers below).
DO NOT mix pipe, fittings, or joining methods from different vent system manufacturers.
| M&G / Duravent www.duravent.com | Centrotherm InnoFlue www.centrotherm.us.com |
| ECCO Manufacturing www.eccomfg.com | Z-Flex U.S.Inc. (Flexmaster Canada) www.Z-Flex.com |
Vent Requirements
Combustion air supply, room air dependent application only
This boiler requires fresh air for safe operation and must be installed in a mechanical room where there are provisions for adequate combustion and ventilation air. There are provisions available on the Vitocrossal boiler to interlock it with an external combustion air blower.
Provisions for combustion and ventilation air must be made in accordance with CAN/CSA-B149.1 or .2 Natural Gas Installation Codes (for installations in Canada) or in accordance with sections for Combustion and Ventilation Air, of the National Fuel Gas Code, ANSI Z223.1 or applicable provisions of local codes (for installations in the U.S.A.).
Always use latest edition of applicable standard. Follow local codes to properly isolate the vent pipe when passing through floors, ceilings and roof.
Whenever possible, install boiler near an outside wall so that it is easy to duct fresh air directly to the boiler area. Refer to national codes for duct sizing. Round ducts may be used.
The boiler must be vented and supplied with combustion air and exhaust vents as described in this section. Ensure the vent and combustion air supply comply with these instructions.
WARNING
Failure to provide an adequate supply of fresh combustion air can cause poisonous flue gases to enter living space, which can cause severe personal injury or loss of life.
The boiler location should never be under negative pressure. Exhaust fans, attic fans, or dryer fans may cause air to be exhausted at a rate higher than the air can enter the structure for safe combustion. Corrective action must be taken to ensure enough air is available. Never cover the boiler or store debris or other materials near the boiler, or in any way block the flow of adequate fresh combustion air to the boiler.
CAUTION
Do not store chemicals containing chlorine or other corrosive materials near the boiler, such as bleach, cleaning solvents, detergents, acids, hair spray, spray cans, paint thinners, paint, water softener salt, perchloroethylene, or carbon tetra chloride.
You must know the free area of louvers used to cover up the combustion and ventilation openings in closet installations. If you do not know the free area, assume 20% for wood louvers and 60-75% free area for metal louvers. When using louvers, the openings have to be made larger.
For example, a free 14 in. x 6 in. (356 mm x 152 mm) opening becomes a 14 in. x 10 in. (356 mm x 254 mm) opening for a grill containing metal louvers.
Installation
Vacuum Relief Damper Orientation

IMPORTANT
The exhaust vacuum relief damper can be installed in either a horizontal position, or a vertical position.
If installed in a horizontal position the vacuum relief door must be positioned facing up or within 60 degrees left or right.
IMPORTANT
The boiler flue gas collector vent is not designed to support the weight of the venting system.
Note: Support all venting components; make all connections free of load and torque stresses.
The venting system must be securely supported by an anchoring system as outlined by the venting manufacturer.
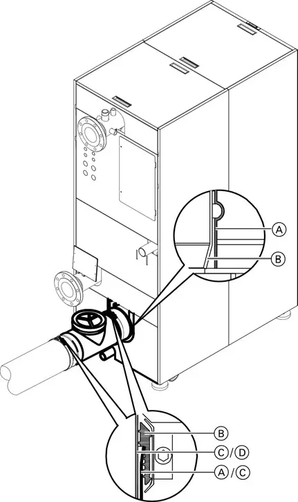
Installing the Exhaust Vacuum Relief Damper
![]() | ![]() |
IMPORTANT
The exhaust vacuum relief damper is to be installed directly after the boiler (as shown).
- Install the flue gas vent coupling B to the flue gas collector A using the supplied gear clamp.
- Install the exhaust vacuum relief damper C to the flue gas vent coupling B using the supplied gear clamp.
- Install field supplied venting D to the exhaust vacuum relief damper C using the supplied flue vent collar coupling D.
IMPORTANT
Ensure all venting components are properly seated prior to tightening.
IMPORTANT
Ensure that the venting system is fully inserted into the flue gas collector, approximately 2 in. (50 mm) for models up to 1500 and 3 in. (75 mm) for model 2000.
The venting system needs to be installed to the vent stop of the flue gas collector. Once installed, verify that the vent and the vent pipe coupling connections are positioned correctly and are free of leaks by using a certified leak detector.
Legend
A Boiler Flue Collar
| CI2 models | Flue gas collector collar in. (mm) |
| 399 and 500 | Ø 4 (100) |
| 750, 1000 and 1500 | Ø 6 (150) |
| 2000 | Ø 8 (200) |
Legend
B Flue vent collar coupling
C Exhaust Vacuum Relief Damper
D Approved venting material (field supplied)
Refer to the Installation Instructions for vent layouts.
Installing the Exhaust Vacuum Relief and Flue Vent Damper
![]() | ![]() |
IMPORTANT
The exhaust vacuum relief damper is to be installed directly after the flue vent damper (as shown).
- Install the flue gas vent coupling B to the flue gas collector A using the supplied gear clamp.
- Install flue vent damper C to the flue vent coupling B using the supplied gear clamp.
- Install the exhaust vacuum relief damper D to the flue vent damper C using the supplied flue vent collar coupling B.
- Install field supplied venting E to the exhaust vacuum relief damper D using the supplied flue vent collar coupling B.
IMPORTANT
Ensure all venting components are properly seated prior to tightening.
IMPORTANT
Ensure that the venting system is fully inserted into the flue gas collector, approximately 2 in. (50 mm) for models up to 1500 and 3 in. (75 mm) for model 2000.
The venting system needs to be installed to the vent stop of the flue gas collector. Once installed, verify that the vent and the vent pipe coupling connections are positioned correctly and are free of leaks by using a certified leak detector.
Legend
A Boiler Flue Collar
| CI2 models | Flue gas collector collar in. (mm) |
| 399 and 500 | Ø 4 (100) |
| 750, 1000 and 1500 | Ø 6 (150) |
| 2000 | Ø 8 (200) |
Legend
B Flue vent collar coupling
C Flue vent damper
D Exhaust Vacuum Relief Damper
E Approved venting material (field supplied)
Refer to the Installation Instructions for vent layouts.
Specifications
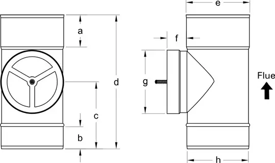
Exhaust Vacuum Relief Damper Dimensions

| CI2 Models | 399 and 500 | 750, 1000 and 1500 | 2000 |
| a in. (mm) | 3⅛ ± ⅛ (79 ± 3) | 3⅛ ± ⅛ (79 ± 3) | 4 ± ⅛ (100 ± 0.1) |
| b in. (mm) | 2⅛ ± ⅛ (55 ± 3) | 2⅛ ± ⅛ (55 ± 3) | 3 ± ⅛ (75 ± 3) |
| c in. (mm) | 6b ± ¼ (165 ± 5) | 6½ ± ¼ (165 ± 5) | 10 ± ¼ (250 ± 5) |
| d in. (mm) | 13 ± ¼ (330 ± 5) | 13 ± ¼ (330 ± 5) | 19c ± ¼ (500 ± 5) |
| e 7 in. (vent side ID)* (mm) | 4.08 +0.02 – 0.0 (103.6 +0.6 – 0.0) | 6.08 +0.02 – 0.0 (154.4 +0.6 – 0.0) | 8.08 +0.02 – 0.0 (205.2 +0.06 – 0.0) |
| f in. (mm) | 2 ± d (50 ± 3) | 2 ± d (50 ± 3) | 2 ± d (50 ± 3) |
| g in. (mm) | 4 (100) | 6 (150) | 8 (200) |
| 7 h (boiler side OD) in. (mm) | 4.04 – 0.02 +0.0 (102.6 – 0.6 + 0.0) | 6.04 – 0.02 +0.0 (153.4 – 0.6 + 0.0) | 8.04 – 0.02 +0.0 (204.2 – 0.6 + 0.0) |
* The Exhaust Vacuum Relief Damper outlet is designed to accept most vent manufactures venting systems directly (refer to the dimensions above). A flue gas
adaptor may be required and is not included with the Exhaust Vacuum Relief Damper. If required the adaptor must be supplied by the venting manufacturer.
Permissible ambient temperature
- During operation 32°F to 104°F (0°C to 40°C)
- During storage and transport -4°F to +149°F (–20°C to +65°C)
Exhaust Vacuum Relief Damper and Flue Vent Damper Dimension

| CI2 Models | 399 and 500 | 750, 1000 and 1500 | 2000 |
| a in. (mm) | 15% (400) | 15% (400) | 221h (575) |

Scan for a digital copy of this document

http://www.vitoteam.com/docs/?id=6176047&doc=AII&s=CI2&src=QR
Viessmann Manufacturing Company Inc. 750 McMurray Road
Waterloo, Ontario e N2V 2G5 e Canada
Techinfo Line 1-888-484-8643
1-800-387-7373 e Fax (519) 885-0887
www.viessmann.ca • [email protected]
Viessmann Manufacturing Company (U.S.) Inc. 45 Access Road
Warwick, Rhode Island e 02886 e USA
Techinfo Line 1-844-649-5886
1-800-288-0667 e Fax (401) 732-0590
www.viessmann-us.com • [email protected]
Technical information subject to change without notice.
Printed on environmentally friendly (recycled and recyclable) paper.
6176 047 – 02
CI2 Exhaust Vacuum Relief Damper Installation
References
Centrotherm - North America | Solutions Beyond
Home - DuraVent
ECCO Manufacturing – Sheet Metal Products
ENERVEX - Mechanical Draft, Venting & Heat Recovery welcome...
ICC-RSF
Jeremias® Exhaust Systems
Metal-Fab Residential Commercial Venting Products
Home - Security Chimneys
Selkirk
Van-Packer – A Leader in the Chimney & Exhausting Industry
Z-flex - Novaflex Group - Z-flex

























