Door preparation guide RF100
F-Series
F10–F80
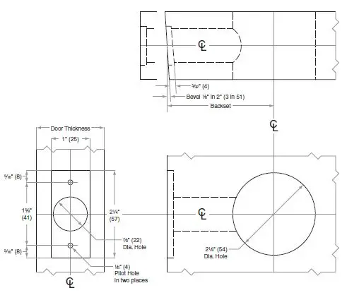
Door Type: Wood or Composite, Flat or Beveled
Door Thickness: 1C\,” (35 mm)–1C\v” (44 mm)
Faceplate: Square Corner, 1” (25 mm) wide
Backsets: 23 / 8,” (60 mm), 23 / 4” (70 mm), 5” (127 mm)
Standard backset in bold.

Dimensions shown in parentheses () are in millimeters.
© 2018 Allegion RF100 Rev. 03/18 www.allegion.com/us
DRAWING IS NOT TO SCALE!
Customer service: 888-805-9837
We can help you find the correct guide for
your product and application!
Schlage F-Series Door Lock F10–F80 User Manual – Optimized PDF
Schlage F-Series Door Lock F10–F80 User Manual – Original PDF




















