Schlage BE-Series
Models BE365, BE365F, BE367, BE367F, BE369, BE469
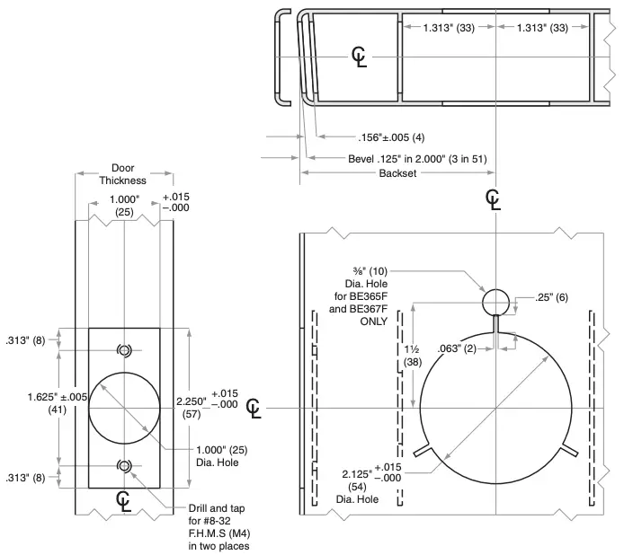
Door Type: Metal, Flat or Beveled
Door Thickness: 1C\,” (35 mm)–1C\v” (44 mm)
Faceplate: Square Corner, 1” (25 mm) wide
Backsets: 23 / 8,” (60 mm), 23 / 4” (70 mm)
For metal door installations, suitable reinforcement is required to support latch in center of door and to prevent lateral movement

Dimensions shown in parentheses () are in millimeters.
Door preparation template
Schlage BE-Series Door Lock User Manual – Optimized PDF
Schlage BE-Series Door Lock User Manual – Original PDF



















