Contents hide
FE-Series
FE410F
Door Type: Metal, Flat or Beveled
Door Thickness: 1 5/8” (41 mm)–1 3/4” (44 mm)
Faceplate: Square Corner, 1” (25 mm) wide
Backsets: 2 3/8” (60 mm), 2 3/4” (70 mm)
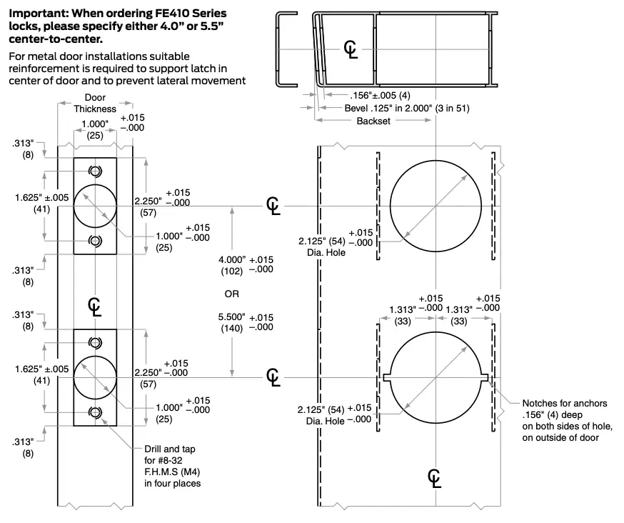
Important: When ordering FE410 Series locks, please specify either 4.0” or 5.5” center-to-center.
For metal door installations suitable reinforcement is required to support latch in center of door and to prevent lateral movement

Schlage FE-Series Smart Locks FE410F User Manual – Optimized PDF
Schlage FE-Series Smart Locks FE410F User Manual – Original PDF














![Schlage Keypad Lock [fe575] User Manual Schlage Keypad Lock [fe575] User Manual](https://static-data1.manualsee.com/1/img/167/20295/2020/12/Schlage-Keypad-Lock.png)




