
Hoval Belaria-fit (53)
Air to Water Heat Pump
Description/Overview
A modulating air-to-water heat pump in a compact design for outdoor installation.
For heating and cooling in cascades of up to 16 individual units.
Consisting of
- Hermetically sealed rotary compressors with inverter control.
- A copper-soldered plate heat exchanger made of stainless steel with polypropylene insulation and frost protection heating.
- Multi-row fin evaporator with large surface area with hydrophilic coating.
- Speed-controlled axial fans.
- A supporting frame structure with powder coating RAL 9001, External cladding made of surface-coated steel sheet RAL 9001 and sound-insulating cladding.
The refrigeration circuit includes:
- An electronic expansion valve.
- A 4-way valve for cooling and defrosting.
- High and low-pressure monitor.
- liquid collector, liquid separator,
- oil separator.
And is filled with R32 refrigerant.
The water circuit includes
- A flow monitor.
- Frost protection heating.
- Temperature sensors on the flow and the return.
- A drain valve.
- Hydraulic connections with Victaulic couplings.
- A Safety valve with a 6 bar maximum setting.
An Electrical box internally wired ready for connection and an external operator terminal with graphical display and function keys. This can be mounted on the unit or remotely. Heat Output A2W35 22.4-53.3kW Cooling Capacity A35/W18 23.7-75.6kW.
Technical Data
| Performance Energy Efficiency Class with control at 35°C Room Heating energy efficiency 35°C ηs SCOP moderate climate at 35°C | A++ 152 3.87 | 35°C % SCOP |
| Heating Heat Output A2W35 (1) COP A2W35 Heat Output A-7W35 COP A-7W35 | 53.3 3.5 40.6 2.8 | kW kW |
| Cooling Cooling Capacity A35W18(1) EER A35W18 Cooling Capacity A35W7 EER A35W7 | 75.6 3.3 55 2.6 | dB(A) |
| Hydraulic Data Maximum flow temperature Heating Flow Rate at ΔT 5K (A7W35) Heating Flow Rate at ΔT 8K (A7W35) Cooling Flow Rate at ΔT 4K (A35W7) Cooling Flow Rate at ΔT 4K (A35W18) Max Op pressure for Heating Flow/Return Connections | 54 2.96 1.83 3.28 4.5 6.0 2″ | °C| l/s l/s l/s l/s bar |
| Fan Nominal air quantity | 2x axial 24000 | m3/h |
| Refrigerant Circuits Compressor stages Refrigerant fill quantity Compressor oil fill quantity | R32 1 Modulating 14 4.6 | kg l |
| Electrical Data Connections Starting current Main current fuse | 3~400/50 40.5 50 | Amps |
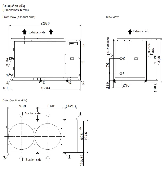
| Dimensions (H x W x D) Weight | 1320x 2280 x 1060 530 | mm kg |
(1) In accordance with EN 14511
(2) Reduced heat outputs
Hoval Bellaria-fit (53)
Air to Water Heat Pump

- Flow heating DN 50
- Return heating DN 50
- Electrical connection
- Control module bracket
- Vibration dampers
Diagrams of areas of application

Hoval Belaria-fit (53)
Air to Water Heat Pump
- Units are designed to be installed externally in fixed positions. They should be raised from the ground onto suitable plinths with the bearing points aligned and leveled (refer to O&M for details).
- Discharged condensation from the evaporator must be drained in such a way as to not cause harm or danger to people or property.
- Limit vibration transmissions using the anti-vibration feet supplied along with the flexible connection joints on the heating pipework. The spring vibration feet add to the height dimension indicated. Anti-vibration feet and flexible couplings are included in the scope of supply.
- Located to avoid obstacles to airflow, heat or pollution sources, stratification or recirculation of air supply by incorrect positioning.
- Refer to Technical Information Installation/Operation instructions prior to installation for necessary clearances around the units.
- Integration with heating/cooling systems requires a suitably sized thermal store (a Hoval EnerVal vessel).
- Option to include Hoval TopTronic E system control elements depending on the hydraulic arrangement. Refer to Hoval Technical.
- A water filter must be installed directly at the water inlet of the machine, the filter must have adequate mesh to prevent the entry of particles greater than 0.5mm. A simple Y strainer filter is included in the scope of the supply for the installer to fit in the return pipework to the heat pump.
- The unit must accommodate frost protection and be protected from freezing. This may require system separation and the use of an anti-freeze solution.
- Installation to comply with all current regulations.
Electrical Connections
Electrical box: Connection terminals main supply, AC filter, phase sequence protection, surge voltage protection of the compressors, voltage-free contact for ON/OFF, voltage-free contact for summer/winter changeover, volt-free fault signal. wired up ready to connect.
External operator terminal with graphical display and function keys. Control and monitoring of the modulating heat pumps, setting the heating and cooling curves, selection of operating mode, standard, silent, and super silent, and display of the current operating parameters. The control terminal can be installed in any room.













