Installation Guide
Full Height Turnstile Series
Applicable Models: FHT2300 Series, FHT2300D Series,
FHT2400 Series, FHT2400D Series
Date: July 2022
Doc Version: 1.1
English
Due to regular upgrades of systems and products, ZKTeco could not guarantee exact consistency between the actual product and the written information in this manual.
Installation Requirements
- It is recommended that the device must be installed on a horizontal solid platform with a height of 50mm to 100mm.
- It is also recommended that the device should not be used in the corrosive environment.
- Make sure the ground wire of the system is reliably connected to avoid personal injuries or other accidents.
- After installation, check if the connection has been done correctly at the connecting points of the ground wire, at the connector assemblies and wiring points of the circuits, as well as at each movable part of the device. Any loose nuts, screws and other fasteners should be tightened in time to avoid any failures caused by long-time operations.
Preparation
To install the device you must have:
- A Screwdriver: To remove or install the screw on the device.
- A Pencil: To mark the device size and the screw hole.
- A Electric Drill: To drill holes in accordance to the marked screw holes.
- A Wrench: To secure the M12 expansion screw on the device.
- A Tapeline: To measure the dimensions that need to be measured during the installation of the device.
- A Hex Wrench: To remove or install the screw on the device.
Note:
Except for the hex wrench, all other tools should be prepared on your own.
The FHT2300 series, FHT2300D series, FHT2400 series and FHT2400D series have only slight differences in appearance, but the installation, wiring and use are the same, and the following is an example of FHT2300 series.
Installation
- Place the frame to the installation site, and mark the floor following the periphery of the legs.



- Take the frame aside and use the electric drill according to the drawn screw and wiring holes.

- Clean up the fragments and dust after drilling, then place the frame on the installation site again. Check whether the drilled holes corresponds to the mark on the device.
- User must pull the power cable and Ethernet from the machines and put them into the wire slot.
Note: The input voltage for this full height turnstile is AC100-120V/200-240V. The PVC conduits are buried 100mm below the ground, with the height of the exposed part not less than 100mm. To prevent water leakage to the conduit, the conduit mouth needs to be bent back. - Align the frame with the drilled holes. Then, insert the bolts accordingly and fix them with a wrenchFinally, insert the washer and nut, tighten it with a wrench.

- Put the mainframe box on the frame, after connect the power cable, Ethernet and Tether Cable, fix up with M12 screws.
Note: Pay attention to the details in green circle, both of them should be in vertical direction.
- Put the whole rotating part in the middle of the frame and mainframe box and then fix up with screws and connection block.


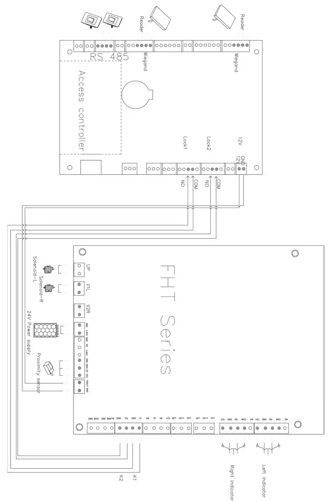
Wiring Diagram
After fixing the device, open the mainframe-box to connect power wire and reader. Pull out the reader and power cord from both sides of the column and connect to the corresponding interface.
https://www.zkteco.com/en/
ZKTeco Industrial Park, No. 32, Industrial Road,
Tangxia Town, Dongguan, China.
Phone : +86 769 – 82109991
Fax : +86 755 – 89602394
www.zkteco.com
Copyright © 2022 ZKTECO CO., LTD. All Rights Reserved




Note: The input voltage for this full height turnstile is AC100-120V/200-240V. The PVC conduits are buried 100mm below the ground, with the height of the exposed part not less than 100mm. To prevent water leakage to the conduit, the conduit mouth needs to be bent back.
Note: Pay attention to the details in green circle, both of them should be in vertical direction.

















