Honeywell Novar ES3.S Executive Controller Instruction Manual
INTRODUCTION
The Novar ES3.S functions as an executive control module in Novar Opus Magnum building control supervisor, this PopOff Pop-On design fits into XCM.10S and Savvy base-plate to provide easy migration. This document provides instructions for installing the Novar ES3.S Executive Controller into an existing base-plate, and checking the installation.

Fig. 1. Novar ES3.S electronics assembly and bottom cover plate are included. XCM.10S and Savvy Base-plate is currently a piece installed on site and is fully compatible with the new system (separate piece).
PRECAUTIONS
Take the following precautions during installation:
OBSERVE NATIONAL AND LOCAL ELECTRICAL CODES.
- Reduce the risk of electrical shock or fire. Do not interconnect the outputs of different Class 2 circuits.
- Do not rely on the Novar ES3.S as a final safety device.
- Make sure that the 24-VAC power wiring is connected to a dedicated transformer. No other devices (including the outputs) should be powered by the transformer connected to the Novar ES3.S
- Do not ground the transformer for this module on the secondary side.
- Make sure that the Novar ES3.S power cannot be switched off accidentally. The Novar ES3.S requires continuous power for proper operation.
If the Novar ES3.S has been provided as a replacement for an xcm.10S and Savvy Controller, the instructions in this document for wiring a Digital Outdoor Light Sensor (OLS) and/or an Outdoor Temperature Sensor (OTS) to the Novar ES3.S must be followed carefully.
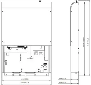
DIMENSIONS

Fig. 2. Dimensions in in. (mm).
INSTALLING EXECUTIVE CONTROLLER
The Novar ES3.S Executive Controller can be mounted on the Savvy or EC base-plate when replacing an existing xcm.10S, Savvy or EC controller.
NOTE: Size #2 Phillips screw driver and size 5/64 Hex wrench is required for this installation.
CAUTION
Some installations will require the OTS and OLS to be rewired and/or replaced. See “Wiring” section for details.
Mounting on Base Plate
When removing the existing controller from the base plate, first verify that the Network Expansion Interface connectors have been unplugged. Failure to observe this caution may result in damage to the Network Expansion Interface, Network cables or both.
Use the procedure below to mount the Novar ES3.S Executive Controller on the xcm.10S or Savvy base-plate.
- Loosen the two screws at the bottom of the Savvy or EC base-plate with the hex wrench included with the executive controller and lift off the cover.
- Slide the Novar ES3.S electronics assembly down from the top of the base plate assembly and over the mounting posts.
- Guide the DB25 and DB37 connectors on the Novar ES3.S electronics assembly over the corresponding connectors on the Savvy transition circuit board.
- Tighten the two retaining screws with the hex wrench to secure the Novar ES3.S Executive Controller to the baseplate.
- Connect an Ethernet Cable to the appropriate ports.
- Connect Expansion networks (COM-3,5,6) to COM Expansion Interface
- Check all wiring connections and replace with appropriate base-plate cover.
WIRING
Replacing Legacy Savvy and EC Panel
Only if the Novar ES3.S is replacing a very old Savvy panel or an EC panel, the 3 mov components on the back of the transition board (terminals 58-62) must be removed before the Novar ES3.S is installed. See Fig. 3. If is replacing an xcm.10S this will not apply.

Fig. 3. Mov components on back of EC transition board.
Legacy Outdoor Temperature and Light Sensor
If the Savvy or EC system is using one of the 8 analog inputs for a Relative Humidity sensor, it may have been installed with an external current limiting device (#680002000) connected in series with the sensor (See Fig. 4). Unlike the Savvy or EC controller, the Novar ES3.S does not require an external current limiter for Relative Humidity sensors and should therefore be removed during the Novar ES3.S installation.

Fig. 4. Current limiting device.
If the site being upgraded to Novar ES3.S is currently utilizing an OTS (part # 70700000), digital light sensor (OLS) (part # 70800000) they must be replaced. The OTS (part # 70700000) must be replaced with the OTS-2 (part # 735070000) or equivalent. The OLS (part # 70800000) must be replaced with the ALS (part #’s 708100000, 708101000, 813000101) or equivalent. If wiring was done with a 30VA transformer previously, it must be replaced with a 40VA transformer (part# 730090000).
Outside Light Sensor Connections
The Novar analog (4-20 mA) outdoor light sensor should be connected to the Novar ES3.S according to the following instructions.
NOTE: The xcm.10S/ Savvy base-plate transition board is available in two versions. One displays the Underwriters Laboratories, Inc., (UL) label at the top; the other does not. The terminals used for the Analog Light Sensor (ALS) connections differ, depending on the version of the transition board being used. Use the appropriate procedure outlined below.
Transition Board – with or without UL Mark
- Connect the white (+) wire from the ALS to the transition board at:
- Board with UL Mark: Terminal #59 (+) at the Outdoor Light Sensor Input connections.
- Board without UL Mark: Terminal #62 (+) at the Outdoor Temperature Sensor Input connections.
- Connect the black (-) wire from the ALS to the transition board at:
- Board with UL Mark: Terminal #58 (-) at the Outdoor Light Sensor Input connections.
- Board without UL Mark: Terminal #59 (+) at the Outdoor Light Sensor Input connections
- Connect the shield wire from the ALS to the transition board at Terminal #61 (Shield).
- Verify that the Outdoor Light Sensor current mode switch is in the enabled (on) position.
Optional Universal Input Wiring
If the Outdoor Light Sensor input is to be used in the optional Universal Input configuration mode, the input wiring will be different than that used in current mode. Refer to the steps below for proper wiring.
Transition Board – with or without UL Label
- Connect the signal wire (+) from a 0-10V source or, one terminal of a thermistor, resistive or dry contact digital type input to the transition board at
- Board with UL Label: Terminal #58 (-) at the Outdoor Light Sensor Input connections.
- Board without UL Label: Terminal #59 (+) at the Outdoor Light Sensor Input connections
- Connect the return or ground wire (-) from a 0-10V source or, one terminal of a thermistor, resistive or dry contact digital type input to the transition board at:
- Board with UL Label: Terminal #61 (Shield) at the Outdoor Light Sensor Input connections.
- Board without UL Label: Terminal #58 (-) at the Outdoor Light Sensor Input connections
- Verify that the Outdoor Light Sensor current mode switch is in the disabled (off) position.
Outdoor Temperature Sensor
The Novar standard OTS is not supported by the Novar ES3.S; therefore, installation of the Novar 4-20 mA Outdoor Temperature Sensor (OTS/2) with xcm.10S or Savvy retrofits will be required. Refer to the steps below for installation.
- Connect the white (+) wire from the sensor to the transition board at Terminal #62 (+) at the Outdoor Temperature Sensor Input connections.
- Connect the black (-) wire from the sensor to the transition board at Terminal #60 (-) at the Outdoor Temperature Sensor Input connections.
- Connect the shield wire from the sensor to the transition board at Terminal #61 (Shield).
- Verify that the Outdoor Temperature Sensor current mode switch is the enabled (on) position.
Optional Universal Input Wiring
If the Outdoor Temperature Sensor input is to be used in the optional Universal Input configuration mode, the input wiring will be different than that used in current mode. Refer to the steps below for proper wiring.
- Connect the signal wire (+) from a 0-10V source or, one terminal of a thermistor, resistive or dry contact digital type input to the transition board at Terminal #60 (-) at the Outdoor Temperature Sensor Input connections.
- Connect the return or ground wire (-) from a 0-10V source or, one terminal of a thermistor, resistive or dry contact digital type input to the transition board at Terminal #61 (Shield) at the Outdoor Temperature Sensor Input connections.
- Verify that the Outdoor Temperature Sensor current mode switch is the enabled (on) position.
RS485 Communications Networks
Legacy modules use a different RS-485 polarity standard than Opus or generic “open” controllers, which follow the EIARS-485 standard. Refer to Table 1 and Fig. 5 to determine the correct standard used on the various Novar ES3.S network
interfaces.
Table 1. Communications Table
| Network Name | Location | COM- # | Wiring Polarity Standard |
| Module Network | Baseplate | 2 | Novar Legacy |
| Network D | Baseplate | 4 | Novar Legacy |
| COM-3 | Expansion Interface | 3 | Opus/EIA RS-485 |
| COM-5 | Expansion Interface | 5 | Opus/EIA RS-485 |
| COM-6 | Expansion Interface | 6 | Opus/EIA RS-485 |
There are not LEDs showing the transmit/ receive status of COM Port 2. The RS485 COM Port is labeled MODULE NETWORK on the transition board of the Savvy Base (Terminals 39, 40, 41).
The RS485 COM Port is labeled NETWORK “D” on the transition board of the Savvy Base (Terminals 71, 72, 73).
- XCM.10S/Savvay Baseplate

- Novar ES3.S

Fig. 5. Wiring Guidelines Diagram
NOTE: Honeywell recommends adding a termination resistor for BACnet at the executive’s communication and terminals as well as the last module on the network. These termination resistors are required on each end of the network daisy chain.
Refer to the following steps when wiring:
- Connect communications network wiring to remote modules using the polarity guidelines provided above.
- Always use communications wire specified for EIA/TIA 485. (Novar Part Number 33201001)
- Always use proper RS-485 wiring techniques (e.g. Daisy chain) when wiring remote modules.
- Make sure RS-485 wiring connected to the controller is routed through ducting to prevent physical access.
- If the shield is to be earth grounded, tie the shield terminal to ground at the xcm.10S for Novar ES3.S and see Fig. 7 and Fig. 8 for grounding.
- If the expansion interface is used, secure wiring using the Wire Clamp provided on the left side of the Novar ES3.S (See Fig. 6).
CHECKING INSTALLATION
Hardware
When the unit has been mounted and the wiring connections have been completed, the procedure provided below can be used for the initial power up and checkout.
- Make sure power wiring to base-plate is ready.
- Verify that the unit is seated on the base correctly and that (if used) the HOA Lockout bracket has put all switches into the down (auto) position. Power will be applied upon completion of this step.
- Verify Ethernet cable is connected.
- Check the status of the LEDs.
Software
Contact your Honeywell Multisite representative for programming or additional information related to software download.
SPECIFICATIONS
Agency Approvals
- Listed device: CUL/UL E90949
- Standards used: UL 916 5th Edition, Energy Management Equipment CSA C22.2, No. 205-17 3rd edition
- Power Requirements
- Voltage: 24 VAC, Class 2 (22 to 30 VAC), 50/60 Hz
- Consumption: 40 VA
- Input / Output Ratings
- Analog Inputs: 4 to 20 mA current loop (Accuracy +/- 2% of span)
NOTES:- Prior to installation, verify that the existing xcm.10S or Savvy base was wired with an appropriate 24VAC 40VA Class 2 transformer.
- 4-20mA sensors used with the analog inputs must be capable of producing 20mA with a sensor supply of 13.25V.
- Loop Source: 24VDC at 500mA max
- Digital Inputs: Contact closure only
- Universal Inputs
- Thermistor: Type 3, 10K. -10 to 135 F (-23.3 to 57.2C)
- Voltage: 0-10VDC, Input impedance > 5Kohms
- Current: 0-20mA (Switch selectable)Resistance: 0 – 100K Ohms
- Digital: Contact closure only. (330uA Wetting Current)
- Relay Outputs: 24 VAC or VDC, 2 amp (pilot duty) Class 2
- Output (Fault): 24 VAC or VDC, 2 amp (pilot duty) Class 2
- System Diagnostic Inputs
- On-board Temperature: -40° to 257°F (-40 to 125C).
- AC Supply Monitor: 0 to 53 VAC (+/-5% of span)
- AC Fault Input: >7VDC= AC OK
- System: +5VDC
- Monitor: 0 to 10VDC (+/-5% of span) 5VDC Nominal
- Operating Environment
- Temperature: 32°F to 122°F (0°C to 50°C)
- Humidity: 0 to 95% Relative, non-condensing
- Physical Dimensions (Electronics Only)
- Height: 19 inches
- Width: 13.25 inche
- Depth: 2.5 inches
- Weight: 4.20 lbs (executive controller and cover plate)
ASSEMBLY BOARD DETAILS
Refer to Fig. 6 for LED and configuration switch locations.

Fig. 6. Assembly Board Detail
Proper Grounding
Performing proper grounding is very important to ensure a steady communication. Be sure grounding is done as follows:
- Comm Ports 3, 5, 6 need to be externally grounded of the communications shields, as shown in Fig. 7.
- Even when Comm Ports 2 and 4 are internally connected, grounding on the transition board needs to be done as shown in Fig 8.
- Comm Ports 3, 5, 6 NOT grounded.

- Comm Ports 3, 5, 6 correctly grounded.

Fig. 7. Comm Ports 3, 5, 6 grounded. - Comm Ports 2, 4 NOT grounded.

- Comm Ports 2, 4 correctly grounded.

Fig. 8. Comm Ports 2, 4 grounded.
LED Status Indicators
This section describes the functional purpose of the LED Indicators in three categories, See Fig. 6 for locations.
- Output Indicators (see Table 2)
- Power and IO Module Status Indicator (see Table 3)
- COM Port Status Indicator (see Table 4)
Table 2. Output Indicators on Interface Board.
| Indicator Name | Description |
| Class 2 Output 1 | Class 2 Outputs 1 through 8 indicate that the normally open relay outputs are in the energized or closed position(s) (closed contacts). |
| Class 2 Output 2 | |
| Class 2 Output 3 | |
| Class 2 Output 4 | |
| Class 2 Output 5 | |
| Class 2 Output 6 | |
| Class 2 Output 7 | |
| Class 2 Output 8 | |
| System Fault Output | System Fault Output indicates that the normally open fault relay contact is in the energized position. |
Table 3. Power and IO Module Status on Interface Board
| Indicator Name | Description |
| System Status |
|
| Power | When lit, the green Power LED indicates that system power has been applied. If the Power LED does not light while power is applied, contact Novar for technical support. |
| Power Fault | When lit, the red Power Fault LED indicates that the Novar ES3.S power circuiting has detected that the AC voltage applied to the Novar ES3.S is greater than the maximum specified and has shut down. Once the Power Fault LED illuminates, power will remain off until the over voltage situation has been corrected. |
| AC Fault | When lit the red ‘AC Fault’ LED indicates that one side of the transformer powering the Novar ES3.S is tied to ground. Although the unit will have functionality in this condition, performance will be reduced. Therefore, the cause of the fault must be identified and corrected for proper operation. |
Table 4. COM Port Status Indicators on Mezzanine Board
| Indicator Name | Description |
| TX1/RX1 | These LEDs show the transmit/receive status of Com Port 3. |
| TX2/RX2 | These LEDs show the transmit/receive status of Com Port 5. |
| TX3/RX3 | These LEDs show the transmit/receive status of Com Port 6. |
| TX4/RX4 | These LEDs show the transmit/receive status of Com Port 4. The RS485 com port 4 is labeled NETWORK “D” on the transition board of the Savvy Base. (Terminals 71, 72, 73) |
NOTE: To avoid damage to the I/O module do not remove power from the Novar ES3.S until the System Status LED illuminates continuously, or a period of over 10 minutes has expired.
Universal Input Configuration Switches:
Two switches are provided to select either universal input mode or current mode for the Outdoor Temperature Sensor (OTS) and Outdoor Light Sensor (OLS) inputs. Refer to Table 5 for input configuration settings.
Table 5. Configuration Switch Table
| Switch | Position | Selected Mode |
| OTS | ON1 | 4-20mA current loop type input enabled |
| OTS | OFF2 | Universal input type selected: 0-10V, Type 3 10K thermistor, 0-100K ohm resistive, digital. |
| OLS | ON1 | 4-20mA current loop type input enabled |
| OLS | OFF2 | Universal input type selected: 0-10V, Type 3 10K thermistor, 0-100K ohm resistive, digital. |
- Factory default position
- See section ‘Wiring’ for proper wiring when using this mode.
MODEL AND PART NUMBERS
The part numbers provided in Table 6 should be used to order the appropriate Novar parts.
Table 6. Novar Part Numbers.
| Product Name | Part No. | |
| Novar ES3.S Executive Controller – Incl. plan controller, electronics and bottom metal cover, drop in design compatible with the original XCM.10S and Savvy base-plate | ES3.S Executive Controller | ES3.S |
| Outdoor Temperature Sensor (4- 20mA) | OTS-2 | 735070000 |
| Outdoor Light Sensor, Analog (4- 20mA; 300-0 Foot-candles) | ALS-300 | 708100000 |
| Outdoor Light Sensor, Analog (4- 20mA; 1500-0 Foot-candles) | ALS-1.5K | 708101000 |
| ALS 5K | ALS 5K | 813000101 |
| 40VA Transformer | – | 730090000 |
| 22 AWG Shielded Low CAP CMP- CL3P Communications Color: White Wire Spec: EIA/TIA 485 | – | 33201001 |
REGULATORY COMPLIANCE
This device has been tested and found to be in compliance with the requirements set forth in UL 916 5th Edition, Energy Management Equipment, and is listed by Underwriters Laboratories, Inc., for installations in the United States.
This device has been tested and found to be in compliance with the requirements set forth in C22.2, No. 205-17 3rd Edition, and is Certified by Underwriters Laboratories, Inc., for installations in Canada.
Federal Comms. Commission (FCC)
This equipment has been tested and found to comply with the Federal Communications Commission (FCC) CFR 47 Part 15 Subpart B for the United States.
These limits are designed to provide reasonable protection against such interference when operated in a commercial environment Operation of this equipment in a residential area may cause interference, in which case, users at their own expense will be required to take whatever measures may be required to correct the interference. Any unauthorized modification of this equipment may result in the revocation of the owner’s authority to continue its operation.
Innovation, Science and Economic Development Canada (ISED)
ISED Standard: ICES-003 Issue 7
Operation is subject to the following two conditions.
- This device may not cause harmful interference.
- This device must accept any interference received, including interference that may cause undesired operation.
Canadian Dept. of Comms. (DOC)
NOTES:
- This Class A digital apparatus meets all requirements of the Canadian Interference-Causing Equipment Regulations.
Waste Electrical & Electronic Equip.
NOTE: Customers are advised to dispose of this product at the end of its useful life according to applicable local laws, regulations, and procedures.
The material in this document is for information purposes only. The content and the product it describes are subject to change without notice. Novar makes no representations or warranties with respect to this document. In no event shall Novar be liable for technical or editorial omissions or mistakes in this document, nor shall it be liable for any damages, direct or incidental, arising out of or related to the use of this document. No part of this document may be reproduced in any form or by any means without prior written permission from Novar.
Customer Support
For more information
Honeywell Multisite Page
Honeywell Multisite
6060 Rockside Woods Blvd Suite 400
Cleveland, OH 44131
800. 348.1235
www.novar.com


























