RWV09 Central Controller
Instruction Manual
RWV09 Central Controller
- Please read this operation manual before using the central controller.
- Please keep this manual carefully and safely.
- The illustration is for reference only, and the word description shall prevail.

This central controller can control VRF indoor units and Heat Recovery Vent (HRV). A maximum of 64 indoor units of any combination can be controlled to a single central controller.The central controller RWV09 can automatically recognize the model as a VRF system , no need to manually set up.
- When connected to a VRF system, each outdoor requires a ADV05 gateway (Flow Logic 3 outdoor unit can directly connect with this central controller).
Function introduction of central controller
- For VRF system, three kinds of controlling mode: Last in first out, Central & Lock can be selected for indoor units.
Last in first out: the indoor unit will execute the last order send by central controller, wired controller or remote controller. For example, if firstly sending low fan speed order by central controller and then sending high speed fan order by wired controller, the indoor unit will execute high fan speed.
Central: central controller enjoys all functions while wired &remote controller can only control ON/OFF of indoor units.
Lock: central controller enjoys all functions while wired & remote controller cannot control indoor units. - Receiving outer signal input: when receiving outer fire alarm signal, central controller will turn all indoor units off. Note: if no outer signal input, should short circuit the ALARM1 and ALARM2.
- Weekly timer setting. Weekly timer for one or some or all units can be set and can run in cycle, or set Except Date and ONCE. the “except date” can be set under “WEEK”of the schedule , and the “once date” can be set at the “ONCE”of the schedule.
- ECO (sets maximum and minimum allowable temperature set points) Cool Only/ Heat Only and DST can be set based on actual requirement.
Part info for central controller


Power (12V, GND): 12V DC, please pay attention to +-of power.
Fire alarm linkage contact (ALARM1, ALARM2): AC works normally when closed and all AC turned off when open circuit. If no fire alarm linkage needed, should short circuit the ALARM1 and ALARM2.
Third party interface (B1, A1): A1 should be connected to 485+ while B1 485-.
Communication port (B2, A2): It is used for connecting converter, please pay attention to +-.
A2 should be connected to 485+ while B2 485-.
Part info for central controller
System structure chart when controlling MRV:
Central controller RWV09
When applying central controller, it is required to set address by dip switch for easy checking and maintenance
For every system of AC, address starts from No. 1 to last indoor unit of the system. If totally 20 indoor units are connected in one system, address should be 1-20, if 50 in one system, address should be 1-50, the biggest address is 64.
Note: every indoor address starts from 1.
If one indoor unit is connected to converter (ADV05 addressed as No. 1, and its central address is No. 6, the indoor code displayed on central controller is AIRCON-1_6, if
one indoor unit is connected to converter (ADV05 addressed as No. 5, and its central address is No. 20, the indoor code displayed on central controller is AIRCON-5_20.
Note: The central controller RWV09 can control maximum 32 ADV05 and maximum 64 indoor units.
Function operation
Initialization
After powering on. controller starts to search for indoor units shown as picture 2 below:
Home Page
When search is completed, the home page will show as below, the left side shows the Qty. of indoor units connected and the Qty. of units in condition as On/Off/Error/Offline. PS: Picture 3 is the example.
Indoor units parameter and control
To see the setting for each indoor unit, tap on Air Conditioning. Shown (Picture 4) are the icons indicate the On/Off, Mode, Set Temp, Ambient Temp, Fan Speed and Control Mode of the connected indoor units.
Deep Blue is Auto Mode
Light Blue is Cooling Mode
Orange is Heating Mode
Purple is Dehumidify Mode
Green is Fan Mode
Gray is Indoor unit off
If there’s any indoor fault, ERROR icon will show on the controller.
Enter the following interface, the icon type shows ON/OFF, mode, setting temperature, ambient temperature, wind speed and control mode. The AUTO mode is deep blue, light blue is cooling, heating is orange, dehumidification is purple, the air supply is green, and the gray is shutdown. If there is a failure, the fault icon is displayed. 


Tap the top right bottom pull list
,It shows the following interface:
If tap “All-On Display Unit”, all the indoor units that are currently screened are fully opened,
if tap “All-Off Display Unit”, all the currently screened indoor units close, if tap “Control All
Display Unit”, the following interface is displayed:
In the upper interface, you can control On/Off, mode, setting temperature, wind speed, control mode, control interface are as above.
Note: mode, wind speed, setting temperature and control mode are not allowed to change under shutdown mode.
In the pull-up list, if you choose to select”Control Selected Unit”, the display interface is as follows.
You can check the indoor unit you need to select. The interface is as follows.
After click “Confirm”, the following control interface is entered :
Last in first out:
the indoor unit will execute the last order send by central controller,wired controller or remote controller. For example, if firstly sending low fan speed order by central controller and then sending high fan speed orderby wired controller, the indoor unit will execute high fan speed.
Central:
central controller enjoys all functions while wired &remote controller can only control ON/OFF of indoor units.
Lock:
central controller enjoys all functions while wired & remote controller cannot control indoor units.
The parameters can be adjusted according to the needs.
Click on the second icon
in the bottom row, and you can select the indoor units that need to be screened, as shown below.
You can tap to select or cancel the indoor units that need to be displayed, in which blue is selected and white is not selected.
You can tap to select or cancel the indoor units that need to be displayed, in which blue is selected and white is not selected.
After selecting, click “Confirm”, and as in Picture 13, the top left corner shows the number of indoor units displayed by the selected so that the user can choose the indoor unit state that needs to be displayed according to the needs.
Help
Tap ”Help” to enter the “help” interface, slide left and right, or and tap the blue icon to show the basic functionality of the product, the lower right corner shows the product model and the program version number.
The controller can control up to 64 units.

The central controller can monitor and control HRV, up to 4 units.

The controller can On/Off the indoor units and check the fault code of the indoor units.
The central controller can add, delete and change the weekly timing control for individual units, groups of units and all units. At most 64 pieces shedules can be set.
The user can set up and close the daylight saving time according to the needs. After the daylight saving time is opened, dates for start and end of DST can be set.
The controller can display the detailed information parameters of the indoor units.
You can set the name of the indoor unit, you can view the fault code.
Schedule
At most 64 schedules can be set. Tap on “Schedule”in the home interface. If schedule has been set, the set of schedule information is displayed. If you enter schedule for the first time, it will be blank like below.
Tap the “+” at the lower right corner to add a new schedule. Next, select the indoor units.
Blue represents the indoor units are selected. Tap “All” for the whole system or select the group.
After desired units or groups are selected, tap “Confirm” and enter interface as follows. You can set schedule on (start) and off (end) times, mode, temperature, control mode, Once, Cycle and Except. Tap “Edit”, to return to the indoor units selection interface.
Tap “Confirm”, the display interface is as follows .
Repeat steps to add another schedule. 
To delete a schedule, firstly, tap the icon ‘-’ in the Picture 26,then small circle will appear like Picture 27,secondly, select the schedules to be deleted.
Finally, press the icon ‘delete’ in the lower right corner 

To make a schedule idle, tap on the “Unavailable” icon, see Picture 26. Tap the icon of the desired schedule(s) to idle. After tapping “Confirm”, it shows the schedule as “UNAVAILABLE” as seen in Picture 28.
To reactivate a schedule that is idle then tap “Available” as seen at the bottom right of Picture 28. Tap the icon of the desired schedule(s) to reactivate. Then tap “Confirm” as seen at the bottom right of Picture 29.

You can set the exception time for the schedule, click “Edit” on the bottom of the week to add and modify the “Except Date”.

You can choose the date to add the “Except Date”. The “Except Date”represents the date when the corresponding schedule do not execute. The “Except Date”is set in the 6 months prior to the current date and within the time range of the current 2 years.
Setting
Tap “Setting” on the interface of Picture 3 to enter the setting interface, shown in Picture 33.
- General

Slide up and down to the view all control settings.

You can change the Backlight brightness, Screensaver time and Fahrenheit switch by taping and dragging the slider, and currently only support English.
Time
You can adjust the time by clicking the up and down arrow, you can taping 24HR and 12HR to switch 24 hours or 12 hours.
Tap DST
After taping ON, the interface is as follows. You can tap the button to adjust the start and of the daylight saving time, and the time of the daylight saving time. The daylight time compensation can be 1-3 hours. The change needs to be confirmed by “Confirm”.
Name
Tap “Name” to enter the following interface.
Tap the indoor unit to rename.

The upper left corner shows physical address: the” Physical address” of the machine, such as AC-5_4, represents the adapter address is 5, and the indoor centralized address is 4. It is convenient for the name and physical address to be checked It needs to be confirmed by “Done”
Zone
Tap “Zone”, as shown in Picture 41, Up to 32 group zones can be created.

Tap “+”

Select indoor units to be added to a zone.
Press” Confirm” to enter the following interface

If you want to create a new group, press “+”button on lower right shown as picture 44 and select the indoor units to be added as picture 45 
After press “Confirm”, add a new “Group”,as shown in Picture 46.
Tap ”-“ at the lower right ,then select the zone you want to delete,then tap ”delete”to confirm.

Select a group then tap on current name to rename.
ECO
Up to 16 energy saving parameters can be set.
In Picture 33, tap “Eco”, 
Click “+” to add the indoor units that need to set energy saving. 
After tap “Confirm”, enter the parameter settings of Eco, as shown in Picture 52.
Slide up and down
If you tap “Overrun” to ON, you can select Overrun’s time, and it can be adjusted from 10240 minutes. Overrun mean the amount of time the temperatures can be set beyond the parameter by the user before the control returns it to within the limits set.
After tapping “Confirm”, the Eco setup information will show as seen in Picture 55.
Tap “+” and repeat above steps to add another set of ECO parameters.
If an indoor unit is already included in a another ECO parameters, a warning prompt will appear.
Tap “Confirm”
If you press “Confirm”, it is set successfully, the conflict indoor unit is cancelled from the previous setting, and the final ECO confirmation is confirmed. If you press “Cancel”, it returns to the previous setting interface.
After tap “-“, select the indoor unit that needs to be deleted, tap “Delete”. 
If you tap “Cancel”,returns to the upper layer.
Tap “Unavailable” to idle parameter settings. Press “Confirm” to save.
To restore idled parameters, tap “Available” then select the set that needs to be restored.
Tap “Confirm” to save.
Service
Tap “Service” in Picture 33 and tap “Confirm” on pop up that prompts to enter password.
Enter password 841226 and tap “Login”.

After clicking “Login”, go into Picture 64.

Mode Setting
Click “Mode Setting” at the Picture 64 interface 
Select the system(s) that needs to be changed and tap the arrow to move to the next column.
select the corresponding gateway and tap “Cool Only “

Tap “Confirm” to save changes.
Error
Tap “Error” in settings menu (Picture 64) to view errors. 
You can slide up and down to see the fault information of other indoor units. Up to 10 faults will be saved for each unit.
Detail
Tap “Detail” in the settings menu (Picture 64) to view unit details such as room temperature, mode, current running time and errors (if any). 
If you click “Confirm” to reinitialize, the controller start to search indoor units, if you click “Cancel”, then exit POP.
HRV
If the system is connected with HRV, the main interface is displayed as follows

Tap “HRV”, to enter the HRV display list interface

Click on the control interface of the HRV units, 
Tap on the lower right-hand menu icon to turn all HRV units on or off. 
Tap on the next line of magnifying glass to select the HRV unit that you need to view

Tap “LIST” to view the HRV in the list form. If the HRV is installed, the naming can be set at the Setting-Name interface
If there is a HRV unit, then AC and HRV can be set separately in schedule, and AC and HRV can be set separately in the middle part of the bottom row.
If HRV existence, there is a ”Linkage“ interface on the ”Setting“ interface, which allows HRV to interact with ordinary indoor units, as follows
Tap “Linkage” to select which HRV unit to link then tap “Edit”.
Select any of the indoor unit to link to the HRV unit. Blue indicates selected. Then tap “Confirm”.
After the linkage, the selected linkage of the indoor units, all closed, the linkage of the HRV off, in the linkage process, the HRV machine can also be manual switch, the implementation of the priority principle, with the last operation as the criterion.
Central controller RWV09 can connect with VRF system system, and HRV simultaneously. 
Wiring diagram between central controller and converter gateway ADV05.
All of the communication 485 cables between each module and terminal module to the central controller are double core shielded twisted-pair cable. Specific wiring as the table below:
| The length of signal line | Wiring dimension |
| ≤100 | 0.3 mm2 ×2 |
| 100<x≤200 | 0.5mm2 ×2 |
| 200<x≤300 | 0.75mm2 ×2 |
| 300<x≤400 | 1.25mm ×2 |
| 400<x≤500 | 2mm2 ×2 |
Installation condition
Don’t install near devices that produce electrical interference such as AC motor, radio transmitters like network routers and consumer electronics.
Other electrical noise producers could include computers, auto-door openers, elevators, or other equipment what can produce noise.
Don’t install in wet locations.
It will cause failure if you install in a place that shakes violently.
Don’t install in the place where it is exposed to direct sunlight or near to the heat. This will cause failure.
Mounting Control
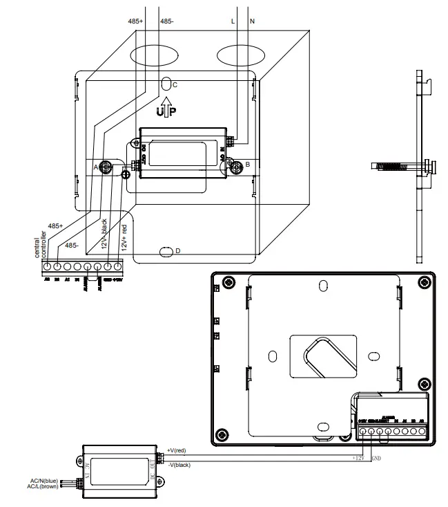
First, attach the mounting plate to the wall. Using a job box is preferred. Use A and B holes for an 86mm box, use C and D holes for a 120mm box. Please take note of the UP indicator.
Wiring diagram and Installation
Place the board, AB for 86 cassettes, CD for 120 cassettes. The hanger should be fixed as the picture, please note the UP direction.
The hanging plate is placed in the direction of the illustration, where A/B is the location of the 86 cassette screws, and the C/D is the position of the 120 cassette screws.
The pendant is fixed to the hole of the pendant, please pay attention to the UP direction.

Wiring between power adapter and central controller.
Fix the screw through the bracket on the 86 cassettes and connect the connection. The adapter’s AC IN connects to the L and N of 220V, the V+ (RED) collector of the AC OUT, and the AC OUT. Please pay attention to the line order. Then the central controller is fixed down.
Notes:
- B1A1 is a third party interface, paying attention to the line order.
- B2A2 for 485 interface, access to ADV05 485 B and A, pay attention to line order.
- ALARM1 and ALARM2 factory default is connected, if not be connected, then the main interface of the central controller will display alarm information, and all indoor units will be turned off.
- Third party interface
Through the A1B1 interface, it can access third party devices, and can realize the monitoring and control of third party devices to the central controller.
Third party Modbus
Communication parameter:
Baud rate: 9600
data bits: 8
Check bit: None
Stop bit: 1
One frame command finished,using CRC to check
| VRF | Single split and multi split | HRV | |||
| Unit ID:1-16, SLAVE ID | 33 | Unit ID:1, SLAVE ID | 29 | ||
| SLAVE ID | Gateway’s address (ranging from 1 to 32) | Unit ID:17-32, SLAVE ID Unit ID:33-48, SLAVE ID 30 | 34 35 | Unit ID:2, SLAVE ID Unit ID:3, SLAVE ID | 31 |
| Unit ID:49-64, SLAVE ID | 36 | Unit ID:4, SLAVE ID | 32 | ||
Discrete Input–Query Function Code: 0x02
| BIT | name | meaning | remark |
| 0 | indoor 1 whther exist | 0- non existent 1-existent | Whether the indoor unit that has been answered. |
| 1 | indoor unit 1 status (whether online) | 0-not online 1-on line | Whether the registered indoor unit is offline during operation. |
| 2 | indoor 2 whther exist | 0- non existent 1-existent | Whether the indoor unit that has been answered. |
| 3 | indoor unit 2 status (whether online) | 0- not online 1- on line | Whether the registered indoor unit is offline during operation. |
| 126 | indoor 64 whther exist | 0- non existent 1-existent | Whether the indoor unit that has been answered. |
| 127 | indoor unit 64 status (whether online) | 0- not online 1- on line | Whether the registered indoor unit is offline during operation. |
Coil–Query function code: 0x01 Control function code: 0x05/0x0F
| BIT | name | meaning | reamrk |
| 0 | indoor unit 1 on off | – 0 off 1- on | Read operation to get the current indoor unit on and off status Write operation changes the indoor unit on and off state |
| 1 | indoor unit 2 on off | 0-off 1-on | Read operation to get the current indoor unit on and off status Write operation changes the indoor unit on and off state |
| 2 | indoor unit 3 on off | – 0 off 1- on | Read operation to get the current indoor unit on and off status Write operation changes the indoor unit on and off state |
| 3 | indoor unit 4 on off | – 0 off 1- on | Read operation to get the current indoor unit on and off status Write operation changes the indoor unit on and off state |
| 62 | indoor unit 63 on off | – 0 off 1- on | Read operation to get the current indoor unit on and off status Write operation changes the indoor unit on and off state |
| 63 | indoor unit 64 on off | – 0 off 1- on | Read operation to get the current indoor unit on and off status Write operation changes the indoor unit on and off state |
Input Register:0x04 Input register (Input Register) query function code: 0x04
| WORD | name | range | remark |
| 0 | indoor unit 1 ambient temp. | – 30 – – 60 | Unit 1 °C,HRV1/HRV2/Fresh air unit model without set temperature, return Ox7FFF |
| 1 | indoor unit 1 error code | 0 – 256 | value of 0 means no error |
| 2 | indoor unit 1 HP | 0.1HP | This parameter is currently not supported and will return Ox7FFF |
| 3 | indoor unit 2 ambient temp. | – 30 – – 60 | Unit 1 °C, HRV1/HRV2/Fresh air unit model without set temperature, return Ox7FFF |
| 4 | indoor unit 2 error code | 0 – 256 | value of 0 means no error |
| WORD | name | range | remark |
| 5 | indoor unit 2 HP | 0.1HP | This parameter is currently not supported and will return Ox7FFF |
| 169 | indoor unit64 ambient temp. | – 30 – – 60 | Unit 1 °C, HRV1/HRV2/Fresh air unit model without set temperature, return Ox7FFF |
| 190 | indoor unit 64 error code | 0 – 256 | value of 0 means no error |
| 191 | indoor unit 64HP | 0.1HP | This parameter is currently not supported and will return Ox7FFF |
| 1000 | Indoor unit 1 model | 0-normally air conditioner 1-HRV 1 2-HRV 2 3-Fresh air unit 4-HRV with coil 254-Unsupported model | If not online, return Ox7FFF |
| 1001 | Indoor unit 2 model | 0-normally air conditioner 1-HRV 1 2-HRV 2 3-Fresh air unit 4-HRV with coil 254-Unsupported model | If not online, return Ox7FFF |
| 1063 | Indoor unit 64model | 0-normally air conditioner 1-HRV 1 2-HRV 2 3-Fresh air unit 4-HRV with coil 254-Unsupported model | If not online, return Ox7FFF |
Hold Register (Holding Register) Query Function Code 0x03 Control Function Code 0x06/0x10
| WORD | name | range | remark |
| Returns Ox7FFF if the corresponding indoor unit does not exist. | |||
| indoor | Unit 1 °C The air conditioner read operation acquires | ||
| 0 | unit 1 set temp. | 16 – 30 | the current operation mode, and the write operation changes the operation mode. |
| There is no set temperature for HRV1/ | |||
| HRV2/Fresh air unit , the read operation returns 0, and the write operation is invalid. | |||
| air conditioning/HRV with coil: | |||
| 1 – cooling | |||
| 2 – heating | Returns 0x7FFF if the corresponding | ||
| indoor | 3 – dehumidifying | indoor unit does not exist. | |
| unit 1 | 4 – fan only | The read operation gets the current run | |
| 1 | operation | 5 – auto | mode. |
| mode | HRV1/HRV2/Fresh air unit : 1 – no mode 2 – recovery | The write operation changes the operation mode and writes the mode that is not supported by the corresponding model. | |
| 3 – by-pass | |||
| 4 – inner loop | |||
| 5 – auto |

WARNING :
The design and specifications are subject to change without prior notice for product improvement. Consult with the sales agency or manufacturer for details.
AIRWELL RESIDENTIAL SAS
10,Rue du Fort de Saint Cyr,
78180 Montigny le Bretonneux – France
www.airwell.com



















