Braeburn 2 Zone Expander Panel 140404

Specifications
- Storage Temperature
– 40˚–167˚F (-40˚–75˚C) - Operating Temperature
– 22˚–167˚F (-30˚–75˚C) - Voltage
24 VAC, Nominal 60Hz 18-30 VAC Maximum - Operating Humidity
- 5–95% RH
- Panel Power
4 VA @ 24 VAC - Current Draw Max
75 VA @ 24 VAC - Current Draw Per Zone
50 VA Max - Protection
Electronic self resetting current limiting for panel power and damper zones - Configuration
Zone number by switch setting - Maximum Zones
2 Zones Per Expander Panel
Up to a Maximum of 14 Two Zone Expanders = 32 Total
Zones (28 Expander Zones,
4 Main Panel Zones) - Dimensions
See figure below

Suitable Mounting Locations
Mount the Zone Panel Expander near the Main Panel. If desired, the expander panel can be mounted up to 500 feet from the main panel. The panel can be mounted in any orientation on a wall, stud, roof truss, or the return-air plenum. For appearance, mount the panel near the main panel for easy panel to panel wiring. Remove the panel cover and use the base as a template to drill mounting holes. Attach the panel with appropriate screws. Use mounting anchors as needed for drywall or plaster installations.

Wiring the Panel
Always turn off power to the heating/air conditioning system prior to installing or adjusting the Zone Panel Expander. Use the following general wiring instructions for all systems. Specific wiring will vary depending on the type of thermostats and dampers used for the installation. NOTE: Up to 2 wires can be inserted into each terminal position. To release wires, press down on top of wiring terminal and gently pull out wire(s).

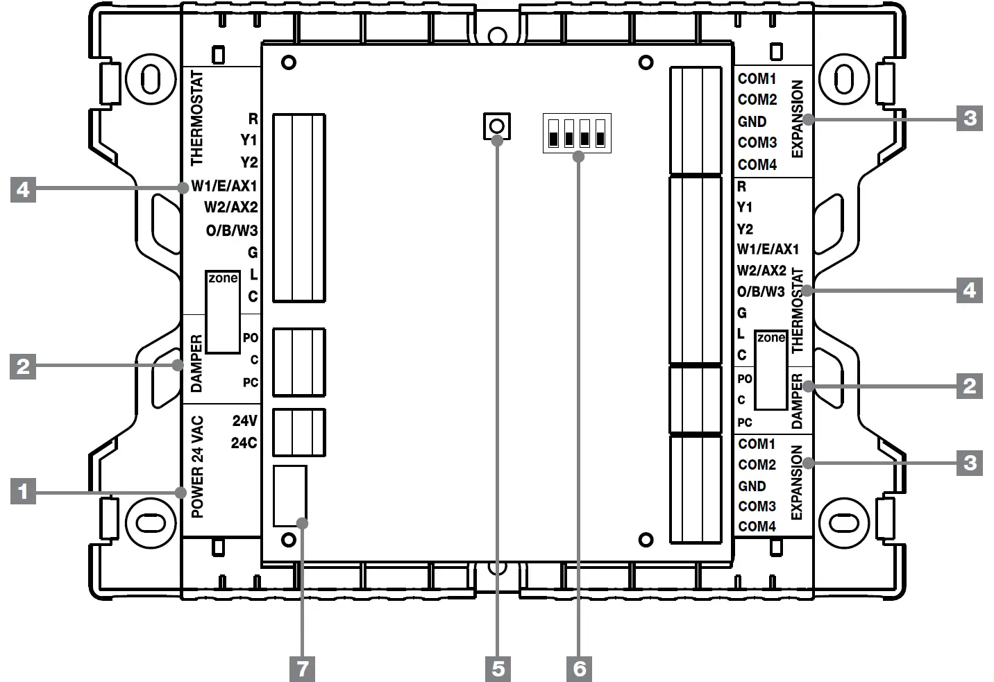
ZONE PANEL EXPANDER WIRING TERMINALS
Terminal | Qty | Function | Description | |
PANEL POWER 1 | 24V | 1 | INPUT | 24 VAC Transformer Power 75 VA Maximum |
24C | 1 | INPUT | 24 VAC Transformer Common | |
DAMPERS 2 | PO | 2 | OUTPUT | 24 VAC Power Open Zone Damper Terminal |
C | 2 | OUTPUT | Zone Damper Common Terminal | |
PC | 2 | OUTPUT | 24 VAC Power Close Zone Damper Terminal | |
EXPANSION 3 | COM1 | 2 | OUTPUT | Expander Panel Communication |
COM2 | 2 | OUTPUT | Expander Panel Communication | |
GND | 2 | INPUT | Expander Panel Communication Ground | |
COM3 | 2 | INPUT | Expander Panel Communication | |
COM4 | 2 | INPUT | Expander Panel Communication | |
THERMOSTAT 4 | R | 2 | OUTPUT | 24 VAC Thermostat Power |
Y1 | 2 | INPUT | 1st Stage Compressor Call | |
Y2 | 2 | INPUT | 2nd Stage Compressor Call | |
W1/E/AX1 | 2 | INPUT | [W1] 1st Stage Conventional Heat Call [E] Emergency Heat Call [AX1] 1st Stage Auxiliary Heat Call | |
W2/AX2 | 2 | INPUT | [W2] 2nd Stage Conventional Heat Call [AX2] 2nd Stage Auxiliary Heat Call | |
O/B/W3 | 2 | INPUT | [O] Cool Active Reversing Valve Call [B] Heat Active Reversing Valve Call [W3] 3rd Stage Conventional Heat Call | |
G | 2 | INPUT | Fan Call | |
L | 2 | OUTPUT | System Malfunction Indicator | |
C | 2 | OUTPUT | 24 VAC Transformer Common | |
5 | RESET BUTTON | Press once to restart panel Hold for 5 seconds to reset panel and reset all factory defaults. | ||
6 | ZONE ADDRESS DIP SWITCHES | See Zone Addressing (section 4) | ||
7 | WIRE STRIP GUIDE | Wires should be stripped 3/8 inch minimum. | ||
The expansion zones may be wired to either the top or bottom communication terminals on the main panel or to the top or bottom communication terminals on the expansion panel. This wiring flexibility allows the installer to choose the most flexible, cost effective wiring for the installation.
Each expansion panel must have a 5 Wire connection for proper communication. It is not necessary to use shielded wire for the panel to panel connection. 18 – 20 Gauge solid thermostat wire or similar is acceptable. When wiring the expansion panels be sure to connect the terminals from one panel to the next using the following terminal connections.
MAIN Panel to Expander
Main Panel | To | Expansion Panel |
| COM1 | To | COM1 |
COM2 | To | COM2 |
| GND | To | GND |
COM3 | To | COM3 |
| COM4 | To | COM4 |
Expander to Expander
Expansion Panel | To | Expansion Panel |
| COM1 | To | COM1 |
COM2 | To | COM2 |
| GND | To | GND |
COM3 | To | COM3 |
| COM4 | To | COM4 |
Example Wiring Options
- Daisy Chain All Zones Located at Main Panel

- Star Wiring All Zones Located at Main Panel

- Daisy Chain Zones Located Remote to Main Panel (Up to 500 Feet)

- Daisy Chain Zones Located Remote to Main Panel – Remote Panels Wired in Star Configuration

NOTE: To prevent possible interference do not run low voltage wiring along side 120 VAC wiring or magnetic ballasts.
Damper Wiring
Install the system dampers using the instructions provided by the manufacturer. Connect the dampers to the zone panel expander as shown for either a 2-wire or 3-wire damper. The sum of all dampers powered by the zone panel should not exceed 75 VA at 24 VAC. Use a slave relay if additional damper power is required.

ALWAYS PROVIDE DISCONNECT AND OVERLOAD PROTECTION AS REQUIRED
Thermostat Wiring
CONVENTIONAL THERMOSTATS
1 HEAT / 1 COOL
R | 24 VAC Power |
| W1 | Heat Call |
Y1 | Cooling Call |
| G | Fan Call |
C | 24 VAC Transformer Common |
2 HEAT / 2 COOL
R | 24 VAC Power |
| W1 | Heat Call Stage 1 |
W2 | Heat Call Stage 2 |
| Y1 | Cooling Call Stage 1 |
Y2 | Cooling Call Stage 2 |
| G | Fan Call |
C | 24 VAC Transformer Common |
3 HEAT / 2 COOL
R | 24 VAC Power |
| W1 | Heat Call Stage 1 |
W2 | Heat Call Stage 2 |
| W3 | Heat Call Stage 3 |
Y1 | Cooling Call Stage 1 |
| Y2 | Cooling Call Stage 2 |
G | Fan Call |
| C | 24 VAC Transformer Common |
NOTES
[1] Wiring to the C terminal is required only for thermostat power.
HEAT PUMP THERMOSTATS
1 HEAT / 1 COOL – No Auxiliary Heat
R | 24 VAC Power |
O/B | Changeover Valve [Note 2] |
Y1 | Compressor Call (1st Stage Heating/Cooling) |
G | Fan Call |
C | 24 VAC Transformer Common [Note 1] |
2 HEAT / 2 COOL – No Auxiliary Heat
R | 24 VAC Power |
O/B | Changeover Valve [Note 2] |
L | Optional System Fault Monitor |
Y1 | Compressor Call Stage 1 (1st Stage Heating/Cooling) |
Y2 | Compressor Call Stage 2 (2nd Stage Heating/Cooling) |
G | Fan Call |
C | 24 VAC Transformer Common [Note 1] |
2 HEAT / 1 COOL – With Auxiliary Heat
R | 24 VAC Power |
O/B | Changeover Valve [Note 2] |
L | Optional System Fault Monitor |
W2 | Auxiliary Heat Relay (2nd Stage Heating) |
Y1 | Compressor Call (1st Stage Heating/Cooling) |
E | Emergency Heat Call |
G | Fan Call |
C | 24 VAC Transformer Common [Note 1] |
3 HEAT / 2 COOL – With Auxiliary Heat
R | 24 VAC Power |
O/B | Changeover Valve [Note 2] |
L | Optional System Fault Monitor |
AX1 | Auxiliary Heat Relay (3rd Stage Heating) |
Y1 | Compressor Call (1st Stage Heating/Cooling) |
Y2 | Compressor Call (2nd Stage Heating/Cooling) |
E | Emergency Heat Call |
G | Fan Call |
C | 24 VAC Transformer Common [Note 1] |
4 HEAT / 2 COOL – With Auxiliary Heat
R | 24 VAC Power |
O/B | Changeover Valve [Note 2] |
L | Optional System Fault Monitor |
AX1 | Auxiliary Heat Relay (3rd Stage Heating) |
AX2 | Auxiliary Heat Relay (4th Stage Heating) |
Y1 | Compressor Call (1st Stage Heating/Cooling) |
Y2 | Compressor Call (2nd Stage Heating/Cooling) |
E | Emergency Heat Call |
G | Fan Call |
C | 24 VAC Transformer Common [Note 1] |
NOTES
- Wiring to the C terminal is required only for thermostat
- O (Cool active) or B (Heat active) must match the zone panel
Transformer Wiring
Install the transformer using the instructions provided by the manufacturer. Size the transformer to the damper requirements. The zone panel has a built-in, self- resetting fuse. The maximum damper power per zone is 75 VA at 24 VAC. Connect the transformer to the zone panel as shown. NOTE: Additional dampers or dampers with a higher current draw will require the use of a separate slave relay.
ALWAYS PROVIDE DISCONNECT AND OVERLOAD PROTECTION AS REQUIRED

Zone Addressing
Use the following instructions to identify the zones on the zone panel expander. No other configuration is necessary on the zone panel expander. Carefully slide the dip switches to match the new zone numbers.

Use the open area provided on the expander panel to mark the new zone numbers. When setting the switches to identify the expander panel, use a pen or small screwdriver. Do not use a pencil, which may contain conductive material in the writing point.
| Switch Position | |||
| Zone ID | 1 | 2 | 3 | 4 |
5 and 6 | OFF | OFF | OFF | OFF |
| 7 and 8 | ON | OFF | OFF | OFF |
9 and 10 | OFF | ON | OFF | OFF |
| 11 and 12 | OFF | OFF | ON | OFF |
13 and 14 | OFF | OFF | OFF | ON |
| 15 and 16 | ON | ON | OFF | OFF |
17 and 18 | ON | OFF | ON | OFF |
| 19 and 20 | ON | OFF | OFF | ON |
21 and 22 | OFF | ON | ON | OFF |
| 23 and 24 | OFF | ON | OFF | ON |
25 and 26 | OFF | OFF | ON | ON |
| 27 and 28 | ON | ON | OFF | OFF |
29 and 30 | ON | ON | OFF | ON |
| 31 and 32 | ON | OFF | ON | ON |
Add Zones to Main Panel
The 4 Zone Expandable Panel can be expanded to up to 32 zones with four zones on the main panel and 28 total expansion zones. Additional zones must have power and communication wires to be recognized and controlled by the main expandable panel. To add additional zones, complete all wiring and start the main panel test mode.
Start the panel test mode to add additional zones:
- Ensure all wiring is complete, zone addresses are set (section 4), and power has been applied to the main and expansion panels.
- Press TEST for 3 seconds and release.
- Press and release SELECT once for each new zone added. New zones must be added in blocks of two. NOTE: After second new zone is added, expander LED will change from red to green, and ZONE OK will appear in the main panel display.
- If new zones do not appear, check wiring and ensure expansion zones have power.
- Press HOLD FOR EXIT for 3 seconds to complete adding zones.

Operation
The Zone Panel Expander has built in LED’s to tell the installer and the system owner the current operating mode of the panel. Refer to the figure below and the following descriptions of the panel LED’s for operation information.
LED | COLOR | INDICATION |
Panel Status LED | ||
Panel Power | Red Green | Flashing Red until communication is good Flashing Green when in normal operation |
Thermostat LED’s (2 Positions) | ||
R | Red | 24 VAC available to Thermostat |
| Y1 | Yellow | Thermostat First Stage Compressor Call |
Y2 | Yellow | Thermostat Second Stage Compressor Call |
| W1/E/AX1 | White | Thermostat Call for W1 or E or AX1 |
W2/AX2 | White | Thermostat Call for W2 or AX2 |
| O/B/W3 | Yellow | Thermostat Call for O, B or W3 |
G | Green | Thermostat Fan Call |
| L | Yellow | System Check Signal to Thermostat Active |
Damper LED’s (2 Positions) | ||
| Power Close / Power Open | Red / Green | Red On Damper Closed; Green on Damper Open No light when wiring short detected. |
Error Conditions
The following messages will be displayed on the Main Panel if incorrectly addressed expansion panels are detected during expander configuration when the Main Panel is in the TEST mode.
Invalid Address on Expansion Panel
Displayed when an invalid address has been set on an expansion panel. This message will appear when an expander is powered up and wired to the communication terminals. To locate the expander panel with the invalid address, view the expander panel status LED. The status LED will be flashing red.

Duplicate Address on Expansion Panel
Displayed when a duplicate address has been set on an expansion panel. This message will appear when an expander is powered up and wired to the communication terminals. To locate the expander panel with the duplicate, view the expander panel status LED. The status LED will be flashing red. Change the expander switches as noted in section 4 to remove duplicate addresses.

The Main Panel continually monitors the status of the expansion panel(s) and will display the following message if communication is lost with a previously connected expander panel.
Communication Lost with Expansion Panel
This message is displayed if the Main Panel loses communication with an expansion panel. Check the wiring between the Main Panel and the expansion panel, and confirm that the addressing dip switches are configured properly.

Limited Warranty
When installed by a professional contractor, this product is backed by a 5 year limited warranty. Limitations apply. For limitations, terms and conditions, you may obtain a full copy of this warranty:
- Visit us online: www.braeburnonline.com/warranty
- Phone us: 866.268.5599
- Write us:
Braeburn Systems LLC
2215 Cornell Avenue
Montgomery, IL 60538
Braeburn Systems LLC
2215 Cornell Avenue • Montgomery, IL 60538
Technical Assistance: www.braeburnonline.com
Call us toll-free: 866-268-5599 (U.S.)
630-844-1968 (Outside the U.S.)
























