Braeburn 140332 3 Zone Control Panel

Up to 3 Heat / 2 Cool Conventional or Heat Pump
Warning Read all of the instructions before proceeding
Can cause electrical shock or equipment damage. Always turn off power to the heating/air conditioning system prior to installing or adjusting the expandable zone panel. Wire the entire panel before applying transformer power.
This panel is designed for professional installation and is to be installed and configured as described in this manual. Any other use is not recommended and will void the warranty. Install disconnect and overload protection on circuits as required by code authorities having jurisdiction for the installation.
Specifications

- Storage temperature: – 40˚–167˚F (-40˚–75˚C)
- Operating temperature: – 22˚–167˚F (-30˚–75˚C)
- Voltage: 24 VAC, Nominal 60Hz 18-30 VAC Maximum
- Operating humidity: 5–95% RH
- Panel Power: 6 VA @ 24 VAC
- Current Draw Max: 100 VA @ 24 VAC
- Current Draw Per Zone: 50 VA Max
- Protection: Electronic self resetting current limiting for panel power and damper zones
- Configuration: Heat Pump equipment up to 3 Heating Stages and 2 Cooling Stages Conventional equipment up to 2 Heating Stages and 2 Cooling Stages
- Maximum Zones: 3 Zones Maximum
- Dimensions: See Figure 1
Suitable Mounting Locations
Mount the Zone Panel near the HVAC equipment. The panel can be mounted in any orientation on a wall, stud, roof truss, or the return-air plenum. For appearance, mount the panel level. Remove the panel cover and use the base as a template to drill mounting holes (see Figure 2). Attach the panel with appropriate screws. Use mounting anchors as needed for drywall or plaster installations.

Wiring the Panel
Always turn off power to the heating/air conditioning system prior to installing or adjusting the Zone Panel. Wire the entire panel before applying transformer power. Use the following general wiring instructions for all systems. Specific wiring will vary depending on the equipment and type of system (conventional or heat pump).
NOTE: Up to 2 wires can be inserted into each terminal. To release wires, press down on top of wiring terminal and gently pull out wire(s).

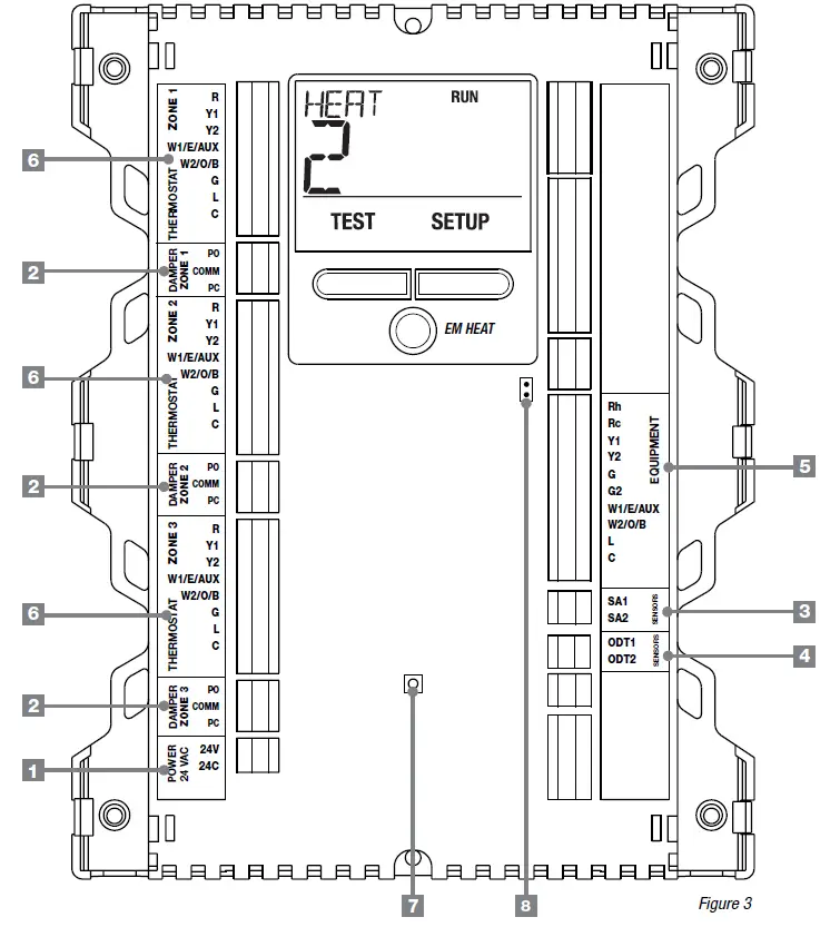
ZONE PANEL WIRING TERMINALS
| PANEL 1 POWER | 24V | 1 | INPUT | 24 VAC Transformer Power 100 VA Maximum |
| 24C | 1 | INPUT | 24 VAC Transformer Common | |
| DAMPERS 2 | PO | 3 | OUTPUT | 24 VAC Power Open Zone Damper Terminal |
| COMM | 3 | OUTPUT | Zone Damper Common Terminal | |
| PC | 3 | OUTPUT | 24 VAC Power Close Zone Damper Terminal | |
| SUPPLY 3 AIR | SA1 | 1 | INPUT | Optional Plenum Supply Air Sensor Terminal 1 (No Polarity) Model 149156 |
| SA2 | 1 | INPUT | Optional Plenum Supply Air Sensor Terminal 2 (No Polarity) Model 149156 | |
| OUTDOOR 4 AIR | ODT1 | 1 | INPUT | Optional Outdoor Air Sensor Terminal 1 (No Polarity) Model 5490 |
| ODT2 | 1 | INPUT | Optional Outdoor Air Sensor Terminal 2 (No Polarity) Model 5490 | |
| EQUIPMENT
5 | Rh | 1 | INPUT | 24 VAC Equipment Transformer Power Connection |
| Rc | 1 | INPUT | 24 VAC Cooling Equipment Transformer (Dual Transformer Systems Only) | |
| Y1 | 1 | OUTPUT | 1st Stage Compressor | |
| Y2 | 1 | OUTPUT | 2nd Stage Compressor | |
| G | 1 | OUTPUT | 1st Stage Fan Control | |
| G2 | 1 | OUTPUT | 2nd Stage Fan Control | |
| W1/E/AUX | 1 | OUTPUT | [W1] 1st Stage Conventional Heat [E] Emergency Heat [AUX] Auxiliary Heat | |
| W2/O/B | 1 | OUTPUT | [W2] 2nd Stage Conventional Heat [O] Cool Active Reversing Valve [B] Heat Active Reversing Valve | |
| L | 1 | INPUT | System Malfunction Indicator | |
| C | 1 | INPUT | 24 VAC Transformer Common | |
| THERMOSTAT
6 | R | 3 | OUTPUT | 24 VAC Thermostat Power |
| Y1 | 3 | INPUT | 1st Stage Compressor Call | |
| Y2 | 3 | INPUT | 2nd Stage Compressor Call | |
| W1/E/AUX | 3 | INPUT | [W1] 1st Stage Conventional Heat Call [E] Emergency Heat Call [AUX] Auxiliary Heat Call | |
| W2/O/B | 3 | INPUT | [W2] 2nd Stage Conventional Heat Call [O] Cool Active Reversing Valve Call [B] Heat Active Reversing Valve Call | |
| G | 3 | INPUT | Fan Call | |
| L | 3 | OUTPUT | System Malfunction Indicator | |
| C | 3 | OUTPUT | 24 VAC Transformer Common | |
| 7 | RESET BUTTON | Press once to restart panel Hold for 5 seconds to reset panel and restore all factory defaults | ||
| 8 | Rc/Rh TERMINAL JUMPER (J1) | Open jumper for dual transformer installations | ||
Note: Wire should be stripped to 3/8 inch minimum.
Damper Wiring
Always turn off power to the heating/air conditioning system prior to installing or adjusting the zone panel. Wire the entire panel before applying transformer power.
Use the following general wiring instructions for all systems. Specific wiring will vary depending on the equipment and type of system (conventional or heat pump).
Install the system dampers using the instructions provided by the manufacturer. Connect the dampers to the zone panel as shown for either a 2-wire or 3-wire damper. The sum of all dampers powered by the zone panel should not exceed 100 VA at 24 VAC. Use a slave relay if additional damper power is required.
ALWAYS PROVIDE DISCONNECT AND OVERLOAD PROTECTION AS REQUIRED
Max. damper VA per Zone 50 VA @ 24 VAC

Thermostat Wiring
Install the system thermostats using the instructions provided by the manufacturer. Connect the thermostats to the zone panel as shown. Do not mix conventional and heat pump thermostats on the same system. You can mix single stage and multi-stage thermostats as long as they are all conventional or heat pump.
ALWAYS PROVIDE DISCONNECT AND OVERLOAD PROTECTION AS REQUIRED
CONVENTIONAL THERMOSTATS (for use on conventional or heat pump systems)
1 HEAT / 1 COOL
| R | 24 VAC Power |
| W1 | Heat Call |
| Y1 | Cooling Call |
| G | Fan Call |
| C | 24 VAC Transformer Common |
2 HEAT / 2 COOL
| R | 24 VAC Power |
| W1 | Heat Call Stage 1 |
| W2 | Heat Call Stage 2 |
| Y1 | Cooling Call Stage 1 |
| Y2 | Cooling Call Stage 2 |
| G | Fan Call |
| C | 24 VAC Transformer Common |
HEAT PUMP THERMOSTATS (for use on heat pump systems only)
1 HEAT / 1 COOL – No Auxiliary Heat
| R | 24 VAC Power |
| O/B | Changeover Valve [Note 2] |
| Y1 | Compressor Call (1st Stage Heating/Cooling) |
| G | Fan Call |
| C | 24 VAC Transformer Common [Note 1] |
2 HEAT / 2 COOL – No Auxiliary Heat
| R | 24 VAC Power |
| O/B | Changeover Valve [Note 2] |
| L | Optional System Fault Monitor |
| Y1 | Compressor Call Stage 1 (1st Stage Heating/Cooling) |
| Y2 | Compressor Call Stage 2 (2nd Stage Heating/Cooling) |
| G | Fan Call |
| C | 24 VAC Transformer Common [Note 1] |
2 HEAT / 1 COOL – With Auxiliary Heat
| R | 24 VAC Power |
| O/B | Changeover Valve [Note 2] |
| L | Optional System Fault Monitor |
| AUX | Auxiliary Heat Relay (2nd Stage Heating) |
| Y1 | Compressor Call (1st Stage Heating/Cooling) |
| E | Emergency Heat Call |
| G | Fan Call |
| C | 24 VAC Transformer Common [Note 1] |
3 HEAT / 2 COOL – With Auxiliary Heat
| R | 24 VAC Power |
| O/B | Changeover Valve [Note 2] |
| L | Optional System Fault Monitor |
| AUX | Auxiliary Heat Relay (3rd Stage Heating) |
| Y1 | Compressor Call (1st Stage Heating/Cooling) |
| Y2 | Compressor Call (2nd Stage Heating/Cooling) |
| E | Emergency Heat Call |
| G | Fan Call |
| C | 24 VAC Transformer Common [Note 1] |
NOTES
- Wiring to the C terminal is required only for thermostat power.
- O (Cool active) or B (Heat active) must match the zone panel configuration (section 4).
Optional Supply Air Sensor Wiring
To provide high/low limit protection, install the optional supply air sensor in the supply air plenum at least 2-3 feet after the heat exchanger and coil. Make sure there are no zone dampers before the supply air sensor. Connect the supply air sensor to the zone panel as shown.
Transformer Wiring

Conventional Equipment Wiring
NOTE: For a heat pump system, see Section 3.6.
Connect a conventional heating system to the zone panel as shown. For a single stage heating and cooling system, the 2nd and 3rd stage connections are not used. For a system using a dual transformer, remove jumper Rc to Rh (see Figure 3, page 4). Make sure the neutrals (common) are connected.
ALWAYS PROVIDE DISCONNECT AND OVERLOAD PROTECTION AS REQUIRED
1 HEAT / 1 COOL Equipment Set Equipment Type to SSC
| Rh | 24 VAC Power (Heating Transformer) [Note 3] |
| Rc | Cooling Transformer [Note 3] |
| W1 | Heat Call |
| Y1 | Cooling Call |
| G | Fan Call |
| C | 24 VAC Transformer Common |
2 HEAT / 2 COOL Equipment
Set Equipment Type to MSC
| Rh | 24 VAC Power (Heating Transformer) [Note 3] |
| Rc | Cooling Transformer [Note 3] |
| W1 | Heat Call Stage 1 |
| W2 | Heat Call Stage 2 |
| Y1 | Cooling Call Stage 1 |
| Y2 | Cooling Call Stage 2 |
| G | Fan Call |
| C | 24 VAC Transformer Common |
NOTES
[3] Remove J1 jumper for dual transformer systems. Transformer common must come from the cooling transformer.
Heat Pump Equipment Wiring
NOTE: For Conventional Systems, see Section 3.5
Connect a single or multi-stage heat pump system to the zone panel as shown. A conventional thermostat may be used with a heat pump system, however, emergency heat will be controlled by the panel emergency heat switch or the optional remote emergency heat switch. For a single stage system, the auxiliary heat control is not used. ALWAYS PROVIDE DISCONNECT AND OVERLOAD PROTECTION AS REQUIRED
1 HEAT / 1 COOL – No Auxiliary Heat Set Equipment Type to SSH
| Rh | 24 VAC Power (Heating Transformer) |
| Rc | Connected to Rh with Jumper |
| O/B | Changeover Valve [Note 4] |
| Y1 | Compressor Call (1st Stage Heating/Cooling) |
| G | Fan Call |
| C | 24 VAC Transformer Common |
2 HEAT / 2 COOL – No Auxiliary Heat Set Equipment Type to MSH
| Rh | 24 VAC Power (Heating Transformer) |
| Rc | Connected to Rh with Jumper |
| O/B | Changeover Valve [Note 4] |
| L | Optional System Fault Monitor |
| Y1 | Compressor Call Stage 1 (1st Stage Heating/Cooling) |
| Y2 | Compressor Call Stage 2 (2nd Stage Heating/Cooling) |
| G | Fan Call |
| C | 24 VAC Transformer Common |
2 HEAT / 1 COOL – With Auxiliary Heat Set Equipment Type to MSH
| Rh | 24 VAC Power (Heating Transformer) |
| Rc | Connected to Rh with Jumper |
| O/B | Changeover Valve [Note 4] |
| L | Optional System Fault Monitor |
| AUX | Auxiliary Heat Relay (2nd Stage Heating) |
| Y1 | Compressor Call Stage 1 (1st Stage Heating/Cooling) |
| E | Emergency Heat Call |
| G | Fan Call |
| C | 24 VAC Transformer Common |
3 HEAT / 2 COOL – With Auxiliary Heat Set Equipment Type to MSH
| Rh | 24 VAC Power (Heating Transformer) |
| Rc | Connected to Rh with Jumper |
| O/B | Changeover Valve [Note 4] |
| L | Optional System Fault Monitor |
| AUX | Auxiliary Heat Relay (3rd Stage Heating) |
| Y1 | Compressor Call (1st Stage Heating/Cooling) |
| Y2 | Compressor Call (2nd Stage Heating/Cooling) |
| E | Emergency Heat Call |
| G | Fan Call |
| C | 24 VAC Transformer Common |
NOTES: [4] O (cool active) or B (heat active) is selected in the configuration menu (section 4).
Configuration
Use the following instructions to configure the zone panel. The zone panel is factory set for a 1 Heat / 1 Cool Conventional System with Conventional Thermostats (Heat Call on W, Cool Call on Y). If the zone panel is installed on other systems, you will need to make configuration changes described in this section.
To start configuration:

- Press SETUP and hold for 3 seconds.
- The panel backlight will turn on and the display will change.
- Change setting if needed by pressing SELECT.
- To save and advance to the next setting press the NEXT button.
- Repeat steps 3-4 as necessary.
- Press HOLD FOR BACK for 3 seconds to go back a step.
- Press HOLD FOR EXIT for 3 seconds to exit setup menu.
The configuration settings must be properly set in order for this zone panel to operate correctly. The Installer Settings will automatically adjust so that settings that do not apply to this installation will be skipped.
All settings are shown below with comments.
| No. | Installer Setting (Notes follow table) | Display Indicator | Factory Default | Setting Options | Comments (More information follows this table) |
| 1 | System Type | SYSTEM | SSC | SSC MSC SSH MSH | Select for 1H/1C conventional equipment [Note 1] Select for 2H/1C up to 2H/2C conventional equipment [Note 1] Select for 1H/1C Heat Pump equipment Select for 2H/1C up to 3H/2C Heat Pump Equipment |
| 2 | Thermostat Type | TSTAT TP | CON | CON HP | Select for all thermostats conventional type Select for all thermostats heat pump type |
| 3 | 1st Stage Fan Control | FAN 1 | GAS | GAS EL | Select for 1st Stage fan controlled by equipment Select for 1st Stage fan controlled by panel |
| 4 | Auxiliary Fan Control | AUX FAN | EL | GAS EL | Select for auxiliary fan controlled by equipment Select for auxiliary fan controlled by panel |
| 5 | Reversing Valve Control | REV VAL | O | O B | Select for cool active reversing valve Select for heat active reversing valve [Note 2] |
| 6 | Auxiliary Stage Compressor Heat Lockout | COMP LOC | OFF | OFF ON | Select for Compressor runs with Auxiliary Heat Call Select for Compressor is off with Auxiliary Heat Call |
| 7 | Zone Fan Purge Time | PURGE | 90 | 300 240 180 120 90 60 30 0 | Select for 300 second purge into calling zone at call end Select for 240 second purge into calling zone at call end Select for 180 second purge into calling zone at call end Select for 120 second purge into calling zone at call end Select for 90 second purge into calling zone at call end Select for 60 second purge into calling zone at call end Select for 30 second purge into calling zone at call end Select for no purge into calling zone at call end |
| 8 | Supply Air Sensor Control | SA SENS | YES | YES NO | Select for Active Supply Air Sensor Select for Inactive Supply Air Sensor [Note 3, 4] |
| 9 | Temperature Scale* | DEG | DEG F | DEG F DEG C | Select for Fahrenheit display Select for Celsius display |
| 10 | Plenum High Limit Cutout | PLENUM SET HI LIMIT | 135 Conv 120 HP (60˚C Conv) (50˚C HP) | 100 to 180
(40 to 80˚C) | Select the maximum Supply Air Temperature the system can reach before shutting off all heating stages [Note 4, 5] |
| 11 | Plenum Low Limit Cutout | PLENUM SET LO LIMIT | 45 (8˚C) | 30 to 60 (0˚C to 15˚C) | Select the minimum Supply Air Temperature the system can reach before shutting off all cooling stages [Note 4, 5] |
| No. | Installer Setting (Notes follow table) | Display Indicator | Factory Default | Setting Options | Comments (More information follows this table) |
| 12 | Short Cycle Protection | SCP | 5 | 5 to 0 | Selects a compressor short cycle protection delay of 5, 4, 3, 2, 1 or zero minutes after a compressor call |
| 13 | Outdoor Sensor Compressor Balance Point | COM BAL | NO | NO 0 to 50 (-18˚C to 10˚C) | Disables Compressor Balance Point Control Selects a Compressor Balance Point of 0 to 50° F (-18˚ C to 10˚ C) [Note 6, 7] |
| 14 | Outdoor Sensor Auxiliary Heat Balance Point | AUX BAL | NO | NO, 40 to70 (4˚C to 22˚C) | Disables Auxiliary Heat Balance Point Control Selects an Auxiliary Heat Balance Point of 40 to 70° F (4˚ C to 22˚ C) [Note 6, 7] |
| 15 | Equipment Staging | STAGING | ZON | ZON TIM TST | Select to stage on number of zones calling (Setting 16) Select to stage on Zone Panel Timer Select to stage on Thermostat Staging Calls [Note 8] |
| 16 | Equipment Staging Lock | STAGLOK | 2 | 2, 3 | Selects the number of zones that must call before the equipment will upstage Zone Count (setting 15 = ZON) |
| 17 | Aux Heat Upstage Time | STAGTIM | 10 | 5, 10, 15, 20, 25, 30 | Selects an Aux Heat upstage timer of 5-30 minutes (second stage for conventional systems) [Note 9] |
| 18 | Second Stage Fan Control | G2 FAN | ZON | ZON STG | Select to Turn on Second Stage Fan on number of calling zones (Setting 19) Select to Turn on Second Stage Fan when second stage is activated |
| 19 | Second Stage Fan | G2 ZONES | 2 | 2, 3 | Select the number of zones that must call before the second stage fan will turn on [Note 11] |
| 20 | Priority Zone | PRIORTY | 1 | OFF 1 to 3 | Select to have opposite calls answered in any zone Select zone 1 to 3 to limit calls so equipment will only service call matching last call of zone 1-3 |
| 21 | Opposite Mode Timer | OP MODE | 15 | 15 to 60 | Select the number of minutes to delay system changeover when zones are calling for heat and others zones are calling for cooling. |
| 22 | Zone to Activate Emergency Heat | EM HEAT | 1 | NO 1 to 3 | Select to disable Emergency Heat from Thermostats Select which Zone on the main panel is allowed to call for emergency heat. [Note 10] |
NOTES – Configuration
- Set thermostats to conventional.
- O/B selection on equipment must match thermostat O/B selection.
- Disable will not show plenum temperature.
- Only available if optional supply air sensor is connected (Model 149156)
- Only available if supply air sensor is enabled.
- Only available if MSH system type is selected.
- Only available if the outdoor sensor is connected.
- Multi-stage thermostats must be used.
- For multi-stage heat pump equipment, Y2 is automatically upstaged 5 minutes after the initial call for heating and cooling.
- The thermostat type in option 2 must be heat pump.
- Only available if ZON was selected in Setting 18.
System Checkout
After the wiring and configuration is complete, built in automatic zone panel tests may be used to verify equipment, damper, and panel operation.
To start the panel Test Mode:
- Ensure all wiring is complete and power has been applied to the main and expansion panels
- Press TEST for 3 seconds and release
- Press SELECT to turn the test on and off
- Press NEXT to move on to the next test
- Press HOLD FOR EXIT for 3 seconds to exit test mode
The following tests are available in Test Mode:
Heating Stage(s) Test ON or OFF
This test turns on all heating stages (including O-B for heat pump configurations) the system fan, and commands all dampers to open. The heating stages will by energized by the type of system configured in the installer settings. A heat pump configuration will have all compressor calls and Auxiliary Heat. A conventional configuration will call all conventional heating stages.
Press SELECT to Test or NEXT to advance to the next test.
Cooling Stage(s) Test ON or OFF
This test turns on all cooling stages (including O-B for heat pump configurations), the system fan, and also commands all dampers to open. Press SELECT to Test or NEXT to advance to the next test.
Fan Stage(s) Test ON or OFF
This test turns on all fan stages and commands all dampers to open. Press SELECT to test or NEXT to advance to the next test.
Damper Control Test PO or PC
This test powers all dampers open or closed. Press SELECT to test or NEXT to return to the first test.
Operation
The Zone Panel has LED’s and a built-in display to tell the installer and the system owner the current operating mode of the panel. Refer to the figure below and the following descriptions of the panel LED’s for operation information.
| Panel Status LED | ||
| Panel Power | Green | Flashing Green When Normal |
| Equipment LED’s | ||
| Rh | Red | 24 VAC at equipment Rh Terminal |
| Rc | Red | 24 VAC at equipment Rc Terminal |
| Y1 | Yellow | First Stage Compressor Call Active |
| Y2 | Yellow | Second Stage Compressor Call Active |
| G | Green | First Stage Fan Call Active |
| G2 | Green | Second Stage Fan Call Active |
| W1/E/AUX | White | W1, E or AUX Call Active |
| W2/O/B | White | W2 or Reversing Valve Call Active |
| L | Yellow | Input from Equipment Check is Active |
| Thermostat LED’s (3 Positions) | ||
| R | Red | 24 VAC available to Thermostat |
| Y1 | Yellow | Thermostat First Stage Compressor Call |
| Y2 | Yellow | Thermostat Second Stage Compressor Call |
| W1/E/AUX | White | Thermostat Call for W1 or E or AUX |
| W2/O/B | White | Thermostat Call for W2, O or B |
| G | Green | Thermostat Fan Call |
| Damper LED’s (3 Positions) | ||
| Power Close / Power Open | Red / Green | Red On Damper Closed; Green on Damper Open No light when wiring short detected |
In addition to LED’s, the zone panel has a full function built-in backlit display panel that provides information on the current operations of the zone panel. When the zone panel is running in normal operation, the display is updated continuously to show the system operating parameters. The system will show the following status screens on the display.
HEAT CALLS
Number of heat calls currently being serviced. Check the panel LED if it is necessary to determine exactly which zones are calling for heat operation. If Auxiliary Heat or Emergency Heat calls are active, the display will replace heat calls with Auxiliary or Emergency Heat Calls.

COOL CALLS
Number of cool calls currently being serviced. Check the panel LED if it is necessary to determine exactly which zones are calling for cooling operation.
FAN CALLS
Number of fan calls currently being serviced. Check the panel LED if it is necessary to determine exactly which zones are calling for fan operation.
Equipment Plenum Temperature (PLENUM TEMP)
When the optional plenum air temperature sensor is installed and enabled, the zone panel will display the Plenum temperature in the range of 30 – 200˚ F (-1 – 93˚C). Plenum Temperatures outside this range indicate an equipment error. See Section 7 Error Conditions for a further explanation.
NOTES: When no zones are calling, the panel will command all dampers to open.
- For maximum energy conservation, a purge will occur at the end of each call.
- No calls will be answered until the purge is complete.
- Dampers will not close if the plenum temperature sensor is not connected or is not functioning properly.
Emergency Heat Selection (Multi-stage Heat Pump Systems Only) Emergency Heat can be selected at the main panel or from a Heat Pump Thermostat wired to the main panel. No cooling calls will be answered if emergency heat is switched on.
To select Emergency Heat from the main panel:
- Press and release the EM HEAT button located below the main display.
- The display will update from HEAT CALLS to EM HEAT CALLS and will show COOL DISABLE to indicate that no compressor calls will be answered.
- To stop Emergency Heat, press the EM HEAT button again.
- The display will update from EM HEAT CALLS to HEAT CALLS and COOL CALLS will return.
To select Emergency Heat from a thermostat
- Set Emergency Heat Thermostat to Emergency Heat switch position (only one thermostat can control Emergency Heat)
NOTE: Configuration setting number 22 in section 4 selects which thermostat is used to activate Emergency Heat. - Raise heat setting on Emergency Heat Thermostat to create Emergency Heat call.
- The zone panel display will update from HEAT CALLS to EM HEAT CALLS and will show COOL DISABLE to indicate that no compressor calls will be answered.
- To stop Emergency Heat, set the Emergency Heat Thermostat to a non-emergency heat position or lower the temperature on the Emergency Heat Thermostat to end the emergency heat call.
- The zone panel display will update from EM HEAT CALLS to HEAT CALLS and COOL CALLS.
NOTE: Activating Emergency Heat Mode disables cooling calls from all zones and answers all heating calls with Emergency Heat.
Error Conditions
The zone panel continually monitors various components of the zone system and will display a message when the following monitored conditions are detected.
COOL DISABLE
Cooling is disabled when Emergency Heat has been selected on a heat pump system
Selecting emergency heat from a thermostat (See Installer Option 21) in heat mode will disable compressor cooling in all zones. To enable cooling, turn Emergency Heat Off at the panel and/or the priority thermostat calling for emergency heat and make a call other than emergency heat from the priority thermostat.
High Plenum Temperature (PLENUM HI)
Displayed when the Plenum Temperature is exceeded during equipment heating operation. All heating stages will be turned off and the fan will be turned on until the plenum temperature returns to the normal range. Service the system immediately to prevent potential damage.
Low Plenum Temperature (PLENUM LO)
Displayed when the Plenum Temperature is too low during equipment cooling operation. All cooling stages will be turned off and the fan will be turned on until the plenum temperature returns to the normal range. Service the system immediately to prevent potential damage.
Plenum Sensor Bad
Displayed when an error has been detected with the plenum sensor. This error must be corrected by servicing the zone panel plenum sensor. If the sensor is not operating correctly, the zone panel will not call for additional stages of heating or cooling. You can also disable the plenum sensor (see section 4).
Outdoor Sensor Bad (ODTSENS)
Displayed when an error has been detected with the outdoor sensor. This error must be corrected by servicing the zone panel outdoor sensor. If the outdoor sensor is not operating correctly, the zone panel will not use outdoor balance point control for heating calls.
Limited Warranty
When installed by a professional contractor, this product is backed by a 5 year limited warranty. Limitations apply. For limitations, terms and conditions, you may obtain a full copy of this warranty:
- Visit us online: www.braeburnonline.com/warranty
- Phone us: 866.268.5599
- Write us: Braeburn Systems LLC
2215 Cornell Avenue Montgomery, IL 60538
Braeburn Systems LLC
2215 Cornell Avenue • Montgomery, IL 60538 Technical Assistance: www.braeburnonline.com Call us toll-free: 866-268-5599 (U.S.)
630-844-1968 (Outside the U.S.)
©2020 Braeburn Systems LLC • All Rights Reserved.





















