Honeywell Excel 5000 General Purpose Cabinet

BEFORE INSTALLATION
The Honeywell General Purpose Cabinet is constructed from a separately ordered Rough-in Ring, Subpanel and Door Assembly with a lock (see Fig. 1). The Cabinets are available in two sizes: half-size and full-size.
To prepare for installation:
- See job drawings for Cabinet locations and arrangements.
- Install Cabinet on a vibration-free surface in a clean, dry area.
- Ensure that the location is visible and accessible for maintenance.
- Verify that the Ring is square. (Ring is square if diagonal measurements are equal. If not equal, apply pressure to longer diagonal corners to force Ring back into square.)
NOTES:
- Ring must be square for Door and Latch to operate properly.
- Do not install Subpanel or Door Assembly on Ring until construction is complete.

INSTALLATION
Fig. 2 and 3 show Ring dimensions and mounting hole locations/sizes. Fig. 4 and 5 show Ring conduit knockout locations/sizes. Two 2-3/8 in. (60 mm) square knockouts are adaptable to a modular raceway system.
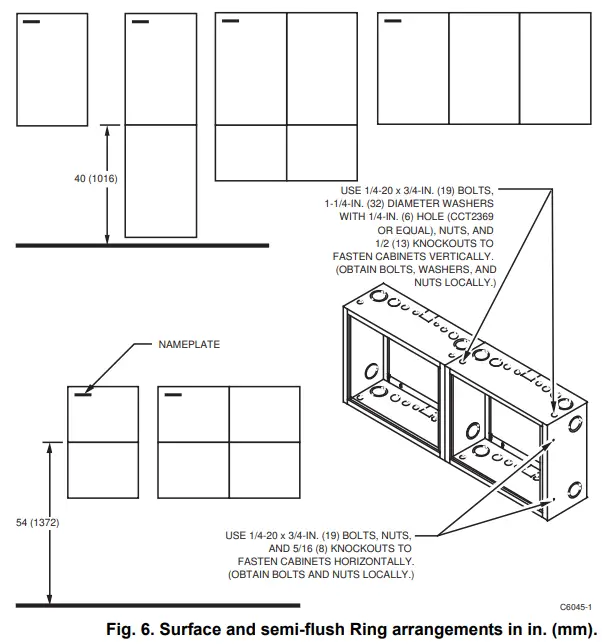
Rings mount in both vertical and/or horizontal clusters and interconnect through corresponding knockouts (see Fig. 6).
Depending on job progress, Ring can be installed immediately and the Door Assembly and Subpanel attached later. The 14506636-001, -002 Door Assembly installs with the door opening on the left or right side. Install the Ring so that the Door Latch is on the appropriate side. However, the Door
Latch can be moved if the Door orientation changes after Ring installation.
Ensure that the conduit entering the Ring does not permit condensation drainage into the internal circuitry. Where this is a possibility, bend the conduit and drill a hole at the lowest point so that water drains out before reaching the Ring.
For wire runs between Rings that are bolted together, remove all necessary (present and future) conduit knockouts before the Rings are bolted together and mounted. Also remove the necessary 5/16 in. (8 mm) and 1/2 in. (13 mm) bolt-hole knockouts.
Mounting
The cabinet/enclosure must be attached to a solid surface (masonry or concrete slab) or the wall framing members. The cabinet attachment must be securely anchored to the wall and be designed to hold at least four times the weight of a full loaded cabinet. Enclosure mounting must be in accordance with all applicable codes. The maximum weight of the enclosure and its contents must not exceed 100 lbs. Unless otherwise noted, the top of the cabinet is positioned at the top of the drawings in this document. The cabinet must be mounted in the position shown.
Drywall
To mount:
- Use at least four mounting points and all of the enclosure mounting holes must be aligned over the center of the studs.
- Use a minimum 1/4 in. (6 mm) x 2-1/2 in. (64 mm) lag screw with flat washer and lock washer into center of stud.
Concrete
To mount:
- Establish a minimum of four mounting points in the concrete and align with the cabinet mounting holes at the four corners of the enclosure.
- Install carbon steel wedge anchors with 1/4 in. diameter x 2-1/4 in. long (57 mm) minimum screw (ITW Ramset/ Red Head Turbot or equal), per the manufacturer’s instructions, to a depth of at least 1-15/16 in. (49 mm).
- Bolt the four corners of the enclosure to the wall using this hardware and a 1/4 in. (6 mm) steel split lock washer.
NOTE: Mounting hardware must meet U.S. Government G.S.A. specification FF-S-325 Group II, Type 4, Class 1.
Masonry
To mount:
- Establish a minimum of four mounting points in the masonry and align with the cabinet mounting holes at the four corners of the enclosure.
- Install carbon steel sleeve anchors designed to accept 1/4 in. diameter (6 mm) x 1-1/2 in. long (38 mm) screws (ITW Ramset/Red Head Dynablot or equal), per the manufacturer’s instructions, to a depth of at least 1-1/4 in. (32 mm)
- Bolt the four corners of the enclosure to the wall using this hardware and a 1/4 in. (6 mm) steel split lock washer.
NOTE: Mounting hardware must meet U.S. Government G.S.A. specification FF-S-325 Group II, Type 3, Class 3.
Other mounting methods are allowed to meet the construction methods used in the field, provided they are at least as strong as the methods detailed above.
Alternative mounting methods of equal or greater strength are allowed provided they also meet or exceed all local code requirements.
Surface Mounting
To mount:
- Use the Ring as a template and mark and drill four mounting holes (see Fig. 3).
- Use proper hardware for wall construction involved.
NOTE: If construction is not complete, install a dirt barrier on the front of the Ring (scrap cardboard or plastic sheet), to block debris. - Continue with the Subpanel Mounting section. To install the Door Assembly, see the Door Mounting section.
Semi-flush Mounting
See Fig. 3 for rough-in hole dimensions. Ring mounting depth in wall (see Fig. 7) depends on the wall construction and job specifications.
- Use proper hardware for wall construction involved and secure Ring in place.
NOTE: If construction is not complete, install a dirt barrier on the front of the Ring (scrap cardboard or plastic sheet), to block debris. - Continue with the Subpanel Mounting section. To install the Door Assembly, see the Door Mounting section.





Subpanel Mounting
After construction is complete, remove any debris and install the Subpanel (see Fig. 8).

Door Mounting
To mount:
- Insert a solid hinge pin on the lower Door into the hinge pin hole on the appropriate side of the lower Ring (see Fig. 9).
- Slide spring-loaded hinge pin on the upper Door toward center of the Door.
- Align the spring-loaded hinge pin with the hinge pin hole on the upper Ring and release it.
- Ensure the hinge pins are completely engaged in the hinge pin holes.
- See Door Adjustments section if the Door, Door Latch, or Lock need adjustments.
- Slip the connector tab of the enclosure door ground strap over the connector stud on the inside wall of the enclosure (Fig. 10). Secure with the keps nut provided.
- Do not apply power to the system until the installation is checked by a Honeywell representative.
- Close and lock the enclosure door.


Door Adjustments
To mount:
- Adjust the Door Latch (Fig. 11) and Lock (Fig. 12) to ensure a tight fit.
- Line up inside corners of Door, both top and bottom, with front surface of Ring (see Fig. 13) to eliminate door rattle and add a little spring for opening.
- Bend center of Door to provide a gap of 1/4 in (6 mm) for a half-size Cabinet or 3/8 in. (10 mm) for a full-size Cabinet.


Tamper Switch (Optional)
To mount:
- Remove the Door Latch (Fig. 11) and save the two 6-32 x 1/4 in. (6 mm) screws. The two nut and lock washer assemblies can be discarded.
- Remove the two screws and lock washers from the Tamper Switch (see Fig. 14).
- Save the two lockwashers; discard the two screws.
- Assemble a lock washer (from Tamper Switch) on each screw (from Door Latch).
- Install the Door Latch and Tamper Switch (Fig. 14).
NOTE: For ease of installation, install the top screw and lockwasher first. - Tighten both screws and check for proper switch operation (plunger moves freely).
- Loosen lock-nut and adjust plunger screw for proper Tamper Switch operation.
- Hold plunger screw and tighten lock-nut.
- Wire Tamper Switch according to job drawings.

WIRING AND PIPING
All wiring must conform to applicable local codes, ordinances and regulations and individual product Class II and Class III installation wiring instructions.
Fig. 4 and 5 show the conduit knockout sizes and locations for half-size and full-size Rings.
REPLACEMENT PARTS
The following table lists replacement parts for the General Purpose Cabinet.
| Part Number | Description |
| 14505159-001 | Tamper Switch. For use on all Rings. |
| 14505928-001 | Lock and Key. Complete lock replacement set. Includes 14506779-001 Finger Pull. |
| 14506635-001 | Ring. Half-Size. Rough-in Ring for mounting Subpanel-mounted devices. |
| 14506635-002 | Ring. Full-Size. Rough-in Ring for mounting Subpanel-mounted devices. |
| 14506636-001 | Door, Half-Size Standard steel. Includes lock, key, FCC label and Honeywell nameplate. |
| 14506636-002 | Door, Full-Size Standard steel. Includes lock, key, FCC label and Honeywell nameplate. |
| 14506636-006 | Door, Full-Size, vented. |
| 14506636-007 | Door, Full-Size, vented, bubble, welded. |
| 14506747-001 | Subpanel, galvanized steel, Half-Size. Used to mount control equipment within Ring. |
| 14506747-002 | Subpanel, galvanized steel, Full-Size. Used to mount control equipment within Ring |
MAINTENANCE PROCEDURES
The equipment mounted in this enclosure must be maintained in accordance with the system documentation and procedures and practices contained in applicable NFPA and UL standards. For service, contact your local Honeywell Home & Building Control office as listed in the phone book, or contact a regional office as shown at the end of this document.
Customer Support
Automation and Control Solutions
Honeywell International Inc. 1985 Douglas Drive North Golden Valley, MN 55422
Honeywell Limited-Honeywell Limitée
35 Dynamic Drive
Scarborough, Ontario
M1V 4Z9
Honeywell International
Control Products
Honeywell Building
17 Changi Business Park Central 1
Singapore 486073
Honeywell Europe S.A
3 Avenue du Bourget
1140 Brussels
Belgium
Honeywell Latin American Region
480 Sawgrass Corporate Parkway Suite 200
Sunrise FL 33325
www.honeywell.com






























