CLAUDGEN HE7433 Screen-Zone Warm Air Curtains

Overview
Please read this guide carefully and retain for future use and maintenance. This appliance has been designed and manufactured to the highest international standards, however, care must be taken for optimal results and safety. This appliance also meets the requirements of EU Directive 2004/106/ EC for EMC and 2009/125/EC Directive.
Safety & Care
The appliance is not intended for use by persons (including children) with reduced physical, sensory or mental capabilities or lack of experience and knowledge unless they have been given supervision or instruction concerning use of the appliance by a person responsible for their safety. Children should be supervised to ensure that they do not play with the appliance.
Warning
- Do NOT site the appliance in a corner.
- Do NOT handle the appliance with wet hands.
- Do NOT use the appliance in workshops or rooms where excessive dust is generated or present.
- Ensure that nothing is pushed into any aperture of this appliance.
- Do NOT touch outlet grille when the appliance is in use.
- Do NOT cover or restrict any aperture of the appliance when in use.
- Do NOT use the appliance if damaged.
- Do NOT leave the appliance unattended where young children are present.
Models
This unit is a 1035mm 6 or 9kW air curtain heater designed for mounting above entrances but may also be used as a space heater. It is supplied complete with remote mounting control box.
Thermal cut out
The units are protected from overheating in the event of fan failure or an obstruction of the free airflow, by thermal cut outs. If this happens the thermal cut outs effectively switch off the appliance. The appliance will not operate until the thermal cut outs are manually re-set. This should be done by a competent electrician.
Maintenance
ALWAYS ENSURE THAT THE MAIN EXTERNAL ELECTRICITY SUPPLY IS SWITCHED OFF BEFORE SERVICING OF THIS SCREEN-ZONE HEATER.
To obtain the best results from the heater it is essential to avoid the accumulation of dust and dirt within the unit and on the inlet and discharge grilles. Regular cleaning is necessary with particular attention to the fronts and backs of the fan motor blades. Cleaning of the fan is best carried out with a soft brush.
Electrical connections
The heater is suitable for connection to a 400-415 volt 3 phase 50Hz supply. With modification the unit can also be on a 230-240 volt 50Hz supply. For 230-240 volt single phase operation, link terminals L1, L2 and L3 on the main input terminal block and connect the supply to L. The heater consumes approximately 6 or 9kW on the full heat setting. The connections to be made between the heater and the remote control box are shown on the next page. An earth terminal is adjacent to the terminal block and is clearly marked with the symbol . For safety reasons a good earth connection must ALWAYS be made to the heater and control box.
The unit must be wired in accordance with IEE regulations for the Electrical Equipment of Buildings and the installer should ensure that a suitable fused isolating switch is connected in the mains supply.
Controls
The unit is designed to provide 2 levels of heat, 4.5kW and 9kW for HE7433, 3kW and 6kW for HE8326 together with 2 fan speeds, normal and boost. The remote control box houses 4 single pole switches to give the following functions:
SWITCH 1 (left-hand): ON/OFF
SWITCH 2: FAN SPEED CONTROL
SWITCH 3: ½ HEAT ON/OFF
SWITCH 4: ½ HEAT ON/OFF

Mounting
When mounted over a standard shop doorway the unit should be fitted as low as possible and not more than 2.3 meters from ground level. A single unit will provide reasonable coverage for a one metre doorway, and for wider doorways units can be mounted end to end.
The unit should be positioned so that the airflow is not obstructed by any part of the doorframe. When installed the top of the heater case should be a minimum of 200mm from the ceiling.


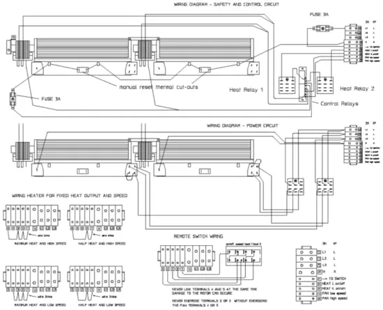
Remote control box switch connections

Installation
Carefully unpack the unit and remove the top cover fixing screws. The heater may be mounted using the mounting bracket provided.
Loosen mounting screws, allowing the mounting bracket to be removed from the unit. Making sure that the mounting bracket is horizontal, fix the bracket to the wall using 4 x No 8 wood screws. Place the unit on the mounting bracket ensuring the washers are spaced as shown on Fig 2 (a plain washer either side of the mounting bracket).
Tighten screws to hold the unit at the required angle.

To replace a switch in the control box
- Switch off the mains supply
- Remove the switch box cover.
- Disconnect the wiring to the switch.
- Release the spring clips and push out the switch.
- Fit the replacement switch, reconnect the wiring and replace the cover.
Spares
It is essential when ordering spares or replacement parts to state the model number HE7433 and the serial number on the rating label fixed to the top of the unit.
NB: DO NOT COVER ANY OF THE AIR INLET OR OUTLET GRILLES AT ANY TIME.
In the interest of progress the Company reserves the right to vary specifications from time to time without notice. The material listed is offered subject to the Company’s General Conditions of Sale, a copy of which can be obtained on request.
Wall bracket assembly
The heater may also be mounted directly onto a suitable wall or bearer by four No. 8 wood screws through the holes provided in the back of the unit casing. Keyhole slots are provided for the top two fixings (fig 1).
Noise levels
Sound pressure levels dBA are measured at a 3m distance with a single air curtain mounted at its maximum mounting height, operating in a room with average acoustic characteristics as defined in CIBSE Guide B5 (reverberation time 0.7s at 1kHz) and a room size equivalent to 8 air changes per hour (ac/h). The dB meter must not be in the direct airflow of the heater. Care needs to be taken when selecting air curtains for an installation as noise levels can be several dB higher if the mounting height is reduced, if the room is more `live’ (i.e. hard surfaces, no furnishings or absorbent materials), if the room is smaller than 8 ac/h equivalent or a combination of these factors. Noise levels will also increase if more than one air curtain is installed at the same doorway (e.g. +3dBA for 2 equal point sources: direct field).
Wiring diagram

CUSTOMER HELPLINE
Should you need any advice on the use of your new Consort product please contact our Helpline:
Consort Equipment Products Limited
Thornton Industrial Estate, Milford Haven, Pembrokeshire, SA73 2RT
Tel: 01646 692172
Fax: 01646 695195
Email: [email protected]
Web: www.consortepl.com
Operation hours: Mon to Thu 8.30am to 4.30pm | Fri 8.30am to 3.30pm
![]()



















