STAHL 275143 Ex i Terminal Box
Technical Data
| Explosion Protection | |
| Scope of validity | European Union (ATEX) IECEx |
| Application range (zones) | 1 2 21 22 |
| IECEX gas certificate | IECEx PTB 09.0048 |
| IECEx gas explosion protection | Ex ia ib IIC T6 Gb |
| IECEX dust certificate | IECEx PTB 09.0048 |
| IECEx dust explosion protection | Ex tb IIIC T80 °C Db |
| ATEX gas certificate | PTB 09 ATEX 1108 |
| ATEX gas explosion protection | E II 2 G Ex ia ib IIC T6 Gb |
| ATEX dust certificate | PTB 09 ATEX 1108 |
| ATEX dust explosion protection | E II 2 D Ex tb IIIC T80 °C Db |
| EAC certificate | TS RU S-DE.AA71.B.00121 |
| EAC gas explosion protection | 7 1Ex ia IIC T6…T5 Gb X |
| EAC dust explosion protection | 7 Ex tb IIIC T80°…T95°C Db X |
| Certificates | ATEX (PTB), Brazil (ULB), China (NEPSI), EAC (ENDCE), IECEx (PTB), India (PESO), Korea (KGS), Taiwan (ITRI) |
| Ship approval | DNVGL |
| Electrical Data | |
| Rated operational voltage AC | 0 – 60 V |
| Ambient Conditions | |
| Ambient temperature | -60 °C … +75 °C |
| Mechanical Data | |
| IP degree of protection (IEC 60529) | IP66 |
Installation Equipment
| Mechanical Data | |
| IP degree of protection (IEC 60529) | IP66 |
| Enclosure material | Stainless steel 1.4301, (AISI 304), brush finished |
| External protective conductor connection | M8 |
| Silicone-free | No |
| Connection cross-section | 2.5 mm² |
| Cover | Screw-on cover |
| Cover thickness | 2 mm |
| Dimensions (WxHxD) | 360 x 360 x 150 mm |
| Width | 360 mm |
| Height | 360 mm |
| Depth | 150 mm |
| Material note | special version on request |
| Wall thickness | 1.5 mm |
| Weight | 4.266 kg |
| Weight | 9.4 lb |
| Components | |
| Terminal rail | 35 x 301 mm (1x) |
| Terminal rail | (1x) |
| Type of terminals 1 | 1 x Phoenix UT 2-conductor, 2.5 mm², blue |
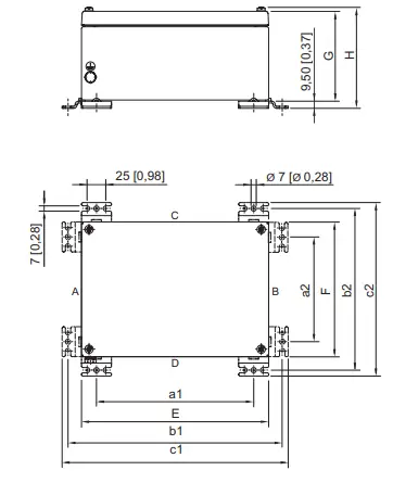
Dimensional Drawings (All Dimensions in mm [inches]) – Subject to Alterations
| Width [mm] | Height [mm] | Depth [mm] | Total depth [mm] | Fixing dimensions [mm] | |||||
| E | F | G | H | a1 | a2 | b1 | b2 | c1 | c2 |
| 360.000 | 360.000 | 150.000 | |||||||
Accessories
Assembly kit screw hinge
![]() | Retrofittable hinge for enclosure up to max. 360 x 360 mm | 275739 |
We reserve the right to make alterations to the technical data, dimensions, weights, designs and products available without notice. The illustrations cannot be considered binding






















