IDEC EC2B-B Control Stations Instruction Manual

EC2B-B Increased Safety Boxes
UL and c-UL Listed
Confirm that the delivered product is what you have ordered. Read this instruction manual to make sure of correct operation. Make sure that the instruction sheet is kept by the end user.
Safety Precautions
In this operation instruction manual, safety precautions are categorized in order of importance to Warning and Caution:
![]()
Warning notices are used to emphasize that improper operation may cause severe personal injury or death.
![]()
Caution notices are used where inattention might cause personal injury or damage to equipment.
![]()
(General requirements)
- Use the EC2B-B box that are applicable for use in hazardous areas, otherwise explosion or fire hazard may result.(Hazardous area: potentially explosive atmosphere where explosive gas or vapor may exist) Install EU2B control units on the EC2B-B box. When a control unit is not installed on the mounting hole of the EC2B-B box, install the EU9Z-BP control unit mounting hole plug or other Class I, Zone 1, AEx e IIC and Class I, Zone 1, Ex e IIC hole plug. To use the EC2B-B box as explosion-protection electric equipment, the EC2B-B has to be certified as an explosion-protection equipment.
- EC2B-B box can be installed only in zones 1, 2 and division 2. Do not use in zone 0 and division 1.
- Special expertise is required to transport, install, wire operate, maintain, and inspect the EC2B-B box. People without such expertise must not use the EC2B-B box, otherwise damage or accident may result.
- Do not disassemble, repair, or modify(hole processing etc.) the EC2B-B box, otherwise damage or accident may result.
(Installlation)
- To use the EC2B-B box as explosion-protection electric equipment, the grounding terminal must be installed, otherwise electric shock, fire hazard, or explosion may result.
![]()
(General requirements)
- To use the EC2B-B box as explosion-protection electric equipment, do not place any obstacles in front of the nameplate.
- Do not remove the nameplate.
(Transportation)
- Be careful not to drop or topple the EC2B-B box during transportation.
(Unpacking)
- Be sure to open the carton the right way up, otherwise damage or personal injury may result.
Product Structure
(1) Type Numbers

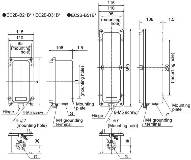
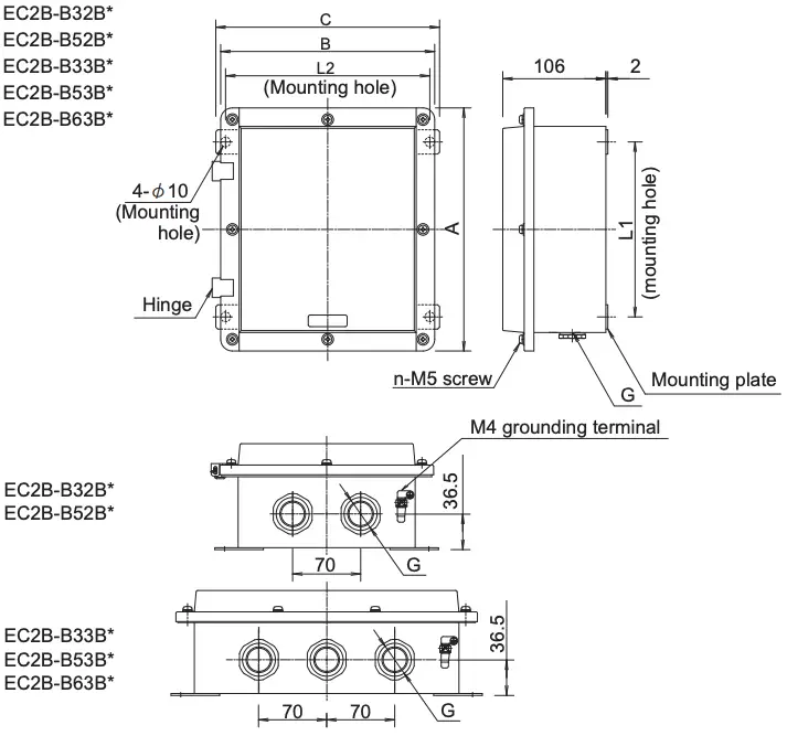
(2) Description and Dimension
1) Dimension



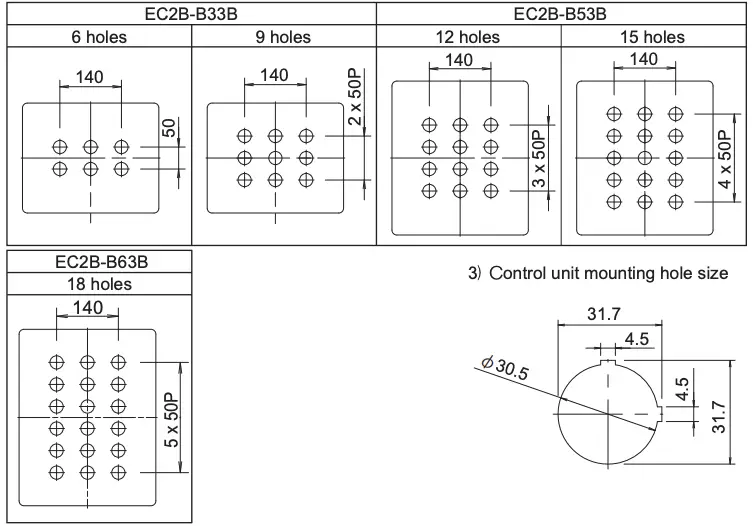
2) Control unit mounting hole centers


(3) Attachments
1) Instruction manual (for all applications)・・・・・・・・・・・・・・・・・・・・・1
Product Specifications

Note 1: Certified for use in Zone 1, 2 and Division 2.
Note 2: Use cable and cable glands, or conductors in conduit with 80℃ or higher rated, or suitable condition and service temperature.
Unpacking
Check that the product is what you ordered, and that there are no damages on parts.
Contact your sales representative if any parts are missing or damaged.
Notes on Operation
( To use the EC2B-B box as explosion-protection electric equipment)
(1) Installation location
- Do not install the EC2B-B box in an environment higher than Type 4X protection degree.
- Ambient temperature: -20 to +50℃
(2) Installation
- Wall-mounting type Use four M6 bolts for 1-row type, four M8 bolts for 2 to 3-row types, or other methods with equivalent strength to install the control box.
The thickness of mounting plate is 1.5 mm for 1-row type, and 2 mm for 2 to 3-row types.
(See dimensions) - If bolts become loose due to vibration, use spring washers.
- If bolt corrosion occur, use anti-corrosion bolts or other countermeasures.
(3) Opening/ Closing the Cover
- Use a Phillips screwdriver to loosen cover mounting screws, while holding the unhinged side, open the cover slowly without exerting excessive force on the hinge.
- Before closing the cover, make sure of the following:
a) No foreign substances on the packing or joint surfaces
b) No displacement of the waterproof packing
c) Wires are not caught between the joint surfaces Then, close the cover slowly and tighten the cover mounting screws to a proper torque of 1.6 to 2.4 Nm.
(4) Mounting equipment (devices and glands)
Select correct models to meet your requirements.
(5) Limitation of the operating current
- The major heat source comes from the wiring which is connected to the box. Therefore, not only the operating current but wiring conditions (size, no. of wires, no. of wire bundles) may cause temperature rise.
When wiring, observe the following conditions.- Stranded wire: 16 to 14 AWG (1.5 to 2.5 mm2)
- Maximum no. of wires per bundle: 16
- Maximum operating current (Ith): 10A
(Note) However, determine the operating current so that the total heat value of 1 box is below 300 [A2×wires]
Also, when calculating the heat value, take the current fluctuation (10%) into consideration.
[ calculation example: EC2B-B51B* (10 circuit type) ]
①Apply 10A to 1 circuit, 1A to the remaining 9 circuits.:
{(10A×1.1)2×2 wires} +{(1A×1.1)2×18 wires} ≒264 (can be used. < 300)
②Apply 10A to 1 circuit, 2A to the remaining 9 circuits.:
{(10A×1.1)2×2 wires} +{(2A×1.1)2×18 wires} ≒ 329 (cannot be used. > 300)
- See the table below for the allowable operating current when applying current evenly to each box.

(*1) Make sure that the number of wires per bundle is below 16 by reducing the wiring or by jumper wiring. The maximum number of wires per bundle may need to be further reduced depending on the wire size, lead-in fitting, or conduit size.
(*2) The allowable current value (reference) when applying current evenly to all circuits of the maximum number of circuits.
Wiring
- Applicable wires
Stranded wire: 1.5 to 2.5 mm2, solid wire: φ1.2 to φ1.6 mm (AWG16 to 14)
(Note) (ET2A-8P) Connect 1 or 2 wires to one terminal.
(264-238: WAGO) Connect 1 wire or 1 ferrule to one terminal. - Applicable crimping terminal
(Note) Ring terminals cannot be used for IP20 clamping type terminal blocks.
(*1) Dimension after clamping
Recommended crimping terminal (WAGO)
Ferrule with insulating sheath: 216-204,
Ferrule without insulating sheath: 216-104, Crimping plier: 206-204 - Recommended tightening torque
ET2A-8P terminal block (M4): 1.0 to 1.3Nm
![]()
Incorrect wiring may cause fire hazard. Observe the following conditions.
- When using stranded wires, make sure that there are no wire whiskers.
<For IP20 terminal block (264-238: WAGO)> - When connecting solid wires or stranded wires directly, strip the insulation 8 to 9 mm and insert the wire all the way in.
- Make sure that ferrules are inserted all the way in.
- Leads connected to the terminals shall be insulated for the appropriate voltage and this insulation shall extend to within 1 mm of the metal of the terminal throat.
<For terminal block (ET2A-8P)> - Use insulated ring terminals for ET2A-8P terminal block.
Use only applicable crimping terminals and do not directly wire stranded wires or solid wires. - Use Listed pressure terminal connectors (ring type).
Protective Grounding
(To use the EC2B-B box as explosion-protection electric equipment)
Protective grounding must be performed according to the installation environment and rating requirements. Observe laws and regulations set by each country.
The internal grounding terminal shall be used for the equipment grounding connections and the external terminal is for a supplementary bonding connection where local codes or authorities permit or required such connection.
- Connect the M4 grounding terminal of the EC2B-B box to a proper ground (grounding resistance 10Ω maximum). When operating the EC2B-B box by connecting to circuits below 300V, the grounding resistance must be 100Ω maximum.
- When using cables, connect one of the cable cores to the ground.
Applicable wires : AWG16 to 8 - If the grounding terminal inside the box cannot be used, use M4 grounding terminals on the outside of the box.
Recommended tighting torque M4: 1.0 to 1.3 Nm - For grounding, use appropriate wires (size, material, insulation) that can tolerate the expected maximum grounding current.
Be sure to protect the grounding wire with protection such as metal conduits from external damage.
Maintenance and Inspection
(To use the EC2B-B box as explosion-protection electric equipment)
- Notes for inspecting the EC2B-B box
- Observe the laws and regulations set by each country.
- Do not open the cover while operating the EC2B-B box.
- Do not use tools that cause impact sparks during maintenance and inspection.
- When using measuring devices, use explosion-protected types.
- When the EC2B-B box needs to be disassembled or assembled for maintenance or repair, contact IDEC.
- Maintenance and inspection
- Perform daily or periodical maintenance and inspection for items such as damages of the box listed in table 1.
Table 1. Maintenance and Inspection items

Disposal
Observe the laws and regulations set by each country concerning refuse disposal.
Specifications and other descriptions in this manual are subject to change without notice.
IDEC CORPORATION
Draw. No. B-1527
Jul.30, 2015
6-64 Nishimiyahara 2-chome, Yodogawa-ku, Osaka, 532-0004, Japan


















