LENNOX EL296DFE Integrated Control Replacement Kit Instruction Manual
WARNING
This conversion kit is to be installed by a licensed professional service technician (or equivalent) or other qualified agency in accordance with the manufacturer’s instructions, all codes and requirements of the authority having jurisdiction.
Shipping and Packing List
Package 1 of 1 contains:
- 1 – Integrated control – 107048-XX (two-digit suffix)
- 1 – Diagnostic sticker 107343-XX (two-digit suffix)
Application
Use replacement integrated control kit (22K54) with
EL280UHE, EL280DFE, EL296UHE and EL296DFE units. This control is designed for use with a 120V ignitor only. Do not install this integrated control in a furnace equipped with a 95V ignitor.
Installation
WARNING
Protect the control from direct contact with water.
If the control has been in direct contact with water, replace the control.
WHEN SERVICING CONTROLS, label all wires prior to disconnecting. Wiring errors can cause improper and dangerous operation.
VERIFY proper operation after servicing.
WARNING
Disconnect power before servicing unit.
Shut off main gas supplies to appliance until installation is complete.
| ELECTROSTATIC DISCHARGE (ESD) Precautions and Procedures | |
![]() | Electrostatic discharge can affect electronic components. Take precautions to neutralize electrostatic charge by touching your hand and tools to metal prior to handling the control. |
- Turn off electrical and gas supplies to the furnace.
- Remove the access panel and the control box cover. Label the wires before disconnecting.
- Disconnect the wires and harness connectors from the existing control.
- Remove control by unlatching the two mounting legs on the right side of the control and then rotate the control toward you.
- Replace with the provided control and reconnect the marked wires and harness connectors.
- Replace the current diagnostic sticker with provided diagnostic sticker.
- Restore electrical and gas supplies to the furnace.
WARNING
Ensure proper earth grounding of appliance.
Ensure proper connection of line neutral and line hot wires.
EL280UHE Schematic Wiring Diagram P159 J159

EL280DFE Schematic Wiring Diagram P159 J159

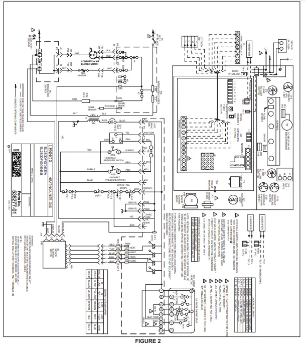
EL296DFE Schematic Wiring Diagram

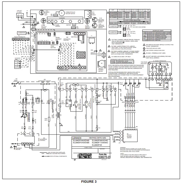
EL296UHE Schematic Wiring Diagram P159 J159






















