JENNAIR ® DETAILED PLANNING DIMENSIONS
30″ JX3™GAS DOWNDRAFT COOKTOP
JGD3430G – 29 15 ⁄16″ x 18 5 ⁄16″ x 21½”
PRODUCT DIMENSIONS
JGD3430G Gas Downdraft Cooktop
| MODEL # | JGD3430G | ||
| in | cm | ||
| A | Overall width | 29 15/16 | 76.0 |
| B | Overall depth | 21½ | 54.6 |
| C | Width of cooktop base | 28⅜ | 72.1 |
| D | Width of assembled blower motor and plenum | 14 7/16 | 36.7 |
| E | Height from blower motor to underside of cooktop | 18 5⁄16 | 46.5 |
| F | Width from left side of cooktop base to blower motor | 1¼ | 3.1 |
| G | Width from plenum to right side of cooktop base | 12¾ | 32.3 |
| H | Height of cooktop base | 4 3/4 | 10.5 |
| I | Height of cooktop with grates | 1 9⁄16 | 4.0 |
| J | Height from gas inlet to top of grates | 6 3⁄4 | 17.1 |
| K | Depth of cooktop base | 19 15⁄16 | 50.7 |
| L | Height from plenum to underside of cooktop | 16 3⁄4 | 42.6 |

IMPORTANT: Dimensional specifications are provided for planning purposes only.
Do not make any cutouts based on this information. Refer to the Installation Guide before selecting cabinetry, verifying electrical/gas connections, making cutouts or beginning installation.
All JennAir ® appliances are appropriately UL, CUL or CSA approved.
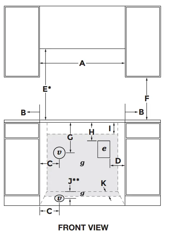
OPENING/CLEARANCE DIMENSIONS


| MODEL # | JGD3430G | ||
| in | cm | ||
| A | Width of combustible area above cooking surface (minimum) | 30 | 76. |
| B | Width from cooktop to fixed wall or other combustible material (minimum) | 6 | 15. |
| C | Width to center of vent opening option (minimum) | 7% | 20.0 |
| D | Width to outer edge of outlet (minimum) | 10 | 25. |
| E* | Height to bottom of uncovered wood or metal cabinet above cooking surface (minimum) | 30 | 76. |
| F | Height to bottom of uncovered wood or metal cabinet (minimum) | 18 | 46. |
| G | Height to center of vent opening option | 14″A6 | 37. |
| H | Height to top edge of outlet (minimum) | 12 | 31. |
| I | Height to top of gas installation area (wall installation) | 6 | 15. |
| J** | Depth to center of vent opening option | 17% | 44. |
| K | Depth of gas installation area (floor installation) | 6 | 15. |
| L | Depth of upper cabinet (recommended) | 13 | 33.0 |
| M | Depth from cutout to wall (minimum) | 2%6 | 6. |
| N | Width of cutout | 28% | 73. |
| O | Depth of cutout | 19’5/16 | 51. |
| P | Depth from cutout to front of countertop (minimum) | 2% | 5. |
| e | Recommended electrical access location | ||
| g | Recommended gas supply line location | ||
| v | Recommended venting location — see pages 3-4 for ducting information | ||
*Dimension can be reduced by 6″ (15.2 cm) when bottom of wood or metal cabinet is covered by not less than 1⁄4″ (0.6 cm) flame retardant millboard covered with not less than No. 28 MSG sheet metal, 0.015″ (0.4 mm) stainless steel, 0.024″ (0.6 mm) aluminum or 0.020″ (0.5 mm) copper.
**Based on installation in a 24″ (61.0 cm) deep by 34½” (87.6 cm) high base cabinet with a 1½” (3.8 cm) thick counter top.
GAS REQUIREMENTS
Natural Gas
This cooktop is factory-set for use with natural gas.
Propane Gas Conversion Conversion must be done by a qualified service technician. To convert to propane gas, use the propane gas conversion kit provided with the cooktop.
ELECTRICAL REQUIREMENTS
120 V, 60 Hz, AC only, 15 A fused, electrical circuit is required. A time-delay fuse or dedicated
circuit is recommended.
VENTING REQUIREMENTS
This cooktop must be exhausted outdoors unless using the duct-free filter kit (W10620783).
Refer to kit instructions for further information.
LOCATION REQUIREMENTS
- To ensure cooktop base clearance, cabinet side walls need to be wider than the cutout.
- A minimum clearance of 2″ (5.1 cm) is recommended between the blower motor and cabinet for proper cooling. A 6″ (15.2 cm) clearance is recommended for servicing access.
- An under counter built-in oven cannot be installed under this cooktop.
JX3 ™ DOWNDRAFT COOKTOPS WITH DUCT-FREE VENTILATION The duct-free filter kit (W10620783) is approved for use with JX3 ™ downdraft cooktop models JGD3536G, JGD3430G, JED4536G, JED3536G, JED4430G, and JED3430G. The kit filters the air from the downdraft system and ventilates the conditioned air into the room through the toe kick of the base cabinet. Do not ventilate the air from the downdraft system into the base cabinet, base cabinet pedestal, crawl space, wall or attic.
PRODUCT DIMENSIONS

| MODEL # | W10620783 | ||
| in | cm | ||
| A | Width of housing | 175/8 | 45. |
| B | Height of housing | 103/8 | 27. |
| C | Depth of housing | 7½ | 19.0 |
| D | Minimum height of toe kick | 3 | 8. |
| E | Minimum depth to toe kick | 2½ | 6. |
EXHAUST CUTOUT LOCATION
The cutout location in the toe kick area of the cabinet floor is dependent upon the dimensions of the cooktop and base cabinet.
DOWNDRAFT COOKTOP DUCTING ARRANGEMENTS
The diagrams below show typical duct arrangements for downdraft cooktops. JX3™ downdraft cooktops
also offer a duct-free installation option. For more details, refer to page 3.
DUCTING CONFIGURATIONS

REAR DUCTING IN WALL TO ROOF

REAR DUCTING THROUGH WALL TO OUTSIDE

SIDE DUCTING IN TOE KICK TO OUTSIDE
DUCTING REQUIREMENTS
| COOKTOP | DUCT LENGTH | DUCT SIZE |
| Gas | 10′ (3.0 m) or less* | 5″ (12.7 cm) diameter* |
| Between 10′ (3.0 m) and 60′ (18.3 m) | 6″ (15.2 cm) diameter | |
| 31/4″ x 10″ (8.3 cm x 25.4 cm) | ||
| Electric | 10′ (3.0 m) or less** | 5″ (12.7 cm) diameter** |
| Between 10′ (3.0 m) and 60′ (18.3 m) | 6″ (15.2 cm) diameter | |
| 31/4″ x 10″ (8.3 cm x 25.4 cm) |
*Gas cooktops must use 5″ (12.7 cm) diameter for runs of 10′ (3.0 m) or less.
**May be used to vent straight out the back of the cooktop and directly through the wall.
CALCULATING MAXIMUM DUCTING LENGTH
- Maximum ducting length is 60′ (18.3 m).
- Each 90° elbow equals 5′ (1.5 m) duct.
- Use no more than three 90° elbows.
- Flexible metal vent is not recommended.
- Do not install two elbows together.
NOTES:
- For ducting runs up to 30′ (9.1 m), install cooktop as shipped.
- For ducting runs of 31′ (9.4 m) to 60′ (15.2 cm), remove the restricter ring on the blower inlet housing.
- For altitudes above 4500′ (1272.0 m), reduce recommended vent run by 20% for best performance.

THROUGH FLOOR BETWEEN JOISTS TO OUTSIDE
IMPORTANT: Dimensional specifications are provided for planning purposes only.
Do not make any cutouts based on this information. Refer to the Installation Guide before selecting cabinetry, verifying electrical/gas connections, making cutouts or beginning installation.
All JennAir ® appliances are appropriately UL, CUL or CSA approved.
W11508934B
®/™ ©2022 JennAir. All rights reserved. Used under license in Canada.















