PGP9830DR Series 30 Inch Downdraft Gas Cooktop
Instruction Manual
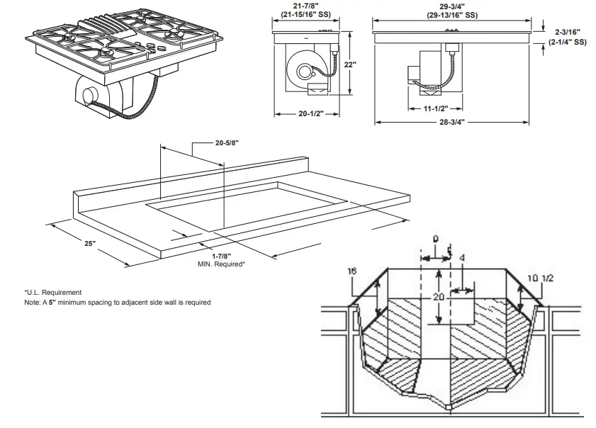
DIMENSIONS AND INSTALLATION INFORMATION
WALL INSTALLATION: Wall installations require 25″ countertop depth. When cabinet is flush against the wall, the fan housing can be rotated to the horizontal position for direct venting through rear wall. Make a countertop cutout in the range cabinet according to unit dimensions and installation type. Duct hole is positioned in back of cabinet for through-the-wall ducting.
*NOTE: A 5″ minimum spacing to adjacent side wall is required Dimension and installation information are shown in inches.
PENINSULA OR ISLAND INSTALLATION:
For peninsula/islands a minimum 26″countertop depth is suggested. Blower should be in vertical position. Island or peninsula cabinets may require adjustment in cutout depth and/or location within the width dimensions. Duct hole is positioned in bottom of cabinet for island or peninsula installation.
SLAB INSTALLATION: For peninsula or island installation and rear wall ducting, 6″ PVC duct or locally approved piping should be used if installing under a poured concrete slab.
INSTALLATION INFORMATION: Before installing, consult installation instructions, packed with product, for current dimensional data.
NOTE: These cooktops are approved for indoor use only.
![]()
DIMENSIONS AND INSTALLATION INFORMATION
INSTALLING THE DUCTWORK:
Use galvanized or aluminum duct in 6″ round or 3-1/4″ x 10″ size, or combination of both. PVC duct or locally approved piping should be used if installing under a poured concrete slab. Local building code must be followed in specifying type and schedule of all duct used.
NOTE: Ductwork must be vented to outside. Do not vent into a wall, ceiling, crawlspace, attic or any concealed space. Always use an appropriate roof or wall cap with damper.
Laundry-type wall caps should never be used. For maximum efficiency use the shortest and straightest duct run possible, with as few fittings as possible.
For satisfactory performance the duct run should not exceed 100 feet equivalent length. Refer to the table of equivalent lengths (shown in installation instructions) for various duct configurations. 
FEATURES AND BENEFITS
Downdraft exhaust – Powerful exhaust system effectively pulls smoke and steam out of the kitchen
Gas on glass cooktop – Sleek and easy to clean
Sealed cooktop burners – Keep spillover contained on cooktop, making cleaning quick and easy
11,500 BTU all-purpose burner – Delivers a wide range of heat output for most cooking needs
Dishwasher-safe grates and knobs – Safe to clean in the dishwasher
Model PGP9830DRBB – Black on black
GUARANTEED FIT
Replacing a similar cooktop from GE Appliances or another brand? GE cooktops are guaranteed for an exact fit or GE Appliances will pay up to $100 toward modifications
Visit geappliances.com for more info

For answers to your Monogram, GE Café™ Series, GE Profile™ Series or GE Appliances product questions, visit our website at geappliances.com or call GE Answer Center® Service, 800.626.2000.

















