allgood 9133N Fully Concealed Door Closer

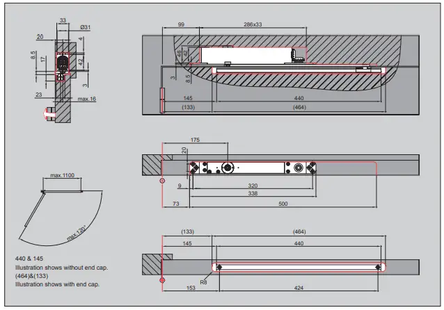
DIMENSION


INSTALLATION


Installation and Maintenance Instructions
Warning
- Please note the minimum power size requirement for fire / smoke door assemblies is 3 as required by Approved Document B.
- .Do not install mechanical hold open devices on fire / smoke door assemblies.
- Take care not to exceed the maximum opening angle as detailed above.
- Care and attention must be taken when adjusting any of the units control valves to avoid damage through over adjustment.
- All Allgood Door Closer units are sealed for life and the internal components assembled under high load, therefore, tampering with the mechanism is to be strictly avoided
After Installation
- When the closer operates to close the door from its maximum opening position, it should ensure the lock latchbolt and any seals are overcome and the leaf returned into its frame.
- When the door is slightly open and the latch bolt resting against the strike, release the door to ensure the leaf fully closes into its frame.
- It is recommended to fit door stops to prevent the door opening beyond its limits.
Maintenance
- Once the unit has been correctly fitted it is recommended that periodic checks (every six months) are carried out to ensure all fixings are tight and the door closes freely and positively into the frame, without slamming.
- A light oil lubricant (non-graphite) should be applied to the moving joints and exposed pivot points. Hinges should be maintained in accordance with the manufacturer’s instruction

















