allgood XX98141-6 Overhead Door Closer

Fixing Instruction
for: XX98141 /6, XX98141 /S6
FIXX98141
Issue 10122


IMPORTANT
Please check door width before fitting and ensure correct template size is used.
- The door closer is pre- set at #3 power.
- Maximum opening angle at 180° .
- Maintenance : Check quarterly to ensure correct setting of door closing and latching speeds and t hat f i xi ng screws are tight . A small amount of oil applied to door hinges and the arm joints and rollers will assist performance.

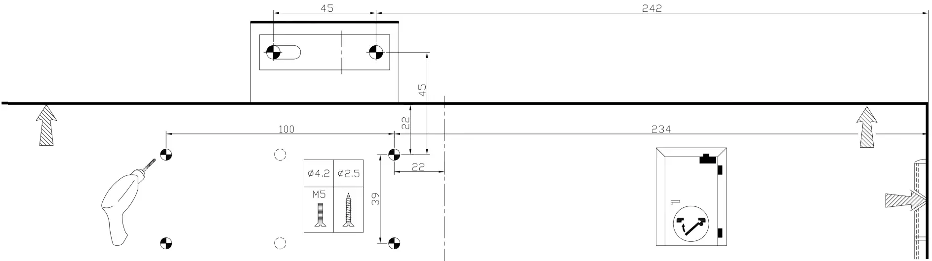
Determine the installation position of the door closer place the template on the closed door and the top jamb, and make holes in them with a punch or other proper tools
① Template
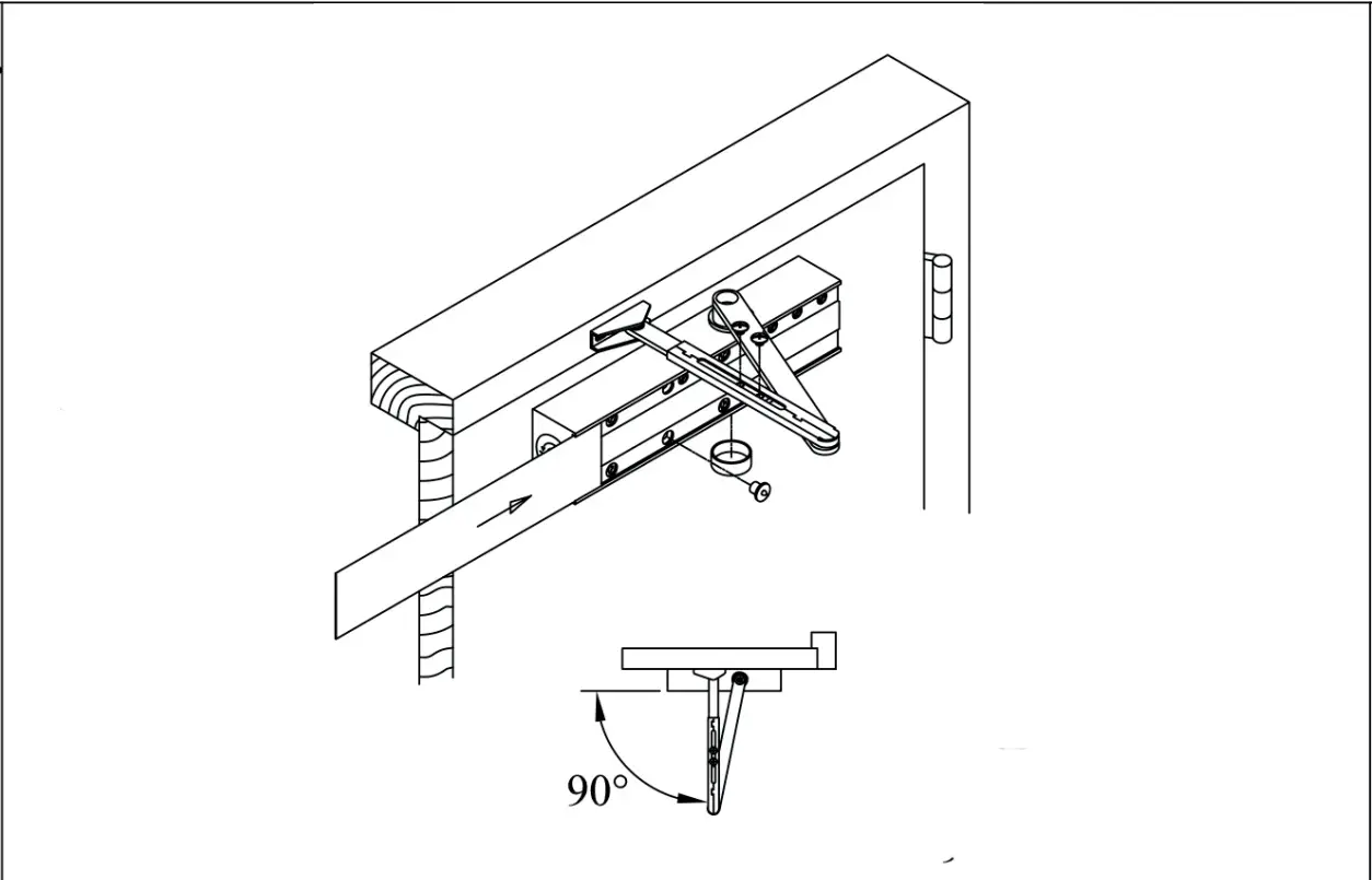
- Fix the link shoe to the top jamb .
- Mount the closer on the door and fix it firmly with the screw .
- Fit the lever to the pinion shaft and fix it firmly with the screw .
① Link shoe
② Door closer
③ Lever
④ Mounting screw
- Adjust the link length so that the link makes a right angle with the top jamb, and fix with the lock nut.
- FIX PINION CAP TO CLOSER BODY

OVER ADJUSTMENT WILL LEAD TO OIL LEAKAGE WHICH WILL AFFECT THE PERFORMANCE OF THE CLOSER .
IN SUCH INSTANCES OUR GUARANTEE BECOMES VOID .
- Adjust the closing speed
The door closer closes the door at two different speeds.
The first speed can be controlled by the No. l speed adjusting valve, and the second speed, by the No.2 speed adjusting valve.
① CLOSING ② LATCHING
Delayed Action
Back Check
- Recycle responsibly




















