
LENNOX LNX15-520.2 Energy Recovery Module
WARNING
- Improper installation, adjustment, alteration, service or maintenance can cause property damage, injury or death, and could cause exposure to substances that have been
determined by various state agencies to cause cancer, birth defects or other reproductive harm. Read the installation, operating and maintenance instructions thoroughly before installing or servicing this equipment. - The power supply wiring for the Energy Recovery Module, model EWM, comes from a single point power connection on the main ventilation unit, model DLV. Disconnect power supply at model DLV before making wiring connections or servicing this equipment. Follow all applicable safety procedures to prevent accidental power-up. Failure to do so can result in injury or death from electrical shock or moving parts and may cause equipment damage.
- When the dead front disconnect switch(es) (for main unit model DLV and/or powered convenience outlet option) is in the “OFF” position, supply power remains energized at the line (supply) side of the dead front disconnect switch(es). The switch body is located inside of another junction box to protect against contact with the live wiring. The junction box must not be disassembled unless the main power supply from the building to the unit is de-energized.
- For units equipped for dual power supply sources, both sources of power must be disconnected to prevent electrical shock and equipment damage
IMPORTANT
- The use of this manual is specifically intended for a qualified installation and service agency. All installation and service of this equipment must be performed by a qualified installation and service agency.
- These instructions must also be used in conjunction with the Installation and Service Manual originally shipped with the model DLV unit, in addition to any other accompanying component supplier literature.
SPECIAL PRECAUTIONS
THE INSTALLATION AND MAINTENANCE INSTRUCTIONS IN THIS MANUAL MUST BE FOLLOWED TO PROVIDE SAFE, EFFICIENT AND TROUBLE-FREE OPERATION. IN ADDITION, PARTICULAR CARE MUST BE EXERCISED REGARDING THE SPECIAL PRECAUTIONS LISTED BELOW. FAILURE TO PROPERLY ADDRESS THESE CRITICAL AREAS COULD RESULT IN PROPERTY DAMAGE OR LOSS, PERSONAL INJURY, OR DEATH. THESE INSTRUCTIONS ARE SUBJECT TO ANY MORE RESTRICTIVE LOCAL OR NATIONAL CODES.
HAZARD INTENSITY LEVELS
- DANGER: Indicates an imminently hazardous situation which, if not avoided, WILL result in death or serious injury.
- WARNING: Indicates a potentially hazardous situation which, if not avoided, COULD result in death or serious injury.
- CAUTION: Indicates a potentially hazardous situation which, if not avoided, MAY result in minor or moderate injury.
- IMPORTANT: Indicates a situation which, if not avoided, MAY result in a potential safety concern.
SI (METRIC) CONVERSION FACTORS / UNIT LOCATION
SI (METRIC) CONVERSION FACTORS
| To Convert | Multiply By | To Obtain |
| CFH | 1.699 | m3/min |
| Btu/ft3 | 0.037 | mJ/m3 |
| pound | 0.453 | kg |
| Btu/hr | 0.000 | kW/hr |
| gallons | 3.785 | liters |
| psig | 27.7 | “W.C. |
| To Convert | Multiply By | To Obtain |
| “W.C. | 0.24 | kPa |
| psig | 6.893 | kPa |
| °F | (°F-32) x 0.555 | °C |
| inches | 25.4 | mm |
| feet | 0.305 | meters |
| CFM | 0.028 | m3/min |
INSPECTION ON ARRIVAL
- Inspect unit upon arrival. In case of damage, report it immediately to the transportation company and your local factory sales representative.
- Check rating plate on unit to verify that power supply meets available electric power at the point of installation.
- Inspect unit upon arrival for conformance with a description of the product ordered (including specifications where applicable).
APPLICABLE MODELS
- The instructions in this manual apply to the Energy Recovery Module, model EWM, for use with the main ventilation unit, model DLV with the following model digits:
- Digit 6 = C (C-Cabinet)
- Digit 7 = B or E (Interface to Energy Recovery)
- Throughout this manual, the model EWM unit will be referred to as the “EWM unit”. The model DLV unit to which the unit is coupled will be referred to as the “DLV unit” or the “main unit”.
- The roof curb and main unit model DLV unit must be installed prior to the installation of this model EWM unit.
SPECIAL DESIGN REQUESTS
Units are sometimes built with special features as requested by the customer. This manual only covers standard features and does not include any changes made for special feature requests by the customer. Units built with special features are noted with a 5-digit SPO (Special Product Order) Number on the Serial Plate
STORAGE PRIOR TO INSTALLATION
If the unit is stored outside prior to installation, the unit should be covered to protect the duct transition opening from the weather.
COMMERCIAL WARRANTY
Refer to the back page of the Installation & Service Manual that shipped with the model DLV unit for warranty information.
Location Recommendations
- Be sure the structural support at the unit location site is adequate to support the weight of the unit and any other required support structure. For proper operation the unit
must be installed in a level horizontal position. - All mechanical equipment generates some sound and vibration that may require attenuation. Locating the equipment away from the critical area is desirable within ducting limitations. Frequently, units can be located above utility areas, corridors, restrooms, and other non-critical areas. Generally, a unit should be located within
15 feet of a primary support beam. Smaller deflections mean lesser vibration and noise transmission. For critical applications, please consult with an acoustical attenuation expert. - Be sure that the minimum clearances to combustible materials and recommended service clearances are maintained. Units are designed for installation on non-combustible
surfaces with the minimum clearances shown in Figure 3.1. - A method must be provided to prevent water and debris from entering the unit such as a rainhood, which can be ordered as an accessory. Where possible, install the unit so that the inlet is not facing into the prevailing wind to prevent water entrainment.

- The minimum required clearance for service/maintenance is 48″. If the ability for future evaporator and/or hot gas reheat coil replacement on the adjacent DLV unit is desired, the minimum clearance must be 64″.
- Actual minimum required service clearance is 36″, however 52.85″ is shown to match the boundary defined by the DLV unit.
ROOF CURB INSTALLATION / DUCT / UTILITY CONNECTIONS
Roof Curb Installation
An optional roof curb is available to simplify site preparation and raise the unit above roof water and snow level for drainage. It can be installed in advance of the unit. The curb
is shipped knocked down with separate instructions for its assembly, flashing, and sealing with the roof. The following are some general guidelines for roof curb installed units:
- The roof structure must be adequately designed to support the live weight load of the unit and any other required support structure. The roof curb should be supported at
points no greater than five feet apart. Additional truss reinforcement should be provided, if necessary. - Roof curbs supplied by the factory are fabricated from 10 gauge galvanized steel and supplied knocked down for assembly on the job site. The curb consists of two side
pieces, two end pieces, gasketing, four joiner angles, four 2×4 inch wood nailing strips, nuts, bolts, and washers. - Outside dimensions must be held when installing curb. Top surface must be level and straight to insure weathertightness. If roof is pitched it will be necessary to construct a sub-base on which to install the curb. All corners must be square.
- When installing roof curbs for both the DLV unit and the EWM unit, spacing between curbs is critical to ensure the units mate properly when installed. Refer to installation instructions shipped with the roof curbs.
- All dimensions are +1/8 inch.
- Final electric connections must be made after unit is installed to allow for tolerance in setting of unit on curb.
- Maintain a 12-inch minimum height from top of roof deck to top of curb.
- Caulk butt joints after curb is assembled and installed on roof structural members and roof flashing is added.
- For improved sound attenuation, line the roof deck within the curb area with 2″ acoustic fiberglass.

Duct Installation
The unit is designed to be close-coupled to the DLV unit through the factory-installed transition duct. The inlet and exhaust discharge openings are designed to be protected with rainhoods. Refer to Figure 4.2.
Utility Connections
Utility and control connections are made to the EWM unit from the DLV unit, through the transition duct between the units, once the two units are installed. This is detailed in the “Electrical Connections” section.
RIGGING INSTRUCTIONS / UNIT INSTALLATION
Rigging Instructions
Four 1.5″ eye bolts at the top of the unit in each corner are supplied to facilitate lifting the unit. For either crane or helicopter lift of the equipment to the rooftop, connect sturdy steel cables or chains with eye loops as illustrated in Figure 5.1. For stability in lifting and lowering and to prevent damage to the eye bolt lifting points, include a spreader bar as illustrated in Figure 5.1.
Unit Installation
Follow site preparation instructions for the roof curb before installation. Check the Serial Plate of unit with plans to be sure unit is properly located (see page 15). Although units may look outwardly similar, their function, capacities, options, and accessories will often vary. Check dimensions. The DLV unit must already be installed on its curb following the instructions in the Installation and Service Manual that shipped with the DLV unit. This must be completed prior to installation of the EWM unit. If unit is to be installed on a factory-supplied curb:
- The roof curb and the DLV unit must be installed prior to the installation of this EWM unit.
- Install roof curb using instructions on page 4.
- Thoroughly clean and dry the top of the curb surface.
- Place the factory supplied gasketing on the top perimeter of the roof curb and place a bead of weather resistant caulk on the flange of the factory installed EWM to DLV
unit transition duct. - Orient the hoisted unit so the transition ductwork is lined up with the inlet of the DLV unit and set it down evenly on curb.
- Secure the transition duct to the DLV unit using the 28 sheet metal screws provided through the pre-drilled holes in the transition duct flange.
- Make final unit connections to the electric power supply and remote control circuits.

ELECTRICAL CONNECTIONS
- Installation of wiring must conform with local building codes, or in the absence of local codes, with the National Electric Code ANSI/NFPA 70 – Latest Edition. Unit must
be electrically grounded in conformance to this code. In Canada, wiring must comply with CSA C22.1, Part 1, Electrical Code. - Two copies of the job specific wiring diagram are provided with each unit, one permanently affixed to the inside of the door of the controls compartment and the other as a loose copy with the literature packet that ships with the unit. Refer to this diagram for all wiring connections.
- Once both the DLV unit and EWM unit are mated, the prewired power and control wires in the DLV unit are to be routed through the inside of the duct transition and into the control compartment in the EWM unit (refer to Figure 9.1).
- The EWM unit does not require a separate electrical power supply. The power wiring from the DLV unit is sized for the power requirements of the EWM unit. The units must be protected with a fused or circuit breaker disconnect switch based on the MCA and MOP ratings on the serial plate of the DLV unit, which includes the EWM unit.
- Make sure all multi-voltage components (motors, transformers, etc.) are wired in accordance with the power supply voltage.
- The power supply must be within 5% percent of the voltage rating and each phase must be balanced within 2 percent of each other. If not, advise the utility company.
START-UP PROCEDURE
- Turn off power to the unit at the disconnect switch at the DLV unit. Check that fuses or circuit breakers are in place and sized correctly.
- Open the controls compartment and blower access doors.
- Check that the supply voltage matches the unit supply voltage listed on the Unit Serial Plate. Verify that all wiring is secure and properly protected. Trace circuits to insure that the unit has been wired according to the wiring diagram.
- Check to see that there are no obstructions to the intake and discharge of the unit.
- Check the belt tension and sheave alignment for the exhaust blower.
- All bearings are permanently lubricated and do not require lubrication.
- Check to make sure that all filters are in place and that they are installed properly according to direction of air flow.
- Perform a visual inspection of the unit to make sure no damage has occurred during installation.
- Turn on power to the unit at the disconnect switch at the DLV unit.
- Check the Carel microprocessor controller and exhaust fan motor for electrical operation. If this does not function, recheck the wiring diagram. Check to insure none of the Control Options have tripped.
- Check to make sure that the economizer wheel bypass damper (if equipped) opens properly without binding.
- Check the blower wheel for proper direction of rotation when compared to the air flow direction arrow on the blower housing. Blower wheel rotation, not air movement,
must be checked as insufficient air will be delivered with the blower wheel running backwards. - Check the blower speed (rpm). Refer to Blower Adjustments for modification.
- Check the motor speed (rpm).
- Check the motor voltage. Check to make sure all legs are in balance.
- Check the motor amp draw to make sure it does not exceed the motor nameplate rating. Check all legs to insure system is balanced.
- Check that the energy recovery wheel rotates in the direction of the arrow without interference noise (scraping, brushing, banging etc.). The wheel is factory set to rotate at approximately 40 RPM to maximize latent heat transfer.
- Check that the belt is situated near the middle of the wheel rim, not against the rim support, and that the belt is not flipped.
- Check the energy recovery wheel voltage and amp draw to make sure it does not exceed the motor nameplate rating.
START-UP PROCEDURE – CONTINUED
Blower Adjustments
The units are designed for ease of airflow adjustments, within certain limits, for field balancing against actual external static pressure conditions. If the static pressure external to the unit is above or below the original design point for the unit, the blower will deliver an airflow volume that is lower or higher than required. The blower speed (supply and/or exhaust blowers) may be adjusted to achieve the desired air volume, provided the adjustment is within the limits of the equipment. For supply fan adjustments, please refer to the unit Installation and Service Manual that shipped with the DLV unit. This section applies only to the exhaust blower adjustment. The motor sheave on the exhaust blower motor is adjustable to permit adjustment of the blower speed as follows:
- Turn off power to the unit at the disconnect switch at the DLV unit. If the DLV unit is equipped with gas heat option, turn all hand gas valves to the “OFF” position.
- Loosen the belt tension and remove the belt (see Figure 8.1).

- On the motor sheave, loosen the set screw on the side away from the motor (see Figure 8.2).

- To increase the blower speed, turn the adjustable half of the sheave inward. To decrease the blower speed, turn the adjustable half of the sheave outward. The sheave half is adjustable in ½ turn (180°) increments. Each ½ turn represents approximately a 2-5% change in blower speed and airflow volume.
- Tighten the set screw on the flat portion of the sheave shaft.
- Replace the belt and verify that the belts are aligned in the sheave grooves properly and are not angled from sheave to sheave.
- Turn on power to the DLV unit and initiate blower motor operation. For guidance, refer to the Controls Manual that shipped with the DLV unit.
- With an amp meter, check the motor amps to ensure the maximum motor amp rating is not exceeded. Verify airflow volume and repeat steps above for further adjustment.
- If equipped with electric preheat, initiate preheat operation. For guidance, refer to the Controls Manual.
- Verify the temperature rise of the preheat section does not exceed 50°F.
- After 24 hours of operation, retighten the setscrews to the torque listed in the owners manual on the bearing, sheave, and blower wheel to avoid damage to the unit.
Optional Dirty Filter and/or Wheel Pressure Switch(es)
The optional dirty filter pressure switch and/or wheel pressure switch is factory installed. The dirty filter pressure switch monitors the pressure differential between the two sides of the filters. The wheel pressure switch monitors the pressure differential between the two sides of the wheel. When the filters and/or wheel becomes dirty, the differential pressure increases and trips the pressure switch which initiates an alarm from the Carel controller. The pressure differential switch must be field set because setting the switch requires the blower to be in operation and the ductwork to be installed
Setting the Pressure Switch(es)
- Ensure that the unit filters are clean. Replace if necessary.
- Using the Carel controller, start blower operation.
- Turn the set screw of the pressure switch clockwise until it stops.
- With the wires removed from the common and normally open terminals of the switch, measure continuity and turn the adjustment screw counter-clockwise until the switch makes. Then turn the adjustment screw one additional turn counter-clockwise to account for dirty filters, wheel or other system static changes.\
Variable Frequency Drive Applications
Units may be supplied with variable frequency drives. The minimum air flow may be varied between 50 and 100% of the full speed air flow depending on the controls selection of the unit, but never less than 2000CFM. Refer to the Controls Manual for additional information. When startup is complete, close all access doors.
UNIT COMPONENT IDENTIFICATION / LOCATION
Energy Recovery Module Component Locations
- (S) DLV Unit to EWM Unit transition duct
- (S) Controls compartment with side wiring entrance
- (S) Power distribution block
- (S) Carel microprocessor controller
- (O) Energy recovery wheel on/off contactor
- (S) Exhaust fan motor and energy recovery wheel fuses
- (S) Low voltage wiring terminal strip with ground terminals
- (O) Exhaust air filters
- (O) Exhaust air filters pressure drop switch
- (S) Energy recovery wheel
- (O) Energy recovery wheel pressure drop switch (not shown)
- (O) Electric preheat assembly with power/control compartment
- (S) Outside air filters
- (O) Outside air filters pressure drop switch
- (S) Blower door switch (not shown)
- (S) Outside air enthalpy sensor
- (S) Exhaust fan variable frequency drive
- (S) Exhaust fan motor
- (S) Housed exhaust plenum fan
- (S) Exhaust fan belt drive/auto belt tensioner access (access door removed)
- (S) Inlet opening (inlet hood not shown)
- (S) Exhaust hood (not shown)
- (O) Economizer bypass damper actuator compartment
- (S) = Standard
- (O) = Optional
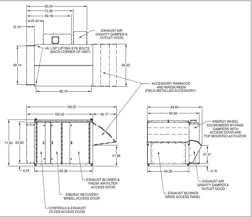
DIMENSIONS – UNIT
Figure 10.1 – Unit Dimensions
Base Model Weight (approx) – lbs.
| Section | Description | Weight | |
| Base Unit | Digit 7=M (3Å Molecular Sieve) | 46” Wheel | 1967 |
| 58” Wheel | 2113 | ||
| Exhaust Air Blower | Digit 9=3 | 20” ANPA | 126 |
| Digit 9=6 | 28” ANPA | 173 | |
|
Motors (most common) | Digit 10=Q | 1HP | 29 |
| Digit 10=R | 1-1/2HP | 37 | |
| Digit 10=S | 2HP | 40 | |
| Digit 10=T | 3HP | 69 | |
| Digit 10=U | 5HP | 84 | |
| Digit 10=V | 7-1/2HP | 115 | |
| Digit 10=W | 10HP | 128 | |
| Other | Electric Preheat (Digit 14) | None | 0 |
| 20kW Nominal (derated for 208V) | 103 | ||
| Inlet Hood (Ships loose for field installation) | 72 | ||
Figure 11.1 – Unit Base Dimensions
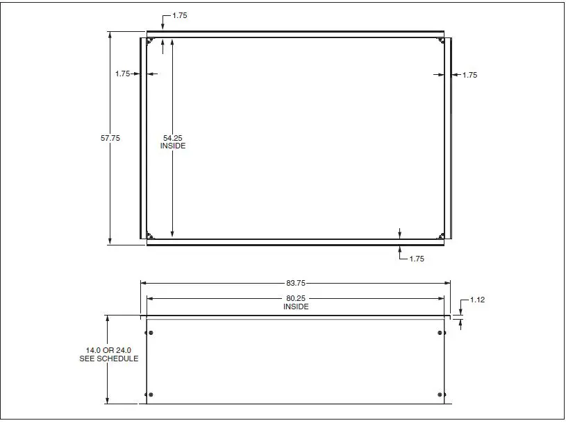
Figure 12.1 – Roof Curb Dimensions

Table 12.1 Roof Curb Weight (approx) – lbs.
| Section | Description | Weight |
| Roof Curb | 14” – Uninsulated | 185 |
| 24” – Uninsulated | 273 |
GENERAL MAINTENANCE
All cooling and heating equipment should be serviced before each season to assure proper operation. The following items may require a more frequent service schedule based on the environment in which the unit is installed and the frequency of the equipment operation.
Blower Assembly
Belt drive fan assemblies include the bearings, drive sheaves, belts, and auto belt tensioner. Most bearings are permanently lubricated (blower and motor), except for those identified with grease fittings. For bearings that are not permanently lubricated, lubricate according to the manufacturer’s instructions. Bearings should be checked for
any unusual wear and replaced if needed. Drive sheaves should be checked at the same time the bearings are inspected. Check to make sure the sheaves are in alignment and are securely fastened to the blower and motor shafts. Belt should be rechecked shortly after the unit has been installed to check that the belt tension is being maintained by the auto belt tensioner. After the initial start-up, monthly checks are recommended to monitor the belt for wear.
Electrical Wiring
The electrical wiring should be checked annually for loose connections or deteriorated insulation.
Inlet Hood, Exhaust Hood, and Dampers
Check and clean the hood screen at the inlet and outlet hoods, and gravity relief damper blades at the exhaust outlet.
Filters
If the unit is supplied with a dirty filter switch, replace the filters any time the Carel controller provides a dirty filter alarm notice. Units without a dirty filter pressure switch should have the filters checked monthly. Replace if necessary. In dirty atmospheres, filter maintenance may be required more often.
Outdoor Air Sensor
1. Remove sensor from mounting bracket.
2. Remove any dust or dirt that may be clogging the screen material covering the air sample inlet openings on the end of the sensor probe. If required, remove the screened tip of the sensor and use a neutral detergent and water solutio to clean the screen material. Do not use ethyl alcohol, hydrocarbons, ammonia, or derivatives.
Energy Recovery Wheel Assembly
- The wheel drive belt is subject to natural stretching which may affect wheel rotation and energy recovery performance. If too loose, the belt must be shortened by removing the belt from the drive motor pulley, remove the belt linkage using a small Phillips head screwdriver, cut the belt to the required length, and reattach the belt linkage and tighten.
- The bearings are permanently lubricated and under normal operating conditions maintenance is not required.
- The wheel is to be checked for cleanliness. In most cases, the counterflow airflow will allow the rotary wheel to selfclean itself of contaminants that may adhere to the surface of the wheel. In situations where self-cleaning is not sufficient, the wheel can be cleaned with a vacuum and brush to clear any buildup.
- Check wheel to housing seals and replace if worn. To check the seal, slide a piece of paper (“feeler gauge”) between the seal and the media at multiple locations on both sides of the bearing beam as you rotate the wheel slowly by hand (clockwise when viewed from the pulley side). Verify that the media slightly grabs the paper during the rotation. If necessary, loosen adjusting screws along the bearing beam and re-set seal to a slight interference fit with the wheel media.
Electric Preheat (if equipped)
When providing annual maintenance for the electric preheat (if equipped), keep the unit free from dust, dirt, grease and foreign matter. Pay particular attention to:
- The heating elements should be checked for cracks and discoloration of the tubes. If a crack is detected, the heating elements should be replaced before the unit is put back into service. If the tubes are dark gray, airflow across the heating elements should be checked to insure that a blockage has not occurred or the blower is operating properly.
- The electrical connections should be checked annually for general cleanliness and tightness.
- The controls should be checked to insure that the unit is operating properly.
Repeat Start-Up Procedure
Once complete, repeat applicable Start-Up Procedure steps as shown starting on page 7.
SERVICE & TROUBLESHOOTING
| Trouble | Possible Cause | Possible Remedy |
| A. Power Failure | 1. Disconnect not turned on. | 1. Turn on disconnect switch |
| 2. Blown fuses or open circuit breaker | 2. Check and replace or reset | |
| 3. Main power supply for unit turned off | 3. Turn on power at main panel | |
| B. Motor Failure | 1. See Problem “A” | 1. See Problem “A” |
| 2. Failed motor | 2. Check and replace | |
| 3. Loose wiring to motor | 3. Check and tighten | |
| 4. Motor overloaded | 4. Reset motor starter and check motor load | |
| 5. Improper supply voltage | 5. Check and correct | |
| C. Blower Not Turning or Turns Slow | 1. See Problems “A” and “B” | 1. See Problems “A” and “B” |
| 2. Broken drive belt | 2. Check and replace | |
| 3. Motor undersized for application | 3. Contact Factory | |
| 4. Motor voltage too low | 4. Check and correct | |
| 5. Supply power line sizing too small | 5. Check and correct | |
| 6. Controls are in Unoccupied mode | 6. Wait for Occupied mode or override | |
| 7. Controller alarm | 7. Check and correct | |
| D. Insufficient Airflow | 1. Motor running backwards | 1. Check and correct motor wiring to phase rotation of supply power, reverse any two lines to motor |
| 2. Fan speed setting too low | 2. Check and correct | |
| 3. Dirty or clogged filters or coils | 3. Check and clean or replace | |
| 4. Duct system has more static pressure drop than expected | 4. Check and correct | |
| 5. Dampers and/or discharge registered are closed | 5. Check and correct | |
| E. Excessive Airflow | 1. Fan speed setting too high | 1. Check and correct |
| 2. Filters not in place | 2. Check and reinstall filters | |
| 3. Ductwork grilles or registers not installed | 3. Check and install | |
| 4. Duct system has less static pressure drop than expected | 4. Check and correct | |
| 5. Access door is open | 5. Close all unit side access doors | |
| H. Economizer Bypass Dampers Do Not Operate | 1. See Problem “A” | 1. See Problem “A” |
| 2. Failed damper motor(s) | 2. Check and replace | |
| 3. Loose wiring to damper motor(s) | 3. Check and tighten | |
| 4. Controls are in Unoccupied mode | 4. Wait for Occupied mode or override | |
| 5. Ambient lockout | 5. Check and wait or override | |
|
I. Electric Heat Not Functioning | 1. See Problem “A” | 1. See Problem “A” |
| 2. See Problem “D” | 2. See Problem “D” | |
| 3. Thermostat not calling for heat | 3. Check and wait or override | |
| 4. Limit switches are open | 4. Check and correct | |
| 5. Overload relay is tripped | 5. Check and correct | |
| 6. Failed heat modules | 6. Check and replace |
SERIAL PLATE AND MODEL NOMENCLATURE
Model Identification
The unit is equipped with a serial plate located on the door of the controls cabinet as shown in Figure 15.1. When servicing, repairing or replacing parts on these units, locate the model Serial Plate of the unit and always give the complete Model Number and Serial Number of the unit. For a complete description of the model number, see the Model Nomenclature in Table 15.2. Serial plates shown are examples and may vary slightly from what is on the actual unit(s). Refer to the unit(s) for the actual serial plates.
Unit Model Nomenclature
| Digits | Indicates | Description | Value |
| 1, 2, 3 | Unit Type | Energy Recovery Module for DLV C-Cabinet Units with Digit 7=B or E | EWM |
| 4, 5 | Nominal Wheel Diameter | 46” (6000 CFM Max) | 46 |
| 58” (9000 CFM Max) | 58 | ||
| 6 | Cabinet Size | 3000 to 9000 CFM | C |
| 7 | Energy Recovery Type | Enthalpy Wheel, Aluminum with 3 Angstrom Molecular Sieve Desiccant | M |
| 8 | Economizer Bypass | Economizer Bypass | E |
| 9 | Exhaust Fan Configuration | 20” Backward Inclined Airfoil Plenum Fan (ANPA) | 3 |
| 28” Backward Inclined Airfoil Plenum Fan (ANPA) | 6 | ||
|
10 |
Exhaust Blower Motor HP (includes VFD) | 1 HP | Q |
| 1-1/2 HP | R | ||
| 2 HP | S | ||
| 3 HP | T | ||
| 5 HP | U | ||
| 7-1/2 HP | V | ||
| 10 HP | W | ||
| 11 | Exhaust Blower Motor Type | ODP – NEMA Premium Efficiency – 1800 RPM | 1 |
| TE – NEMA Premium Efficiency – 1800 RPM | 2 | ||
|
12 | Unit Supply Voltage (must match DLV unit) | 208V/3ph | 4 |
| 230V/3ph | 5 | ||
| 460V/3ph | 6 | ||
| 575V/3ph | 7 | ||
| 13 | Sheave Assy | Exhaust Fan Sheave Assembly (refer to Order Detail) | * |
| 14 | Electric Preheat | None | 0 |
| 20kW Nominal (derated for 208V) | 2 |
Lennox Industries, Inc. has a continuous product improvement program and reserves the right to change design and specifications without notice.
Lennox Industries, Inc. • P.O. Box 799900 • Dallas, TX 75379-9900 • Phone: 1.800.4LENNOX (1.800.453.6669) www.lennoxcommercial.com
























