DP Home 3428109 LED Medicine Cabinet

For easy and safe installation, please refer to the following:
- Read all instructions thoroughly before installing the enclosed product.
- Read and take note of all safety, care and maintenance information.
PLEASE KEEP THIS INSTRUCTION MANUAL FOR FUTURE REFERENCE DURING PRODUCT OPERATION AND MAINTENANCE.
INSTALLATION INSTRUCTIONS
WARNING AND SAFETY INSTRUCTIONS
Before installing your LED Medicine Cabinet fixture, please make sure that you carefully read through this instruction sheet, refer back to them during installation to ensure your product is fitted safely and correctly. Keep these instructions for future use.
WARNING Risk of Fire and Electric Shock
- All fittings must be installed in accordance with current IEE wiring regulations. If in doubt, consult a qualified electrician.
- Switch off the electrical supply at the main circuit board BEFORE installation and maintenance.
- Suitable for indoor use only. This product should be positioned well away from curtains and fabrics. Never cover the mirror.
- Regularly check the cord, the transformer and all other parts for damage, if any part is damaged the product should not be used.
INSTALLATION SAFETY
- Inspect the product immediately upon receipt for any possible damage during transportation or missing parts. Handle the product with care and protect against knocks to all sides and edges of the glass.
- Ensure there are no hidden pipes or cables in the wall before drilling.
- Wear suitable eye protection when drilling. Take care if drilling on tiled surfaces in case the drill slips.
CAUTION
The light source of this product is non-changeable light diodes (LED). Do not disassemble the product, as the light diodes can cause damage to the eyes.
NOTE: The important safeguards and instructions that appear in this manual are not meant to cover all possible conditions and situations that may occur. It must be understood that common sense, caution, and care are factors that can’t be built into any product. These factors must be supplied by the person(s) caring for and operating the fixture. Do not install this fixture in hazardous locations.
TOOLS
TOOLS REQUIRED
PARTS SUPPLIED
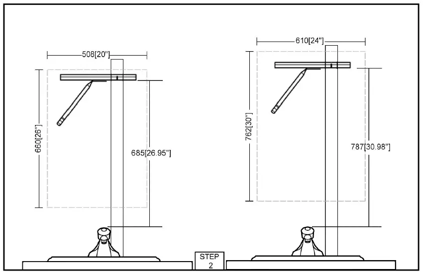
PRODUCT DESCRIPTION & INFORMATION

All diagrams are for reference only. All model dimensions and proportions position will vary.
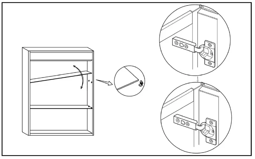
Installation Instructions for Hanging Walls





Embedded Installation Instructions


Operation Instruction
Short Press to turn on/off the light.- Press the switch button and hold on for 3-5 seconds to activate the dimmer function. The first long press, brightness from strong to weak;
- Second long press, brightness from weak to strong.
- These two operations cycle in turn.
Gently press to change the color temperature.- The first press causes the neutral light, it is 4500K. The second press causes the cool white light, it is 6400K .
- The third press causes the warm yellow light, it is 3000K.
- The three operations cycle in turn.
First short press, the anti-fog function works.- Second short press, the anti-fog function stops.
- The two operations cycle in turn.













Short Press to turn on/off the light.
Gently press to change the color temperature.
First short press, the anti-fog function works.

















