robern CC2034D4RC84SC Round Corner Metal Mirrored Medicine Cabinet

CRAFT SERIES CABINET INSTALLATION INSTRUCTIONS
Thank you for purchasing the Craft Series Cabinet. Please read the following instructions carefully before proceeding with installation.
Important Safety Instructions
Please follow these safety instructions to avoid any risks:
- Connect the furnishing to a properly grounded circuit only.
- Electrical option cabinet must be wired to a Class A 20 Amp GFCI (Ground Fault Circuit Interrupter) protected circuit when used in bathrooms and all other locations required by the National Electric Code.
- Save these instructions for future reference.
Tools Needed
- [216-1201] Hardware Bag
- [211-1376] (3) Shelf Clips
- [211-1377] (3) Shelf Clips
- [SS134] (10) Hole Plugs
- [SS672] (6) Screw Caps
- [SS674] (6) #10 x 2 Screws
- [216-1208] Hardware Bag
- (3-4) Glass Shelves
- [211-1376] (4) Shelf Clips
- [211-1377] (4) Shelf Clips
- [211-1329] (2) Robern Logo Coverplates
- [SS134] (10) Hole Plugs
- [SS672] (6) Screw Caps
- [SS674] (6) #10 x 2 Screws
Product Accessories
The following accessories are available for the Craft Series Cabinet:
- [P2SMKITXXD4P] Surface Mount Kit XX (Heights available): 30, 40
- [P2ELECTRIC*] Portray Electric Upgrade
- [DLB-XX] IQ Digital Lock Box XX (Widths available): 20, 24
Product Dimensions
The dimensions of the Craft Series Cabinet are determined by the model number, width, and height. Please refer to the chart below to determine the rough opening dimensions for recessed installation.
| A | B | RO (A) | RO (B) |
|---|---|---|---|
| 19-1/4 (489 mm) | 23-1/4 (591 mm) | 30 (762 mm) | 39-3/8 (1000 mm) |
| 18-1/2 (470 mm) | 22-1/2 (572 mm) | 29-1/4 (743 mm) | 38-5/8 (982 mm) |
Product Installation Instructions
- Determine the overall cabinet dimensions.
- If recessing the cabinet, use the chart above to determine the rough-in dimensions.
- Connect the furnishing to a properly grounded circuit only.
- For electrical option cabinet, wire it to a Class A 20 Amp GFCI (Ground Fault Circuit Interrupter) protected circuit when used in bathrooms and all other locations required by the National Electric Code.
- Use the provided hardware to assemble the cabinet.
- If using any accessories, follow their respective installation instructions.
- For maintenance, clean the cabinet with a soft cloth and mild soap solution. Do not use abrasive cleaners or solvents.
If you have any questions or concerns, please contact us at 800.877.2376 or visit our website at www.robern.com.
GENERAL INFORMATION
This instruction manual contains information on how to recess mount the Craft Series cabinet. This series comes in different sizes and door styles. Refer to the specific model numbers for dimensions.
Read the specific instruction for how your cabinet(s) will be mounted. The cabinets can be surface mounted* or recess mounted.
Save these instructions for future use and reference. An improper installation voids the warranty. Installed cabinets cannot be returned. If you experience any problems with your cabinet, contact your dealer or Robern directly.
Limited Warranty — One Year Term
* For surface mounting and other installation instructions,.
SAFETY
IMPORTANT SAFETY INSTRUCTIONS
DANGER: Read all instructions before using this cabinet.
CAUTION: Maximum shelf load 34lbs/15.4kg
When using an electrical furnishing, basic precautions should always be followed, including the following:
WARNING: To reduce the risk of burns, fire, electric shock, or injury to persons:
- Use this furnishing only for its intended use as described in these instructions.
- Do not use attachments not recommended by the manufacturer.
- Never drop or insert any object into any opening.
- Do not use outdoors.
WARNING: Risk of electric shock. Connect this furnishing to a properly grounded circuit only. See Grounding instructions.
GROUNDING INSTRUCTIONS
Electrical option cabinet must be connected to a grounded metal, permanent wiring system, or an equipment-grounding conductor must be run with the circuit conductors and connected to the equipment-grounding terminal or lead on the product.
WARNING: Electrical option cabinet must be wired to a Class A 20 Amp GFCI (Ground Fault Circuit Interrupter) protected circuit when used in bathrooms and all other locations required by the National Electric Code.
SAVE THESE INSTRUCTIONS
PARTS

Craft Series Cabinet
(3-4) Glass Shelves
[211-1329]
(2) Robern Logo Coverplates

ACCESSORIES
Scan the available QR codes to learn more about these accessories at Robern.com
[P2SMKITXXD4P]
Surface Mount Kit
XX (Heights available): 30, 40
[P2ELECTRIC*]
Portray Electric Upgrade
For Electric Upgrade Instructions:
[DLB-XX]
IQ Digital Lock Box
XX (Widths available): 20, 24
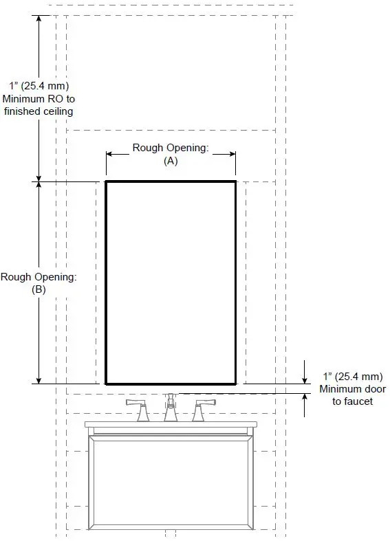
DIMENSIONS
Determine overall cabinet dimensions. If recessing cabinet, see chart to determine rough-in dimensions.

Rough Opening (RO) for recessed installation in chart below.
Number in the column headings below reference the cabinet dimensions from the model number, width and height (WWHH).
| Industrial / Thin Frame | Round Corner | |||
| 2030 | 2440 | 2034 | 2444 | |
| A | 19-1/4″ (489 mm) | 23-1/4″ (591 mm) | 19-1/4″ (489 mm) | 23-1/4″ (591 mm) |
| B | 30″ (762 mm) | 39-3/8″ (1000 mm) | 34-1/4″ (870 mm) | 43-5/8″ (1108 mm) |
| RO (A) | 18-1/2″ (470 mm) | 22-1/2″ (572 mm) | 18-1/2″ (470 mm) | 22-1/2″ (572 mm) |
| RO (B) | 29-1/4″ (743 mm) | 38-5/8″ (982 mm) | 29-1/4″ (743 mm) | 38-5/8″ (982 mm) |
RECESS MOUNTING
These instructions are for recess mounting your cabinet. For a surface mount installation, refer to the instructions included with the surface mount kit (sold separately, see page 4). Before beginning installation, remove and set the door aside in a safe place.
- Remove door from cabinet by taking the hinges off of the mounting plates.
- Place the cabinet box into the rough opening with the hinges on the desired side. Check for square, plumb, and level.
Electrical Option Cabinets: Provide separate electrical connections for electrical options. Pull electric wire through the cabinet hole. Be sure to provide enough wire to make proper and safe connections to Portray Electric Upgrade.
WARNING: An Electrical option cabinet must be wired to a Class A 20 Amp GFCI (Ground Fault Circuit Interrupter) protected circuit when used in bathrooms and all other locations required by the National Electric Code. - Install a #10 X 2” screw [SS674] through top mounting hole in cabinet side and screw into wall stud.
- Once cabinet is installed square, plumb, and level, install #10 X 2” screws into wall studs through the three remaining mounting holes.
NOTE: Do not over-tighten screws or cabinet box may deform.
FINAL ASSEMBLY
- Align the door and reattach hinges to mounting plates until audible click is heard. Ensure all hinges are fully seated before attempting to adjust door.
- If desired, the slow close feature can be deactivated on one of the hinges. Swing the door closed once for the deactivation to be complete. To reactivate, move switch back to original position.
NOTE: The door hinges have a three-way adjustment feature. These adjustments can be made using a #2 Phillips-head screwdriver. - A. Side adjustment – Rotate front screw to increase or decrease door overlay.
- B. Height adjustment – Rotate cam screw on mounting plate to adjust door.
- C. Depth adjustment – Rotate rear spiral tech cam screw to adjust door gap.

- Press the shelf hole plugs [SS134] into the unused holes inside the cabinet. Place the screw head caps [SS672] over any exposed screw heads.
- Install a Robern logo coverplate [211-1329] into each unused electrical access hole.
- Insert clear shelf clips [211-1376 and 211-1377] into the holes in the back channel on the sides of the cabinet.
- Push the back of the shelf into both the left and right clips (A). Snap the shelf down into the clips (B).

USE AND MAINTENANCE
CAUTION: Maximum shelf load 34 LBS
The cabinet door and interior are constructed of mirrored glass and aluminum. Use only a damp cloth to clean. Ammonia or vinegar-based cleaners can damage mirrors.
A 50/50 solution of water and isopropyl alcohol is recommended for cleaning the mirrors. A mild detergent may be used on the surfaces. When cleaning, spray the cloth, not the cabinet, mirror, or surround surfaces. Do not use abrasive cleansers on any part of the product.
NOTE: Do not store items in the cabinet area directly behind the hinge as damage may occur to cabinet or items.
WARRANTY
Limited Warranty One Year Term
ROBERN warrants to the original purchaser that, it will, at its election repair, replace, or make appropriate adjustment to products made by this company shown to have significant defects in material or workmanship which are reported to ROBERN in writing
within one (1) year from the date of delivery. ROBERN is not responsible for installation costs. The warranty is void in the event the product is damaged in transit, or if damage or failure is caused by abuse, misuse, abnormal usage, faulty installation, damage in an accident, improper maintenance, or any repairs other than those authorized by ROBERN. At the expiration of the one year warranty period, ROBERN shall be under no further obligation under any warranty, expressed or implied, including the implied warranty of merchantability. ROBERN shall not be liable for any consequential damages arising out of or in connection with the use or performance of its products. Some states do not allow limitations on how long an implied warranty lasts or do not allow the exclusion or limitation of incidental or consequential damages, so the above limitation or exclusion may not apply to you. Any liability against ROBERN under any implied warranty, including the warranty of merchantability, is expressly limited to the terms of this warranty. Permission to return any merchandise under this warranty must be authorized by ROBERN and returned prepaid by the purchaser. Claims under this warranty should be sent directly to your dealer.
© 2022 ROBERN, INC.
ALL RIGHTS RESERVED
Scan the QR code to see the entire Craft series of cabinets. 
Use the camera app on your mobile device to look at this and other QR codes. This will allow you to quickly access web pages and other relevant documents.
© 2022 Robern, Inc. 701 N. Wilson Ave. Bristol, PA 19007 U.S.A. 800.877.2376 www.robern.com

NOTE: The door hinges have a three-way adjustment feature. These adjustments can be made using a #2 Phillips-head screwdriver.

















