KHC180 15 Ton Heat Pump Units
Instruction Manual
INSTALLATION INSTRUCTIONS
KHC180 (15‐TON),KHC240 (20‐TON), HEAT PUMP UNITS
506916-03 11/2022
Supersedes 506916-02
KHC180 15 Ton Heat Pump Units
WARNING
Improper installation, adjustment, alteration, ser vice or maintenance can cause property damage, personal injury or loss of life. Installation and ser vice must be performed by a qualified installer, ser vice agency or the gas supplier
WARNING
To prevent serious injury or death:
- Lock-out/tag-out before performing maintenance.
- If system power is required (e.g., smoke detector mainte nance), disable power to blower, remove fan belt where applicable, and ensure all controllers and thermostats are set to the “OFF” position before performing maintenance.
- Always keep hands, hair, clothing, jewelry, tools, etc., away from moving parts.
RETAIN THESE INSTRUCTIONS FOR FUTURE REFERENCE
KHC180 & 240 Parts Arrangement

CAUTION
As with any mechanical equipment, contact with sharp sheet metal edges can result in personal in jury. Take care while handling this equipment and wear gloves and protective clothing.
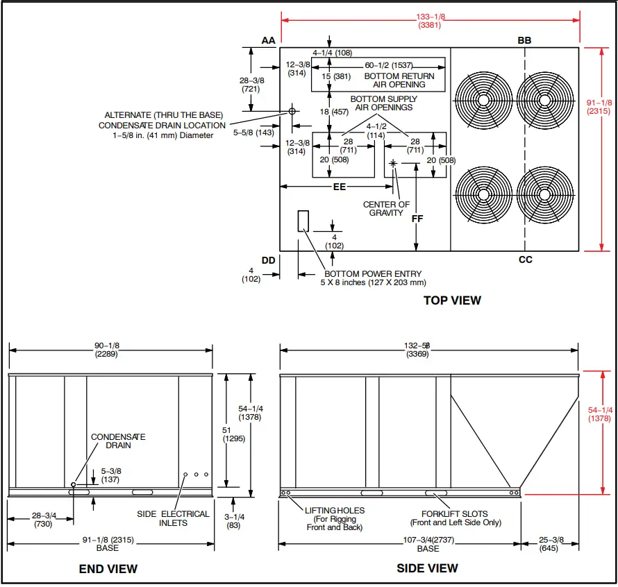
KHC180 & 240 Dimensions
Shipping and Packing List
Package 1 of 1 contains:
1- Assembled unit
Check unit for shipping damage. Receiving party should contact last carrier immediately if shipping damage is found.
General
These instructions are intended as a general guide and do not supersede local codes in any way. Authorities having jurisdiction should be consulted before installation.
KHC units have 15- and 20-ton cooling capacities.
Optional electric heat is available.
Supply air inverters (variable frequency drive or VFD) are standard in all units. The blower will operate at lower speeds when cooling demand is low and increase to higher speeds when cooling demand is high. Refer to Supply Air Inverter Start-Up section.
Availability of units and options varies by brand.
Requirements
The KHC unit is ETL certified for outdoor installations only at the clearances to combustible materials listed on unit nameplate and in figure 1.
Installation of KHC heat pumps must conform with standards in National Fire Protection Association (NFPA) “Standard for Installation of Air Conditioning and Ventilating Systems NFPA No. 90A,” “Standard for Installation of Residence Type Warm Air Heating and Air conditioning Systems NFPA No. 90B,” local municipal building codes and manufacturer’s installation instructions.
The National Electric Code (ANSI/NFPA No. 70-1984) is available from:
National Fire Protection Association
470 Atlantic Avenue
Boston, MA 02210 
| 1Unit Clearance | Ain.(mm) | Bin.(mm) | Cin.(mm) | Din.(mm) | Top Clearance |
| Service Clearance | 45 (1143) | 36 (914) | 36 (914) | 66(1676) | Unob structed |
| Minimum Opera tion Clearance | 45 (1143) | 36 (914) | 36 (914) | 41 (1041) | Unob structed |
Note – Entire perimeter of unit base requires support when elevated above mounting surface.
Service Clearance – Required for removal of serviceable parts.
Clearance to Combustibles- On units with optional electric heat, see clearance to combustible materials as outlined on heater rating plate.
Minimum Operation Clearance – Required clearance for proper unit operation.
WARNING![]()
Electric shock hazard and danger of explosion. Can cause injury, death or product or property damage. Turn off gas and electrical power to unit before performing any maintenance or servicing operations on the unit. Follow lighting instructions attached to unit when putting unit back into operation and after service or maintenance.
NOTICE
Roof Damage!
This system contains both refrigerant and oil. Some rubber roofing material may absorb oil, causing the rubber to swell. Bubbles in the rubber roofing material can cause leaks. Protect the roof surface to avoid exposure to refrigerant and oil during service and installation. Failure to follow this notice could result in damage to roof surface.
The KHC unit is ETL/CSA certified as a heat pump with cooling and with or without auxiliary electric heat for non-residential use only at the clearances to combustible materials as listed on the unit nameplate and in figure 1.
Installation of ETL/CSA certified units must conform with current standard C273.5 “Installation Requirements for
Heat Pumps” and applicable local codes. Authorities having jurisdiction should be consulted before installation.
Use of this unit as a construction heater or air conditioner is not recommended during any phase of construction.
Very low return air temperatures, harmful vapors and operation of the unit with clogged or misplaced filters will damage the unit.
If this unit has been used for heating or cooling of buildings or structures under construction, the following conditions must be met or the warranty will be void:
- A room thermostat must control the unit. The use of fixed jumpers that will provide continuous heating or cooling is not allowed.
- A pre-filter must be installed at the entry to the return air duct.
- The return air duct must be provided and sealed to the unit.
- Return air temperature range between 55°F (13°C) and 80°F (27°C) must be maintained.
- Air filters must be replaced and pre-filter must be removed upon construction completion.
- The unit components, duct system, air filters and evaporator coil must be thoroughly cleaned following final construction clean-up.
- The unit operating conditions (including airflow, cooling operation, and heating operation) must be verified according to these installation instructions.
This appliance is not to be used by persons with reduced physical, sensory or mental capabilities, or lack of experience and knowledge, unless they have been given supervision or instruction.
This appliance should not be used by children. Children should be supervised to ensure they do not play with the appliance.
IMPORTANT
The Clean Air Act of 1990 bans the intentional vent ing of refrigerant (CFC’s and HCFC’s) as of July 1, 1992. Approved methods of recovery, recycling or reclaiming must be followed. Fines and/or incar ceration may be levied for non-compliance.
Unit Support
NOTE – Securely fasten roof frame to roof per local codes.
A-Downflow Discharge Application
Roof Mounting with LARMF18/36
- The LARMF18/36 roof mounting frame must be installed, flashed and sealed in accordance with the instructions provided with the frame.
- The LARMF18/36 roof mounting frame should be square and level to 1/16” per linear foot (5mm per linear meter) in any direction.
- Duct must be attached to the roof mounting frame and not to the KHC unit; supply and return plenums must be installed before setting the unit.
- Trim and discard any pieces of exposed insulation which extend past the edges of the roof mounting frame.
Installer’s Roof Mounting Frame
Many types of roof frames can be used to install the KHC unit, depending upon different roof structures.
Items to keep in mind when using the building frame or supports are:
- The KHC base is fully enclosed and insulated, so an enclosed frame is not required.
- The frames or supports must be constructed with non-combustible materials and should be square and level to 1/16” per linear foot (5mm per linear meter) in any direction.
- Frame or supports must be high enough to prevent any form of moisture from entering unit. Recommended minimum frame height is 14” (356mm).
- Duct must be attached to the roof mounting frame and not to the KHC unit. Supply and return plenums must be installed before setting the unit.
- Units require support along all four sides of unit base. Supports must be constructed of steel or suitably treated wood materials.
NOTE-When installing an KHC unit on a combustible surface for downflow discharge applications, the LARMF18/36 roof mounting frame is required.
B-Horizontal Discharge Applications
- Units installed in horizontal airflow applications must use an LARMFH18/24 horizontal roof mounting frame. The supply air duct connects to the horizontal supply air opening on the LARMFH18/24. The return air duct connects to the unit horizontal return air opening. Refer to unit dimensions.
- Specified installation clearances must be maintained when installing KHC units. Refer to figure 1.
- Top of support slab should be at least 4” (102mm) above the finished grade and located so no run-off water from higher ground can collect around the unit.
- Units require support along all four sides of unit base. Supports must be constructed of steel or suitably treated wood materials.
Duct Connection
All exterior ducts, joints, and openings in roof or building walls must be insulated and weatherproofed with flashing and sealing compounds in accordance with applicable codes. Any duct passing through an unconditioned space must be insulated.
CAUTION
In downflow applications, do not drill or punch holes in base of unit. Leaking in roof may occur if unit base is punctured.
Rigging Unit For Lifting
- Detach wooden base protection before rigging.
- Connect rigging to the unit base using both holes in each corner. See figure 2.
- All panels must be in place for rigging.
- Place field‐provided H‐style pick in place just above top edge of unit. Frame must be of adequate strength and length. (H-style pick prevents damage to top of unit.)
Condensate Drains
Remove plug and make drain connection to the 1” N.P.T. drain coupling provided on unit. A trap must be installed between drain connection and an open vent for proper condensate removal. See figure 3 or 4. It is sometimes acceptable to drain condensate onto the roof or grade; however, a tee should be fitted to the trap to direct condensate downward. The condensate line must be vented. Check local codes concerning condensate disposal. Refer to pages 2 and 3 for condensate drain location.
Note – The drain pan is made with a glass reinforced engineered plastic capable of withstanding typical joint torque but can be damaged with excessive force. Tighten pipe nipple hand tight and turn an additional quarter turn.
Electrical Connections
WARNING
Electric shock hazard.
Can cause injury or death. Before attempting to perform any service or maintenance, turn the electrical power to unit OFF at disconnect switch(es). Unit may have multiple power supplies.
POWER SUPPLY
A-Wiring
Do not apply power or close disconnect switch until installation is complete. Refer to start-up directions. Refer to unit nameplate for minimum circuit ampacity and maximum fuse size.
- Units are factory-wired for 240/460/575 volt supply.
For 208V supply, remove the insulated terminal cover from the 208V terminal on the control transformer. Move the wire from the transformer 240V terminal to the 208V terminal. Place the insulated terminal cover on the unused 240V terminal. - Route power through the bottom power entry area and connect to L1, L2, and L3 on TB2 in incoming power enclosure. See unit wiring diagram.
B-Unbalanced Three-Phase Voltage – VFD Units Only
Units equipped with an optional inverter (VFD) are designed to operate on balanced, three-phase power. Operating units on unbalanced three-phase power will reduce the reliability of all electrical components in the unit. Unbalanced power is a result of the power delivery system supplied by the local utility company.
Factory-installed inverters are sized to drive blower motors with an equivalent current rating using balanced three-phase power. When unbalanced three-phase power is supplied; the installer must replace the existing factory-installed inverter with an inverter that has a higher current rating to allow for the imbalance. Use table 1 to determine the appropriate replacement inverter.
TABLE 1
INVERTER UP-SIZING
| Factory-Installed Inverter HP | Replacement Inverter HP |
| 2 | 5 |
| 3 | 7-1/2 |
| 5 | 10 |
| 7-1/2 | 15 |
| 10 | 20 |
CONTROL WIRING
A-Thermostat Location
Room thermostat mounts vertically on a standard 2” X 4” handy box or on any non-conductive flat surface. Locate thermostat approximately 5 feet (1524mm) above the floor in an area with good air circulation at average temperature. Avoid locating the room thermostat where it might be affected by:
-drafts or dead spots behind doors and in corners
-hot or cold air from ducts
-radiant heat from sun or appliances
-concealed pipes and chimneys
B-Control Wiring
- Route thermostat cable or wires from subbase to unit TB1 in control box (refer to unit dimensions to locate bottom and side power entry).
IMPORTANT – Unless field thermostat wires are rated for maximum unit voltage, they must be routed away from line voltage wiring. Use wire ties located in control area to secure thermostat cable.
Use18 AWG wire for all applications using remotely installed electro-mechanical and electronic thermostats. - Install thermostat assembly in accordance with instructions provided with thermostat.
- Connect thermostat wiring to TB1 terminal as shown in figure 5 for electro-mechanical and electronic thermostats. If using other temperature control devices or energy management systems see instructions and wiring diagram provided by manufacturer.
IMPORTANT-Terminal connections at the subbase and TB1 must be made securely. Loose control wire connections may allow unit to operate but not with proper response to room demand.
Unit Power-Up
A-General
- Make sure that unit is installed in accordance with the installation instructions and applicable codes.
- Inspect all electrical wiring, both field‐ and factory‐installed, for loose connections. Tighten as required.
- Check to ensure that refrigerant lines do not rub against the cabinet or against other refrigerant lines.
- Check voltage at disconnect switch. Voltage must be within range listed on nameplate. If not, consult power company and have voltage condition corrected before starting unit.

- Make sure filters are in place before start‐up.
- Apply power to unit.
Blower Operation And Adjustments
A-Three Phase Scroll Compressor Voltage Phasing
Three phase scroll compressors must be phased sequentially to ensure correct compressor and blower rotation and operation. Compressor and blower are wired in phase at the factory. Power wires are color-coded as follows: line 1-red, line 2-yellow, line 3-blue.
- Observe suction and discharge pressures and blower rotation on unit start-up.
- Suction pressure must drop, discharge pressure must rise, and blower rotation must match rotation marking. If pressure differential is not observed or blower rotation is not correct:
- Disconnect all remote electrical power supplies.
- Reverse any two field-installed wires connected to the line side of TB2. Do not reverse wires at blower contactor.
- Make sure the connections are tight.
Discharge and suction pressures should operate at their normal start‐up ranges.
Units are equipped with a phase monitor located in the control compartment. The phase monitor will detect the phasing of incoming power. If the incoming power is out of
phase or if any of the three phases are lost, the indicating LED on the phase monitor will turn red and the unit will not start. In normal operation with correct incoming power phasing, the LED will be green.
B-Blower Operation
Initiate blower demand at thermostat according to instructions provided with thermostat. Unit will cycle on thermostat demand. The following steps apply to applications using a typical electro-mechanical thermostat.
- Set thermostat or temperature control device fan switch to AUTO or ON. With fan switch in ON position, blower will operate continuously. With fan switch in AUTO position, the blower will cycle with demand.
- Blower and entire unit will be off when thermostat or temperature control device system switch is in OFF position.
C-Blower Access
The blower assembly is secured to a sliding base which allows the entire assembly to be pulled out of the unit. See figure 7.
- Remove the clamp which secures the blower wiring to the blower motor base.
- Remove and retain screws on either side of sliding base. Pull base toward outside of unit. When pulling the base out further than 12” (305mm), disconnect wiring to K3 blower contactor T1, T2, and T3. Pull wiring toward blower to allow enough slack to slide the base out further.
- 3-Slide base back into original position when finished servicing. Replace the clamp and blower wiring in the previous location on the blower motor base. Reconnect wiring to K3 if it was disconnected.
- Replace retained screws on either side of the sliding base.
- Tighten two bolts on motor pulley side.
IMPORTANT – Align top edges of blower motor base and mounting frame base parallel before tightening two bolts on the other side of base. Motor shaft and blower shaft must be parallel. - Tighten two bolts on other side of base.
D-Determining Unit CFM
IMPORTANT – Units are factory-set to run the blower at full speed when there is a blower (G) demand without a heating or cooling demand. Use the following procedure to adjust motor pulley to deliver the full load cooling or heating CFM. See Supply Air Inverter Start-Up section to set blower CFM for all modes once the motor pulley is set.
- The following measurements must be made with a dry indoor coil and with air filters in place. Run blower without a cooling demand. Measure the indoor blower shaft RPM.
- With all access panels in place, measure static pressure external to unit (from supply to return). Blower performance data is based on static pressure readings taken in locations shown in figure 8.
Note – Static pressure readings can vary if not taken where shown. - Referring to page 10, use static pressure and RPM readings to determine unit CFM. Use page 11 when installing units with any of the optional accessories listed.
- The blower RPM can be adjusted at the motor pulley. Loosen Allen screw and turn adjustable pulley clockwise to increase CFM. Turn counterclockwise to decrease CFM. See figure 7. Tighten Allen screw after adjustment. Do not exceed minimum and maximum number of pulley turns as shown in table 2.
TABLE 2
MINIMUM AND MAXIMUM PULLEY ADJUSTMENT
Belt | Minimum Turns Open | Maximum Turns Open |
| A Section | No minimum | 5 |
| B Section | 1* | 6 |
*No minimum number of turns open when B belt is used on pulleys 6” O.D. or larger.
E-Blower Belt Adjustment
Maximum life and wear can be obtained from belts only if proper pulley alignment and belt tension are maintained. Tension new belts after a 24-48 hour period of operation.
This will allow belt to stretch and seat grooves. Make sure blower and motor pulley are aligned as shown in figure 6.

F-Check Belt Tension
Overtensioning belts shortens belt and bearing life.
Check belt tension as follows:
- Measure span length X. See figure 9.
- Apply perpendicular force to center of span (X) with enough pressure to deflect belt 1/64” for every inch of span length or 1.5mm per 100mm of span length.
Example: Deflection distance of a 40” span would be 40/64” or 5/8”.
Example: Deflection distance of a 400mm span would be 6mm. - Measure belt deflection force. For a used belt, the deflection force should be 5 lbs. (35kPa) . A new belt deflection force should be 7 lbs. (48kPa).
A force below these values indicates an undertensioned belt. A force above these values indicates an overtensioned belt.
G-Field-Furnished Blower Drives
For field-furnished blower drives, use pages 10 and 11 to determine BHP and RPM required. Reference page 10 to determine the drive kit and table 3 to determine the manufacturer’s model number.
BLOWER DATA
BLOWER TABLE INCLUDES RESISTANCE FOR BASE UNIT ONLY WITH DRY INDOOR COIL & AIR FILTERS IN PLACE FOR ALL UNITS ADD:
- Wet indoor coil air resistance of selected unit.
- Any factory installed options air resistance (electric heat, economizer, etc.)
- Any field installed accessories air resistance (electric heat, duct resistance, diffuser, etc.)
Then determine from blower table blower motor output and drive required.
See page 10 for wet coil and option/accessory air resistance data.
See page 10 for factory installed drive kit specifications.
MINIMUM AIR VOLUME REQUIRED FOR USE WITH OPTIONAL ELECTRIC HEAT
All units require 6000 cfm minimum air with electric heat. 
BLOWER DATA
FACTORY INSTALLED BELT DRIVE KIT SPECIFICATIONS
| Nominal hp | Maximum hp | Drive Kit Number | RPM Range |
| 3 | 3.45 | 1 | 535 – 725 |
| 3 | 3.45 | 2 | 710 – 965 |
| 5 | 5.75 | 3 | 685 – 856 |
| 5 | 5.75 | 4 | 850 – 1045 |
| 5 | 5.75 | 5 | 945 – 1185 |
| 7.5 | 8.63 | 6 | 850 – 1045 |
| 7.5 | 8.63 | 7 | 945 – 1185 |
| 7.5 | 8.63 | 8 | 1045 – 1285 |
| 10 | 11.50 | 7 | 945 – 1185 |
| 10 | 11.50 | 10 | 1045 – 1285 |
| 10 | 11.50 | 11 | 1135 – 1365 |
NOTE – Using total air volume and system static pressure requirements determine from blower performance tables rpm and motor output required. Maximum usable output of motors furnished are shown. In Canada, nominal motor output is also maximum usable motor output. If motors of comparable output are used, be sure to keep within the service factor limitations outlined on the motor nameplate.
FACTORY INSTALLED OPTIONS/FIELD INSTALLED ACCESSORY AIR RESISTANCE – in. w.g.
| Air Volume cfm | Wet Indoor Coil | Electric Heat | Economizer | Filters | Horizontal Roof Curb | ||
| MERV 8 | MERV 13 | MERV 16 | |||||
| 3250 | 0.03 | – – – | – – – | 0.01 | 0.04 | 0.07 | 0.04 |
| 3500 | 0.03 | – – – | – – – | 0.01 | 0.04 | 0.08 | 0.05 |
| 3750 | 0.03 | – – – | – – – | 0.01 | 0.04 | 0.08 | 0.05 |
| 4000 | 0.04 | – – – | – – – | 0.01 | 0.04 | 0.09 | 0.06 |
| 4250 | 0.04 | – – – | – – – | 0.01 | 0.05 | 0.10 | 0.07 |
| 4500 | 0.05 | – – – | – – – | 0.01 | 0.05 | 0.10 | 0.07 |
| 4750 | 0.05 | – – – | – – – | 0.02 | 0.05 | 0.11 | 0.08 |
| 5000 | 0.05 | – – – | – – – | 0.02 | 0.06 | 0.12 | 0.08 |
| 5250 | 0.06 | – – – | – – – | 0.02 | 0.06 | 0.12 | 0.09 |
| 5500 | 0.07 | – – – | – – – | 0.02 | 0.06 | 0.13 | 0.10 |
| 5750 | 0.07 | – – – | – – – | 0.02 | 0.07 | 0.14 | 0.11 |
| 6000 | 0.08 | 0.01 | – – – | 0.03 | 0.07 | 0.14 | 0.11 |
| 6250 | 0.08 | 0.01 | 0.01 | 0.03 | 0.07 | 0.15 | 0.12 |
| 6500 | 0.09 | 0.01 | 0.02 | 0.03 | 0.08 | 0.16 | 0.13 |
| 6750 | 0.10 | 0.01 | 0.03 | 0.03 | 0.08 | 0.17 | 0.14 |
| 7000 | 0.10 | 0.01 | 0.04 | 0.04 | 0.08 | 0.17 | 0.15 |
| 7250 | 0.11 | 0.01 | 0.05 | 0.04 | 0.09 | 0.18 | 0.16 |
| 7500 | 0.12 | 0.01 | 0.06 | 0.04 | 0.09 | 0.19 | 0.17 |
| 8000 | 0.13 | 0.02 | 0.09 | 0.05 | 0.10 | 0.21 | 0.19 |
| 8500 | 0.15 | 0.02 | 0.11 | 0.05 | 0.10 | 0.22 | 0.21 |
| 9000 | 0.16 | 0.04 | 0.14 | 0.06 | 0.11 | 0.24 | 0.24 |
| 9500 | 0.18 | 0.05 | 0.16 | 0.07 | 0.12 | 0.25 | 0.26 |
| 10,000 | 0.20 | 0.06 | 0.19 | 0.07 | 0.12 | 0.27 | 0.29 |
| 10,500 | 0.22 | 0.09 | 0.22 | 0.08 | 0.13 | 0.29 | 0.31 |
| 11,000 | 0.24 | 0.11 | 0.25 | 0.09 | 0.14 | 0.30 | 0.34 |
TABLE 3 MANUFACTURER’S NUMBERS
| Drive No. | H.P. | DRIVE COMPONENTS | |||||||||
| RPM | ADJUSTABLE SHEAVE | FIXED SHEAVE | BELTS | SPLIT BUSHING | |||||||
| Min | Max | Supplier No. | OEM PartNo. | Supplier No. | OEM Part No. | Supplier No. | OEM PartNo. | Supplier No. | OEM Part No. | ||
| 1 | 3 | 535 | 725 | 1VP40x7/8 | 79J0301 | BK95X1-3/16 | 105617-02 | BX59 | 59A5001 | N/A | N/A |
| 2 | 3 | 710 | 965 | 1VP40x7/8 | 79J0301 | BK72x1‐3/16 | 105617-01 | BX56 | 63K0501 | N/A | N/A |
| 3 | 5 | 685 | 865 | 1VP50x1-1/8 | P-8-1977 | BK100x1‐3/16 | 105617-03 | BX61 | 93J9801 | N/A | N/A |
| 4 | 5 | 850 | 1045 | 1VP65x1-1/8 | 100239-03 | BK110H | 100788-06 | BX65 | 100245-08 | H-1-3/16 | 105616-02 |
| 5 | 5 | 945 | 1185 | 1VP60x1-1/8 | 41C1301 | BK90H | 100788-04 | BX61 | 93J9801 | H-1-3/16 | 105616-02 |
| 6 | 7.5 | 850 | 1045 | 1VP65x1-3/8 | 78M7101 | BK110H | 100788-06 | BX66 | 97J5901 | H-1-3/16 | 105616-02 |
| 7 | 7.5, 10 | 945 | 1185 | 1VP60x1-3/8 | 78L5501 | BK90H | 100788-04 | BX63 | 97J5501 | H-1-3/16 | 105616-02 |
| 8 | 7.5 | 1045 | 1285 | 1VP65x1-3/8 | 78M7101 | BK90H | 100788-04 | BX64 | 97J5801 | H-1-3/16 | 105616-02 |
| 10 | 10 | 1045 | 1285 | 1VP65x1-3/8 | 78M7101 | 1B5V86 | 78M8301 | 5VX670 | 100245-21 | B-1-3/16 | 105616-01 |
| 11 | 10 | 1135 | 1365 | 1VP65x1-3/8 | 78M7101 | 1B5V80 | 100240-05 | 5VX660 | 100245-20 | B-1-3/16 | 105616-01 |
Cooling Start-Up
A-Start-Up
Refer to Supply Air Inverter Start-Up section for blower operation.
- Remove coil covers before starting unit.
- Set thermostat or temperature control device fan switch to AUTO or ON. Set thermostat or temperature control device to initiate a first-stage cooling demand.
A first-stage (Y1) cooling demand will energize compressor 1 and outdoor fans 1 & 2. An increased cooling demand (Y2) will initiate compressor 2 and outdoor fans 3 &
4 On units with an economizer, when outdoor air is acceptable, a first-stage demand will energize the economizer; a second-stage demand will energize compressor 1 and outdoor fans 1 & 2. - Refrigerant circuits are factory charged with R-410A refrigerant. See unit rating plate for correct amount of charge.
- Units contain two refrigerant circuits or systems. See figure 10.
B-Refrigerant Charge and Check
WARNING-Do not exceed nameplate charge under any condition.
This unit is factory charged and should require no further adjustment. If the system requires additional refrigerant, reclaim the charge, evacuate the system, and add required nameplate charge.
NOTE – System charging is not recommended below 60°F (15°C). In temperatures below 60°F (15°C), the charge must be weighed into the system. If weighing facilities are not available, or to check the charge, use the following procedure:
- Attach gauge manifolds and operate unit in cooling mode with economizer disabled until system stabilizes (approximately five minutes). Make sure all outdoor air dampers are closed.
- Check each system separately with all stages operating.
- Use a thermometer to accurately measure the outdoor ambient temperature.
- Apply the outdoor temperature to table 4 or 5 to determine normal operating pressures. Pressures are listed for sea level applications at 80°F dry bulb and 67°F wet bulb return air.
- Compare the normal operating pressures to the pressures obtained from the gauges. Minor variations in these pressures may be expected due to differences in installations. Significant differences could mean that the system is not properly charged or that a problem exists with some component in the system. Correct any system problems before proceeding.
- If discharge pressure is high, remove refrigerant from the system. If discharge pressure is low, add refrigerant to the system.
• Add or remove charge in increments.
• Allow the system to stabilize each time refrigerant is added or removed. - Use the following approach method along with the normal operating pressures to confirm readings.
TABLE 4
KHC180 NORMAL OPERATING PRESSURES
| Outdoor Coil En tering Air Temp | Circuit 1 | Circuit 2 | ||
| Dis. +10 psig | Suc. +5 psig | Dis. +10 psig | Suc. +5 psig | |
| 65°F | 253 | 137 | 265 | 133 |
| 75°F | 288 | 140 | 304 | 135 |
| 85°F | 330 | 142 | 346 | 138 |
| 95°F | 376 | 144 | 385 | 141 |
| 105°F | 423 | 147 | 445 | 144 |
| 115°F | 475 | 150 | 499 | 147 |
TABLE 5
KHC240 NORMAL OPERATING PRESSURES
| Outdoor Coil En tering Air Temp | Circuit 1 | Circuit 2 | ||
| Dis. +10 psig | Suc. +5 psig | Dis. +10 psig | Suc. +5 psig | |
| 65°F | 273 | 134 | 283 | 130 |
| 75°F | 312 | 136 | 323 | 133 |
| 85°F | 355 | 139 | 367 | 135 |
| 95°F | 398 | 140 | 406 | 137 |
| 105°F | 453 | 144 | 468 | 141 |
| 115°F | 511 | 147 | 524 | 145 |
C-Charge Verification – Approach Method – AHRI Testing
- Using the same thermometer, compare liquid temperature to outdoor ambient temperature. Approach Temperature = Liquid temperature (at condenser outlet) minus ambient temperature.
- Approach temperature should match values in table 6. An approach temperature greater than value shown indicates an undercharge. An approach temperature less than value shown indicates an overcharge.
- The approach method is not valid for grossly over or undercharged systems. Use table 4 or 5 as a guide for typical operating pressures.
TABLE 6
APPROACH TEMPERATURES
| Unit | Liquid Temp. Minus Ambient Temp. | |
| 1st Stage | 2nd Stage | |
| 180 | 3°F + 1 (2°C + 0.5) | 8°F + 1 (4°C + 0.5) |
| 240 | 5°F + 1 (3°C + 0.5) | 9°F + 1 (5°C + 0.5) |
D-Compressor Controls
- High Pressure Switches (S4, S7)
Compressor circuits are protected by a high pressure switch which cuts out at 640 psig + 10 psig (4413 kPa + 70 kPa). - Freezestats (S49, S50)
Switches de-energize compressors when indoor coil temperature falls below 29°F (-2°C) to prevent coil freeze-up. Switches reset when indoor coil temperature reaches 58°F (15°C). - Defrost Switches (S6, S9)
Defrost switches close to initiate defrost when liquid line temperature falls to 35°F (1.7°C). The defrost switch is located on the liquid line between the outdoor expansion valve and the distributor - Defrost Termination Switches (S46, S104)
Defrost pressure switches open to terminate defrost when vapor line (discharge pressure during cooling and defrost) pressure reaches 450 psig (3103 kPa). - Defrost Controls (CMC1, CMC2)
Defrost is liquid line temperature initiated and operates for 14 minutes unless terminated by vapor line pressure drop.
When the liquid line temperature drops below 35°F, the defrost switch closes and signals the defrost control that a defrost cycle is needed. If the defrost switch is still closed after 60 minutes (default), a defrost cycle begins and operates for 14 minutes. The defrost pressure switch can terminate the defrost cycle before the 14 minutes elapses if vapor line pressure reaches 450 + 10 psi. - Electric heat is energized during defrost to maintain discharge air temperature.
Heating Start-Up
1- Set thermostat or temperature control device to initiate a first-stage heating demand.
A first-stage heating demand (W1) will energize compressors 1 and 2. All four outdoor fans are energized with a W1 demand.
KHC Units With Optional Electric Heat – An increased heating demand (W2) will energize electric heat.
Defrost Control Board
The defrost thermostat, defrost pressure switch and the defrost control work together to ensure that the heat pump outdoor coil does not ice excessively during the heating mode.
Compressor Accumulated Run-Time Interval
The defrost control will not energize a defrost cycle unless the unit has been operating in heating mode for an accumulated 60 minutes (default) on 100269-02 boards; 90 minutes (default) on 100269-07 boards. The run time interval can be changed by moving the jumper on the CMC board timing pins. See figure 11.
The defrost interval can be adjusted to 30, 60, or 90 minutes. The defrost timing jumper is factory-installed to provide a 60-minute defrost interval. If the timing selector jumper is not in place, the control defaults to a 90-minute defrost interval.
Note – When adjusting timing pins, set both CMC1 and
CMC2 defrost controls to the same defrost interval.
Defrost Test Option
A TEST option is provided for troubleshooting. The TEST mode may be started any time the unit is in the heating mode and the defrost thermostat is closed or jumpered. If
the timing jumper is in the TEST position at power‐up, the defrost control will ignore the test pins. When the jumper is placed across the TEST pins for two seconds, the control will enter the defrost mode. If the jumper is removed before an additional 5-second period has elapsed (7 seconds total), the unit will remain in defrost mode until the defrost pressure switch opens or 14 minutes have passed. If the jumper is not removed until after the additional 5-second period has elapsed, the defrost will terminate and the test option will not function again until the jumper is removed and re-applied. Diagnostic LEDs
The defrost board uses two LEDs for diagnostics. The LEDs flash a sequence according to the condition.
TABLE 7
Defrost Control Board Diagnostic LED | ||
| Indicates | LED 1 | LED 2 |
| Normal operation / power to board | Synchronized Flash with LED 2 | Synchronized Flash with LED 1 |
| Board failure / no power | Off | Off |
| Board failure | On | On |
| Pressure switch open | Flash | On |

Supply Air Inverter Start-Up
A-General
Supply air inverters provide two blower speeds. The blower will operate at lower speeds when cooling demand is low and higher speeds when cooling demand is high.
This results in lower energy consumption. Units will operate at high speed during ventilation (blower “G” only signal) but can be adjusted to operate at low speed.
Low speed is approximately 2/3 of the full speed RPM.
B-Set Maximum Blower CFM
- Initiate a blower (G) only signal from the room thermostat or control system.
- Adjust the blower pulley to deliver the full (high speed) CFM in the typical manner. See Determining Unit CFM in the Blower Operation and Adjustment section.
C-Set Blower Speed During Ventilation
To save energy during ventilation, the blower speed can be set to low. This is accomplished by changing the ventilation speed switch on the VFD control board to “LO”.
See figure 12.
Note – On units equipped with an economizer, set damper minimum position as shown in the next section. After adjusting the low speed minimum position, the ventilation speed switch will be in the “LO” position.
D-Set Damper Minimum Position (Units W/ Economizer)
To maintain required minimum ventilation air volumes when the unit is in the occupied mode, two minimum damper positions must be set. A high and a low speed potentiometer are provided on the VFD control board to adjust minimum damper position. See figure 12.
Set High Speed Minimum Position
- Initiate a blower (G) only AND occupied demand from the room thermostat or control system.
- Set the ventilation speed switch on the VFD control board to “HI”.
- Rotate the high speed potentiometer on the VFD control board to set the high speed minimum damper position.
- Measure the intake air CFM. If the CFM is lower than the design specified CFM for ventilation air, use the potentiometer to increase the damper percent open.
If the CFM is higher than specified, decrease the damper percent open.
Note – Intake air CFM can also be determined using the outdoor air temperature, return air temperature and mixed air temperature. Refer to the economizer or outdoor air damper installation instructions.
Set Low Speed Minimum Position
- Initiate a blower (G) only AND occupied demand from the room thermostat or control system.
- Set the ventilation speed switch on the VFD control board to “LO”.
- Rotate the low speed potentiometer on the VFD control board to set the low speed minimum damper position.
- Measure the intake air CFM. If the CFM is lower than the design specified CFM for ventilation air, use the potentiometer to increase the damper percent open.
If the CFM is higher than specified, decrease the damper percent open.
Note – Intake air CFM can also be determined using the outdoor air temperature, return air temperature and mixed air temperature. Refer to the economizer or outdoor air damper installation instructions.
Troubleshoot LVC2 Board (A183)
Refer to wiring diagram sections B (unit), C (control) and D (economizer) located on inside of unit panels.
- Inspect the LVC2 for damaged components. Replace the LVC2 if damaged components are found.
- Check all wire connections to LVC2; secure if loose.
- Check for 24VAC signal at the thermostat blower input (G to GND terminal). See figure 13.

- If there is no thermostat signal, troubleshoot back toward the thermostat.
- Check the power LED on the board. See figure 12.
- If the power LED is not on, check voltage between LVC2 terminals PC (H2-1) and SD (H2-5). Voltage should read 24VDC.
- If voltage does not read 24VDC, disconnect the H2 header from the LVC2 VFD inputs terminal block (to make sure the LVC2 is not shorting 24VDC supply from the inverter). Measure the voltage between the end terminals on the H2 header. If 24VDC is present, replace the LVC2 board. If no voltage is read, troubleshoot the VFD.
- When LVC2 24VAC thermostat blower (G) input and 24VDC power are present, check the LVC2 low and high speed outputs. The LVC2 uses inverse logic to enable the blower; 1VDC will be read at the enabled blower speed terminal. See table 8.
- If all inputs are correct and the unit still does not operate as intended, replace LVC2 board.
TABLE 8
LVC2 BOARD BLOWER OUTPUTS
| Output Terminals | Voltage | Blower Operation |
| RL-SD | 1VDC | Low Speed |
| RH-SD | 24VDC | |
| RL-SD | 24VDC | High Speed |
| RH-SD | 1VDC | |
| RL-SD | 1VDC | Illegal State (replace board) |
| RH-SD | 1VDC | |
| RL-SD | 24VDC | Blower Off (replace board) |
| RH-SD | 24VDC |
Service
CAUTION
Label all wires prior to disconnection when servic ing controls. Wiring errors can cause improper and dangerous operation. Verify proper operation after servicing.
The unit should be inspected once a year by a qualified service technician.
A-Lubrication
All motors are lubricated at the factory. No further lubrication is required.
Blower shaft bearings are prelubricated. For extended bearing life, relubricate at least once every two years with a lithium base grease, such as Alvania 3 (Shell Oil), Chevron BRB2 (Standard Oil) or Regal AFB2 (Texas Oil).
Use a hand grease gun for relubrication. Add only enough grease to purge through the bearings so that a bead of grease appears at the seal lip contacts.
B-Filters
Units are equipped with six 24 X 24 X 2” filters. Filters should be checked and replaced when necessary with filters of like kind and size. Take note of air flow direction marking on filter frame when reinstalling filters. See figure 14.
NOTE-Filters must be U.L.C. certified or equivalent for use in Canada.
C-Indoor Coil
Inspect and clean coil at beginning of each cooling and heating season. Clean using mild detergent or commercial coil cleaner. Flush coil and condensate drain with water taking care not to get insulation, filters and return air ducts wet.
D-Supply Air Blower Wheel
Annually inspect supply air blower wheel for accumulated dirt or dust. Turn off power before attempting to remove access panel or to clean blower wheel.
E-Outdoor Coil
Clean condenser coil annually with water and inspect monthly during the cooling season.
Clean the coil by spraying the coil steadily and uniformly from top to bottom. Do not exceed 900 psi or a 45° angle; nozzle must be at least 12 inches from the coil face. Take care not to fracture the braze between the fins and refrigerant tubes. Reduce pressure and work cautiously to prevent damage.
START-UP REPORT
Job Name:___________________________________
Store No.___________Start-Up Date:______________
Address:_____________________________________
City:______________________________State:______
Start-Up Contractor:____________________________
Technician:___________________________________
Model No.:___________________________________
Serial No.:____________________________________
RTU No.:________ Catalog No.:__________________
Inspections and Checks
Damage? Yes No R22_____ R410A_____
If yes, reported to:____________________________
Verify factory and field-installed accessories.
Check electrical connections. Tighten if necessary.
Supply voltage: L1-L2______L1-L3_____L2-L3_____
If unit contains a 208-230/240 volt transformer:
Check primary transformer tap _____
Transformer secondary voltage: __________
| Cooling Checks | ||||||||||||
| Compressor Rotation _____ Ambient Temp. Return Air Temp. Supply Air Temp. | ||||||||||||
| Compressor Amps | Compressor Volts | Pressures | Condenser Fan Amps | CC Heater Amps | ||||||||
| L1 | L2 | L3 | L1-L2 | L1-L3 | L2-L3 | Disch. | Suct. | L1 | L2 | L3 | L1 | |
| 1 | ||||||||||||
| 2 | ||||||||||||
| 3 | ||||||||||||
| 4 | ||||||||||||
| Blower Checks |
| Pulley/Belt Alignment Blower Rotation Set Screws Tight Belt Tension Nameplate Amps: Volts: Motor……………………Amps………………Volts L1 L1-L2 L2 L1-L3 L3 L2-L3 |
| Heating Checks – Gas | ||
| Fuel type: Nat. LP Inlet Pressure: in. w.c. Return Air Temp.: Supply Air Temp.: Altitude: Primary Limits Operate: | ||
| CO2%: | ||
| Gas Valve | Manifold Pressure | |
| Low Fire | High Fire | |
| GV1 | ||
| GV2 | ||
| Control Type |
| Heating Checks – Electric | |||||||
| Return Air Temp.: Supply Air Temp.: Limits Operate: | |||||||
| Amps | |||||||
| L1 | L2 | L3 | L1 | L2 | L3 | ||
| 1 | 10 | ||||||
| 2 | 11 | ||||||
| 3 | 12 | ||||||
| 4 | 13 | ||||||
| 5 | 14 | ||||||
| 6 | 15 | ||||||
| 7 | 16 | ||||||
| 8 | 17 | ||||||
| 9 | 18 | ||||||
| Accessory Checks |
| Power Exhaust Amps 1 2 None |
| Economizer Operation Min. Pos. Motor travel full open/close |





















