CONDUCTIX wampfler SinglePowerLine 0812 Conductor Rails Bending Device

Product Information
The Bending Device SinglePowerLine 0812 is a tool used to bend conductor rails for various applications. It comes with two roller sets, 08-V015-0505 for vertical bends and 08-V015-0506 for horizontal bends. The device is designed to bend conductor rails in a specific direction of insertion (Y-axis) and bent around the X-axis for vertical bends and Y-axis for horizontal bends. The device is equipped with rollers that have a groove width of Wi-Fi=24.6 mm.
Product Usage Instructions
- Step 1: Before starting work, fix the bending device on a solid surface.
- Step 2: Loosen the groove nuts (1) using a hook wrench.
- Step 3: Slide on the roller set for the horizontal or vertical bend. Ensure that the feather key groove is correctly aligned.
Note:
When inserting into the machine, the insertion opening must always point away from the machine and is filled with an insert. Then the slot will not be compressed (by the existing play). The radius may only set when there is no conductor rail between the rollers. The rotational speed at the crank must not exceed 60-1(1sec-1).
Caution:
There is a risk of crushing fingers if intentionally used to reach into the running machine. Wear protective clothing (safety gloves, safety shoes, etc.) and do not reach into the running machine. Cuts and cutting off can occur on sharp edges of general components, sharp edges of conductor rails when removing the inner bar of the insulating profile, and on cut edges when trimming conductor rails. Wear protective clothing (cut protection gloves, arm protection, etc.).
Bending Device Function
With this bending device, with the corresponding roller sets, SinglePowerLine 0812 Conductor Rails can be bent horizontally and vertically. Likewise, ProfiDAT® compact 0515 Data Rails can be bent vertically (inner and outer radius). A minimum radius of R = 2 m can be achieved in all. These installation instructions explain how to handle the bending device when bending the SinglePowerLine 0812 Conductor Rails horizontally and vertically. For the ProfiDAT® compact 0515 Data Rails, see MV0515-0007-EN.
- Vertical bend: direction of insertion (Y-axis) /bent around X-axis
- Horizontal bend: direction of insertion (Y-axis) /bent around Y-axis
Notes
DANGER!
- Risk of crushing!
There is a risk of crushing fingers if intentionally used to reach into the running machine.- Wear protective clothing (safety gloves, safety shoes, etc.)!
- Do not reach into the running machine!
- Risk of injury due to cutting and cutting off!
Cuts and cutting off can occur:- on sharp edges of general components
- on sharp edges of conductor rails
- when removing the inner bar of the insulating profile
- on cut edges when trimming conductor rails
- Wear protective clothing (cut protection gloves, arm protection, etc.)!
CAUTION!
In the case of horizontal bends, the insertion opening in the insulating profile must always point away from the machine and an insert must be inserted!
Ensure that when inserting into the machine, the insertion opening always points away from the machine and is filled with an insert. Then the slot will not be compressed (by the existing play).
- Maintain rotational speed!
The rotational speed at the crank must not exceed 60-1(1sec-1)! - Set radius!
The radius may only set when there is no conductor rail between the rollers!
Required Device and Roller Sets
The Bending Device 08-V015-0504 is supplied without roller set.

The corresponding roller sets must be ordered separately.
| Roller Set for 0812 Vertical Bend (inner and outer bend) | Roller Set for 0812 Horizontal Bend (for inner and outer bend incl. insert, see Fig. 11) |
| 08-V015-0505 | 08-V015-0506 |
![]() | ![]() |
| For 0812 Vertical Inner Bend (VIB) required rollers from Roller Set 08-V015-0505 | For 0812 Vertical Outer Bend (VOB) required rollers from Roller Set 08-V015-0505 |
![]() | ![]() |
Design
Fig. 2: Bending device with roller set for 0812 Vertical bends outer – the upper roller has a groove with the width Wi=18.6 mm

Fig. 2: Bending device with roller set for 0812 Vertical bend outer – the upper roller has a groove with the width Wi=18.6 mm

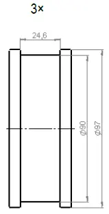
Fig. 4: Bending device with roller set for 0812 Horizontal inner and outer bends – the rollers (3x) have a groove with the width Wi=24.6 mm

Install Roller Set
Conductor rails can be bent horizontally and vertically with this bending device. The bending device is supplied without a roller set. For installation of the separately ordered roller set, a hook wrench with nose may be required (suitable for size 80-90 mm – KM13), with which the groove nut can be opened.

CAUTION!
Fix the bending device
Before starting work, fix the bending device on a solid surface!
Work steps:
- Loosen groove nuts (1)

- Slide on the roller set for the horizontal or vertical bend. Ensure that the feather key groove is correctly aligned.

Fig. 7: Slide on roller set (roller set for 0812 Horizontal bends shown here) - Slide the rollers up to the mechanical stop.

Fig. 8: Slid-on roller set (roller set for 0812 Horizontal bends shown here)
Fig. 9: Rollers fixed with groove nuts (roller set for 0812 Vertical inner bend shown here) - Tighten the groove nuts manually.
Produce Bend
- The 0812 conductor rail is bent, both horizontally and vertically, including a centrally aligned insulating profile.

Fig. 10: Centrally aligned insulating profile
Because the profile is asymmetrical, slight twisting cannot be completely ruled out. By installing the conductor rail bend in the hanger clamp, the conductor rail is generally well aligned, so that the passage of the current collector is not impeded.
CAUTION!
The conductor rail may deform during horizontal bending!
In the case of a deformed profile cross-section, there is a risk of sliding contact jamming.
- Use the supplied plastic inserts (4) (see Fig. 11) to counteract the deformation of the profile cross-section!

| Pos. | Name |
| 1 | Conductor rail made of aluminum |
| 2 | Conductor rail made of copper 400A |
| 3 | Conductor rail made of copper 250 A |
| 4 | Plastic inserts 2x 2m (Material No.: 46960) |
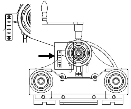
- At the beginning, the arrow at the diamond scale (to the left of the upper roll) should be on the 2nd diamond from the top (see Fig. 12 and Fig. 13).
- For setting up, the conductor rail to be bent (conductor rail with insulating profile) can also be placed on the two lower rollers, and the upper roller can be turned down until it rests on the conductor rail (see Fig. 14).
- Do not create any pressure on the conductor rail!
- Use the QR code (“click” or “scan”) to see our animation Rail Bending.

Work steps:
- Place the conductor rail in front of the bending device (e.g. roller blocks).
- The desired radius is achieved by the gradual positioning of the bending roller. From a radius of approx. 4 m with approx. one crank rotation, and for radii smaller than 4 m with max. ½ crank rotation (see Fig. 12 and Fig. 13).
CAUTION!
Positioning the roller with the conductor rail inserted can destroy the bending device!
Fig. 12: Position of bending roller (illustration with bending rollers for horizontal bends)

Fig. 13: Adjustment before start of bending (illustration with bending rollers for vertical inner bends)

Fig. 14: Position upper roller (1) until it comes into contact with the conductor rail (2) (e.g. horizontal bend)
| SinglePowerLine 0812 | ||||||
![]() | Vertical Inner Bend aluminum | Vertical Outer Bend copper 400A | Horizontal Bend copper 400A | |||
| Radius R of the rail [m] | Dimension S of the scale [mm] | Radius R of the rail [m] | Dimension S of the scale [mm] | Radius R of the rail [m] | Dimension S of the scale [mm] | |
| ~ 2 | ~ 27.5 | ~ 2 | ~ 26.5 | ~ 2 | ~ 33.5 | |
| ~ 2.5 | |25 | ~ 3 | ~ 24 | ~ 3 | ~ 33.2 | |
Table 1: Approximate settings of the diamond scale for SinglePowerLine 0812
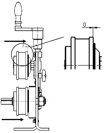
- Pull out the conductor rail, make approx. 1 to 2 rotations and fix the upper roller with a star knob screw on the back of the bending device (see Fig. 15).

Fig. 15: 1. Pull out rail / 2. Position
Fig. 16: Fix the upper roller - The conductor rail is gradually bent into ever smaller radii. The direction of rotation in which the deformation occurs should always be the same, i.e. after reaching an intermediate radius, first position again and then reinsert the conductor rail. The upper roller must always be fixed during bending.
- Repeat this process until the desired radius is reached. The approximate settings are shown in Table 1.
To bend the conductor rail, always insert it from the left and execute it on the right.




CAUTION!
When the outer bend is bent, the open insulating profile can be pulled inward at the ends. If this occurs, the inner bar can be removed over a length of up to 100 mm (see Fig. 20).
The inner bar is compressed through the bending due to the insulating profile that is open on one side. In the event of repeated feeding into the bending rollers, the profile can therefore split and be drawn inward by the roller. However, since the ends must be shortened after bending, the inner bar of the insulating profile can be cut to a length of up to 100 mm with a cutter blade.
DANGER!
The danger of cutting!
There is a risk of cutting when removing the inner bar of the insulating profile.
- Wear protective clothing (cut protection gloves, arm protection, etc.)!
- Only remove the inner bar, but not the lower crossbar!


To produce a horizontal bend, the insert must first be inserted into the profile which is open on one side, so that it is not compressed by the rollers during bending (see Fig. 11).

Trim Bend
The ends of the bends remain straight during each bending operation to a length of approx. 170 mm before slight kink forms, depending on the radius. A uniform radius is obtained only after approx. 250-300 mm. Therefore, the straight piece with a kink must be sawed off.

Fig. 22: 0812 straight piece with kink
This kink occurs because, when running onto the second (right) roll, elastic bending always occurs first, before plastic (permanent) deformation can begin. As a result, the rail is bent very sharply over the upper roller over a very short distance. The profile widens at the kink point.
Work steps:
- Slide the insulating profile all the way to one end until it is flush with the conductor bar.
CAUTION!
Sliding the insulating profile is more difficult with smaller radii than with large radii. It is also dependent on the insulating profile material and the geometry of the conductor bars. - Trim the side with the flush insulation by 300 mm. Pay attention to the right-angled cut!
- Deburr the rail and insulating profile all around!

- Slide the insulating profile to the other end. From the already trimmed side, mark the exact bend length and saw off the end (end with straight piece > 300mm!).

- Deburr the conductor bar and insulating profile all around!

- Deburr the conductor bar and insulating profile all around!

Auxiliary Tools and Miscellaneous
ATTENTION!
If the conductor rail is twisted after bending, it can be straightened accordingly with the optional straightening tool (see Fig. 27). The straightening tool (Order No.: 08-W100-0594) is not included.


Contact Information
Conductix-Wampfler GmbH
- Rheinstraße 27 + 33 79576 Weil am Rhein – Märkt Germany
- Phone: +49 (0) 7621 662-0
- [email protected].
- www.conductix.com.
Importer for the United Kingdom:
Conductix-Wampfler Ltd.
- 1, Michigan Avenue Salford M50 2GY United Kingdom.
- Phone: +44 161 8480161
- Fax: +44 161 8737017
- [email protected].
- www.conductix.com.








Fig. 9: Rollers fixed with groove nuts (roller set for 0812 Vertical inner bend shown here)





























