
Model: 68221
RESIDENTIAL MOTORIZED
STORAGE LIFT 220 LB CAPACITY

ASSEMBLY INSTRUCTIONS, USE & CARE GUIDE AND WARRANTY
Warranty
WHAT IS COVERED
- Only the motorized hoist in possession of the first retail purchaser.
- Defects in material or workmanship guaranteed one year.
WHAT IS NOT COVERED
- Product failure that results from improper installation, misuse or abuse, alteration, or any other failure not related to defects in materials or workmanship.
- Damage due to acts of God, fire, or accident.
- Damage created by non-Manufacturer developed accessories.
- Damage that results from loading the hoist beyond the stated maximum weight capacity.
- Corrosion, rust or discoloration of finish.
- The cost of return, labor, or accessory materials.
Safety Information
WARNING: When you see the safety symbol
on the following pages this will alert you of the possibility of serious injury or death if you do not comply with the corresponding instructions. The hazard may come from something mechanical or electrical. Read the instructions carefully!
WARNING
To reduce the risk of severe injury or death:
- READ AND FOLLOW ALL SAFETY, INSTALLATION AND OPERATION INSTRUCTIONS. If you have any questions or do not understand an instruction contact GARAGE GATOR AT 1 888 691-2944.
- Do not use to lift people or animals.
- Never operate while hand(s) are near moving parts.
- Let unit cool down after use.
- Install on a flat level ceiling, or open rafters. Will not operate correctly if installed on an angle.
- Visually inspect trusses for damage before installing your Garage Gator 68223.
WARNING: THIS IS A DO IT YOURSELF (DIY) PROJECT. DO NOT ATTEMPT THIS INSTALLATION WITHOUT A BASIC UNDERSTANDING OF THE CONTENTS IN THESE ASSEMBLY INSTRUCTIONS. IF YOU ARE NOT CONFIDENT WITH LOCATING AND ANCHORING THE GARAGE GATOR TO THE CEILING JOISTS, DO NOT ATTEMPT THIS INSTALLATION WITHOUT SOMEONE WHO IS.
WARNING: DO NOT EXCEED THE RECOMMENDED WEIGHT LIMITS FOR THIS MODEL NUMBER.
WARNING: The hoist weight capacity is based on all lag bolts being secured in the CENTER of the joists of a wood framed garage. The joists must have a minimum 2 x 6 in. (standard lumber) cross section, 24 in. (or less) apart, with at least 2 in. of penetration from each lag screw used. For truss framed garage ceiling structures, joists with a 2 x 4 in. (bottom truss cord) cross section is acceptable.
BE CAREFUL, THESE INSTRUCTIONS, WARNINGS AND NOTES DO NOT REPLACE YOUR SOUND JUDGMENT AND DECISION MAKING. IF, FOR ANY REASON, YOU FEEL THE QUALITY OF YOUR CEILING STUCTURE IS IN QUESTION, DISCONTINUE THE INSTALLATION PROCESS IMMEDIATELY. USE THE GARAGE GATOR WISELY AND ENJOY RECLAIMING YOUR GARAGE!
Hardware and required tools
TOOLS REQUIRED

HARDWARE INCLUDED

NOTE: Drawings & photos for illustrative purposes only —actual parts may vary from pictures. Parts are not shown actual size.
| Parts | Description | Quantity |
| K | 4 in. Lag bolt | 12 |
| L | 5/16 in. nut | 4 |
| P | % in. x 1h in. bolt | 2 |
| 0 | % in. (6 mm) lock nut | 1 |
| R | 15 mm hole saw drill bit | 1 |
| Parts | Description | Quantity |
| T | 13 mm socket | 1 |
| U | % in. drill bit | 1 |
| V | Drywall screw & plug | 2 |
| W | 30 mm screw | 10 |
| X | Cable tie 200 mm | 2 |
BOX CONTENTS
Carefully inspect your new motorized storage unit for any possible damage and/or shortage of parts. Separate all major components and parts as detailed below. Do not attempt installation if parts are damaged or missing. If parts of your hoist are missing or appear damaged call Proslat/Garage Gator customer service at 1 888 GATOR-08, Monday through Friday, 8:00 AM to 5:00 PM Eastern Time. Before calling carefully check the box as parts may be in the packing material.
COMPONENTS

Pre-Installation
Watch our installation video at proslat.com/pages/instructions
This is the best way to follow and understand the installation process.
Determine motor mounting location on the ceiling
- Choose a location in your garage where you would like to install your Garage Gator model 68221 – an unobstructed operating space of at least 3 feet by 4 feet is required. The motor mounting plate (A) should be installed at least 3 feet away from walls or any other obstructions and close to a power supply (preferably a ceiling outlet).
- The motorized lift is designed to be installed either perpendicular or parallel to the ceiling joists and can be installed on joists with 16 in. or 24 in. spacing.
- In the chosen installation area determine the direction of the ceiling joists and the exact location of the ceiling joists by visually checking or using a joist finder or a very fine drill bit.
- Four installation options are illustrated below. Note how the motor mounting plate (A) and motor hoist (B) are positioned for your installation – in particular the location of the 4 fixed threaded bolts on the motor mounting plate and the 4 ½ in. spacer channel bar attachment tab on the motor hoist. Determine how the motor mounting plate should be rotated – where the fixed, threaded bolts should be located – prior to fastening to the joists. Identify your installation option.

ENSURE YOUR MOTOR MOUNTING PLATE IS ROTATED PROPERLY BEFORE PLACING THE MOTOR MOUNTING PLATE ON CEILING.
Installation
- Prepare ceiling
• Position the paper motor mounting template (N) in the installation location and mark with a pencil the six spots where the lags bolts will be fastened.
• It is very important that the wood screws are fastened to the center of the joists. Use the hole saw drill bit (R) or cut away the drywall with a utility knife to obtain an unobstructed view of the width of the joists so the exact center can easily be determined (covered ceilings only). It may be necessary to again use the motor mounting template and a pencil to mark where the wood screws are to be fastened.
MAKE SURE YOU MOUNT TO THE CENTER OF EACH JOIST TO SECURE YOUR GARAGE GATOR PROPERLY
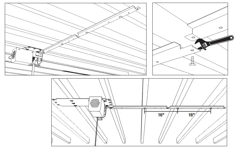
Installation (continued) - Install the motor mounting plate to the ceiling
• Using a power drill with a1/8 in. drill bit attached, drill six pilot holes into the center of the joists.
• Using the ratchet and ½ in. socket (T) fasten 6 of the 4 in. lag bolts (K) into the joists until the motor mounting plate is securely fastened.
WARNING: Motor mounting plate must be fastened to wooden joists in the building framing. Do not fasten to drywall, particle board, plaster or other such materials. Failure to do this may result in injury or death.
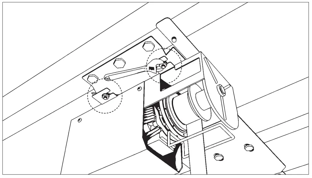
Installation (continued) - Attach the motor hoist to the motor mounting plate
• Slide the mounting tabs on the motor hoist (B) over the top of the 4 fixed, threaded bolts on the motor mounting plate (A). (If there is not enough room between the washers and the motor mounting plate for the motor hoist mounting tabs, it will be necessary to loosen the nuts by turning them counter clockwise.)
• Once the motor hoist is properly positioned on the motor mounting plate, tighten the nut with the ratchet or the adjustable wrench until the motor hoist is securely attached to the motor mounting plate.
WARNING: Slide the motor hoist until the tabs are firmly against the threaded bolts. Do not leave any space between the bolts and the enclosed end of the mounting tabs.
Pre-Installation (continued)
Depending on your joist spacing, you will use different holes on the spacer bars for installation.

Installation (continued)
4 Connect and install the first spacer channel bar
- Press the spacer channel bar flush with the ceiling and mark ceiling with a pencil where a lag bolt will be used to attach the bar to the joist.
– Perpendicular joist installation (option A or B on page 6). Make a mark at either the 16 in. hole or 24 in. hole depending on your joist spacing. Remove the spacer channel bar.
– Parallel joist installation (option C or D on page 6). Make a mark at the 21 in. hole.
Remove the spacer channel bar. - It is very important that the lag bolt is fastened to the center of the joist. Use the hole saw drill bit (R) or cut away the drywall with a utility knife to obtain an unobstructed view of the width of the joist so the exact center can easily be determined. It may be necessary to reposition the spacer channel bar and mark with a pencil where the lag bolt is to be fastened.
- Using a power drill with a 1/8 in. drill bit (U) attached, drill a pilot hole into the center of the joist.
- Insert the flared end (the end without a fixed nut) of a spacer channel bar onto the fixed bolt coming down from the motor plate tab above the strap spools on the motor hoist.
- Attach a 6 mm nut (Q) to the fixed bolt and tighten with a ratchet or adjustable wrench until the spacer channel bar is securely fastened to the motor hoist.
- Place a lag bolt(s) (K) and using the ratchet fasten the bolt(s) into the joist(s) until the spacer channel bar is securely fastened.

Installation (continued)
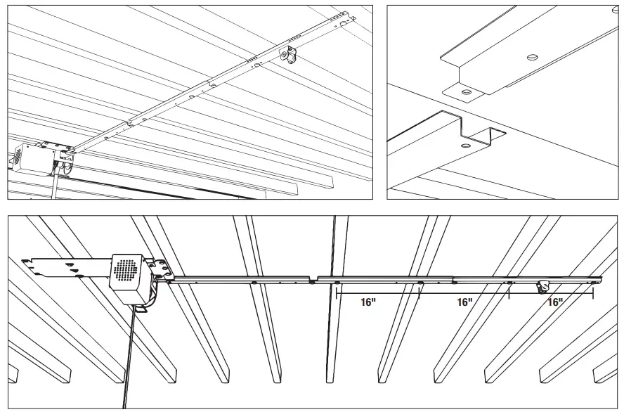
5 Connect and install the second spacer channel bar
- Line up the hole in the flared end (the end without a fixed nut) of the spacer channel bar (C) over the hole in the installed spacer channel pulley bar. Thread a ¼ in. x ½ in. bolt (P) into the hole and finger tighten.
- Press the spacer channel bar flush with the ceiling and mark with a pencil where the lag bolt(s) will be used to attach the bar to the joist(s).
- – PERPENDICULAR JOIST INSTALLATION (option A or B on page 6). There are holes in the spacer channel bar at 16 in., 24 in. and 32 in. from the lag bolt in the first installed spacer channel bar. Measure from the lag bolt and determine the appropriate hole(s) depending on your joist spacing. (Installations with 16 in. spacing will insert two lag bolts in this spacer channel bar – at 16 in. and 32 in. from the first lag bolt. Installations with 24 in. spacing will have one lag bolt). Remove the spacer channel bar.
- – PARALLEL JOIST INSTALLATION (option C or D on page 6). Make marks at the 5 in. and 21 in. holes on the spacer channel bar – measuring from the flared end of this spacer channel bar. Remove the spacer channel bar.
- It is very important that the lag bolts are fastened to the center of the joist(s). Use the hole saw drill bit (R) or cut away the drywall with a utility knife to obtain an unobstructed view of the width of the joist(s) so the exact center can easily be determined. It may be necessary to reposition the spacer channel pulley bar and mark with a pencil where the lag bolt(s) are to be fastened.
- Using a power drill with a 1 ⁄16 in. drill bit attached, drill pilot hole(s).
- Line up the hole in the flared end (the end without a fixed nut) of the spacer channel bar (c) over the hole in the installed spacer channel pulley bar. Thread a ¼ in. x ½ in. bolt into the hole and tighten with a ratchet or adjustable wrench until the spacer channel bar is securely fastened.
- Place a lag bolt(s) (K) and using the ratchet fasten the bolt(s) into the joist(s) until the spacer channel bar is securely fastened.

Installation (continued)
6 Connect and install the spacer channel pulley bar
- Press the spacer channel bar flush with the ceiling and mark with a pencil where the lag bolts will be used to attach the bar to the joist.
- – PERPENDICULAR JOIST INSTALLATION (option A or B on page 6). There are sets of holes on each side of the spacer channel bar at 16 in. and 24 in. from the last lag bolt installed. Measure from the last lag bolt and determine the appropriate holes depending on your joist spacing. Remove the spacer channel pulley bar.
- – PARALLEL JOIST INSTALLATION (option C or D on page 6). Make marks at one hole before the pulley and one hole after the pulley.
Remove the spacer channel pulley bar. - It is very important that the lag bolts are fastened to the center of the joist. Use the hole saw drill bit (U) or cut away the drywall with a utility knife to obtain an unobstructed view of the width of the joist so the exact center can easily be determined. It may be necessary to reposition the spacer channel pulley bar and mark with a pencil where the lag bolts are to be fastened.
- Using a power drill with a 1/8 in. drill bit attached drill two pilot holes into the center of the joists.
- Line up the hole in the end opposite the pulley of the spacer channel pulley bar (D) over the hole in the second spacer channel pulley bar. Thread a ¼ in. x ½ in. bolt into the hole and tighten with a ratchet or adjustable wrench until the spacer channel pulley bar is securely fastened.
- Place a washer (L) over the lag bolts (K) and using the hex key fasten the screws into the joist until the spacer channel pulley bar is securely fastened to the joist.

Installation (continued)
7 Install straps
- Place the straps coming out of the rectangular opening closest to the spacer channel bar (fig. D) over the top of the pulley at the end of the spacer channel pulley bar. (fig. E)
- Once the strap has been placed over the pulley reinstall the pulley to its original position, insert the clevis pin and refasten the cotter pin. (fig. F)
- Place strap from motor side (fig. C) through stopper plate and attach height adjustment bracket using the supplied cotter pin (fig. B).
- Repeat step for pulley side without the stopper plate (fig. A).
- Plug in the motor hoist (B) to the nearest 110 volt power outlet.
- Use the hand control switch and safely lower the straps until approximately 9 feet of cable is hanging down.


THE STRAP THAT GOES ACROSS TO THE SPACER BAR NEEDS TO PASS THROUGH THE CUT OUT SECTION OF THE MOUNTING PLATE.

Installation (continued)
8 Install the hand control switch holder
- Secure the hand control switch to a convenient location on the closest appropriate wall using the power cord cable clamps (F) and screws (V and W).
- If your cables are too long, use the supplied cable ties to coil them close to the motor for a clean finish.
- To prevent unauthorized use, the Garage Gator Hoist is equipped with a key lock feature. When the key is turned to the “OFF” position or removed from the hand control switch the unit will not function until the key is reinserted and turned to the “ON” position.
TIP: WE SUGGESTED YOU INSTALL YOUR CONTROLLER HOLDER FIRST AND RUN YOUR WIRE BACK TO THE MOTOR. THIS WAY YOUR EXCESS CABLE WILL BE UP AT THE MOTOR. USE THE SUPPLIED CLIPS TO ATTACH TO THE WALL.

Installation (continued)
9 Assemble the hook bar
- Assemble the three middle pieces of the hook bar by lining up the spring clips from the hook bar center (E) to the holes of the hook bar connectors (F). (fig. A)
- Slide hooks (M) onto the assembled piece. (fig. B & C)
- Attach each hook bar end (G) to the assembled middle section by lining up the slotted holes from the hook bar end to the holes of the hook bar connectors. (fig. D)

- Once all of your bars are connected, attach the height adjustment bracket (I) by sliding the hook into the two large holes on the left and right side of the bar facing inward.

Installation (continued)
10 Level
- The height adjustment bracket (I) is adjustable to make your straps and bars perfectly level. Lower your straps to eye level and adjust the pin in the height adjustment bracket (I) to the desired hole to make your straps level.

- If your bar is not level, use the strap adjustment bracket that is located by the hook.
TO ADJUST, REMOVE THE COTTER PIN ON THE HIGHEST SIDE AND REINSTALL AT THE HIGHER HOLE. - If your bar is still not level, remove the first lower pin that you have already installed and reinstall it without the strap at the lowest level closest to the hook.
- Wrap the strap around the pin you installed and insert the second pin at the desired hole through the hoop in the strap. Adjust the second pin accordingly until your bar is level.

11 Using the key lock feature
- To prevent unauthorized use the Garage Gator 68221 is equipped with a key lock feature.
- When the key is turned to the “OFF” position or removed from the hand control switch the unit will not function until the key is reinserted and turned to the “ON” position.
12 Test the unit
- Press and hold the rocker switch on the hand control to raise and lower the hook bar. When the hook bar reaches the uppermost travel point, the stopper plate above the cable hook will trigger the limit switch ceasing upward movement.

Operating instructions
TO RAISE OR LOWER THE HOOK BAR:
- Do not stand under the lift
- Turn the key in the hand control switch to the “ON” position.
- Press and hold the rocker switch in the direction you want the hook bar to travel.
- Release the switch when the desired location is reached.
- Operator must let the motor stop for 8 minutes after continuously working for 2 minutes.
TO LOAD THE HOOK BAR:
- Lower the hook bar to a comfortable height.
- Evenly distribute the weight of articles stored.
- Do not overload the hook bar — maximum capacity is 220 pounds.
- Be sure items are secured before raising the hook bar.
- **Make sure load is secure before lifting.
EXAMPLES OF ITEMS THAT CAN BE STORED:
Bikes
- Hang bicycles by using bike hook. Hook red part around neck of seat on bicycle as seat is resting on top of bike bar.
Golf Bags
- Golf bags should be hung by the carrying handle — NOT the shoulder strap.
Canoe/Kayak
- Capacity on hook bar must not exceed 220 lb
- Canoe/kayak straps sold separately
Spare Tires
- Canoe/kayak straps sold separately
Contact information
Solutions Murales Proslat inc.
225, boul. Industriel
Chateauguay, (Quebec)
J6J 4Z2, Canada
1 888 801-1801
[email protected]
Maintenance
- Check to be sure the motor is properly attached to its mounting plate. Make sure the bolts are tight.
- Periodically check the condition of the electrical cords, plugs and controls.
- Periodically check cables for slippage or excessive wear.
Specifications
- Model: 68221
- Load capacity: 220 lb
- Lifting Height: 120 in.
- Lifting speed: 30 ft./min
- Strap width: 32 mm
- Voltage: 120 V / 60 HZ / 3.9 amps
- Motor: 460 W 3 / 5 HP

ASSEMBLY INSTRUCTIONS, USE & CARE GUIDE AND WARRANTY
Watch our installation video at proslat.com/pages/instructions
This is the best way to follow and understand the installation process
Questions, problems, missing parts? Before returning to the store, call Proslat/Garage Gator Customer Service
1-888-691-2944 8 a.m. – 5 p.m., EST, Monday – Friday / [email protected]
PROSLAT.COM
Please contact 1-888-691-2944 for further assistance.
68221 08-2022



Installation (continued)















