VIESSMANN Vitosol 200-FM Flat Plate Solar Collector

Fitting Sets and Kits
| Item | Description | Part Number |
| General Connection Set
| One set required for each Vitosol 200-FM collector array. Array size can be 1 to 12 collectors. Contains all the required fittings for pipe connection to the collector. Contents: H 2 x brass connecting pipe (one long, one short) H 2 x brass plugs H 4 x stainless steel profile clamp H 2 x 22 mm 90º compression elbow H 1 x package of O-ring silicone assembly grease H 2 x copper tube support inserts | 200-FM 7248240 |
| Installation Fittings Set
| One set required for each system. Contains the metric conversion fittings required to connect to the collector array and the conversion adaptor for the expansion tank fitting. Contents: H 4 x copper pipe adaptors – 22 mm dia to ¾” dia x 4” long H 1 x copper pipe stub – 22 mm dia x 2.4” long H 1 x ¾” BSPT Female x ¾” NPT male adaptor H 1 x gasket H 1 x package of technical literature | 200-FM ZK02868 (CA) ZK02870 (USA) |
Collector Loop Fittings
| Item | Description | Part Number |
| Interconnection Pipe Set
| Used to connect Vitosol 200-FM collectors together. Brass fittings with double O-ring seal, connected by flexible stainless steel pipe. Contents: H 2 x interconnection pipes H 1 x package of O-ring silicone assembly grease | 200-FM 7248239 |
Sensor Well Set![]() | Collector sensor well set for Vitosol 200-FM. One is required per system. Installed in top collector outlet piping. Contents: H 1 x 22 mm compression tee H 1 x immersion sensor well H 1 x sensor wire strain relief H 1 x insulation cover H 1 x copper tube support insert | 200-FM 7174993 |
| Item | Description | Part Number |
| Automatic Fast Air Vent
| Air vent for high point of each collector array. Built in shut-off valve for 100% isolation after system is totally vented 22 mm brass compression couplings. Note: If ordered individually, requires 2 x PN 9543380 – copper adaptors – 22 mm x ¾” x 4”. | 200-FM 7316789 |
| Manual Air Vent
| Air vent for high point of each collector array. Can be used as an alternate to the Fast Air Vent. Manual key vent, 22 mm brass compression couplings. Note: If ordered individually, requires 2 x PN 9543380 – copper adaptors – 22 mm x ¾” x 4”. | 200-FM 7316263 |
| Automatic Air Vent With Micro-Bubble Mesh
| Air separator for location in mechanical room. Wire mesh micro-bubble separator, with built-in shut-off valve 22 mm brass compression couplings. Note: If ordered individually, requires 2 x PN 9543380 – copper adaptors – 22 mm x ¾” x 4”. | 7316049 |
Brass Elbow With Sensor Well![]() ![]() | Solar tank sensor well for Vitocell tanks. Installs on solar glycol return line to collectors. Note: Must be ordered separately for all other tanks. | |
| 1” probe, for Vitocell 300-W tanks, 42 USG: – for tanks with NPT threads | 7606041 | |
| 1” probe, for Vitocell 300-B, 300-V tanks, 53 to 79 USG:
– for tanks with NPT threads | 7606041 | |
| 1 ¼” probe, for Vitocell 300-B, 300-V tanks, 119 USG:
– for tanks with NPT threads | 7606042 | |
| Expansion Tank Flex Pipe
| Flexible ¾”G x 19” (500 mm) long Stainless steel flexible connection pipe. Used to connect expansion tank to Solar-Divicon DN20B / DN25B. Compression fitting with gasket. Note: Only for use with the following tank models: 18L, 25L, 40L | 7497468 |
Spare Parts / Individual Fittings
| Item | Description | Part Number |
Copper Adaptor![]() | Included with the Installation Fittings Set (see page 3), but can be ordered individually. Used to connect standard NPT copper to all Vitosol fitting with compression couplings (eg. Supply/Return piping to 90º compression elbow. Copper adaptor pipe stub – 22 mm dia x ¾” Copper x 4” long. | 200-FM 9543380 |
Copper Connector![]() | Included with the Installation Fittings Set (see page 3), but can be ordered individually. Used to connect two items together that both have 22 mm compression couplings (eg. Air vent and sensor well). Copper pipe stub – 22 mm dia x 2.4” long. | 200-FM 5276590 |
Vitosol Profile Clamp![]() | Included with the General Connection Set (see page 3), but can be ordered individually. Used for Vitosol 200-FM to attach brass connection pipes and plugs to the collector header pipe. | 200-FM, 7317074 |
Brass Collector Connection Pipe – Short![]() | Included with the General Connection Set (see page 3), but can be ordered individually. Used for Vitosol 200-FM to connect piping to the collector header pipe. | 200-FM 7827514 |
Brass Collector Connection Pipe – Long![]()
| Included with the General Connection Set (see page 3), but can be ordered individually. Used for Vitosol 200-FM. To connect piping to the collector header pipe. | 200-FM 7827515 |
Brass Collector Plug![]() | Included with the General Connection Set (see page 3), but can be ordered individually. Used for Vitosol 200-FM to plug the collector header pipe. | 200-FM 7827516 |
Compression Connector – Union![]() | Brass union fitting with 22 mm compression fittings (sold in a set of 2). Used for a straight connection between two 22 mm pipes: – To bring S/R piping straight out of the collector instead of using 90º compression elbow. To extend pipe between two collectors that have to span an obstruction. | All collectors 7819612 |
| Item | Description | Part Number |
| Compression Connector, 90º Elbow
| Brass elbow fitting with 22 mm compression fittings. Included with the General Connection Set, but can be ordered individually. | All collectors 7819611 |
| Collector Fitting O-rings
| Package of 4. Spare parts are used for all collector fittings. | 200-FM 7819604 |
| Silicone Assembly Grease
| 6-gram package. Included with the General Connection Set (see page 3) and with the Interconnection Pipe Set (see page 4). This can be ordered individually. Used for lubricating O-rings on all collector fittings. | All collectors 7819602 |
| Solar Division Expansion Tank Adaptor Fitting
| Coupling, ¾” BSPT x ¾” NPT Brass. Included with the Solar Division fittings, but can be ordered individually. Used to connect NPT piping to the expansion tank connection on all Solar Division. | All Solar Divicon 7134829 |
| Expansion Tank Service Valve Adaptor Fitting
| Adaptor, ¾” G female – ¾” NPT male. Included with the Installation Fittings Set (see page 4), but can be ordered individually. Used to connect NPT piping to the service valve on the expansion tank. | 18 to 50 L Expansion Tanks 9635592 |
| Flat Gasket
| Flat Gasket, 17 x 24 x 1.5mm Used with solar division expansion tank adaptor, expansion tank service valve adaptor, solar expansion tank service valve & flexible tank adaptor. This can be ordered individually. | 9535412 |
Connection Fittings Parts Index

Connection Fittings for DHW Solar Pack
- Note: Vitosol 100-FM SVKF with b“copper piping, pumping station included with the pack.
- Note: See numbered parts index on page 7.

- Note: Vitosol 100-FM SVKF with b“stainless steel line set, pumping station included (with locking clip).
- Note: See numbered parts index on page 7.
- Note: Item qI is not required.
IMPORTANT
The b“ stainless steel line set has a minimum bend radius of 2”. If possible a bend radius larger than 2” is recommended.
Note: Vitosol 100-FM SVKF with b“stainless steel line set, pumping station included (with copper connector)
Note: See numbered parts index on page 7.
IMPORTANT: The b“ stainless steel line set has a minimum bend radius of 2”. If possible a bend radius larger than 2” is recommended.
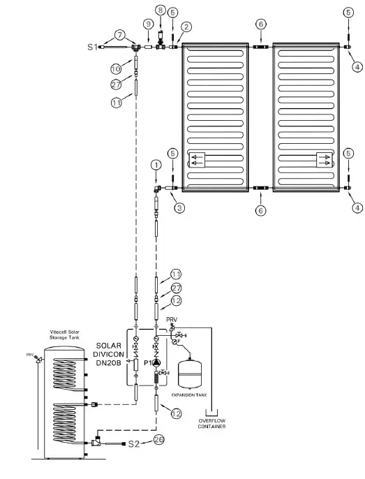
Connection Fittings for 200-FM with Solar-Division DN20B
Note: Vitosol 200-FM with b“copper piping
Note: See numbered parts index on page 7.
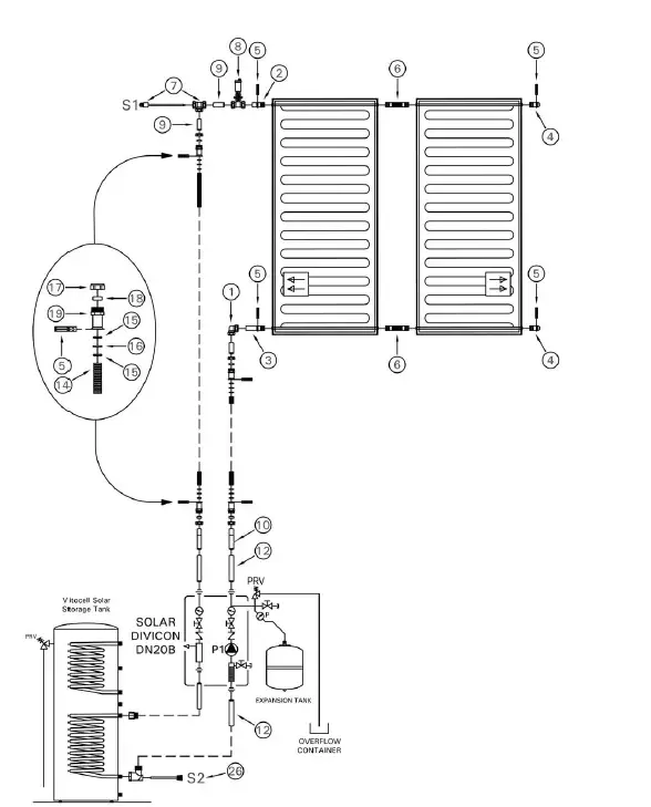
Connection Fittings for 200-FM with Solar-Division DN20B
Note: Vitosol 200-FM with c“copper piping
Note: See numbered parts index on page 7.
Note: Vitosol 200-FM with c“copper piping
Note: See numbered parts index on page 7.
Note: Vitosol 200-FM with b“stainless steel line set.
Note: See numbered parts index on page 7.
IMPORTANT
The b“ stainless steel line set has a minimum bend radius of 2”. If possible a bend radius larger than 2” is recommended.
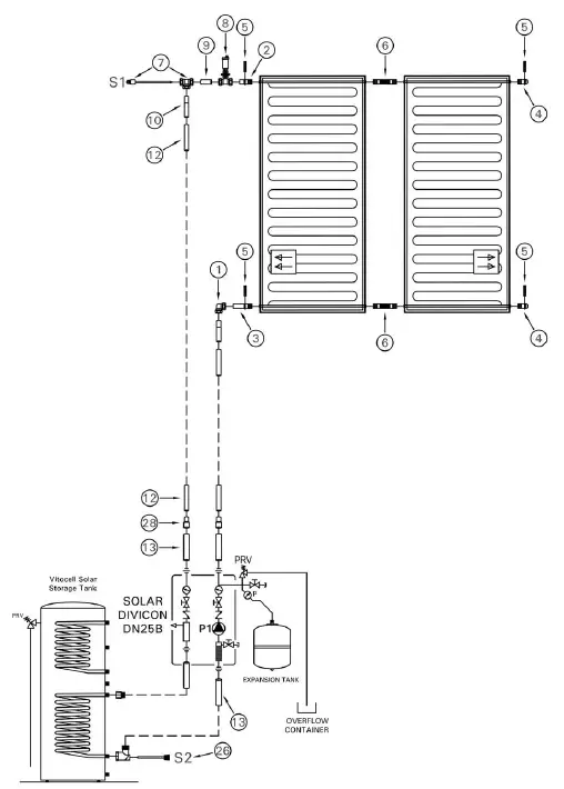
Connection Fittings for 200-FM with Solar-Division DN25B
Note: Vitosol 200-FM with b“stainless steel line set.
Note: See numbered parts index on page 7.
Expansion Tank Piping Connections
Note: See numbered parts index on page 7.
IMPORTANT
The b“ stainless steel line set (option #2) has a minimum bend radius of 2”. If possible a bend radius larger than 2” is recommended.
Special Note: The 1/2″ stainless steel lines have a minimum bend radius of 2″. If possible a larger bend radius would be recommended.
Contacts
- If you have any questions about any of these connection fittings or connection drawings, please contact your Solar Technical Support Team: Viessmann –
- Waterloo, Ontario, Canada
- Steve Royce
- 1-519-885-6300
- [email protected]
- Viessmann – Langley, British Columbia, Canada
- Scott Boutillier
- 1-604-533-9445
- [email protected]
- Viessmann – Warwick, Rhode Island, USA
- Nick Toman
- 1-401-732-0667
- [email protected]
- Viessmann Manufacturing Company Inc.
- 750 McMurray Road
- Waterloo, Ontario N2V 2G5 Canada
- Techinfo Line 1-888-484-8643
- 1-800-387-7373 Fax (519) 885-0887
- www.viessmann.cam
- [email protected]
- Viessmann Manufacturing Company (U.S.) Inc.
- 45 Access Road
- Warwick, Rhode Island 02886 USA
- Techlnfo Line 1-888-484-8643
- 1-800-288-0667 Fax (401) 732-0590
- www.viessmann-us.com
- [email protected]










































