![]()
Installation Manual
Urinal


UT105U(V)(G) UT104E(V) UT445U(V) UT447E(V)
Warranty Registration and Inquiry
For product warranty registration, TOTO U.S.A. Inc. recommends online warranty registration. Please visit our web site http://www.totousa.com. If you have questions regarding warranty policy or coverage, please contact TOTO U.S.A. Inc., Customer Service Department, 1155 Southern Road, Morrow, GA 30260
(888) 295-8134 or (678) 466-1300 when calling from outside of U.S.A.
THANKS FOR CHOOSING TOTO!
The mission of TOTO is to provide the world with healthy, hygienic and more comfortable lifestyles. We design every product with the balance of form and function as a guiding principle. Congratulations on your choice.
INCLUDED PARTS
Check to make sure you have all these parts from the package:

Urinal w/ Spud

Outlet Flange, 108mm & 152mm pitch

Strainer, UT105U(V)(G), UT445U(V)

2 Hangers required for UT445U(V), UT447E(V)
COMMON TOOLS NEEDED
- 12″ pipe wrench
- 10″ adjustable wrench
- Carpenter’s Level
- Screwdriver
- Drill
- Tape Measure
MATERIALS REQUIRED:
(Not Included)
- Flush Valve
- Stop Valve
BEFORE INSTALLATION
If you are installing this product in a new construction or remodel, please make sure you are following all local plumbing and building codes. Carefully installation process will proceed smoothly and correctly, please read these instruction carefully before you begin.
Ignoring these symbols may cause personal injury and/or property damage.
CAUTION
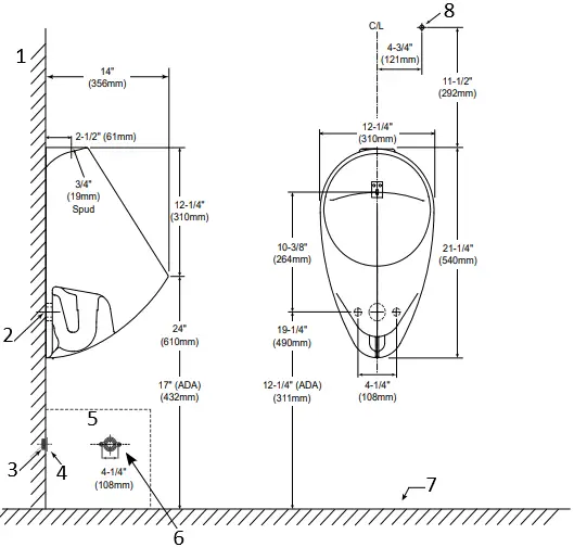
ROUGH-IN DIMENSIONS

- Finished Wall
- Outlet
- 2″ (51mm) I.P. Inside Threads
- Gasket
- Outlet Detail
- Outlet Flange
- Finished Floor
- 3/4″ (19mm) I.P.S. Supply for flushometer Vavlve

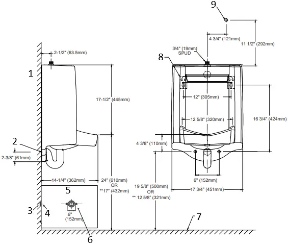
- FINISHED WALL
- OUTLET
- 2” (51mm) I.P. Inside Threads
- Gasket
- Outlet Detail
- Outlet Flange
- FINISHED FLOOR
- HANGER
- 3/4″ (19mm) I.P.S SUPPLY FOR FLUSHOMETER VALVE
INSTALLATION PROCEDURE
• Turn off water supply and if necessary remove the old urinal.
• Install or relocate the water supply pipe and drain pipe to the specified rough-in dimension shown above.
• Install adequate support to mount the urinal.
• Install the wall hanger per rough-in specification.
• Apply sealant tape to the drain pipe threads and install the outlet flange to the drain pipe.
• Install the gasket on the outlet flange.
• Carefully position the urinal on the wall hanger.
• Secure the urinal to outlet flange with screws and washers.
• Install the flush valve per manufacturer’s instructions.
• Install the strainer per the installation procedure shown, see page 5.
• Turn-on the water supply and flush urinal several times.
• Carefully check all connections for leaks.
CEFIONTECT® CLEANING INSTRUCTIONS
WHAT IS CEFIONTECT®?
CEFIONTECT® is TOTO’s super-smooth permanent glaze that prevents debris from sticking to surfaces. Products with the letter “G” in the number have the CEFIONTECT® glaze. This glaze, along with regular cleaning, will help keep your TOTO product in pristine condition.

No CEFIONTECT®

With CEFIONTECT®

NOTE:
For best results to keep your TOTO product with CEFIONTECT® clean:
- Lavatory: Use a mild dish detergent with a clean, soft cloth.
- Toilet: Use a gel based cleaner with a soft bristled-plastic brush.
- Don’t use cleaners, polishing powders or detergents that have gritty or coarse particles.
- Don’t use bleach, chemical thinners or products that have acid or alkaline detergents listed as ingredients.
- Don’t use metal scrub brushes or steel wool.
Following these instructions will ensure that your TOTO product with the CEFIONTECT® glaze will always stay intact, keeping your product like new for years to come!
URINAL STRAINER INSTALLATION
Included with UT105U(V)(G) and UT445U(V) only.
VISUAL INSPECTION
Remove part from plastic bag.
Make sure all components are assembled as shown.
Make sure urinal trapway is dry before installation.

- Screw
- Grate
- Hex Nut
- Plastic Legs
INSTALLATION INSTRUCTIONS
Place the strainer in the trap way opening.
Orient legs as shown.
Press the unit until the grate fully seats in the china.

WARRANTY
- TOTO warrants its vitreous china products (“Product”) to be free from defects in materials and workmanship during normal use when properly installed and serviced, for a period of one (1) year from date of purchase. This limited warranty is extended only to the ORIGINAL PURCHASER of the Product and is not transferable to any third party, including but not limited to any subsequent purchaser or owner of the Product. This warranty applies only to TOTO Product purchased and installed in North, Central and South America.
- TOTO’s obligations under this warranty are limited to repair, replacement or other appropriate adjustment, at TOTO’s option, of the Product or parts found to be defective in normal use, provided that such Product was properly installed, used and serviced in accordance with instructions. TOTO reserves the right to make such inspections as may be necessary in order to determine the cause of the defect. TOTO will not charge for labor or parts in connection with warranty repairs or replacements. TOTO is not responsible for the cost of removal, return and/ or reinstallation of the Product.
- This warranty does not apply to the following items:
a) Damage or loss sustained in a natural calamity such as fire, earthquake, flood, thunder, electrical storm, etc.
b) Damage or loss resulting from any accident, unreasonable use, misuse, abuse, negligence, or improper care, cleaning, or maintenance of the Product.
c) Damage or loss resulting from sediments or foreign matter contained in a water system.
d) Damage or loss resulting from improper installation or from installation of the Product in a harsh and/or hazardous environment, or improper removal, repair or modification of the Product. (NOTE: Product model codes allow a maximum of 80 PSI. Check local codes or standards for requirements).
e) Damage or loss resulting from electrical surges or lightning strikes or other acts which are not the fault of TOTO or which the Product is not specified to tolerate.
f) Damage or loss resulting from normal and customary wear and tear, such as gloss reduction, scratching or fading over time due to use, cleaning practices or water or atmospheric conditions.
g) Tank flushing mechanisms of plastic or rubber moving parts.
h) Toilet seats of plastic, wood or metal. - In order for this limited warranty to be valid, proof of purchase is required. TOTO encourages warranty registration upon purchase to create a record of Product ownership at http://www.totousa.com. Product registration is completely voluntary and failure to register will not diminish your limited warranty rights.
- THIS WARRANTY GIVES YOU SPECIFIC LEGAL RIGHTS. YOU MAY HAVE OTHER RIGHTS WHICH VARY FROM STATE TO STATE, PROVINCE TO PROVINCE OR COUNTRY TO COUNTRY.
- To obtain warranty repair service under this warranty, you must take the Product or deliver it prepaid to a TOTO service facility together with proof of purchase (original sales receipt) and a letter stating the problem, or contact a TOTO distributor or products service contractor, or write directly to TOTO U.S.A., INC., 1155 Southern Road, Morrow, GA 30260 (678) 466-1300 or (888) 295-8134, if outside the U.S.A. If, because of the size of the Product or nature of the defect, the Product cannot be returned to TOTO, receipt by TOTO of written notice of the defect together with proof of purchase (original sales receipt) shall constitute delivery. In such case, TOTO may choose to repair the Product at the purchaser’s location or pay to transport the Product to a service facility.
WARNING! TOTO shall not be responsible or liable for any failure of, or damage to, this Product caused by either chloramines in the treatment of public water supply or cleaners containing chlorine (calcium hypochlorite). NOTE: The use of a high concentrate chlorine or chlorine related damage. For more information, please call TOTO at (888) 295-8134.
THIS WRITTEN WARRANTY IS THE ONLY WARRANTY MADE BY TOTO. REPAIR, REPLACEMENT OR OTHER APPROPRIATE ADJUSTMENT AS PROVIDED UNDER THIS WARRANTY SHALL BE THE EXCLUSIVE REMEDY AVAILABLE TO THE ORIGINAL PURCHASER. TOTO SHALL NOT BE RESPONSIBLE FOR LOSS OF THE PRODUCT OR FOR OTHER INCIDENTAL, SPECIAL OR CONSEQUENTIAL DAMAGES OR EXPENSES INCURRED BY THE ORIGINAL PURCHASER, OR FOR LABOR OR OTHER COSTS DUE TO INSTALLATION OR REMOVAL, OR COSTS OF REPAIRS BY OTHERS, OR FOR ANY OTHER EXPENSE NOT SPECIFICALLY STATED ABOVE. IN NO EVENT WILL TOTO’S RESPONSIBILITY EXCEED THE PURCHASE PRICE OF THE PRODUCT. EXCEPT TO THE EXTENT PROHIBITED BY APPLICABLE LAW, ANY IMPLIED WARRANTIES, INCLUDING THAT OF MERCHANTABILITY OR FITNESS FOR USE OR FOR A PARTICULAR PURPOSE, ARE EXPRESSLY DISCLAIMED. SOME STATES DO NOT ALLOW LIMITATIONS ON HOW LONG AN IMPLIED WARRANTY LASTS, OR THE EXCLUSION OR LIMITATION OF INCIDENTAL OR CONSEQUENTIAL DAMAGES, SO THE ABOVE LIMITATION AND EXCLUSION MAY NOT APPLY TO YOU.
![]()
TOTO U.S.A., Inc. 1155 Southern Road,
Morrow, Georgia 30260
Tel: 888-295-8134 Fax: 800-699-4889
www.totousa.com
0GU050-5
2/22

Warranty Registration and Inquiry
For product warranty registration, TOTO U.S.A. Inc. recommends online warranty registration. Please visit our website http://www.totousa.com. If you have questions regarding warranty policy or coverage, please contact TOTO U.S.A. Inc., Customer Service Department, 1155 Southern Road, Morrow, GA 30260
(888) 295-8134 or (678) 466-1300 when calling from outside of U.S.A.
















