IMMERGAS 3.023953 Hydraulic Manifold Kit

HYDRAULIC MANIFOLD KIT WITH 2 BOIL-ERS IN A VICTRIX PRO 35-55 SET COD. 3.023953
THIS SHEET MUST BE LEFT WITH THE USER ALONG WITH THE BOILER INSTRUCTION BOOKLET
General warnings
All products are protected with suitable transport packaging. The material must be stored in dry environments and protected against weathering.
This instruction manual provides technical information for installing the kit. As for the other issues related to kit installation (e.g. safety in the work site, environment protection, injury prevention), it is necessary to comply with the provisions specified in the regulations in force and principles of good practice.
Improper installation or assembly of the appliance and/or components, accessories, kit and devices can cause unexpected problems to people, animals and objects. Read the instructions provided with the product carefully to ensure a proper installation. Installation and maintenance must be performed in compliance with the regulations in force, according to the manufacturer’s instructions and by authorized professionally qualified staff, intending staff with specific technical skills in the plant sector, as envisioned by the Law.

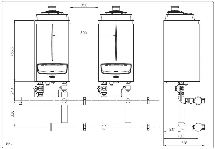
Kit Assembly.
Pre-assemble the fittings (14) and the nipple (4) on the 3-way valves (13) by interposing suitable sealing material such as oakum or similar.
Pre-assemble the fittings (14) on the system shut-off valves (11) by interposing suitable sealing material such as oakum or similar.
Pre-assemble the nipple (4) on the check valves (3) by interposing suitable sealing material such as oakum or similar.
Connect the check valves (3) to the pins (9).
Attention: when installing the check valves (3) make sure that the arrow on their casing faces the hydraulic manifold kit as shown in figure 2. Also make sure to interpose suitable sealing material such as oakum or similar on the connection thread.
Connect the 3-way valves (13), pre-assembled earlier, on the sup-ply (M) of the boilers (12) and interpose the gaskets (1). Connect the shut-off valves (11), pre-assembled earlier, on the return (R) of the boilers (12) and interpose the gaskets (1).
N.B.: assemble the valves (11 and 13) as shown in fig. 2.
Connect the insulated pipes (2) on the valves (13) and the insulated pipes (5) on the valves (11) by interposing the gaskets (1).
Connect the supply pins (9) equipped with check valves to the insulated pipes (2) and the return pins (8 and 9) to the insulated pipes (5). Make the connection respecting the arrangement shown in figure 2 and interposing the gaskets (1) and (6).
At the end, screw the plugs (7) and (10) by interposing suitable sealing material such as oakum or similar.
After the 1st temperature test, check the tightness of all the pipes.
N.B.: the components downstream of the system, such as the expansion tank, must be sized according to the flow rate of the system.
If assembling the kit with free outputs on the left side, perform the installation as shown in figure 3.
Attention: the modular generators, i.e. installed in cascade (set) with an original connection kit, must be considered a unique appliance, which assumes the serial number (factory number) of the generator nearest to the INAIL safety devices.
Attention: the VICTRIX PRO boilers haven IPX5D electric insulation rating and can also be installed outdoors, without additional protections. However, if installed outdoors, the relevant piping should be insulated and the kit protected from the elements.
The boilers must be installed in the configurations and with their own original set and safety kits. The factory declines all liability whenever the installer does not use the devices and INAIL-approved original kits or uses them improperly.
N.B.: before closing the system cut-off cocks or the 3-way valves (3), the boiler must be switched off.


| Ref. | Kit components description | Q.ty |
| 1 | 44x34x2 gasket | 12 |
| 2 | Short 90° bend for the insulated supply connection | 2 |
| 3 | Check valve | 2 |
| 4 | Nipple | 4 |
| 5 | Long 90° bend for the insulated return connection | 2 |
| 6 | 72x55x2 gasket | 4 |
| 7 | Plug G 1″1/2 | 3 |
| 8 | Insulated blind manifold G 2″ 1/2 | 1 |
| 9 | Insulated manifold G 2″ 1/2 | 3 |
| 10 | Plug G 2″1/2 | 1 |
| 11 | Ball valve | 2 |
| 13 | 3-way valve casing | 2 |
| 14 | Valve fixing fitting | 4 |
M – System flow
R – System return




















