BLACK WIDOW BW-1500AH-Z Motorcycle and ATV Lift Table

GENERAL GUIDELINES & SAFETY
- It is the user’s responsibility to read and follow all instructions.
- Keep these instructions with the product at all times and review before each use.
- It is the responsibility of this product’s owner to furnish the instructions to any person that borrows or purchases the product.
Inspect the product before use to ensure it is assembled properly and all parts are in safe working order and free of defects. - Never modify this product in any way.
- All circumstances cannot be addressed in these instructions.
- Please use common sense and practice general safety measures when using this product.
- Parts and/or instructions are subject to change without notice.
- Do not exceed the 1500 lb rated capacity.
- Keep children and unauthorized persons away from the work area.
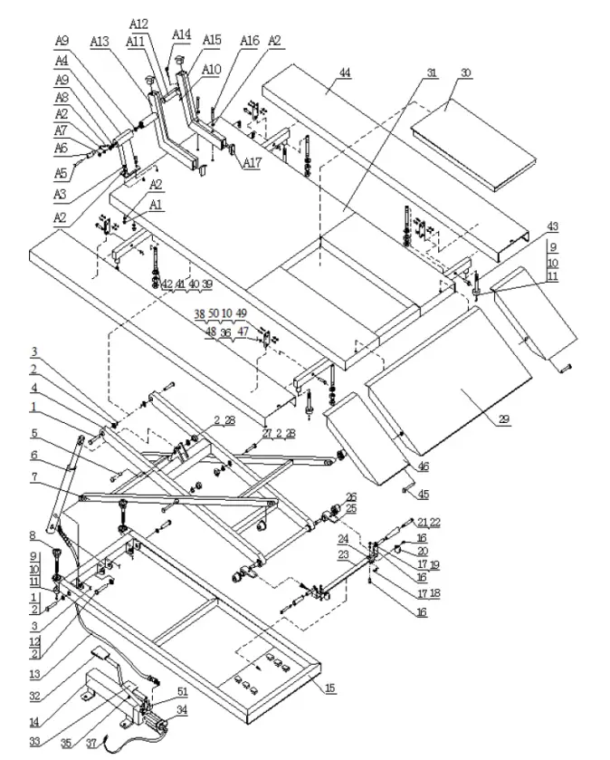
PARTS



ASSEMBLY
- Take the lift out of the box, set the lift in upright position.
- Attach clamp to the front side of the platform.
- Attach movable plate, ramp to the platform.
- Attach pump with hose to the cylinder.
- Attach side plates to the platform.
BEFORE USE
- Purge air away from hydraulic system
- Manual operating system: Let the platform in the lowest position, keep depressing the release foot pedal and quickly pump the lifting foot pedal several times to purge air from the hydraulic system. Release the release foot pedal.
- Air operating system: Pour 2-3 drops of good quality air tool lubricant into the air supply inlet of the lift control valve, connect to air supply and operate for 3 seconds to evenly distribute lubricant. (This step is required if the air pump is not used for a long time) Connect the quick coupler-male into the air supply hose quick coupler-female and fully press the release foot pedal, then turn on the air controller letting the pump work for 20 seconds to eliminate any air in the hydraulic system.
- Carefully and slowly pinch/turn oil fill plug to release trapped air.
- Turn the speed control valve on the oil pump to adjust the lowering speed of the lift IF NEEDED.
- Turning it counterclockwise to increase the descending speed.
- Turning it clockwise to reduce the descending speed.
- Position the lift in a suitable area, checking that the surface on which the lift will stand is solid and flat.
OPERATION
- Ensure that the lift is at the minimum height, the ramp is installed in its place, and turn the support stand down to touch the ground to prevent the lift from moving.
- Make sure there is no air in the hydraulic system (Please see BEFORE USE), Then move the motorcycle to the centerline of the platform, lock the front wheel with clamp, using tie-down straps (to be sold separately) to secure the motorcycle to the platform. Steadily pump the lifting foot pedal until the platform reaches a desired height, or open the air controller to lift the platform to a desired height.
- Make sure the safety bar is in the low position (Self-Locking position: when the platform raises, the safety bar will automatically lock layer by layer). Then repair the motorcycle.
- When work is done, check under the lift to ensure that there are no obstructions and that it is safe to lower the lift. Then use your toes to gently lift up the safety bar extension [21], make the safety bar in the up position.
- Depress the release foot pedal, let the lift slowly down to its lowest position.
- Open the clamp, untie the straps, remove the motorcyle.
MAINTENANCE
- Keep the lift clean and wipe off any oil or grease. Lubricate all moving parts.
- When not in use, the lift must be stored in the lowest position in a dry location to minimize ram and piston corrosion.
- Before each use check all parts, ensure that all applicable bolts and nuts are firmly tightened. If any part of the lift is damaged or suspect, remove the lift from service and take necessary action to repair.
- Periodically check the ram and piston for signs of corrosion. Clean exposed areas with a clean oiled cloth.
- Check the hydraulic oil level. If not adequate, add hydraulic oil as necessary. DO NOT use brake fluid or any other improper fluid.
- If the lift needs repairing and/or there are any parts that need to be replaced, have it repaired by authorized and trained technicians and only use the replacement parts supplied by the manufacturer.

PRODUCT WARRANTY & LIABILITY
GENERAL PRODUCT WARRANTY: Products purchased from the Authorized Dealer (original place of purchase) or Merchant (“Dealer”) will be free of defects in material and workmanship at the time of receipt, and will meet the specifications stated at the place of purchase transaction or online at the Dealer’s website, under normal use and service when correctly installed, operated and maintained. This product warranty is effective for the period of time stated below, unless otherwise stated in the product instructions or depicted in the product advertisement. All Authorized Dealer warranties are NON-TRANSFERABLE and cover only the original end purchaser. This limited warranty does not cover products purchased through non-authorized dealers. Non-authorized dealer receipts are not accepted for warranty verification.
***WARRANTY CLAIMS MUST BE MADE DIRECTLY TO THE ORIGINAL PLACE OF PURCHASE.***
WARRANTY PERIOD: This warranty remains in force for one year from the date of the product’s accepted delivery. The Authorized Dealer offers a one year manufacturer’s warranty for most products unless otherwise specified on the product advertisement.
WARRANTY SERVICE: The Authorized Dealer will replace any defective or malfunctioning part at no charge, including payment of the shipping costs of parts or replacement product to and from the manufacturer. The purchaser is responsible for labor charges. If the product does not meet specifications as depicted in the advertisement, the Authorized Dealer will refund the full purchase price of the product. Questions regarding the warranty on a specific product and warranty claims should be directed to the Authorized Dealer with whom the purchase transaction was made.
WARRANTY LIMITATIONS: The above warranty does not apply to products that are repaired, modified or altered by any party other than the Authorized Dealer; are subjected to unusual physical stress or conditions (such as overloaded ramps or corrosion), natural disaster, governmental actions, wars, strikes, labor disputes, riots, theft, vandalism, terrorism or any reason beyond reasonable control; are damaged due to improper installation, misuse, abuse, accident or negligence in use, storage, transportation or handling, or tampering; or to products that are considered consumable items or items requiring repair or replacement due to normal wear and tear. Product should be inspected prior to signing for delivery. Product damage incurred during shipping, unless noted on the Bill of Lading at the time of delivery, renders this warranty void.
LIMITED LIABILITY: In no event shall THE AUTHORIZED DEALER be liable to the purchaser or any third party for any indirect, incidental, consequential, special, exemplary or punitive damages arising out of the use of the product, including, without limitation, property damage, loss of value of the product or any third party products that are used in or with the product, or loss of use of the product or any third party products that are used in or with the product.

















