
SBP 100 Classic Heating Buffer Cylinder
Instruction Manual
OPERATION
1. General information
The chapter “Operation” is intended for appliance users and qualified contractors.
The chapter “Installation” is intended for qualified contractors.
Note Read these instructions carefully before using the appliance and retain them for future reference. Pass on the instructions to a new user if required.
Safety instructions
1.1.1 Structure of safety instructions
KEYWORD Type of risk Here, possible consequences are listed that may result from failure to observe the safety instructions.
Steps to prevent the risk are listed.
1.1.2 Symbols, type of risk
| Symbol | Type of risk |
| Burns (burns, scalding) |
1.1.3 Keywords
| KEYWORD | Meaning |
| DANGER | Failure to observe this information will result in serious injury or death. |
| WARNING | Failure to observe this information may result in serious injury or death. |
| CAUTION | Failure to observe this information may result in non-serious or minor injury. |
1.2 Other symbols in this documentation
Note
General information is identified by the adjacent symbol. f Read these texts carefully.
| Symbol | Meaning |
| Material losses (appliance damage, consequential losses and environmental pollution) | |
![]() | Appliance disposal |
This symbol indicates that you have to do something. The action you need to take is described step by step.
1.3 Information on the appliance
Connections
| Symbol | Meaning |
![]() | Supply / Inlet / Flow |
![]() | Drain / Outlet / Return |
![]() | Heat pump |
![]() | Central heating |
1.4 Units of measurement
Note All measurements are given in mm unless stated otherwise.
Safety
2.1 Intended use
This appliance is designed to extend the operating time of the heat generator and to bridge power-OFF periods. The heat pump buffer cylinder also provides hydraulic separation of the flow rates in the heat pump circuit and the heating circuit.
Observation of these instructions and of instructions for any accessories and other system components used is also part of the correct use of this appliance.
Any other use beyond that described shall be deemed inappropriate. Using the appliance for heating fluids other than water or for water supplemented with chemicals, such as brine, is also deemed inappropriate.
Appliance description
The steel cylinder with directly applied foam insulation is equipped with a protective cover, connections for ventilation and draining, and a sensor pipe. The hydraulic connections are routed through the top.
Troubleshooting
Call your qualified contractor.
To facilitate and speed up your inquiry, please provide the serial number from the type plate (000000-0000-000000):
Safety
Only a qualified contractor should carry out the installation, commissioning, maintenance and repair of the appliance.
5.1 General safety instructions
We guarantee trouble-free function and operational reliability only if original accessories and spare parts intended for the appliance are used.
5.2 Instructions, standards, and regulations
Note Observe all applicable national and regional regulations and instructions.
Appliance description
6.1 Standard delivery
The following are delivered with the appliance: – 3 adjustable feet
Preparations
7.1 Installation site
- Always install the appliance in a room free from the risk of frost.
- Ensure the floor has sufficient load-bearing capacity and evenness (see chapter “Specification / Data table”).
- Observe the room height and height when tilted (see chapter “Specification / Data table”).
Minimum clearances
Installation
8.1 Positioning the equipment
Use the adjustable feet provided to compensate for any unevenness in the floor.
- Undo the 3 screws from the non-returnable pallet.
- Tilt the appliance and screw the 3 adjustable feet provided into the appliance.
- Lift the appliance off the pallet.
- When installing, observe minimum clearances (see chapter “Preparations / Installation site”).
8.2 Heating water connection
Material losses
Carry out all water connection and installation work in accordance with regulations.
- Observe the heat pump operating and installation instructions when making the heating water connection.
- Connect the hydraulic connections with flat gaskets.
Oxygen diffusion
Material losses
Avoid open heating systems and plastic pipes in underfloor heating systems which are permeable to oxygen.
In underfloor heating systems with plastic pipes that are permeable to oxygen and in open vented heating systems, oxygen diffusion may lead to corrosion on the steel components of the heating system (e.g. on the indirect coil of the DHW cylinder, on buffer cylinders, steel heating elements or steel pipes).
Material losses
The products of corrosion (e.g. rusty sludge) can settle in the heating system components and can result in a lower output or fault shutdowns due to reduced cross-sections.
Commissioning
9.1 Initial start-up
- Fill and bleed the appliance (see chapter “Specification / Dimensions and connections”).
- Carry out a tightness check.
9.1.1 Appliance handover
- Explain the function of the appliance to users and familiarise them with its operation.
- Make the user aware of potential dangers, especially the risk of scalding.
- Hand over these instructions
9.2 Recommissioning
See chapter “Commissioning / Initial start-up”.
10. Shutdown
f Drain the appliance. See chapter “Maintenance / Draining the appliance”.
11. Maintenance
No special maintenance is required for the appliance. A regular visual check is sufficient.
11.1 Draining the appliance
WARNING Burns Hot water may escape during draining.
If the appliance needs to be drained for maintenance or to protect the whole installation when there is a risk of frost, proceed as follows:
Drain the appliance using the appliance drain connection (see chapter “Specification / Dimensions and connections”).
www.stiebel-eltron.com
Specification
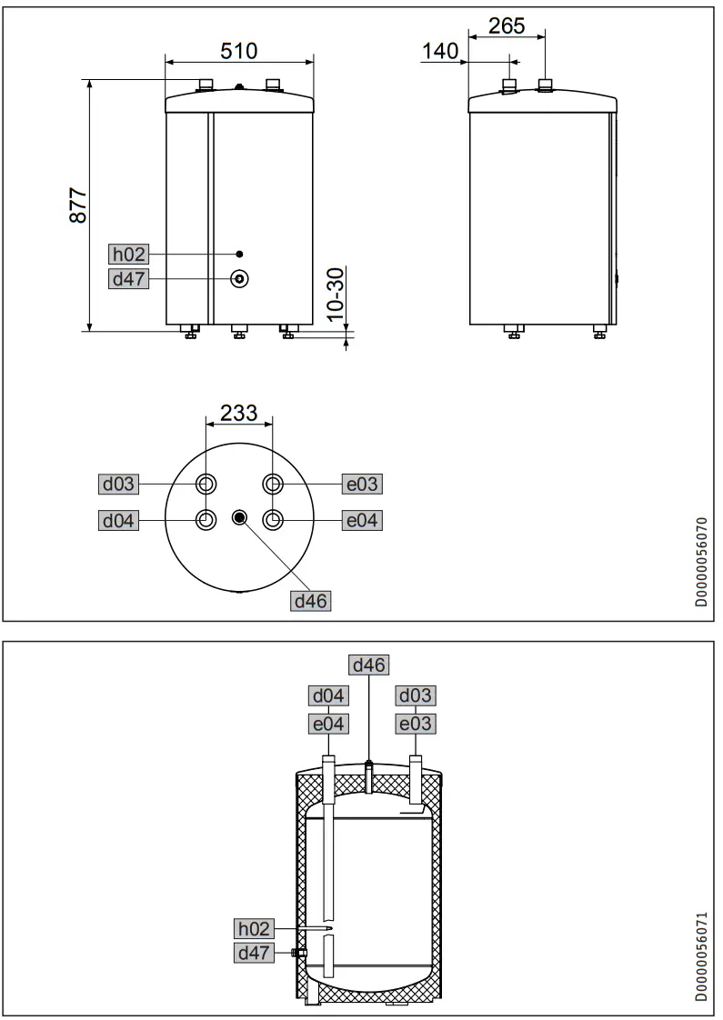
12.1 Dimensions and connections
| SBP 100 classic | |||
| d03 | Heat pump flow optional | Male thread | G 1 1/4 |
| d04 | Heat pump return optional | Male thread | G 1 1/4 |
| e03 | Heating flow optional | Male thread | G 1 1/4 |
| e04 | Heating return optional | Male thread | G 1 1/4 |
| d46 | Ventilation | mm | |
| d47 | Drain | Female thread | G 1/2 |
| h02 | Sensor heat pump return | Diameter | 14 |
Optional connections
12.2 Details on energy consumption
| SBP 100 classic | |
| 235200 | |
| Manufacturer | STIEBEL ELTRON |
| Model-identification of the supplier | SBP 100 classic |
| Energy efficiency class | C |
| standing loss S………………w | 50 |
| storage volume V | 99 |
12.3 Data table
Energy data Energy efficiency class Standby energy consumption/24 h at 65 °C Hydraulic data Rated capacity Application limits, Max. permissible pressure Test pressure Max. permissible temperature Dimensions Height Width Depth Weights Weight (wet) Weight (dry)
| SBP 100 classic | ||
| KWH | 235200 | |
| Energy data | C | |
| Energy efficiency class | 1,2 | |
| Standby energy consumption/24 h at 65 °C | 1 | 100 |
| Hydraulic data | kWh | 0,3 |
| Rated capacity | l | 0,45 |
| Application limits | MPa | 95 |
| Max. permissible pressure | MPa | 877 |
| Test pressure | °C | 510 |
| Max. permissible temperature | mm | 510 |
| Dimensions | mm | 120 |
| Height | mm | 21 |
| Width | kg | 510 |
| Depth | kg | 510 |
| Weights | kg | |
| Weight (wet)…………………………………………kg | 120 | |
| Weight (dry)kg,………………………………………………kg | 21 | |
Guarantee
The guarantee conditions of our German companies do not apply to appliances acquired outside of Germany. In countries where our subsidiaries sell our products, a guarantee can only be issued by those subsidiaries. Such a guarantee is only granted if the subsidiary has issued its own terms of the guarantee. No other guarantee will be granted.
We shall not provide any guarantee for appliances acquired in countries where we have no subsidiary to sell our products. This will not affect warranties issued by any importers.
Environment and recycling
We would ask you to help protect the environment. After use, dispose of the various materials in accordance with national regulations.
www.stiebel-eltron.com
Deutschland
STIEBEL ELTRON GmbH & Co. KG
Dr.-Stiebel-Straße 33 | 37603 Holzminden
Tel. 05531 702-0 | Fax 05531 702-480
[email protected]
www.stiebel-eltron.de
United Kingdom and Ireland
STIEBEL ELTRON UK Ltd.
Unit 12 Stadiu
m Court
Stadium Road | CH62 3RP Bromborough
Tel. 0151 346-2300 | Fax 0151 334-2913
[email protected]
www.stiebel-eltron.co.uk
United States of America
STIEBEL ELTRON, Inc.
17 West Street | 01088 West Hatfield MA
Tel. 0413 247-3380 | Fax 0413 247-3369
[email protected]
www.stiebel-Eltron-usa.com
Subject to errors and technical changes!
Stand 9646
























