BT6730 LED Video Scoreboard
Installation Guide
BT6730 Video
BT6730 LED Video Scoreboard
Installation instructions
The document is concerning the following products :
915782………………….. BT6730 Video 7M 12P H10
915783…………………. BT6730 Video 7M 12P H15
915786………………………. BT6730 Video 7M 14P H10
Upon receipt, always check the product for damage during shipment. If any is found, you may file a damage claim with the carrier.
Electrical and mechanical safety standards
1.1 Mechanical
Installation and maintenance of this equipment should only be carried out by qualified personnel.
It is prohibited and dangerous to immerse the scoreboard in to water or clean it with a water jet.
1.2 Electrical
Since BT6000 scoreboards are connected to a mains supply, they must be installed in compliance with standard IEC 364.
The mains supply for the scoreboards must include a neutral phase circuit breaker, rapidly accessible upstream from the supply.
Installation ground connection as per EE or EN (earth/earth or earth/neutral) power supply diagram.
This circuit breaker must be switched off during maintenance operations.
For reasons relating to the safety of individuals and for immunity against the effects of lighting, no cable connected to the reader must connect two buildings that have protective ground connections independent of each other. These cables must not leave a building. It may be necessary to have an earth connection continuity ensured by a conductor other than the cables of the reader.
1.3 General
This material must be installed before being connected to mains.
Bodet accepts no responsibility for any use not in compliance with these instructions.
Any modification to the product will invalidate the guarantee.
WARNING
The video screen is not included. The multiple choice of the technology of video screen is the object of a specific installation followed by a technical file realized for your project. This is also true for the frames whose design and installation are specific according to their location. They are the object of a special study which is presented in a technical file prepared by our team.
Inventory of the received equipment
2.1 BT6730 Vidéo scoreboard
A BT6030
B Scores panels (left and right)
C BT6107M (12 or 14 players)
D BT6105M (12 or 14 players)
E BT6102 (special BT6730)
F BT6106 (special BT6730)
G Sponsor panel
H Video screen 7m² (not included)
2.2 Keyboards
WARNING: the keyboards are not included with the scoreboards (they have their own commercial reference). It is essential to have a Scorepad keyboard to control the scoreboards.
Wall mounting
WARNING : before the final assembly of the equipment it is important to thread each cable (240V + data) through the appropriate cable glands.
N.B: wall mounting and suspended mounting are not covered in this manual. These two parameters depend on the technology of the video screen and your environment.
We recommend the use of a cherry picker to secure the frame to the wall, assemble and mount each element on the frame.
3.1 BT6730 Video 7M 12P H10
The frame must be fitted and in place before the assembling the scoreboard.
- Proceed to the assembly of the LED screen.
- Proceed to the assembly all the squares on the frame (C1, C2, C3 et C4).
- Mount the brackets (C1) on top of the scores panels and BT6030 panel.
- Mount 2 squares (C4) on the bottom of each score panel.
- Assemble the left BT6107 and left BT6105M with the slotted holes and screw (A).
- Assemble the left BT6107M and left BT6105M on the frame with the slotted holes and screw (B).
- Fixe BT6105M left, BT6107M left and BT6102 left on the frame (C3).
- Repeat this 4 process for the right BT6105M, BT6107M and BT6102 right.
- Fix the distribution box and power supply box to the wall or to the back of the frame.
3.2 BT6730 Video 7M 14P H10
The frame must be fitted and in place before the assembling the scoreboard.
- Proceed to the assembly of the LED screen.
- Mount the 3 brackets (C1) on top of the scores panels and BT6030 panel (3 screws).
- Mount the 3 squares (C2) on the BT6030 bottom.
- Mount the scores panels and BT6030 assembly on the frame.
- Assemble the left BT6107M and left BT6105M with the slotted holes and screw (A).
- Mount the 2 brackets (C3) on the top of BT6105M left and BT6107M left.
- Mount 2 squares (C4) on the bottom of each score panel.
- Mount BT6105M left and BT6107M left on the frame.
- Repeat this 4 process for the right BT6105M and BT6107M.
- Mount the BT6106 module underneath the BT6107/BT6105 assembly with the slotted holes and screws (B).
- Fix to the wall or to the back of the frame the distribution box and power supply box.
- Fixe the sponsor box underneath the video screen with the slotted holes and screws (C).
3.3 BT6730 Video 7M 12P H15
The frame must be fitted and in place before the assembling the scoreboard.
- Proceed to the assembly of the LED screen.
- Proceed to the assembly all the squares on the frame (C1, C2, C3 et C4).
- Mount the brackets (C1) on top of the scores panels and BT6030 panel.
- Mount 2 squares (C4) on the bottom of each score panel.
- Assemble the left BT6107M and left BT6105M with the slotted holes and screw (A).
- Assemble the left BT6107M and left BT6105M on the frame with the slotted holes and screw (B).
- Fixe BT6105M left, BT6107M left and BT6102 left on the frame (C3).
- Repeat this 4 process for the right BT6105M, BT6107M and BT6102.
- Fix to the wall or to the back of the frame the distribution box and power supply box.
- Fixe the sponsor box underneath the video screen with the slotted holes and screws (C).

Electrical connections
The wiring of the BT6730 7M 12P H10 scoreboard is done in the factory for the most part. The procedure that follows concerns only the wiring that must be done at installation time.
WARNING: observe the polarities and colours for each cable.
4.1 BT6730 Video 7M 12P H10
- Open the access doors of BT6030 and BT6105M. Each door has 2 quarter-turn screws.
- Connect the BUS Sport/Chrono cable (4 wires: brown, white, green and yellow) coming from the distribution box on the BT6030 connector (A). This cable is to be connected only to the main scoreboard when several scoreboards exist.
- Connect the Alpha cable (3 wires: yellow/green/brown) coming from the distribution box on the BT6030 connector (B).
- Connect the power supply 240V + earth on the power terminal block of the BT6030 (C) (Bodet does not supply the cable (3×1,5²)).
- Connect the Alpha cable (3 wires: yellow/green/brown) coming from each score panel on the BT6030 connector (D).
- Connect a power supply cable 240V (3 wires: green/yellow, brown and blue) coming from each score panel on the BT6105M power terminal block (E).
- Connect the flat ribbon cables coming from each score panel on BT6030 cards (F).
- Connect the 240V power on the power terminal block of each BT6105M (G).
- Connect the BUS Sport/Chrono cable (3 wires: yellow/green/brown) coming from the distribution box on each COM card of the BT6105M (H).
- Connect the 13V power cable (2 wires: red and black) coming from the BT6102 to the power terminal block BT6105M (I).
- Connect the BUS Sport/Chrono cable (2 wires: brown and white) coming from the BT6102 on card of the BT6105M (J).
- Connect the 240V power cable (3 wires: green/yellow, brown and blue) coming from each BT6107M on the BT6105M power terminal block (K).
- Connect the Alpha cable (3 wiress: yellow/green/brown) coming from each BT6107M on the distribution box (L).
Wiremap :
Refer to the Moxa interface datasheet for the connection of the Scorepad
4.2 BT6730 Video 7M 14P H10
- Open the access doors of BT6030 and BT6105M. Each door has 2 quarter-turn screws.
- Connect the BUS Sport/Chrono cable (4 wires: brown, white, green and yellow) coming from the distribution box on the BT6030 connector (A). This cable is to be connected only to the main scoreboard when several scoreboards exist.
- Connect the Alpha cable (3 wires: yellow/green/brown) coming from the distribution box on the BT6030 connector (B).
- Connect the power supply 240V + earth on the power terminal block of the BT6030 (C) (Bodet does not supply the cable (3×1,5²)).
- Connect the Alpha cable (3 wires: yellow/green/brown) coming from each score panel on the BT6030 connector (D).
- Connect a power supply cable 240V (3 wires: green/yellow, brown and blue) coming from each score panel on the BT6105M power terminal block (E).
- Connect the flat ribbon cables coming from each score panel on BT6030 cards (F).
- Connect the 240V power on the power terminal block of each BT6105M (G).
- Connect the BUS Sport/Chrono cable (3 wires: yellow/green/brown) coming from the distribution box on each COM card of the BT6105M (H).
- Connect the 13V power cable (2 wires: red and black) coming from the BT6106 to the power terminal block BT6105M (I).
- Connect the BUS Sport/Chrono cable (2 wires: brown and white) coming from the BT6106 on card of the BT6105M (J).
- Connect the 240V power cable (3 wires: green/yellow, brown and blue) coming from each BT6107M on the BT6105M power terminal block (K).
- Connect the Alpha cable (3 wiress: yellow/green/brown) coming from each BT6107M on the distribution box (L).
Wiremap :
Refer to the Moxa interface datasheet for the connection of the Scorepad
4.3 BT6730 Video 7M 12P H15
- Open the access doors of BT6030 and BT6105M. Each door has 2 quarter-turn screws.
- Connect the BUS Sport/Chrono cable (4 wires: brown, white, green and yellow) coming from the distribution box on the BT6030 connector (A). This cable is to be connected only to the main scoreboard when several scoreboards exist.
- Connect the Alpha cable (3 wires: yellow/green/brown) coming from the distribution box on the BT6030 connector (B).
- Connect the power supply 240V + earth on the power terminal block of the BT6030 (C) (Bodet does not supply the cable (3×1,5²)).
- Connect the Alpha cable (3 wires: yellow/green/brown) coming from each score panel on the BT6030 connector (D).
- Connect a power supply cable 240V (3 wires: green/yellow, brown and blue) coming from each score panel on the BT6105M power terminal block (E).
- Connect the flat ribbon cables coming from each score panel on BT6030 cards (F).
- Connect the 240V power on the power terminal block of each BT6105M (G).
- Connect the BUS Sport/Chrono cable (3 wires: yellow/green/brown) coming from the distribution box on each COM card of the BT6105M (H).
- Connect the 13V power cable (2 wires: red and black) coming from the BT6102 to the power terminal block BT6105M (I).
- Connect the BUS Sport/Chrono cable (2 wires: brown and white) coming from the BT6102 on card of the BT6105M (J).
- Connect the 240V power cable (3 wires: green/yellow, brown and blue) coming from each BT6107M on the BT6105M power terminal block (K).
- Connect the Alpha cable (3 wiress: yellow/green/brown) coming from each BT6107M on the distribution box (L).
Wiremap :
Refer to the Moxa interface datasheet for the connection of the Scorepad
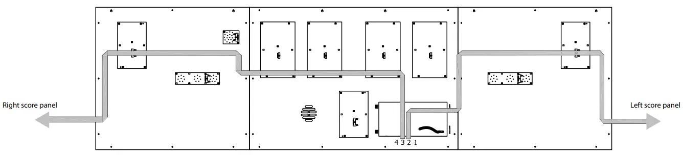
4.4 Viewing electrical connections
4.5 Connecting the flat ribbon cable (BT6030)
Dips setting
The dips are set in the factory, make sure that they set as follow:
5.1 BT6030 Alpha electronic card
On the first DIP bank
– Dips 1 to 4 are used for the factory setting of the panel.
– Dips 5 to 7 are used to set the panel number (if several panels are to be controlled on the same site, each panel needs to have its own number).
– the dip 8 is ON (by default).
On the second DIP bank
– Dips 1 to 3 are used to determined the installation number.
5.2 BT6730 Video 7M 12P H10
5.3 BT6730 Vidéo 7M 14P H10
5.4 BT6730 Video 7M 12P H15
Test mode
6.1 Scoreboards test
With a Scorepad keyboard:
- Put the scoreboard in time display mode
- Tap the
key ( Home screen). - Tap the
key. - Tap the
key (Scorepad). The test starts.
With a BT6000 main keyboard:
- Put the scoreboard in time display mode
- Press the key during 5 seconds. The test starts.
With a BT6000 main keyboard:
- Put the scoreboard in time display mode
- Press the
key during 5 seconds. The test starts.
Test sequence:
> Display on the scoreboard: panel number > installation number > version of the program > number of the lines > addresses of the led modules > all leds on (mode «888») >all leds off > time display.
> Display on the alphanumeric line (if present): display of triangles and squares.
> Display on the BT6000 main keyboard: screen test > test of the keys > end with the Start key
With a Pocket keyboard and an Alphascore keyboard:
- Put the scoreboard in time display mode with the key
. - Press and hold the key
. The test starts
Test sequence:
Display of the EPROM version.
Display of the number of the ribbon cable of each led module.
Display of the address of each module on the ribbon cable.
All leds of all modules ON.
All leds of all modules OFF.
Display of the channel number of the keyboard.
Back to normal mode
6.2 Scorepad keyboard test
The test function of the Scorepad keyboard is dissociated from the test function of the scorboards
- Tap the
key ( Home screen). - Tap the
key (Scorepad). - Tap on
.
The screen first display a white screen, tap on the screen to make the test scroll (several colours) and then the Scorepad keyboard goes back to the initial screen.
www.bodet-sport.com
BODET Time & Sport
1 rue du Général de Gaulle
49340 Trémentines I France
Tel: +33 241 71 72 33![]()
















