
VIDEOBAR DISPLAY MOUNTING KIT
Installation Guide
Package Contents
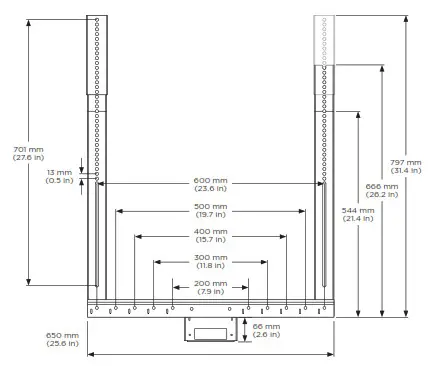
Dimensions & Weight
Important Safety Instructions






INSTALLATION
- Read the included Important Safety Instructions before continuing.
WARNING: Install this display mounting kit only if the display will be fixed in place on a wall or to a cart. Do not install this kit on a display that will not be fixed in place, such as on a tabletop stand.
WARNING: Ensure the wall-mount bracket or cart (to which the display will be installed) is rated for the additional weight of this display mounting kit and the Bose Videobar. - Lay the display face-down on a smooth, flat, and stable surface. (If the display is already mounted on the wall, detach the display from its wall-mount bracket, and set the original hardware aside.)
Note: We do not recommend using this display mounting kit with a display in a “portrait” (vertical) orientation. - Use two M4 screws (E) to attach the mounting plate (A) to the center of the horizontal bracket (B). The flanges of the bracket and mounting plate should face the same direction.
- Measure and note the following two distances:
X: The horizontal distance between the mounting points on the display. This number should be one of five set values: 200 mm (7.9 in), 300 mm (11.8 in), 400 mm (15.7 in), 500 mm (19.7 in), or 600 mm (23.6 in).
Y: The vertical distance between the edge of the display where the Bose Videobar will be mounted (above or below the display) and the two mounting points near the opposite edge of the display.
A. If Y is greater than 646 mm (25.4 in), use eight M4 screws (E) to attach the two extension brackets (D) to the tops of the vertical brackets (C). Tighten the screws only partially; they need to be slightly loose to allow for fine adjustments later. The extension brackets will extend the usable length of the vertical brackets up to 139 mm (5.5 in).
B. If Y is less than 544 mm (21.4 in), use the edge of a flat, stable surface to break off the ends of the vertical brackets (C) at the pre-cut notch. This will shorten the vertical brackets so they do not protrude beyond the edge of the display.
Be careful — the broken edges of the bracket may be sharp.
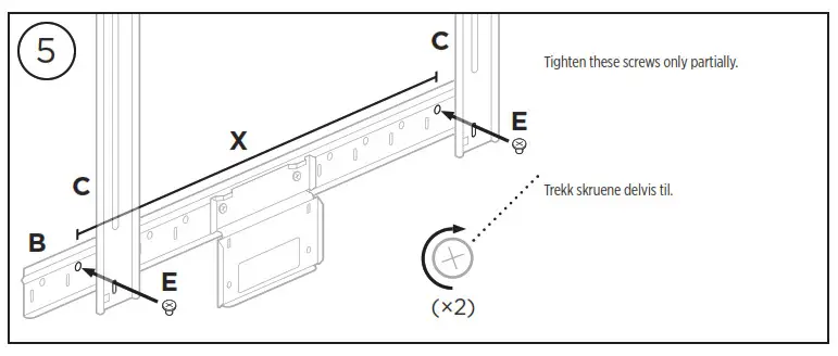
C. If Y is 544–646 mm (21.4–25.4 in), skip to Step 5. - Use two M4 screws (E) to attach the two vertical brackets (C) to the horizontal bracket (B), equidistant from its center. The distance between the centers of the vertical brackets should match the X measurement from Step 4. The flanges of the three brackets and mounting plate should face the same direction. Tighten the screws only partially; they need to be slightly loose to allow for fine adjustments later.
- For each vertical bracket, align one of its holes and its longer slot with the mounting screw holes on the rear panel of the display. Ensure the distance between the desired hole of the vertical bracket and the flange of the horizontal bracket match the Y measurement from Step 4 (this ensures the horizontal bracket does not protrude
beyond the edge of the display). - At each of those four points, place an M8 washer (F) between the display and the bracket.
- Align the wall-mount bracket with the four points from Step 7, and use the wall-mount bracket’s hardware (from Step 2) to attach it to the vertical brackets and display.
- Fully tighten the two M4 screws connecting the two vertical brackets to the horizontal bracket (from Step 5).
- If you used the extension brackets (in Step 4A), fully tighten the eight M4 screws connecting the extension brackets to the vertical brackets. If not, skip to Step 11.
- Attach the wall-mount bracket (with the attached display and assembled brackets) to the wall.
- Attach the Bose Videobar to the mounting plate and ensure it is level.
Bose Videobar VB1: Use an M4 nut (H) to attach each hinged tab of the VB1 to a screw of the mounting plate, and place an M4 washer (G) between them.
Bose Videobar VB‑S: Use two M4 nuts (H) to attach the hinged bracket of the VB-S to the screws of the mounting plate. - Thread any cables connected to the Bose Videobar through the window of the mounting plate.
- Gently pull the Bose Videobar up or down to the desired angle.

©2022 Bose Corporation, All rights reserved.
Framingham, MA 01701-9168 USA
PRO.BOSE.COM
AM869990 Rev. 00
April 2022


















