AMANA AMVC96 Variable Speed ECM Gas Furnace

Standard Features
- Integrated communicating ComfortBridge™ Technology
- Commissioning and diagnostics via on board Bluetooth with the CoolCloud phone and tablet application
- Heavy-duty stainless-steel tubular heat exchanger
- Stainless-steel secondary heat exchanger
- Two-stage gas valve provides quiet, economical heating
- Durable Silicon Nitride igniter
- Quiet two-speed induced draft blower
- Compatible with any single-stage thermostat
- Self-diagnostic control board with constant memory fault code history output to a triple 7-segment display
- Color-coded low-voltage terminals with provisions for electronic air cleaner
- Efficient and quiet variable-speed airflow system gently ramps up or down according to heating or cooling demand
- Multiple continuous fan speed options offer quiet air circulation
- Auto-Comfort and enhanced dehumidification modes available
- All models comply with California 40 ng/J Low NOx emissions standard
- Can no longer be installed in California’s South Coast Air Quality Management District (SCAQMD) on or after October 1, 2019.
Cabinet Features
- Designed for multi-position installation: upflow, horizontal left or right
- Certified for direct vent (2-pipe) or non-direct vent (1-pipe)
- Easy-to-install top venting with optional side venting
- Convenient left or right connection for gas and electrical service
- Cabinet air leakage (QLeak) ≤ 2%
- Heavy-gauge steel cabinet with durable finish
- Fully insulated heat exchanger and blower section
- Airtight solid bottom or side return with easy-cut tabs for effortless removal in bottom air-inlet applications

Complete warranty details available from your local dealer or at www.amana-hac.com. To receive the Lifetime Heat Exchanger Limited Warranty, the Lifetime Unit Replacement Limited Warranty (in both cases good for as long as you own your home), and the 10-Year Parts Limited Warranty, online registration must be completedwithin 60 days of installation. Online registration is not required in California or Québec.
Nomenclature

Accessories
| Model | Description | AMVC96 0403BNB | AMVC96 0603BNB | AMVC96 0803BNB | AMVC96 0804CNB | AMVC96 1005CNB | AMVC96 1005DNB | AMVC96 1205DNB |
| 72950 | Concentric Vent Kit (2″) | √ | √ | √ | √ | √ | √ | ― |
| 72951 | Concentric Vent Kit (3″) | √ | √ | √ | √ | √ | √ | √ |
| RF000142 | Drain Kit Horizontal Left Vertical Flue | √ | √ | √ | √ | √ | √ | √ |
| EFR02 | External Filter Rack with 16″x25″ Permanent Filter | √ | √ | √ | √ | √ | √ | √ |
| 0170K00000S | Flush Mount Vent Kit- 3″ or 2″ | √ | √ | √ | √ | √ | √ | √ |
| 0170K00001S | Flush Mount Vent Kit- 2″ | √ | √ | √ | √ | √ | √ | ― |
| HASFK | High-Altitude Natural Gas Kit | HASFK-1 | HASFK-1 | HASFK-1 | HASFK-2 | HASFK-3 | TBD | HASFK-2 |
| HASFK | High-Altitude LP Gas Kit | HASFK-1 | HASFK-1 | HASFK-1 | HASFK-2 | HASFK-2 | TBD | HASFK-2 |
| 0270F05404 | Horizontal Drain Tubing Kit | √ | √ | √ | √ | √ | √ | √ |
| LPLP03 | Low LP Gas Pressure Switch | √ | √ | √ | √ | √ | √ | √ |
| LPM-08 | LP Conversion Kits | √ | √ | √ | √ | √ | √ | √ |
Product Specifications
| AMVC96 0403BNB | AMVC96 0603BNB | AMVC96 0803BNB | AMVC96 0804CNB | AMVC96 1005CNB | AMVC96 1005DNB | AMVC96 1205DNB | |
| Heating Data | |||||||
| High Fire Input¹ | 40,000 | 60,000 | 80,000 | 80,000 | 100,000 | 100,000 | 120,000 |
| High Fire Output¹ | 38,400 | 57,600 | 76,800 | 76,800 | 96,000 | 96,000 | 115,200 |
| Low-Fire Steady-State Input¹ | 28,000 | 42,000 | 56,000 | 56,000 | 70,000 | 70,000 | 84,000 |
| Low-Fire Steady-State Output¹ | 26,880 | 40,320 | 53,760 | 53,760 | 67,200 | 67,200 | 80,640 |
| AFUE² | 96 | 96 | 96 | 96 | 96 | 96 | 96 |
| Temperature Rise Range (°F) | 20- 50 | 35- 65 | 35- 65 | 25- 55 | 35- 65 | 30- 60 | 35- 65 |
| Vent Diameter³ | 2″- 3″ | 2″- 3″ | 2″- 3″ | 2″- 3″ | 2″- 3″ | 2″- 3″ | 2″- 3″ |
| No. of Burners | 2 | 3 | 4 | 4 | 5 | 5 | 6 |
| Circulator Blower | |||||||
| Available AC @ 0.5″ ESP | 1.5- 3 | 1.5- 3 | 1.5- 3 | 1.5- 4 | 2- 5 | 2- 5 | 2- 5 |
| Size (D x W) | 10″ x 8″ | 11″ x 8″ | 11″ x 8″ | 11″ x 10″ | 11″ x 10″ | 11″ x 11″ | 11″ x 11″ |
| Horsepower @ 1075 RPM | ½ | ½ | ½ | ¾ | 1 | 1 | 1 |
| Speed | VS ECM | VS ECM | VS ECM | VS ECM | VS ECM | VS ECM | VS ECM |
| Electrical Data | |||||||
| Min. Circuit Ampacity⁴ | 7.8 | 7.8 | 7.8 | 10.6 | 14.4 | 14.4 | 14.4 |
| Max. Overcurrent Device (amps)⁵ | 15 | 15 | 15 | 15 | 20 | 20 | 20 |
| Shipping Weight (lbs) | 114 | 117 | 120 | 141 | 143 | 153 | 156 |
- Natural Gas BTU/h
- DOE AFUE based upon Isolated Combustion System (ICS)
- Installer must supply one or two PVC pipes: one for combustion air (optional) and one for the flue outlet (required). Vent pipe must be either 2″ or 3″ in diameter, depending upon furnace input, number of elbows, length of run and installation (1 or 2 pipes). The optional Combustion Air Pipe is dependent on installation/code requirements and must be 2″ or 3″ diameter PVC.
- Minimum Circuit Ampacity = (1.25 x Circulator Blower Amps) + ID Blower amps. Wire size should be determined
in accordance with National Electrical Codes. Extensive wire runs will require larger wire sizes. - Maximum Overcurrent Protection Device refers to maximum recommended fuse or circuit breaker size. May use fuses or HACR-type circuit breakers of the same size as noted.
Notes
- All furnaces are manufactured for use on 115 VAC, 60 Hz, single-phase electrical supply.
- Gas Service Connection ½” FPT
- Important: Size fuses and wires properly and make electrical connections in accordance with the
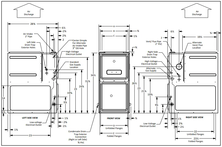
National Electrical Code and/or all existing local codes. - For bottom return: Failure to unfold flanges may reduce airflow by up to 18%. This could result in performance and noise issues.
- For servicing or cleaning, a 24″ front clearance is required. Unit connections (electrical, flue and drain)
may necessitate greater clearances than the minimum clearances listed above. In all cases, accessibility clearance must take precedence over clearances from the enclosure where accessibility clearances are greater.
AMVC96 Dimensions

| Air Discharge | Air Return | ||||
| Model | A | B | C | D | E |
| AMVC960403BNB | 17½” | 16″ | 13⅞” | 12⅛” | 13⅝” |
| AMVC960603BNB | 17½” | 16″ | 13⅞” | 12⅛” | 13⅝” |
| AMVC960803BNB | 17½” | 16″ | 13⅞” | 12⅛” | 13⅝” |
| AMVC960804CNB | 21″ | 19½” | 17⅜” | 16″ | 17½” |
| AMVC961005CNB | 21″ | 19½” | 17⅜” | 16″ | 17½” |
| AMVC961005DNB | 24½ | 23″ | 20⅞” | 19⅜” | 20⅞” |
| AMVC961205DNB | 24½ | 23″ | 20⅞” | 19⅜” | 20⅞” |
Minimum Clearances to Combustible Materials
| Position | Sides | Rear | Front | Bottom | Flue | Top |
| Upflow | 0″ | 0″ | 3″ | C | 0″ | 1″ |
| Horizontal | 6″ | 0″ | 3″ | C | 0″ | 6″ |
C = If placed on combustible floor, the floor MUST be wood ONLY.
Minimum Filter Sizes
| AMVC96 0403BNB | AMVC96 0603BNB | AMVC96 0803BNB | AMVC96 0804CNB | AMVC96 1005CNB | AMVC96 1005DNB | AMVC96 1205DNB | |
| Filter Size (in²) (Qty) | (1) 16 x 25 (side or bottom) | (1) 20 x 25 (bottom) or (2) 16 x 25 (side) | |||||
| MODEL/TEMP RISE RANGE (MID RISE) | AMVC96 0403BNB* 20-50 (35) | AMVC96 0603BNB* 35-65 (50) | AMVC96 0803BNB* 35-65 (50) | AMVC96 0804CNB* 25-55 (40) | AMVC96 1005CNB* 35-65 (50) | AMVC96 1005DNB* 30-60 (45) | AMVC96 1205DNB* 35-65 (50) | |||||||
| CFM | RISE | CFM | RISE | CFM | RISE | CFM | RISE | CFM | RISE | CFM | RISE | CFM | RISE | |
| Recommended cfm for high heat / expected temperature rise | 1010 | 35 | 1072 | 50 | 1400 | 50 | 1760 | 40 | 1770 | 50 | 1980 | 45 | 2150 | 50 |
| Lowest recommended cfm for hi heat / expected temperature rise | 710 | 50 | 820 | 65 | 1090 | 65 | 1300 | 55 | 1360 | 65 | 1480 | 60 | 1650 | 65 |
| Maximum cfm for hi heat / expected temperature rise | 1400 | 25 | 1400 | 38 | 1650 | 43 | 1760 | 40 | 2200 | 40 | 2200 | 40 | 2200 | 48 |
NOTE: Low Heat CFM = High Heat CFM X .7. Low Heat Temperature Rise Is Expected to Equal High Heat Temparatue Rise ± 5% 0140F02402-A

- All furnaces ship as high speed for cooling. Installer must adjust blower speed as needed.
- For most jobs, about 400 CFM per ton when cooling is desirable.
- Do not operate above .5” w.c. ESP in heating mode. Operating CFM between .5” and .8” w.c. is tabulated for cooling purposes only.
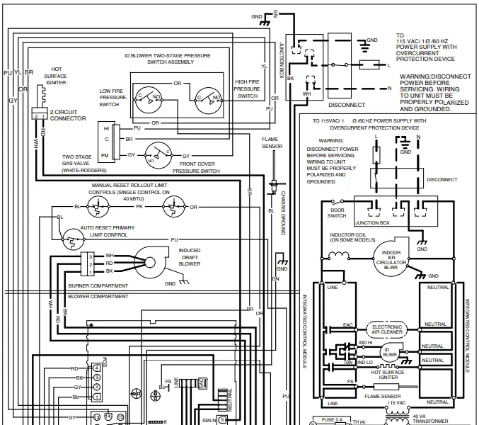
Wiring Diagram


WARNING
High Voltage: Disconnect all power before servicing or installing this unit. Multiple power sources may be present. Failure to do so may cause property damage, personal injury, or death.
Wiring is subject to change. Always refer to the wiring diagram on the unit for the most up-to-date wiring.
Amana® is a registered trademark of Maytag Corporation or its related companies and used under license to Goodman Company, L.P. All rights reserved. Our continuing commitment to quality products may mean a change in specifications without notice. © 2021 Goodman Company, L.P. • Houston, Texas

















