AM9S92 Single-Stage,
Multi-Speed ECM Gas Furnace
Instruction Manual
Standard Features
- Heavy-duty stainless-steel tubular heat exchanger
- Stainless-steel secondary heat exchanger
- Single-stage gas valve
- Durable Silicon Nitride igniter
- Multi-speed ECM blower motor
- Quiet single-speed induced draft blower
- Self-diagnostic control board
- All models comply with California 40 ng/J Low NOx emissions standard
- Can no longer be installed in California’s South Coast Air Quality Management District (SCAQMD) on or after October 1, 2019.
- AHRI Certified; ETL Listed
Cabinet Features
- Designed for multi-position installation —AM9S92: upflow, horizontal left or right
- Certified for direct vent (2-pipe) or non-direct vent (1-pipe)
- Easy-to-install top venting with optional side venting — AM9S92/upflow models only
- Convenient left or right connection for gas and electrical service
- Cabinet air leakage (QLeak) ≤ 2%
- Heavy-gauge steel cabinet with durable finish
- Foil-faced insulated heat exchanger cabinet
- Airtight solid bottom or side return with easy-cut tabs for effortless removal in bottom air-inlet applications

* Complete warranty details available from your local dealer or at www.amana-hac.com. To receive the Lifetime Heat Exchanger Limited Warranty (good for as long as you own your home), 2-Year Unit Replacement Limited Warranty and 10- Year Parts Limited Warranty, online registration must be completed within 60 days of installation. Online registration is not required in California or Quebec.
Nomenclature

| AM9S92 0403AN | AM9S92 0603BN | AM9S92 0803BN | AM9S92 0804CN | AM9S92 0805CN | AM9S92 1004CN | AM9S92 1005CN | AM9S92 1205DN | |
| Heating Data | ||||||||
| High Fire Input¹ | 40,000 | 60,000 | 80,000 | 80,000 | 80,000 | 100,000 | 100,000 | 120,000 |
| High Fire Output¹ | 36,840 | 55,260 | 73,680 | 73,680 | 73,680 | 92,100 | 92,100 | 110,520 |
| AFUE² | 92 | 92 | 92 | 92 | 92 | 92 | 92 | 92 |
| Temperature Rise Range (°F) | 30-60 | 35-65 | 35-65 | 35-65 | 25-55 | 35-65 | 35-65 | 35-65 |
| Vent Diameter³ | 2″- 3″ | 2″- 3″ | 2″- 3″ | 2″- 3″ | 2″- 3″ | 2″- 3″ | 2″- 3″ | 3″ |
| No. of Burners | 2 | 3 | 4 | 4 | 4 | 5 | 5 | 6 |
| Circulator Blower | ||||||||
| Available AC @ 0.5″ ESP | 1.5- 3 | 1.5- 3 | 1.5- 3 | 2.5- 4 | 3- 5 | 3- 5 | 3- 5 | 3- 5 |
| Size (D x W) | 10″ x 6″ | 10″ x 8″ | 10″ x 8″ | 10″ x 10″ | 11″ x 10″ | 10″ x 10″ | 11″ x 10″ | 11″ x 11″ |
| Horsepower @ 1075 RPM | 1/2 | 1/2 | 1/2 | 3/4 | 1 | 3/4 | 1 | 1 |
| Speed | 9 | 9 | 9 | 9 | 9 | 9 | 9 | 9 |
| Filter Size (in²) (Qty) | (1) 16 x 25 (side) or (1) 14 X 25 (bottom) | (1) 16 x 25 (side or bottom) | (1) 16 x 25 (side or bottom) | (1) 16 x 25 (side or bottom) | (1) 20 x 25 (bottom) or (2) 16 x 25 (side) | (1) 16 x 25 (side or bottom) | (1) 20 x 25 (bottom) or( 2) 16 x 25 (side) | (1) 20 x 25 (bottom) or( 2) 16 x 25 (side) |
| Electrical Data | ||||||||
| Min. Circuit Ampacity⁴ | 10.3 | 10.3 | 10.3 | 14.1 | 16.9 | 14.1 | 16.9 | 16.9 |
| Max. Overcurrent Device (amps)⁵ | 15 | 15 | 15 | 15 | 20 | 15 | 20 | 20 |
| Shipping weight (lbs) | 106 | 114 | 117 | 139 | 140 | 141 | 141 | 154 |
¹ Natural Gas BTU/h
² DOE AFUE based upon Isolated Combustion System (ICS)
³ Installer must supply one or two PVC pipes: one for combustion air (optional) and one for the flue outlet (required).
Vent pipe must be either 2″ or 3″ in diameter, depending upon furnace input, number of elbows, length of run and installation (1 or 2 pipes). The optional Combustion Air Pipe is dependent on installation/code requirements and must be 2″ or 3″ diameter PVC.
⁴ Minimum Circuit Ampacity = (1.25 x Circulator Blower Amps) + ID Blower amps. Wire size should be determined in accordance with National Electrical Codes. Extensive wire runs will require larger wire sizes.
⁵ Maximum Overcurrent Protection Device refers to maximum recommended fuse or circuit breaker size.
May use fuses or HACR-type circuit breakers of the same size as noted.
Notes
- All furnaces are manufactured for use on 115 VAC, 60 Hz, single-phase electrical supply.
- Gas Service Connection ½” FPT
- Important: Size fuses and wires properly and make electrical connections in accordance with the National Electrical Code and/or all existing local codes.
- For bottom return: Failure to unfold flanges may reduce airflow by up to 18%. This could result in performance and noise issues.
- For servicing or cleaning, a 24″ front clearance is required. Unit connections (electrical, flue and drain) may necessitate greater clearances than the minimum learances listed above. In all cases, accessibility clearance must take precedence over clearances from the enclosure where accessibility clearances are greater.
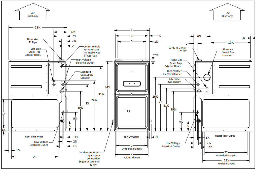
AM9S92 Dimensions

| model | A | B | C | D | E |
| AM9S920403A* | 14″ | 12½” | 10½” | 8⅝” | 10⅛” |
| AM9S920603B* | 17½ | 16” | 13⅞” | 12⅛” | 13⅝” |
| AM9S920803B* | 17½ | 16” | 13⅞” | 12⅛” | 13⅝” |
| AM9S920804C* | 21″ | 19½” | 17⅜ | 16″ | 17½” |
| AM9S920805C* | 21″ | 19½” | 17⅜ | 16″ | 17½” |
| AM9S921004C* | 21″ | 19½” | 17⅜ | 16″ | 17½” |
| AM9S921005C* | 21″ | 19½” | 17⅜ | 16″ | 17½” |
| AM9S921205D* | 24½ | 23” | 20⅞” | 19⅜” | 20⅞” |
Minimum Clearances to Combustible Materials
| Position | Sides | Rear | Front | Bottom | Flue | Top |
| Upflow | 0″ | 0″ | 3″ | C | 0″ | 1″ |
| Horizontal | 6″ | 0″ | 3″ | C | 0″ | 6″ |
C = If placed on combustible floor, the floor MUST be wood ONLY.
CFM & Temperature Rise vs. External Static Pressure
External Static Pressure, (Inches water Column) | ||||||||||||||||
| model | THERmOSTAT CALL | TAP # | 0.1 | 0.2 | 0.3 | 0.4 | 0.5 | 0.6 | 0.7 | 0.8 | TEmP RANGE | |||||
| CFm | Rise | CFm | Rise | CFm | Rise | CFm | Rise | CFm | Rise | CFm | CFm | CFm | ||||
| F01^^ | 610 | 56 | 559 | N/A | 513 | N/A | 467 | N/A | 419 | N/A | 368 | 316 | 285 | |||
| *M9S92 0403A* | W/W1 | F02^ | 925 | 37 | 887 | 38 | 852 | 40 | 818 | 42 | 787 | 43 | 754 | 720 | 685 | 30-60 |
| F03 | 846 | 40 | 808 | 42 | 772 | 44 | 737 | 46 | 703 | 49 | 667 | 630 | 594 | |||
| F04 | 781 | 44 | 739 | 46 | 701 | 49 | 663 | 51 | 625 | 55 | 586 | 547 | 508 | |||
| *M9S92 0603B* | W/W1 | F01^^ | 723 | N/A | 663 | N/A | 604 | N/A | 539 | N/A | 476 | N/A | 404 | 347 | 291 | 35-65 |
| F02^ | 1052 | 49 | 1010 | 51 | 962 | 53 | 920 | 56 | 875 | 58 | 829 | 785 | 740 | |||
| F03 | 1125 | 45 | 1084 | 47 | 1042 | 49 | 1003 | 51 | 964 | 53 | 918 | 875 | 834 | |||
| F04 | 1206 | 42 | 1166 | 44 | 1129 | 45 | 1091 | 47 | 1054 | 48 | 1012 | 977 | 947 | |||
| *M9S92 0803B* | W/W1 | F01^^ | 718 | N/A | 662 | N/A | 611 | N/A | 551 | N/A | 486 | N/A | 419 | 358 | 300 | 35-65 |
| F02^ | 1373 | 50 | 1341 | 51 | 1307 | 52 | 1279 | 53 | 1253 | 54 | 1226 | 1197 | 1172 | |||
| F03 | 1309 | 52 | 1265 | 54 | 1232 | 55 | 1192 | 57 | 1162 | 59 | 1129 | 1093 | 1057 | |||
| F04 | 1233 | 55 | 1194 | 57 | 1165 | 59 | 1131 | 60 | 1097 | 62 | 1070 | 1039 | 1008 | |||
| *M9S92 0804C* | W/W1 | F01^^ | 804 | N/A | 740 | N/A | 670 | N/A | 586 | N/A | 501 | N/A | 407 | 347 | N/A | 35-65 |
| F02^ | 1422 | 48 | 1375 | 50 | 1332 | 51 | 1288 | 53 | 1245 | 55 | 1200 | 1154 | 1108 | |||
| F03 | 1502 | 45 | 1455 | 47 | 1410 | 48 | 1365 | 50 | 1322 | 52 | 1278 | 1237 | 1195 | |||
| F04 | 1567 | 44 | 1519 | 45 | 1476 | 46 | 1441 | 47 | 1402 | 49 | 1360 | 1319 | 1278 | |||
| *M9S92 0805C* | W/W1 | F01^^ | 869 | N/A | 782 | N/A | 684 | N/A | 575 | N/A | 482 | N/A | 395 | 331 | 122 | 25-55 |
| F02^ | 1823 | 37 | 1776 | 38 | 1720 | 40 | 1679 | 41 | 1642 | 41 | 1597 | 1553 | 1504 | |||
| F03 | 1778 | 38 | 1729 | 39 | 1690 | 40 | 1648 | 41 | 1605 | 42 | 1558 | 1497 | 1449 | |||
| F04 | 1722 | 40 | 1660 | 41 | 1609 | 42 | 1553 | 44 | 1507 | 45 | 1455 | 1402 | 1350 | |||
| *M9S92 1004C* | W/W1 | F01^^ | 809 | N/A | 740 | N/A | 669 | N/A | 603 | N/A | 536 | N/A | 449 | 377 | 319 | 35-65 |
| F02^ | 1754 | 49 | 1707 | 50 | 1673 | 51 | 1640 | 52 | 1604 | 53 | 1568 | 1538 | 1509 | |||
| F03 | 1648 | 52 | 1620 | 53 | 1586 | 54 | 1552 | 55 | 1515 | 56 | 1480 | 1449 | 1412 | |||
| F04 | 1558 | 55 | 1517 | 56 | 1479 | 58 | 1441 | 59 | 1403 | 61 | 1366 | 1330 | 1295 | |||
| *M9S92 1005C* | W/W1 | F01^^ | 906 | N/A | 813 | N/A | 717 | N/A | 613 | N/A | 519 | N/A | 439 | 368 | N/A | 35-65 |
| F02^ | 1871 | 46 | 1818 | 47 | 1769 | 48 | 1720 | 50 | 1667 | 51 | 1614 | 1565 | 1511 | |||
| F03 | 1831 | 47 | 1782 | 48 | 1729 | 49 | 1679 | 51 | 1624 | 52 | 1571 | 1520 | 1465 | |||
| F04^^ | 1653 | 52 | 1596 | 53 | 1538 | 55 | 1480 | 58 | 1422 | 60 | 1362 | 1306 | 1247 | |||
| *M9S92 1205D* | W/W1 | F01^^ | 1056 | N/A | 962 | N/A | 866 | N/A | 772 | N/A | 666 | N/A | 574 | 501 | 429 | 35-65 |
| F02^ | 2096 | 49 | 2050 | 50 | 2005 | 51 | 1948 | 52 | 1899 | 54 | 1848 | 1800 | 1755 | |||
| F03 | 2023 | 51 | 1973 | 52 | 1927 | 53 | 1877 | 54 | 1829 | 56 | 1781 | 1731 | 1680 | |||
| F04^^ | 1946 | 53 | 1900 | 54 | 1848 | 55 | 1795 | 57 | 1741 | 59 | 1689 | 1637 | 1584 | |||
Notes
- ^ DEFAULT SPEED
- ^^NOT RECOMMENDED FOR HEATING
Minimum Filter Sizes
| AM9S92 0403ANA | AM9S92 0603BNA | AM9S92 0803BNA | AM9S92 0804CNA | AM9S92 0805CNA | AM9S92 1004CNA | AM9S92 1005CNA | am9S92 1205DNA | |
| Filter Size (in²) (Qty) | (1) 16 x 25 (side) or (1) 14 x 25 (bottom) | (1) 16 x 25 (side or bottom) | (1) 20 x 25 (bottom) or (2) 16 x 25 (side) | (1) 16 x 25 (side or bottom) | (1) 20 x 25 (bottom) or (2) 16 x 25 (side) | |||
Note: Other size filters of equal or greater dimensions may be used. Filters may also be centrally located.
AM9S92 Circulation Airflow Data
CFM & Temperature Rise vs. External Static Pressure
| model | THERmOSTAT CALL | TAP # | External Static Pressure, (Inches water Column) | |||||||
| 0.1 | 0.2 | 0.3 | 0.4 | 0.5 | 0.6 | 0.7 | 0.8 | |||
| CFm | CFm | CFm | CFm | CFm | CFm | CFm | CFm | |||
| *M9S92 0403A* | G | F01 | 610 | 559 | 513 | 467 | 419 | 368 | 316 | 285 |
| F02 | 925 | 887 | 852 | 818 | 787 | 754 | 720 | 685 | ||
| F03 | 846 | 808 | 772 | 737 | 703 | 667 | 630 | 594 | ||
| F04 | 781 | 739 | 701 | 663 | 625 | 586 | 547 | 508 | ||
| F05 | 1038 | 1003 | 970 | 940 | 909 | 879 | 849 | 820 | ||
| F06 | 1106 | 1072 | 1041 | 1011 | 981 | 953 | 926 | 898 | ||
| F07 | 1215 | 1180 | 1151 | 1121 | 1095 | 1066 | 1043 | 1017 | ||
| F08 | 1238 | 1210 | 1180 | 1153 | 1126 | 1099 | 1073 | 1047 | ||
| F09 | 1319 | 1299 | 1273 | 1246 | 1220 | 1194 | 1169 | 1146 | ||
| *M9S92 0603B* | G | F01 | 723 | 663 | 604 | 539 | 476 | 404 | 347 | 291 |
| F02 | 1052 | 1010 | 962 | 920 | 875 | 829 | 785 | 740 | ||
| F03 | 1125 | 1084 | 1042 | 1003 | 964 | 918 | 875 | 834 | ||
| F04 | 1206 | 1166 | 1129 | 1091 | 1054 | 1012 | 977 | 947 | ||
| F05 | 901 | 854 | 809 | 758 | 703 | 653 | 604 | 552 | ||
| F06 | 948 | 900 | 855 | 810 | 762 | 708 | 662 | 608 | ||
| F07 | 1273 | 1237 | 1206 | 1169 | 1128 | 1094 | 1057 | 1020 | ||
| F08 | 1365 | 1321 | 1292 | 1251 | 1219 | 1184 | 1152 | 1120 | ||
| F09 | 1426 | 1387 | 1360 | 1326 | 1292 | 1257 | 1226 | 1193 | ||
| *M9S92 0803B* | G | F01 | 718 | 662 | 611 | 551 | 486 | 419 | 358 | 300 |
| F02 | 1373 | 1341 | 1307 | 1279 | 1253 | 1226 | 1197 | 1172 | ||
| F03 | 1309 | 1265 | 1232 | 1192 | 1162 | 1129 | 1093 | 1057 | ||
| F04 | 1233 | 1194 | 1165 | 1131 | 1097 | 1070 | 1039 | 1008 | ||
| F05 | 874 | 828 | 791 | 750 | 703 | 655 | 602 | 547 | ||
| F06 | 950 | 908 | 865 | 826 | 786 | 739 | 689 | 638 | ||
| F07 | 1097 | 1056 | 1019 | 988 | 952 | 921 | 880 | 842 | ||
| F08 | 1166 | 1127 | 1092 | 1060 | 1027 | 994 | 960 | 926 | ||
| F09 | 1407 | 1373 | 1338 | 1308 | 1282 | 1253 | 1229 | 1203 | ||
| *M9S92 0804C* | G | F01 | 804 | 740 | 670 | 586 | 501 | 407 | 347 | N/A |
| F02 | 1422 | 1375 | 1332 | 1288 | 1245 | 1200 | 1154 | 1108 | ||
| F03 | 1502 | 1455 | 1410 | 1365 | 1322 | 1278 | 1237 | 1195 | ||
| F04 | 1567 | 1519 | 1476 | 1441 | 1402 | 1360 | 1319 | 1278 | ||
| F05 | 1347 | 1299 | 1253 | 1205 | 1157 | 1111 | 1063 | 1013 | ||
| F06 | 1692 | 1648 | 1609 | 1567 | 1529 | 1490 | 1451 | 1413 | ||
| F07 | 1772 | 1728 | 1689 | 1652 | 1614 | 1574 | 1534 | 1498 | ||
| F08 | 1793 | 1753 | 1720 | 1679 | 1643 | 1604 | 1562 | 1524 | ||
| F09 | 1875 | 1833 | 1797 | 1759 | 1727 | 1686 | 1652 | 1616 | ||
¹ at 0.5” ESP
Notes:
- CFM in chart is without filter(s). Filters do not ship with this furnace, but must be provided by the installer. If the furnace requires two return filters, this chart assumes both filters are installed.
- All furnaces ship as high-speed cooling and medium-speed heating. Installer must adjust blower cooling and heating speed as needed.
CFM & Temperature Rise vs. External Static Pressure
| model | THERmOSTAT CALL | TAP # | External Static Pressure, (Inches water Column) | |||||||
| 0.1 | 0.2 | 0.3 | 0.4 | 0.5 | 0.6 | 0.7 | 0.8 | |||
| CFm | CFm | CFm | CFm | CFm | CFm | CFm | CFm | |||
| *M9S92 0805C* | G | F01 | 869 | 782 | 684 | 575 | 482 | 395 | 331 | 122 |
| F02 | 1823 | 1776 | 1720 | 1679 | 1642 | 1597 | 1553 | 1504 | ||
| F03 | 1778 | 1729 | 1690 | 1648 | 1605 | 1558 | 1497 | 1449 | ||
| F04 | 1722 | 1660 | 1609 | 1553 | 1507 | 1455 | 1402 | 1350 | ||
| F05 | 1498 | 1442 | 1388 | 1332 | 1278 | 1215 | 1154 | 1090 | ||
| F06 | 1634 | 1583 | 1536 | 1489 | 1440 | 1387 | 1330 | 1275 | ||
| F07 | 1925 | 1879 | 1836 | 1795 | 1752 | 1711 | 1664 | 1621 | ||
| F08 | 1993 | 1941 | 1899 | 1852 | 1813 | 1778 | 1741 | 1693 | ||
| F09 | 2216 | 2172 | 2131 | 2087 | 2046 | 2011 | 1973 | 1935 | ||
| *M9S92 1004C* | G | F01 | 809 | 740 | 669 | 603 | 536 | 449 | 377 | 319 |
| F02 | 1754 | 1707 | 1673 | 1640 | 1604 | 1568 | 1538 | 1509 | ||
| F03 | 1648 | 1620 | 1586 | 1552 | 1515 | 1480 | 1449 | 1412 | ||
| F04 | 1558 | 1517 | 1479 | 1441 | 1403 | 1366 | 1330 | 1295 | ||
| F05 | 1303 | 1255 | 1210 | 1167 | 1125 | 1081 | 1041 | 999 | ||
| F06 | 1406 | 1362 | 1321 | 1281 | 1240 | 1197 | 1157 | 1118 | ||
| F07 | 1445 | 1403 | 1363 | 1324 | 1287 | 1247 | 1208 | 1167 | ||
| F08 | 1778 | 1743 | 1700 | 1669 | 1634 | 1600 | 1568 | 1542 | ||
| F09 | 1824 | 1785 | 1747 | 1714 | 1680 | 1647 | 1617 | 1585 | ||
| *M9S92 1005C* | G | F01 | 906 | 813 | 717 | 613 | 519 | 439 | 368 | N/A |
| F02 | 1871 | 1818 | 1769 | 1720 | 1667 | 1614 | 1565 | 1511 | ||
| F03 | 1831 | 1782 | 1729 | 1679 | 1624 | 1571 | 1520 | 1465 | ||
| F04 | 1653 | 1596 | 1538 | 1480 | 1422 | 1362 | 1306 | 1247 | ||
| F05 | 1496 | 1437 | 1376 | 1315 | 1250 | 1189 | 1126 | 1056 | ||
| F06 | 1640 | 1587 | 1527 | 1471 | 1414 | 1357 | 1294 | 1235 | ||
| F07 | 1955 | 1937 | 1909 | 1860 | 1813 | 1765 | 1712 | 1662 | ||
| F08 | 2086 | 2039 | 1991 | 1944 | 1896 | 1855 | 1810 | 1763 | ||
| F09 | 2222 | 2178 | 2133 | 2088 | 2043 | 1998 | 1954 | 1910 | ||
| *M9S92 1205D* | G | F01 | 1056 | 962 | 866 | 772 | 666 | 574 | 501 | 429 |
| F02 | 2096 | 2050 | 2005 | 1948 | 1899 | 1848 | 1800 | 1755 | ||
| F03 | 2023 | 1973 | 1927 | 1877 | 1829 | 1781 | 1731 | 1680 | ||
| F04 | 1946 | 1900 | 1848 | 1795 | 1741 | 1689 | 1637 | 1584 | ||
| F05 | 1231 | 1151 | 1078 | 992 | 913 | 812 | 725 | 651 | ||
| F06 | 1503 | 1440 | 1382 | 1318 | 1251 | 1179 | 1108 | 1039 | ||
| F07 | 1704 | 1646 | 1586 | 1532 | 1473 | 1412 | 1346 | 1284 | ||
| F08 | 1831 | 1775 | 1720 | 1668 | 1610 | 1560 | 1511 | 1457 | ||
| F09 | 2222 | 2173 | 2125 | 2078 | 2029 | 1980 | 1933 | 1884 | ||
¹ at 0.5” ESP
Notes:
- CFM in chart is without filter(s). Filters do not ship with this furnace, but must be provided by the installer. If the furnace requires two return filters, this chart assumes both filters are installed.
- All furnaces ship as high-speed cooling and medium-speed heating. Installer must adjust blower cooling and heating speed as needed.
AM9S92 High Stage Cooling Airflow Data
CFM & Temperature Rise vs. External Static Pressure
| model | THERmOSTAT CALL | TAP # | External Static Pressure, (Inches water Column) | |||||||
| 0.1 | 0.2 | 0.3 | 0.4 | 0.5 | 0.6 | 0.7 | 0.8 | |||
| CFm | CFm | CFm | CFm | CFm | CFm | CFm | CFm | |||
| *M9S92 0403A* | Y2 | F01 | 610 | 559 | 513 | 467 | 419 | 368 | 316 | 285 |
| F02 | 925 | 887 | 852 | 818 | 787 | 754 | 720 | 685 | ||
| F03 | 846 | 808 | 772 | 737 | 703 | 667 | 630 | 594 | ||
| F04 | 781 | 739 | 701 | 663 | 625 | 586 | 547 | 508 | ||
| F05^ | 1038 | 1003 | 970 | 940 | 909 | 879 | 849 | 820 | ||
| F06 | 1106 | 1072 | 1041 | 1011 | 981 | 953 | 926 | 898 | ||
| F07 | 1215 | 1180 | 1151 | 1121 | 1095 | 1066 | 1043 | 1017 | ||
| F08 | 1238 | 1210 | 1180 | 1153 | 1126 | 1099 | 1073 | 1047 | ||
| F09 | 1319 | 1299 | 1273 | 1246 | 1220 | 1194 | 1169 | 1146 | ||
| *M9S92 0603B* | Y2 | F01 | 723 | 663 | 604 | 539 | 476 | 404 | 347 | 291 |
| F02 | 1052 | 1010 | 962 | 920 | 875 | 829 | 785 | 740 | ||
| F03 | 1125 | 1084 | 1042 | 1003 | 964 | 918 | 875 | 834 | ||
| F04 | 1206 | 1166 | 1129 | 1091 | 1054 | 1012 | 977 | 947 | ||
| F05^ | 901 | 854 | 809 | 758 | 703 | 653 | 604 | 552 | ||
| F06 | 948 | 900 | 855 | 810 | 762 | 708 | 662 | 608 | ||
| F07 | 1273 | 1237 | 1206 | 1169 | 1128 | 1094 | 1057 | 1020 | ||
| F08 | 1365 | 1321 | 1292 | 1251 | 1219 | 1184 | 1152 | 1120 | ||
| F09 | 1426 | 1387 | 1360 | 1326 | 1292 | 1257 | 1226 | 1193 | ||
| *M9S92 0803B* | Y2 | F01 | 718 | 662 | 611 | 551 | 486 | 419 | 358 | 300 |
| F02 | 1373 | 1341 | 1307 | 1279 | 1253 | 1226 | 1197 | 1172 | ||
| F03 | 1309 | 1265 | 1232 | 1192 | 1162 | 1129 | 1093 | 1057 | ||
| F04 | 1233 | 1194 | 1165 | 1131 | 1097 | 1070 | 1039 | 1008 | ||
| F05^ | 874 | 828 | 791 | 750 | 703 | 655 | 602 | 547 | ||
| F06 | 950 | 908 | 865 | 826 | 786 | 739 | 689 | 638 | ||
| F07 | 1097 | 1056 | 1019 | 988 | 952 | 921 | 880 | 842 | ||
| F08 | 1166 | 1127 | 1092 | 1060 | 1027 | 994 | 960 | 926 | ||
| F09 | 1407 | 1373 | 1338 | 1308 | 1282 | 1253 | 1229 | 1203 | ||
| *M9S92 0804C* | Y2 | F01 | 804 | 740 | 670 | 586 | 501 | 407 | 347 | N/A |
| F02 | 1422 | 1375 | 1332 | 1288 | 1245 | 1200 | 1154 | 1108 | ||
| F03 | 1502 | 1455 | 1410 | 1365 | 1322 | 1278 | 1237 | 1195 | ||
| F04 | 1567 | 1519 | 1476 | 1441 | 1402 | 1360 | 1319 | 1278 | ||
| F05^ | 1347 | 1299 | 1253 | 1205 | 1157 | 1111 | 1063 | 1013 | ||
| F06 | 1692 | 1648 | 1609 | 1567 | 1529 | 1490 | 1451 | 1413 | ||
| F07 | 1772 | 1728 | 1689 | 1652 | 1614 | 1574 | 1534 | 1498 | ||
| F08 | 1793 | 1753 | 1720 | 1679 | 1643 | 1604 | 1562 | 1524 | ||
| F09 | 1875 | 1833 | 1797 | 1759 | 1727 | 1686 | 1652 | 1616 | ||
CFM & Temperature Rise vs. External Static Pressure
| model | THERmOSTAT CALL | TAP # | External Static Pressure, (Inches water Column) | |||||||
| 0.1 | 0.2 | 0.3 | 0.4 | 0.5 | 0.6 | 0.7 | 0.8 | |||
| CFm | CFm | CFm | CFm | CFm | CFm | CFm | CFm | |||
| *M9S92 0805C* | Y2 | F01 | 869 | 782 | 684 | 575 | 482 | 395 | 331 | 122 |
| F02 | 1823 | 1776 | 1720 | 1679 | 1642 | 1597 | 1553 | 1504 | ||
| F03 | 1778 | 1729 | 1690 | 1648 | 1605 | 1558 | 1497 | 1449 | ||
| F04 | 1722 | 1660 | 1609 | 1553 | 1507 | 1455 | 1402 | 1350 | ||
| F05^ | 1498 | 1442 | 1388 | 1332 | 1278 | 1215 | 1154 | 1090 | ||
| F06 | 1634 | 1583 | 1536 | 1489 | 1440 | 1387 | 1330 | 1275 | ||
| F07 | 1925 | 1879 | 1836 | 1795 | 1752 | 1711 | 1664 | 1621 | ||
| F08 | 1993 | 1941 | 1899 | 1852 | 1813 | 1778 | 1741 | 1693 | ||
| F09 | 2216 | 2172 | 2131 | 2087 | 2046 | 2011 | 1973 | 1935 | ||
| *M9S92 1004C* | Y2 | F01 | 809 | 740 | 669 | 603 | 536 | 449 | 377 | 319 |
| F02 | 1754 | 1707 | 1673 | 1640 | 1604 | 1568 | 1538 | 1509 | ||
| F03 | 1648 | 1620 | 1586 | 1552 | 1515 | 1480 | 1449 | 1412 | ||
| F04 | 1558 | 1517 | 1479 | 1441 | 1403 | 1366 | 1330 | 1295 | ||
| F05^ | 1303 | 1255 | 1210 | 1167 | 1125 | 1081 | 1041 | 999 | ||
| F06 | 1406 | 1362 | 1321 | 1281 | 1240 | 1197 | 1157 | 1118 | ||
| F07 | 1445 | 1403 | 1363 | 1324 | 1287 | 1247 | 1208 | 1167 | ||
| F08 | 1778 | 1743 | 1700 | 1669 | 1634 | 1600 | 1568 | 1542 | ||
| F09 | 1824 | 1785 | 1747 | 1714 | 1680 | 1647 | 1617 | 1585 | ||
| *M9S92 1005C* | Y2 | F01 | 906 | 813 | 717 | 613 | 519 | 439 | 368 | N/A |
| F02 | 1871 | 1818 | 1769 | 1720 | 1667 | 1614 | 1565 | 1511 | ||
| F03 | 1831 | 1782 | 1729 | 1679 | 1624 | 1571 | 1520 | 1465 | ||
| F04 | 1653 | 1596 | 1538 | 1480 | 1422 | 1362 | 1306 | 1247 | ||
| F05^ | 1496 | 1437 | 1376 | 1315 | 1250 | 1189 | 1126 | 1056 | ||
| F06 | 1640 | 1587 | 1527 | 1471 | 1414 | 1357 | 1294 | 1235 | ||
| F07 | 1955 | 1937 | 1909 | 1860 | 1813 | 1765 | 1712 | 1662 | ||
| F08 | 2086 | 2039 | 1991 | 1944 | 1896 | 1855 | 1810 | 1763 | ||
| F09 | 2222 | 2178 | 2133 | 2088 | 2043 | 1998 | 1954 | 1910 | ||
| *M9S92 1205D* | Y2 | F01 | 1056 | 962 | 866 | 772 | 666 | 574 | 501 | 429 |
| F02 | 2096 | 2050 | 2005 | 1948 | 1899 | 1848 | 1800 | 1755 | ||
| F03 | 2023 | 1973 | 1927 | 1877 | 1829 | 1781 | 1731 | 1680 | ||
| F04 | 1946 | 1900 | 1848 | 1795 | 1741 | 1689 | 1637 | 1584 | ||
| F05^ | 1231 | 1151 | 1078 | 992 | 913 | 812 | 725 | 651 | ||
| F06 | 1503 | 1440 | 1382 | 1318 | 1251 | 1179 | 1108 | 1039 | ||
| F07 | 1704 | 1646 | 1586 | 1532 | 1473 | 1412 | 1346 | 1284 | ||
| F08 | 1831 | 1775 | 1720 | 1668 | 1610 | 1560 | 1511 | 1457 | ||
| F09 | 2222 | 2173 | 2125 | 2078 | 2029 | 1980 | 1933 | 1884 | ||
AM9S92 Low Stage Cooling Airflow Data
CFM & Temperature Rise vs. External Static Pressure
| model | THERmOSTAT CALL | TAP # | External Static Pressure, (Inches water Column) | |||||||
| 0.1 | 0.2 | 0.3 | 0.4 | 0.5 | 0.6 | 0.7 | 0.8 | |||
| CFm | CFm | CFm | CFm | CFm | CFm | CFm | CFm | |||
| *M9S92 0403A* | Y/Y1 | F01 | 610 | 559 | 513 | 467 | 419 | 368 | 316 | 285 |
| F02 | 925 | 887 | 852 | 818 | 787 | 754 | 720 | 685 | ||
| F03 | 846 | 808 | 772 | 737 | 703 | 667 | 630 | 594 | ||
| F04^ | 781 | 739 | 701 | 663 | 625 | 586 | 547 | 508 | ||
| F05 | 1038 | 1003 | 970 | 940 | 909 | 879 | 849 | 820 | ||
| F06 | 1106 | 1072 | 1041 | 1011 | 981 | 953 | 926 | 898 | ||
| F07 | 1215 | 1180 | 1151 | 1121 | 1095 | 1066 | 1043 | 1017 | ||
| F08 | 1238 | 1210 | 1180 | 1153 | 1126 | 1099 | 1073 | 1047 | ||
| F09 | 1319 | 1299 | 1273 | 1246 | 1220 | 1194 | 1169 | 1146 | ||
| *M9S92 0603B* | Y/Y1 | F01 | 723 | 663 | 604 | 539 | 476 | 404 | 347 | 291 |
| F02 | 1052 | 1010 | 962 | 920 | 875 | 829 | 785 | 740 | ||
| F03 | 1125 | 1084 | 1042 | 1003 | 964 | 918 | 875 | 834 | ||
| F04^ | 1206 | 1166 | 1129 | 1091 | 1054 | 1012 | 977 | 947 | ||
| F05 | 901 | 854 | 809 | 758 | 703 | 653 | 604 | 552 | ||
| F06 | 948 | 900 | 855 | 810 | 762 | 708 | 662 | 608 | ||
| F07 | 1273 | 1237 | 1206 | 1169 | 1128 | 1094 | 1057 | 1020 | ||
| F08 | 1365 | 1321 | 1292 | 1251 | 1219 | 1184 | 1152 | 1120 | ||
| F09 | 1426 | 1387 | 1360 | 1326 | 1292 | 1257 | 1226 | 1193 | ||
| *M9S92 0803B* | Y/Y1 | F01 | 718 | 662 | 611 | 551 | 486 | 419 | 358 | 300 |
| F02 | 1373 | 1341 | 1307 | 1279 | 1253 | 1226 | 1197 | 1172 | ||
| F03 | 1309 | 1265 | 1232 | 1192 | 1162 | 1129 | 1093 | 1057 | ||
| F04^ | 1233 | 1194 | 1165 | 1131 | 1097 | 1070 | 1039 | 1008 | ||
| F05 | 874 | 828 | 791 | 750 | 703 | 655 | 602 | 547 | ||
| F06 | 950 | 908 | 865 | 826 | 786 | 739 | 689 | 638 | ||
| F07 | 1097 | 1056 | 1019 | 988 | 952 | 921 | 880 | 842 | ||
| F08 | 1166 | 1127 | 1092 | 1060 | 1027 | 994 | 960 | 926 | ||
| F09 | 1407 | 1373 | 1338 | 1308 | 1282 | 1253 | 1229 | 1203 | ||
| *M9S92 0804C* | Y/Y1 | F01 | 804 | 740 | 670 | 586 | 501 | 407 | 347 | N/A |
| F02 | 1422 | 1375 | 1332 | 1288 | 1245 | 1200 | 1154 | 1108 | ||
| F03 | 1502 | 1455 | 1410 | 1365 | 1322 | 1278 | 1237 | 1195 | ||
| F04^ | 1567 | 1519 | 1476 | 1441 | 1402 | 1360 | 1319 | 1278 | ||
| F05 | 1347 | 1299 | 1253 | 1205 | 1157 | 1111 | 1063 | 1013 | ||
| F06 | 1692 | 1648 | 1609 | 1567 | 1529 | 1490 | 1451 | 1413 | ||
| F07 | 1772 | 1728 | 1689 | 1652 | 1614 | 1574 | 1534 | 1498 | ||
| F08 | 1793 | 1753 | 1720 | 1679 | 1643 | 1604 | 1562 | 1524 | ||
| F09 | 1875 | 1833 | 1797 | 1759 | 1727 | 1686 | 1652 | 1616 | ||
CFm & Temperature Rise vs. External Static Pressure
| model | THERmOSTAT CALL | TAP # | External Static Pressure, (Inches water Column) | |||||||
| 0.1 | 0.2 | 0.3 | 0.4 | 0.5 | 0.6 | 0.7 | 0.8 | |||
| CFm | CFm | CFm | CFm | CFm | CFm | CFm | CFm | |||
| *M9S92 0805C* | Y/Y1 | F01 | 869 | 782 | 684 | 575 | 482 | 395 | 331 | 122 |
| F02 | 1823 | 1776 | 1720 | 1679 | 1642 | 1597 | 1553 | 1504 | ||
| F03 | 1778 | 1729 | 1690 | 1648 | 1605 | 1558 | 1497 | 1449 | ||
| F04^ | 1722 | 1660 | 1609 | 1553 | 1507 | 1455 | 1402 | 1350 | ||
| F05 | 1498 | 1442 | 1388 | 1332 | 1278 | 1215 | 1154 | 1090 | ||
| F06 | 1634 | 1583 | 1536 | 1489 | 1440 | 1387 | 1330 | 1275 | ||
| F07 | 1925 | 1879 | 1836 | 1795 | 1752 | 1711 | 1664 | 1621 | ||
| F08 | 1993 | 1941 | 1899 | 1852 | 1813 | 1778 | 1741 | 1693 | ||
| F09 | 2216 | 2172 | 2131 | 2087 | 2046 | 2011 | 1973 | 1935 | ||
| *M9S92 1004C* | Y/Y1 | F01 | 809 | 740 | 669 | 603 | 536 | 449 | 377 | 319 |
| F02 | 1754 | 1707 | 1673 | 1640 | 1604 | 1568 | 1538 | 1509 | ||
| F03 | 1648 | 1620 | 1586 | 1552 | 1515 | 1480 | 1449 | 1412 | ||
| F04^ | 1558 | 1517 | 1479 | 1441 | 1403 | 1366 | 1330 | 1295 | ||
| F05 | 1303 | 1255 | 1210 | 1167 | 1125 | 1081 | 1041 | 999 | ||
| F06 | 1406 | 1362 | 1321 | 1281 | 1240 | 1197 | 1157 | 1118 | ||
| F07 | 1445 | 1403 | 1363 | 1324 | 1287 | 1247 | 1208 | 1167 | ||
| F08 | 1778 | 1743 | 1700 | 1669 | 1634 | 1600 | 1568 | 1542 | ||
| F09 | 1824 | 1785 | 1747 | 1714 | 1680 | 1647 | 1617 | 1585 | ||
| *M9S92 1005C* | Y/Y1 | F01 | 906 | 813 | 717 | 613 | 519 | 439 | 368 | N/A |
| F02 | 1871 | 1818 | 1769 | 1720 | 1667 | 1614 | 1565 | 1511 | ||
| F03 | 1831 | 1782 | 1729 | 1679 | 1624 | 1571 | 1520 | 1465 | ||
| F04^ | 1653 | 1596 | 1538 | 1480 | 1422 | 1362 | 1306 | 1247 | ||
| F05 | 1496 | 1437 | 1376 | 1315 | 1250 | 1189 | 1126 | 1056 | ||
| F06 | 1640 | 1587 | 1527 | 1471 | 1414 | 1357 | 1294 | 1235 | ||
| F07 | 1955 | 1937 | 1909 | 1860 | 1813 | 1765 | 1712 | 1662 | ||
| F08 | 2086 | 2039 | 1991 | 1944 | 1896 | 1855 | 1810 | 1763 | ||
| F09 | 2222 | 2178 | 2133 | 2088 | 2043 | 1998 | 1954 | 1910 | ||
| *M9S92 1205D* | Y/Y1 | F01 | 1056 | 962 | 866 | 772 | 666 | 574 | 501 | 429 |
| F02 | 2096 | 2050 | 2005 | 1948 | 1899 | 1848 | 1800 | 1755 | ||
| F03 | 2023 | 1973 | 1927 | 1877 | 1829 | 1781 | 1731 | 1680 | ||
| F04^ | 1946 | 1900 | 1848 | 1795 | 1741 | 1689 | 1637 | 1584 | ||
| F05 | 1231 | 1151 | 1078 | 992 | 913 | 812 | 725 | 651 | ||
| F06 | 1503 | 1440 | 1382 | 1318 | 1251 | 1179 | 1108 | 1039 | ||
| F07 | 1704 | 1646 | 1586 | 1532 | 1473 | 1412 | 1346 | 1284 | ||
| F08 | 1831 | 1775 | 1720 | 1668 | 1610 | 1560 | 1511 | 1457 | ||
| F09 | 2222 | 2173 | 2125 | 2078 | 2029 | 1980 | 1933 | 1884 | ||


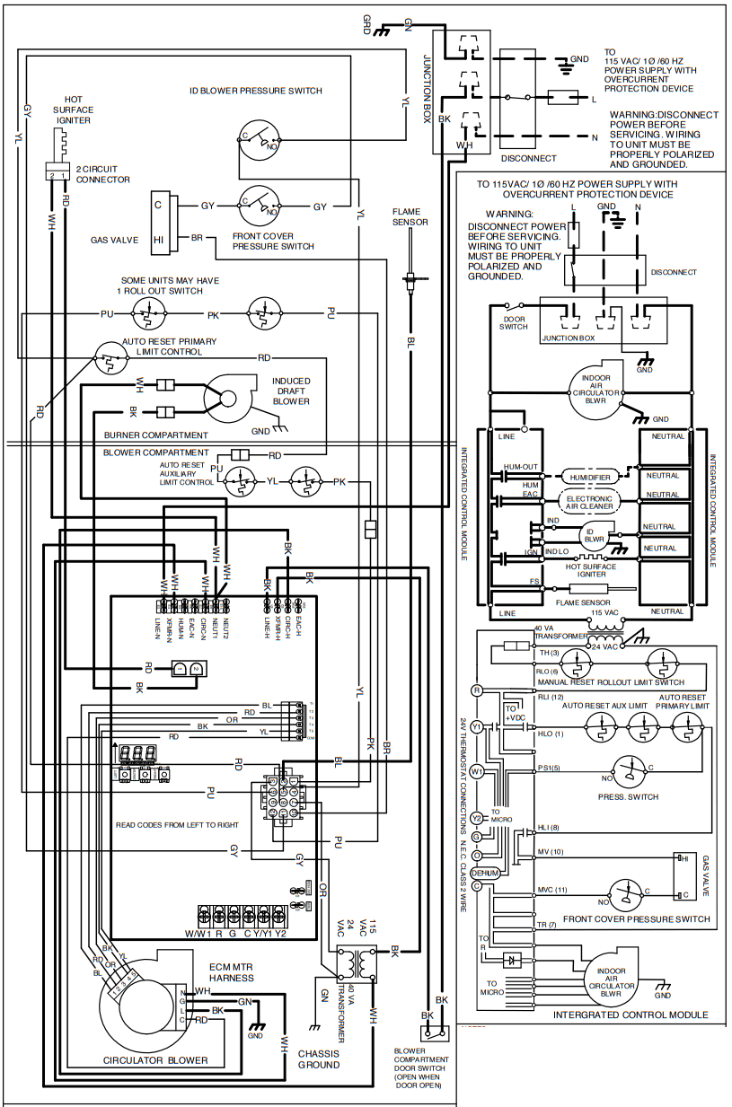
| Error Code Status | Seven Segment Display | ||
| Seg#3 | Seg#2 | Seg#1 | |
| Internal Faults or IRQ Loss | E | E | E |
| Lockout Due to Excessive Retries or Recycles | E | E | 0 |
| Pressure Switch Stuck Closed | E | E | 1 |
| Pressure Switch Open | E | E | 2 |
| Open High Limit Switch | E | E | 3 |
| Flame Detected When no Flame Should be Present | E | E | 4 |
| Open Fuse | E | E | 5 |
| Low Flame Signal | E | E | 6 |
| Ignitor Relay Fault | E | E | L |
| Reversed Line Polarity or Grounding Error | E | E | A |
| Internal Gas Valve Error | E | E | b |
| External Gas Valve Error | E | E | C |
| Open Rollout Switch | E | 1 | 1 |
| Ignitor Open | E | E | n |
| Inducer Relay Error | E | E | j |
| TWIN Error | E | E | H |
| Grounding Error | E | 1 | 0 |
NOTES:
- SET HEAT ANTICIPATOR ON ROOM THERMOSTAT AT 0.7 AMPS.
- MANUFACTURER’S SPECIFIED REPLACEMENT PARTS MUST BE USED WHEN SERVICING.
- IF ANY OF THE ORIGINAL WIRE AS SUPPLIED WITH THE FURNACE MUST BE REPLACED IT MUST BE REPLACED WITH WIRING MATERIAL HAVING A TEMPERATURE RATING OF AT LEAST 105v C. USE COPPER CONDUCTORS ONLY.
- UNIT MUST BE PERMANENTLY GROUNDED AND CONFORM TO N.E.C. AND LOCAL CODES.
- TO RECALL THE LAST 6 FAULTS, MOST RECENT TO LEAST RECENT, DEPRESS SWITCH FOR MORE THAN 2 SECONDS WHILE IN STANDBY (NO THERMOSTAT INPUTS)
COLOR CODES:
PK PINK
BR BROWN
WH WHITE
BL BLUE
GY GRAY
RD RED
YL YELLOW
OR ORANGE
PU PURPLE
GN GREEN
BK BLACK
0140F02635~0140F02635~062021~0
| EQUIPMENT GND | |
| FIELD GND | |
| FIELD SPLICE | |
| SWITCH (TEMP.) | |
| IGNITER | |
| SWITCH (PRESS.) | |
| OVERCURRENT | |
| PROT. DEVICE | |
| JUNCTION | |
| TERMINAL | |
| INTERNAL TO | |
| INTEGRATED CONTROL | |
| PLUG CONNECTION | |
| LOW VOLTAGE (24V) | |
| LOW VOLTAGE FIELD | |
| HI VOLTAGE (115V) | |
| HI VOLTAGE FIELD |
Warning
⚡ High Voltage: Disconnect all power before servicing or installing this unit. Multiple power sources may be present. Failure to do so may cause property damage, personal injury, or death.
Wiring is subject to change. Always refer to the wiring diagram on the unit for the most up-to-date wiring.
Accessories
| model | Description | AM9S92 0403ANA | AM9S92 0603BNA | AM9S92 0803BNA | AM9S92 0804CNA | AM9S92 0805CNA | AM9S92 1004CNA | AM9S92 1005CNA | AM9S92 1205DNA |
| 72950 | Concentric Vent Kit (2″) | √ | √ | √ | √ | √ | √ | √ | ― |
| 72951 | Concentric Vent Kit (3″) | √ | √ | √ | √ | √ | √ | √ | √ |
| RF000142 | Drain Kit Horizontal Left Vertical Flue | √ | √ | √ | √ | √ | √ | √ | √ |
| EFR02 | External Filter Rack with 16″x25″ Per- manent Filter | √ | √ | √ | √ | ― | √ | ― | ― |
| 0170K00000S | Flush Mount Vent Kit- 3″ or 2″ | √ | √ | √ | √ | √ | √ | √ | √ |
| 0170K00001S | Flush Mount Vent Kit- 2″ | √ | √ | √ | √ | √ | √ | √ | ― |
| AFE18-60A | Fossil Fuel (Dual Fuel) Kit | √ | √ | √ | √ | √ | √ | √ | √ |
| HASFK | High-Altitude Natural Gas Kit | TBD | HASFK-4 | HASFK-4 | HASFK-4 | HASFK-4 | HASFK-4 | HASFK-4 | HASFK-4 |
| HASFK | High-Altitude LP Gas Kit | TBD | HASFK-4 | HASFK-5 | HASFK-4 | HASFK-4 | HASFK-4 | HASFK-5 | HASFK-4 |
| 0270F05404 | Horizontal Drain Tubing Kit | √ | √ | √ | √ | √ | √ | √ | √ |
| LPLP03 | Low LP Gas Pressure Switch | √ | √ | √ | √ | √ | √ | √ | √ |
| LPM-07 | LP Conversion Kits | ― | √ | √ | √ | √ | √ | √ | √ |
Amana® is a registered trademark of Maytag Corporation or its related companies and used under license to Goodman Company, L.P. All rights reserved.
Our continuing commitment to quality products may mean a change in specifications without notice. © 2022 Goodman Company, L.P. • Houston, Texas
www.amana-hac.com
SS-AM9S92















