R962V Endeavor Line Classic Plus Series Gas Furnaces
User Manual
![]()
![]()
A.F.U.E. (Annual Fuel Utilization Efficiency) calculated in accordance with Department of Energy test procedures.
Features and Benefits
- PlusOne® Energy Efficiency: ENERGY STAR® certified, featuring 96% AFUE across all model sizes
- PlusOne® Diagnostics: With the Rheum Contractor & EcoNet® Apps, built-in EcoNet® & Bluetooth technology makes monitoring, troubleshooting and repairing the product easier than ever before
- Dip Switch Free Installation Commissioning via Bluetooth Technology: Seamless final install step without DIP switch configuration using the Rheum Contractor App
- PlusOne® Ignition System: Proven Direct Spark Ignition (DSI) for reliability and longevity
- PlusOne® Water Management System: Exclusive patented block drain sensor that automatically shuts off the furnace when the drain is blocked and alerts the contractor via diagnostic code.
- Two-Stage Heating: Furnace operation mainly stays at low capacity around 60-65%, but will switch to high capacity to deliver stable heat distribution
- Constant CFM Motor: Truly variable speed technology allows for ultimate humidity control, quieter sound levels and year-round energy savings
- Quieter Operation1 : A fully insulated blower cabinet, solid bottom and truly variable speed airflow technology makes this furnace one of the quieter options available
- EcoNet® Enabled Furnace: The latest in sensor technology and the EcoNet® monitoring system provides a new level of protection, control and energy savings
- Allows on-the-go control and receipt of system alerts by the homeowner via the EcoNet® Smart Thermostat and Econet® App2
- Based on manufacturer’s furnace offering, and the product’s heating stages, motor type and cabinet insulation. Sound levels are also dependent on furnace location and installation.
- WIFI broadband internet connection required. Download the EcoNet® App from the App Store® or Google Play® to set up your EcoNet® Smart Thermostat. Receipt of notifications depend on home WIFI set up. Amazon, Alex and all related logos are trademarks of Amazon.com, Inc. or its affiliates.
Gas Furnaces
| R | Brand | R – Rheum |
| 96 | Furnace Efficiency | 96 – 96% AFU |
| 2 | Stages of Heating | 2 – Two-Stage |
| V | Motor Type | V – ECM Variable Speed |
| 40 | Heating Input | 040 – 40,000 [11.7 kW] 060 – 60,000 [17.6 kW] 070 – 70,000 [20.5 kW] 075 – 75,000 [22.0 kW] 085 – 85,000 [24.9 kW] 100 – 100,000 [29.3 kW] 115 – 115,000 [33.7 kW] |
| 3 | AC Max. Capacity | 3 – 3 ton drive 5 – 5 ton drive |
| A | Major Series | A – 1st Design Series |
| 17 | Width | 17 – 17.5″ Width 21 – 21″ Width 24 – 24.5″ Width |
| M4 | Position | M4 – Multi- 4 Way |
| S | NOx | S – Standard |
| C | Controls | C – Communicating, EcoNet® , Bluetooth |
| A | Minor Series | A – 1st Series |
| P | Option Code | P – Premium Grade |
[ ] Designates Metric Conversions
| AVAILABLE MODELS |
| R962V0403A17M4SCAP |
| R962V0603A17M4SCAP |
| R962V0703A17M4SCAP |
| R962V0705A21M4SCAP |
| R962V0855A21M4SCAP |
| R962V1005A21M4SCAP |
| R962V1155A24M4SCAP |
| STANDARD EQUIPMENT |
| Pressure switches |
| Redundant 2 stage main gas control |
| Blower compartment door safety switch |
| Solid state time on/off blower control |
| Limit controls |
| Manual shut-off valve |
| 100% safety lock out |
| Adjustable cool fan off delay |
| One hour automatic retry |
| Power and self test diagnostics |
| Flame sense current diagnostics |
| Electronic air cleaner connections |
| Twinning (built-in) features |
| Humidifier connections |
| Adjustable humidifier on/off delay |
| Low speed continuous fan option |
| Two speed heating |
| Two speed cooling |
| Direct drive motor |
| PWM controlled constant CFM electrically commutated blower motor |
| Multi-speed constant CFM electrically commutated blower motor |
| Solid bottom |
WARNING
THIS FURNACE IS NOT APPROVED OR RECOMMENDED FOR USE IN MOBILE HOMES
Physical Data and Specifications
U.S. and Canadian Models
| MODEL NUMBERS | R962V0403 A17M4CAP | R962V0603 A17M4SCAP | R962V0703 A17M4SCAP | R962V0705 A21M4SCAP | R962V0855 A21M4SCAP | R962V1005 A21M4SCAP | R962V1155A 24M4SCAP |
| HIGH FIRE INPUT BTU/HR [kW] ➀ | 42,000 [12.31] | 56,000 [16.41] | 70,000 [20.50] | 70,000 [20.50] | 84,000 [24.61] | 98,000 [28.72] | 112,000 [32.82] |
| LOW FIRE INPUT | 29,400 [8.61] | 39,200 [11.49] | 49,000 [14.36] | 49,000 [14.36] | 58,800 [17.23] | 68,600 [20.11] | 78,400 [23.00] |
| HEATING CAPACITY BTU/HR [kW] | 41,000 [12.02] | 55,000 [16.12] | 68,000 [19.93] | 68,000 [19.93] | 82,000 [24.03] | 95,000 [27.84] | 109,000 [31.94] |
| HIGH ALTITUDE OUTPUT 10% DERATE [kW] ➁ | 36,288 [10.64] | 48,384 [14.18] | 60,480 [17.72] | 60,480 [17.72] | 72,756 [21.27] | 84,672 [24.81] | 96,768 [28.36] |
| BLOWER (D x W) [mm] | 11 x 7 [279 x 178] | 11 x 8 [279 x 203] | 11 x 8 [279 x 203] | 11 x 10 [279 x 254] | 11 x 10 [279 x 254] | 11 x 10 [279 x 254] | 11 x 11 [279 x 279] |
| MOTOR H.P. [W]–TYPE | 1/2 [373] VS-CT(ECM) | 1/2 [373] VS-CT(ECM) | 1/2 [373] VS-CT(ECM) | 1 [746] VS-CT(ECM) | 1 [746] VS-CT(ECM) | 1 [746] VS-CT(ECM) | 1 [746] VS-CT(ECM) |
| MIN. CIRCUIT AMPACITY | 8 | 8 | 8 | 12 | 12 | 12 | 12 |
| MIN. OVERLOAD PROTECTION DEVICE | 15 | 15 | 15 | 20 | 20 | 15 | 15 |
| MAX. OVERLOAD PROTECTION DEVICE | 15 | 15 | 15 | 20 | 20 | 15 | 15 |
| MINIMUM EXT. STATIC PRESSURE (IN. W.C.) [kPa] | .18 [.045] | .20 [.050] | .23 [.057] | .23 [.057] | .28 [.070] | .28 [.070] | .28 [.070] |
| MAXIMUM EXT. STATIC PRESSURE (IN. W.C.) [kPa] | 0.9 [0.22] | 0.9 [0.22] | 0.9 [0.22] | 0.9 [0.22] | 0.9 [0.22] | 0.9 [0.22] | 0.9 [0.22] |
| HEATING HI CFM [L/s] | 1150 [543] | 1250 [590] | 1000 [472] | 1332 [629l] | 1850 [873] | 1965 [927] | 1700 [802] |
| HEATING LO CFM [L/s] | 870 [411] | 1025 [484] | 875 [413] | 1121 [529] | 1470 [694] | 1710 [807] | 1450 [684l] |
| COOLING HI CFM [L/s] | 1125 [531] | 1125 [531] | 1125 [531] | 1800 [850] | 1800 [850] | 1800 [850] | 1800 [850] |
| COOLING LOCFM [L/s] | 731 [345] | 731 [345] | 731 [345] | 1170 [552] | 1170 [552] | 1170 [552] | 1170 [552] |
| TEMPERATURE RISE-HIGH FIRE RANGE IN DEGREES °F [°C] | 20 – 50 [11 – 28] | 30 – 60 [17 – 33] | 40 – 70 [22 – 39] | 30 – 60 [17 – 33] | 30 – 60 [17 – 33] | 40 – 70 [22 – 39] | 45 – 75 [25 – 42] |
| TEMPERATURE RISE-LOW FIRE RANGE IN DEGREES °F [°C] | 15 – 45 [8 – 25] | 20 – 50 [11 – 28] | 30 – 60 [17 – 33] | 20 – 50 [11 – 28] | 20 – 50 [11 – 28] | 30 – 60 [17 – 33] | 35 – 63 [19 – 36] |
| APPROX. SHIPPING WEIGHT | 128 [58] | 128 [58] | 132 [60] | 139 [63] | 147.5 [67] | 152 [69] | 165 [75] |
| AFUE ➂ | 96.00% | 96.00% | 96.00% | 96.00% | 96.00% | 96.00% | 96.00% |
NOTES: All models are 115V, 60HZ, 1 phase. Gas connection size for all models is 1 /2″ [13 mm] N.P.T.
- Installation instructions for high altitude derate.
- Canadian installations only.
- In accordance with D.O.E. test procedures.
NOTE: Standard model complies with California low NOx requirements up to 40ng/J.
This furnace does not meet air district requirements of 14 ng/J NOx emissions limit, and thus is subject to a mitigation fee of up to $450. This furnace is not eligible for the
Clean Air Furnace Rebate Program: www.CleanAirFurnaceRebate.com.
This furnace is to be installed for propane firing only in air districts requiring 14 ng/J NOx emission limits. Operating in natural gas mode is in violation of these Rules.
[ ] Designates Metric Conversions
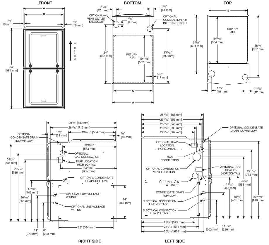
Multi-Position Application

Unit Dimensions (Clearance to Combustibles)
| MODEL R962V | LEFT SIDE | MINIMUM CLEARANCE (IN.) [mm] | SHIP WGTS. | FLANGE DIMENSIONS | ||||||
| RIGHT SIDE | BACK | TOP | FRONT | VENT | A | B | C | |||
| 040 | 0 | 0 | 0 | 1 [25] | 2 [51] | 0 | 123.5 [56] | 171/2 [445] | 1617/64 [413] | 1613/64 [412] |
| 060 | 0 | 0 | 0 | 1 [25] | 2 [51] | 0 | 128.0 [58] | 171/2 [445] | 1617/64 [413] | 1613/64 [412] |
| 070 | 0 | 0 | 0 | 1 [25] | 2 [51] | 0 | 132.0 [60] | 171/2 [445] | 1617/64 [413] | 1613/64 [412] |
| 070 (wide) | 0 | 0 | 0 | 1 [25] | 2 [51] | 0 | 147.5 [67] | 21 [533] | 1949/64 [502] | 1945/64 [500] |
| 085 | 0 | 0 | 0 | 1 [25] | 2 [51] | 0 | 147.5 [67] | 21 [533] | 1949/64 [502] | 1945/64 [500] |
| 100 | 0 | 0 | 0 | 1 [25] | 2 [51] | 0 | 152.0 [69] | 21 [533] | 1949/64 [502] | 1945/64 [500] |
| 115 | 0 | 0 | 0 | 1 [25] | 2 [51] | 0 | 165.0 [75] | 241/2 [662] | 2317/63 [591] | 2313/64 [589] |
Blower Performance Data
| GAS HEATING TARGET CFM [L/s] | |||||||
| R962V0403 A17M4SCAP | R962V0603 A17M4SCAP | R962V0703 A17M4SCAP | R962V0705 A21M4SCAP | R962V0855 A21M4SCAP | R962V1005 A21M4SCAP | R962V1155 A24M4SCAP | |
| Furnace Lo Heat CFM A (factory) | 870 [411] | 900 [425] | 1070 [505] | 1100 [520] | 1475 [697] | 1320 [623] | 1400 [661] |
| Furnace Lo Heat CFM B (side return) | 870 [411] | 900 [425] | 1070 [505] | 1100 [520] | 1475 [697] | 1320 [623] | 1400 [661] |
| Furnace Lo Heat CFM C (Approx. +7°F) | 766 [362] | 792 [374] | 941.6 [445] | 968 [457] | 1298 [613] | 1161.6 [549] | 1232 [582] |
| Furnace Lo Heat CFM D (Approx. +12°F) | 705 [333] | 729 [345] | 867 [410] | 891 [421] | 1195 [564] | 1070 [505] | 1134 [536] |
| Furnace Hi Heat CFM A (factory) | 990 [468] | 1100 [520] | 1000 [472] | 1300 [614] | 1574 [743] | 1565 [739] | 1575 [744] |
| Furnace Hi Heat CFM B (side return) | 990 [468] | 1100 [520] | 1000 [472] | 1300 [614] | 1574 [743] | 1565 [739] | 1575 [744] |
| Furnace Hi Heat CFM C (Approx. +7°F) | 891 [421] | 990 [468] | 900 [425] | 1170 [553] | 1417 [669] | 1409 [665] | 1418 [670] |
| Furnace Hi Heat CFM D (Approx. +12°F) | 822 [388] | 913 [431] | 830 [392] | 1079 [510] | 1307 [617] | 1299 [614] | 1308 [618] |
Vent Termination Kits: =
RXGY-E02: Vertical/Horizontal Concentric Vent Termination Kit 2″ Pipe (US Only)
RXGY-E02A: Vertical/Horizontal Concentric Vent Termination Kit 2″ Pipe (US & Canadian)
RXGY-E03: Vertical/Horizontal Concentric Vent Termination Kit 3″ Pipe (US Only)
RXGY-E03A: Vertical/Horizontal Concentric Vent Termination Kit 3″ Pipe (US & Canadian)
RXGY-G02: Direct Vent Furnace Side Wall Vent 2″ or 3″ (US Only)
RXGY-D05: Combustion Air Drain Kit 2″
RXGY-D06: Combustion Air Drain Kit 3″
NEUTRALIZER KIT: RXGY-A01 (Replacement Cartridge 54-22120-01)
FOSSIL FUEL KIT: RXPF-F01, RXPF-F02 (TVA)
EXTERNAL BOTTOM FILTER (UPFLOW/HORIZONTAL) RACK: RXGF-CB
EXTERNAL SIDE (UPFLOW) FILTER RACK: RXGF-CD
EXTERNAL (DOWNFLOW) FILTER RACK: RXGF-CC
| FILTER RACK FILTER SIZES* INCHES [mm] | |||
| MODEL | RXGF-CB (UPFLOW/ HORIZONTAL) | RXGF-CD (UPFLOW) | RXGF-CC (DOWNFLOW) |
| R962V040 | 153/4 x 25 | 153/4 x 25 | 12 x 20 |
| [400 x 635] | [400 x 635] | [305 x 508] | |
| R962V060 | 153/4 x 25 | 153/4 x 25 | 12 x 20 |
| [400 x 635] | [400 x 635] | [305 x 508] | |
| R962V070 | 153/4 x 25 | 153/4 x 25 | 12 x 20 |
| [400 x 635] | [400 x 635] | [305 x 508] | |
| R962V070 | 191/4 x 25 | 153/4 x 25 | 12 x 20 |
| (wide) | [489 x 635] | [400 x 635] | [305 x 508] |
| R962V085 | 191/4 x 25 | 153/4 x 25 | 12 x 20 |
| [489 x 635] | [400 x 635] | [305 x 508] | |
| R962V100 | 191/4 x 25 | 153/4 x 25 | 12 x 20 |
| [489 x 635] | [400 x 635] | [305 x 508] | |
| R962V115 | 223/4 x 25 | 153/4 x 25 | 14 x 20 |
| [578 x 635] | [400 x 635] | [356 x 508] | |
* Filter racks are shipped without filters.
Filters shipped with furnace may be used or a suitable 1″ [25.4 mm] filter.
Indoor Coil Casings
MODEL NUMBER
RXBC-D17A1
RXBC-D21A1
RXBC-D21B1
RXBC-D24A1
For High Altitudes:
NOTE: For Canadian installations only, an optional derate (manifold gas pressure reduction) method may be used to adjust the furnace for altitude. See Installation Instructions for more information. This optional method may NOT be used for U.S. installations. See installation instructions as appropriate orifice change is required.
L.P. CONVERSION KIT: RXGJ-FP34
CONDENSATE PUMP KIT: PROSTOCK & 1PCB151TUL
DOWNFLOW/HORIZONTAL CONVERSION KIT: RXGY-CK
DOWNFLOW/HORIZONTAL LEFT ZERO CLEARANCE
CONVERSION KIT: RXGY-ZK
COMBUSTIBLE FLOOR BASE: RXGC-B17 RXGC-B21 RXGC-B24
THE ECONET® SMART THERMOSTAT
BUILT-IN WIFI
4.30 LCD TOUCH SCREEN
LOCAL WEATHER – Current conditions plus 6-day forecast
5 OPERATING MODES – Heat, Cool, Auto, Emergency Heat and Fan Only
7-DAY PROGRAMMABLE SCHEDULE – Offers comfort without thought
ONE-TOUCH AWAY – Quickly switch to your energy-saving away preferences
VACATION SCHEDULING – Allows you to save while you’re away and come home to comfort
STANDBY SCREEN – Displays indoor temperature and current weather
RETST700SYS
OPERATIONAL FEATURES
AUTOMATIC CHANGEOVER – Transitions between heating and cooling automatically to keep the house comfortable
INTEGRATED WATER CONTROL – Enables easy water heater management
SMOOTH ARRIVAL – Prompts the system to start ahead of schedule to ensure the home is at the desired temperature at the scheduled time
HUMIDITY CONTROL – Supports humidifier accessories or over-cool based dehumidification
DETAILED OPERATING STATUS – View pertinent equipment status information and run times
CONTINUOUS FAN – Offers 5 speeds (Low, Medium Low, Medium, Medium High, High)
SHORT-CYCLE PROTECTION – Avoids damage to equipment from short run cycles
MONITORING & REMOTE CONTROL FEATURES
ACTIVE MONITORING – Alerts to problems that need immediate attention
REMOTE CONTROL – Allows adjusting of comfort and settings from anywhere using a mobile device
SERVICE ALERTS – Sends routine maintenance reminders
AIR FILTER MONITORING – Detects when it’s time to replace the air filter
ALARM HISTORY – Displays time-stamped alarm codes with clear descriptions
GENERAL TERMS OF LIMITED WARRANTY*
Rheum will furnish a replacement for any part of this product which fails in normal use and service within the applicable period stated, in accordance with the terms of the limited warranty.
*For complete details of the Limited and Conditional Warranties, including applicable terms and conditions, contact your local contractor or the Manufacturer for a copy of the product warranty certificate.
Conditional Unit Replacement
(Registration Required) ………………………………Ten (10) Years
Heat Exchanger ……………………………………… Limited Lifetime
Conditional Parts ……………………………………….Ten (10) Years
In keeping with its policy of continuous progress and product improvement, Rheum reserves the right to make changes without notice.
Rheum Heating, Cooling & Water Heating • 5600 Old Greenwood Road
Fort Smith, Arkansas 72908 • www.rheem.com
Rheum Canada Ltd./Lee • 125 Edgeware Road, Unit 1
Brampton, Ontario • L6Y 0P5
R962V 96% A.F.U.E.†
EcoNet® Enabled
Heating Stages: Two-Stage
Motor Type: Constant CFM
Input Rates: 40 to 115 kBTU [11.7 to 33.7 kW]
Configuration Options: 4-Way Multi-Position













