V-TAC Solar Roof Mounting System

INTRODUCTION & WARRANTY
Thank you for selecting and buying V-TAC product. V-TAC will serve you the best. Please read these instructions carefully before starting the installation and keep this manual handy for future reference. If you have any another query, please contact our dealer or local vendor from whom you have purchased the product. They are trained and ready to serve you at the best. The warranty is valid for 20 years from the date of purchase. The warranty does not apply to damage caused by incorrect installation or abnormal wear and tear. The company gives no warranty against damage to any surface due to incorrect removal and installation of the product. This product is warranted for manufacturing defects only.
WARNING!
- Please make sure to turn the power before starting the installation.
- Installation must be performed by a qualid electrician.
- Proper grounding should be ensured throughout the installation.
- Do not throw or roughly handle any V-TAC solar components.
- Do not bring V-TAC solar system into contact with sharp or heavy objects.
- Do not modify V-TAC solar components in any way. The exchange of bolts, drilling of holes, bending or any other physical changes not described in the standard installation procedure will void the warranty.
- It is the installer’s responsibility to verify the integrity of the structure to which V-TAC solar components used. Roofs or structures with rotten/rusted bearers, undersized bearers, excessively spaced bearers, or any other unsuitable substructure cannot be used with V-TAC solar components, and installation on such structures will void the warranty and could result in death or serious injury.
- Determining the wind pressures applies to your V-TAC solar system install site, taking into account roof shape and geographic location. Sutient guidance is given in this document, but you may wish to procure a copy of these standards.
- REMEMBER average wind speeds are higher for structures mounted closer to the roof perimeter zone (edge). Refer to ‘Fixing within Roof Installation Zone’ for more information
- Make sure your installation complies with local and national building codes. Take into account relevant design parameters (wind speed, exposure, and topographic factor) when determining the loading for the installation.
- If alternative fasteners are used to x the framing to the roof (assuming supplied fasteners are unsuitable for any reason), all screw fasteners must be of equal or greater strength to those supplied with your V-TAC solar system order.
This marking indicates that this product should not be disposed of with other household wastes.Caution, risk of electric shock.
MULTI-LANGUAGE MANUAL QR CODE: Please scan the QR code to access the manual in multiple languages.
GENERAL INFORMATION
Made from custom- built aluminum extrusions and components, V-TAC Solar’s innovated design and improved frame strength greatly simplify solar panel installation. The easy installation in three steps make the D-Modules to be put into the SR Rail on any position quickly. So, the D-Modules is pre-assembled with the clamp to save your installation time. 
V-TAC solar’s versatile design makes it suitable for a wide variety of building types and zones including residential, commercial and remote environments.
FEATURES
- 6005-T5 Aluminum extrusion
- Innovated designed of the D-Modules, which can be pre-assembled with the clamp, making the installation easy and quick.
- Suitable for different conditions and the most solar panels at present market.
- Significantly higher strength-to-weight ratio than other framing products, providing improved efficiency due to greater frame spans, inherent corrosion resistance resulting in low ongoing maintenance and an extended product life.
- Anodized finish
APPLICATIONS
- Commercial and residential buildings
- Marine applications and remote areas
TECHNICAL SPECIFICATIONS
| Material | Tensile strength | |
| Ultimate | Yield | |
| 6005-T5 Aluminum Extruded | 260MPa | 240Mpa |
| Stainless Steel 304 | 635MPa | 235MPa |
| Stainless Steel A2-70 | 700MPa | 450Mpa |
ELECTRIC PERFORMANCE SAFETY
| Roof slope | 0°to 60° |
| Building height | Up to 20m |
| Mounting structure | Timber |
| Roof types | Flat or pitched steel |
| System angle | Flushed with the roof |
TOOLS FOR INSTALLATION NOT INCLUDED

COMPONENTS DESCRIPTION


DETERMINE THE TYPE OF CONCEALED ROOF
The best way to identify the type of concealed roof installed is to check the label normally located underneath the roofing sheet. Otherwise, you can contact the builder or check the building plan to find out the exact type of the roofing sheet.
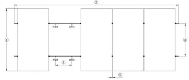
DESIGNING THE MODULE FIELD
Diagram below, the distances between roof connections for a portrait installation are specified. Clamp on roof hooks need to be installed in specific distances, depending on the distance of rafters and the stoical conditions.
- Height of the module field: module height x number of modules vertically
- Width of the module field: number of modules horizontally x (width of the module + 20 mm)+80 mm
- Distance between roof connections vertically (according to the clamping points pre-defined by the module producer): Quarter-points of the modules, about 1/2 of module height.
- Distance between roof connections horizontally: Depending on the distance between rafters and on the static requirements .
- Distance between modules: 20 mm
When positioning the modules, please take into consideration
- That the values above are
- That dimensions of roof covering and the position of the rafters define the precise actual horizontal distance between roof connec-tions
- That the distance between roof laths defines the precise actual vertical distance between roof connections.
3 WAYS OF INSTALLATION INSTALL ON TILE ROOF


INSTALL ADJUSTABLE FRONT AND REAR LEG MOUNTING SYSTEM



INSTALL ADJUSTABLE TRIANGLE SUPPORT MOUNTING SYSTEM


CABLE TIE AND GROUNDING

IN CASE OF ANY QUERY/ISSUE WITH THE PRODUCT, PLEASE REACH OUT TO US AT: SUPPORT˜V°TAC.EU FOR MORE PRODUCTS RANGE, INQUIRY PLEASE CONTACT OUR DISTRIBUTOR OR NEAREST DEALERS. V°TAC EUROPE LTD. BULGARIA, PLOVDIV 4000, BUL.L.KARAVELOW 9B
















