EVOLVE GEH6068 LED Area Lighting Canopy Light

Product Information
LED Area Lighting Canopy Light (ECLS)
The LED Area Lighting Canopy Light (ECLS) is a Class A lighting equipment that complies with Canadian standards ICES-005[A]/NMB-005[A]. It is designed for use in outdoor areas, such as canopies and soffits. The product comes with a cover plate, mounting plate, and beauty plate. The installation guide provides detailed instructions on how to mount and wire the product.
Product Usage Instructions
Before You Begin
Read the installation guide completely and carefully before starting the installation process. Save the guide for future use. Before servicing or installing the product, make sure to disconnect the power to avoid the risk of electrical shock. Wear safety glasses and gloves during installation and servicing to avoid the risk of injury.
Product Mounting
Follow the installation instructions provided in the guide to mount the product properly. Make sure to use the toggle bolts (not provided) and screws provided to secure the unit in place. The product comes with a mounting plate, cover plate, and beauty plate that need to be installed according to the instructions provided.
Wiring
Connect the product to a power supply using the service leads. If ordered, wired dimming control connections can be made using the gray lead and violet lead wires. Refer to Table 1 in the installation guide for more information.
Product Maintenance/Cleaning
Before attempting any maintenance or cleaning of the product, make sure to turn off the power supply to avoid the risk of electrical shock.
Storage
If storing the product for future use, follow the storage instructions provided in the installation guide.
Note: These instructions do not cover all details or variations in equipment nor provide for every possible contingency to be met in connection with installation, operation, or maintenance. For further information or if particular problems arise that are not covered in the guide, refer to GE Current, a Daintree Company.
WARNING
RISK OF ELECTRICAL SHOCK. Disconnect power before servicing or installing the product.
WARNING
RISK OF INJURY OR DAMAGE. The unit will fall if not installed properly. Follow installation instructions.
FCC STATMENT
This device complies with Part 15 of the FCC Rules. Operation is subject to the following two conditions: (1) This device may not cause harmful interference, and (2) this device must accept any interference received, including interference that may cause undesired operation. This Class [A] Lighting Equipment complies with Canadian standards ICES-005[A]/NMB-005[A].
Note: This equipment has been tested and found to comply with the limits for a Class A digital device, pursuant to part 15 of the FCC Rules. These limits are designed to provide reasonable protection against harmful interference when the equipment is operated in a commercial environment. This equipment generates, uses, and can radiate radio frequency energy and, if not installed and used in accordance with the instruction manual, may cause harmful interference to radio communications. Operation of this equipment in a residential area is likely to cause harmful interference in which case the user will be required to correct the interference at his own expense.
WARNING
RISK OF FIRE. Use the supply wire specified on the nameplate.
CAUTION
RISK OF INJURY. Wear safety glasses and gloves during installation and servicing.
GENERAL
- This luminaire is designed for outdoor lighting applications, and should not be used indoors.
- Install and maintain according to this guide.
- For sealed deck applications only (enclosed canopy or soffit).
SPECIFICATIONS
- Max Weight: 14.1 lbs. (6.39 kg)
- Ingress Protection (IP) rating:
- Optical: IP65
- Electrical Enclosure: UL Wet Location
- Ambient Temperature: -40°C (-40°F) to 50°C (140°F)
Unpacking/Handling
- Inspect the luminaire to confirm no damage has occurred during transit.
- To avoid damage, do not impact or stack the luminaire after removal from the packaging.
Mounting
WARNING
RISK OF INJURY OR DAMAGE. The unit will fall if not installed properly. Follow installation instructions.
Surface Mount
- Cut an 8” x 8” square opening in the underside of the canopy.
- Remove cover plate knockout (1/2” or 3/4”) for desired conduit diameter.
- Feed flex conduit through canopy opening and secure to cover plate.
- Connect fixture leads to service leads from the conduit in accordance with Section 3 “Wiring.”
- Secure the cover plate to the top of the fixture with four #10 screws provided.
- Secure fixture to the underside of canopy with four #10 toggle bolts (not provided).

J-Box Mounting
- Install J-Box mounting plate to grounded J-Box with #8 screws (not provided).
- For 347-volt units, install a tether with #10 screws included in the fixture package to the hole in the J-Box mounting plate and housing (120-277 volt units do not require tether).
- Connect fixture leads to service leads from inside the J-Box in accordance with Section 3” Wiring.”
- Route tether (if required) in drain hole slot when closing fixture to J-Box mounting plate.
- Secure fixture to J-Box mounting plate with #10 screws provided.

Pendant (Rigid Conduit) Mounting
- Feed service wires through the conduit mounting plate and thread plate onto the rigid conduit.
- Tighten the set screw into the conduit to lock.
- For 347 volt units, install tether with #10 screws included in fixture package to the hole in conduit mounting plate and housing (120-277 volt units do not require tether, but #10 screw must be installed in a hole in conduit mounting plate).
- Connect fixture leads to service leads from the rigid conduit in accordance with Section 3 ”Wiring.”
- Route tether (if required) in drain hole slot when closing fixture to conduit mounting plate.
- Secure conduit mounting plate to back of fixture with four #10 screws provided.

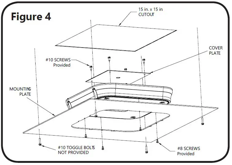
Recessed Mount
- Cut a 15” x 15” square opening in the underside of the canopy.
- Install accessory mounting plate to the front face of the fixture with four # 10 screws provided.
- Remove cover plate knockout plugs (1/2” or 3/4”) for desired conduit diameter.
- Feed flex conduit through canopy opening and secure to cover plate.
- Connect fixture leads to service leads from flex conduit in accordance with Section 3 “Wiring.”
- Secure the cover plate to the back of the fixture with four #10 screws provided
- Secure accessory mounting plate to the underside of the canopy using four #10 toggle bolts (not provided).

Surface Mount Conduit Entry
- Secure fixture to the underside of canopy with four #10 toggle bolts (not provided).
- Remove the fixture cover plate.
- Remove the side conduit plug and replace it with a customer-supplied conduit on the desired side.
- Feed customer-supplied electrical wires through the conduit into the fixture electrical cavity.
- Make electrical connections inside the fixture in accordance with Section 3 “Wiring.”
- Re-install fixture cover plate.

Surface Mount w/ Beauty Plate
- Remove cover plate knockout (1/2” or 3/4”) for desired conduit diameter.
- Feed flex conduit through canopy opening and secure to cover plate.
- Connect fixture leads to service leads from flex conduit in accordance with Section 3 “Wiring.”
- Secure the cover plate to the top of the fixture with four #10 screws provided.
- Secure the beauty plate to the underside of the canopy with four #10 toggle bolts (not provided).
- Install fixture to beauty plate with four #10 self-drilling screws provided.

Wiring
NOTE: Make all electrical connections in accordance with the National Electrical Code and any applicable local code requirements including grounding.
NOTE: Verify supply voltage matches the rating before wiring.
- Verify service leads meet nameplate temperature rating.
- Units are provided with leads exiting the fixture for connection with service leads and (if ordered) wired dimming.
Wired Dimming
- Connect wired dimming leads per Table 1
- Customer-supplied dimming leads 600-volt min.
TABLE 1. Wired Dimming Control Connections.
| 0 VDC (-) | Gray Lead |
| Up to 10 VDC (+) | Violet Lead |
Maintenance/Cleaning
WARNING
RISK OF ELECTRICAL SHOCK. Make certain the power is off before attempting any maintenance of the product.
- Occasional cleaning of the outer lens surface may be needed.
- Use a mild, non-abrasive soap or detergent, of neutral pH (pH approximately 6 to 8), containing no chlorinated or aromatic hydrocarbons.
- Wash thoroughly, using a soft cloth.
- Rinse with clean, cold water and wipe dry.
Storage
- Packaged units should NOT be stored unprotected outdoors in corrugated (cardboard) boxes.
- Store packaged units in a covered dry area not exceeding -40°C (-40°F) to 50°C (122°F) such as a roofed area or covered with a secured tarp to keep water off the corrugated (cardboard) packaging.
These instructions do not purport to cover all details or variations in equipment nor to provide for every possible contingency to be met in connection with installation, operation, or maintenance. Should further information be desired or should particular problems arise which are not covered for the purchaser’s purposes, the matter should be
referred to GE Current, a Daintree Company.
© 2022 Current Lighting Solutions, LLC. All rights reserved. GE and the GE monogram are trademarks of the General Electric Company and are used under license. Information and specifications are subject to change without notice. All values are designed or typical values when measured under laboratory conditions.


















