PANDUIT Z22U Universal Network Zone System

Overview
Universal Network Zone System configurations include an enclosure with required connectivity, cable management, and internal factory-connected wiring and include partner equipment as specified on the Field Wiring Diagram supplied inside each unit.
Each unit may include one or more of the following DIN-Rail mountable items:

- A) Fiber patch box
- B) Fiber slack spool
- C) Strain relief bar
- D) Management slack L-rings
- E) IndustrialNet 8-Port DIN Rail Mount Copper Patch Panel
- F) Field-wiring terminal for customer-supplied power input wiring
- G) Lockout terminal contact blocks
- H) Ground bar terminal for customer-supplied ground
- I) Redundant 24V-DC power supplies
- J) 48V-DC POE power supply (Optional)
- K) 24V-DC Battery UPS (Optional)
- L) Wiring for customer-supplied switch
SAFETY INFORMATION
The information and instructions contained in this document are not intended to be utilized as a substitute for proper training and experience in the safe installation and operation of the product. Prior to installation, it is the Buyer’s responsibility to consult with the appropriate local Authority Having Jurisdiction (AHJ) for all applicable codes, permits, regulations, and standards. This product, including any equipment that may be installed inside, should only be installed and serviced by a licensed electrical contractor, or competent technician, that meets the following qualifications:
- Is thoroughly familiar with this product and the instructions for installation and operation
- Is trained (accredited) in industry-accepted safe operating practices and procedures regarding identification and mitigation of high- and low- voltage hazards and situations.
- Is trained to identify and install appropriately-sized Branch Circuit Disconnect(s) with appropriately-sized BranchCircuit Protective Rating and Short-Circuit Current Rating (SCCR), before connecting Panduit product to the branch circuit.
- Is trained and authorized to energize, de-energize, clear, and ground power distribution equipment.
- Is trained in the care and use of PPE (personal protective equipment) including, but not limited to: arc-flash protective clothing, safety glasses, face shield, hard hat, gloves, and non-conductive tools (clamp stick, hot stick, etc.)
WARNING Be sure wall is capable of supporting cabinet and equipment.
DISCLAIMER OF WARRANTIES AND LIMITATION OF LIABILITIES
The practices contained herein are designed as a guide for use by persons having technical skill at their discretion and risk. Panduit does not guarantee any favorable results or assume any liability in connection with these instructions. Local, State, Federal, and Industry Codes and Regulations, as well as manufacturers’ requirements, must be consulted before proceeding with any project. Panduit Corp. makes no representations of nor assumes any responsibility for the accuracy or completeness set forth herein. Panduit disclaims any liability arising from any information contained herein or for the absence of same.
Specifications
Network Zone System Specifications

Use Field Wiring Diagram for the Electrical Rating and Maximum Over-current Protection
For customer-supplied switch, use manufacturer instructions for installing and wiring
Tools and supplies needed to complete install of the Integrated Zone System (not included):
- Fiber-optic trunk cable: FSPD504 or similar
- Tools to cut enclosure sidewalls: Greenlee punch or similar
- LC fiber-optic connectors: FLCDMCXAQY or similar
- External Power Disconnect
- Fiber-optic termination tools: OptiCam termination kit or similar
- 5/16” bolts for wall mounting of steel enclosure
- Category 6 copper cable for downlinks: PUR6504BU-UY or similar
- #6 AWG Infrastructure ground cable: RGEJ660PF or similar
- Wire cutters for copper cable termination
- Screwdrivers: #2 Phillips, 3/16”, and 2.5mm flathead
- Power wiring: #14 AWG recommended
- 3/8” bolts for wall mounting of stainless-steel enclosure
- Rigid conduit for power and copper downlink cables
- 3/8” socket or box wrench ground bar
- Max Din Rail Mount Switch
Wall Mounting Feet Installation
Note: The enclosure may be mounted to the wall without the mounting feet.

- Step 1: Turn enclosure on its side with the locks oriented toward the top. Using Latch Tool, turn both locks toward each other to open door.
- Step 2: Install Wall Mounting Feet into back to the enclosure aligning threaded studs on feet to holes located in back of the enclosure.
- Step 3: Secure wall mounting feet using the supplied sealing washers – use (1) per threaded stud. Thread nut onto stud and tighten to 200 in-lbs.
- Step 4: Close Door. Using Latch Tool, turn both locks to secure the door.

*To maintain NSF certification, seal perimeter between mounting feet and mounting surface with a silicone rubber sealant.
If Mounting Feet are not used:
For Steel Enclosure: Use 5/16” Sealing Washer (supplied) and a 5/16” Bolt (not supplied) in the locations where the threaded studs in the mounting feet would go to mount enclosure directly to wall. For Stainless Steel Enclosure: Use 3/8” Sealing Washer (supplied) and a 3/8” Bolt (not supplied) in the locations where the threaded studs in the mounting feet would go to mount the enclosure directly to wall.
*To maintain NSF certification, seal perimeter between enclosure back and mounting surface with silicone rubber sealant.

Wall Mounting
The enclosure may be mounted on any wall utilizing Unistrut or by drilling directly into any concrete wall. There are two mounting feet locations on the top and two locations at the bottom of the enclosure.

- Step 1: Drill holes 22.5” apart horizontally and 25.56” apart vertically.
- Step 2: Mount the enclosure with the locks to the right and secure.
If mounting feet are not used:
The holes in the wall will be 22.5” apart horizontally and 22.5” apart vertically.
*To maintain NSF certification, seal perimeter between enclosure and back mounting surface with silicone rubber sealant.
Reversible Door
The enclosure comes with the door opening to the left. The door may be reversed to open to the right.

- Step 1: Remove pins from the door hinges.
- Step 2: Remove screws and door hinges.
- Step 3: New hole locations will have to be drilled or punched out. Reinstall hinges and screws on opposite side.
- Step 4: Turn door 180 degrees and mount to the opposite side of the enclosure. Insert the same pins to secure the door.
- Step 5: Install screws and sealing washers, provided in hardware bag, in the original hinge hole locations.
SWITCH INSTALLATION

Switch Installation Instructions
- Remove wires from terminal blocks
- Remove terminal blocks
- Install switch
- Wire switch – Refer to switch manufacturer’s instructions and supplied Field Wiring Diagram for proper wiring technique.
- Install supllied ground wire to switch.
Note: Do not apply power prior to terminal block removal and switch installation.


PATCH CORD ROUTING

Connecting to Zone System Uplink Ports
The Zone Enclosure can have either a fiber or copper uplink. Copper uplinks are limited to 330ft (10Om) distance and relatively noise-free environments. It is recommended to have a structured cabling approach, terminating the horizontal cable to an RJ-45 jack or LC adapter.

Copper Uplink
There are 2 copper RJ-45 uplink ports that can be configured for a star, ring, or linear topology. the copper horizontal cable can be brought straight into the enclosure via con- duit
The uplink copper horizontal cables should be terminated to the DIN Patch Box (8 ports). The Patch Panel (48 ports) may be used if patch box is ful. The provided Panduit Patch Cords connect the horizontal cable jack to the Stratix.
Fiber Uplink
The Stratix has 2 SFP uplink ports that can accommodate 2 Fiber SFPs. Either Multi-mode or Single Mode SFPs can be used. Fiber uplinks can be brought into the zone enclosure via conduit, using fiber distribution cable or Panduit armored fiber, DCF, or PCF, as needed.
The fiber links are terminated inside the provided fiber Surface Mount Box (CBXF6BL-AY). The Surface Mount Box features internal slack management along with provided Panduit LC adapters (FADJAQLCZBL). Fibers will be terminated to LC connectors (Panduit Opticam FLCDMCXAQY recommended) not included. For instructions on Panduit LC termination, see the instruction sheet LC OptiCam Connector: FS014 available on at www.Panduit.com.
When amored fiber cable is used, the outer casing is connected to the enciosure using Panduit’s Armored Cable Grounding Kit (See www.Panduit.com for the applicable part no.) The inner distribution cable is exposed and termined in the same manner as another distribution cable. fa metal ciad armor casing is used, it will need to be grounded. See T-PMP-292-PC for armor cable grounding details.
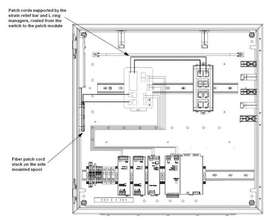
From the Surface Mount Box, the provided LC to LC duplex patch cords (Fx2ERLNLNSNMO01) are used to connect from the fiber adapter modules to the SFP LC uplink connectors on the switch. Fiber slack is stored in the included fiber spool that is mounted to the accessory plate in the zone enclosure with adhesive. It is important to wind the fiber patch cord slack on the spool to prevent sharp bends or snag that can degrade transmission.
For Technical Support: http://www.panduit.com/en/support/contact-us.html



















