INSTALLATION & SERVICING
LOGIC MAX COMBI2
C24 C30 C35
Ideal C24 Logic Max Combi2
When replacing any part on this appliance, use only spare parts that you can be assured conform to the safety and performance specification that we require. Do not use reconditioned or copy parts that have not been clearly authorised by Ideal Heating. For the very latest copy of literature for specification and maintenance practices visit our website idealheating.com where you can download the relevant information in PDF format.
July 2022
UIN 228290 A05
ERP DATA
| MODEL | |||||
| SYMBOL | UNITS | 24 kW | 30 kW | 35 kW | |
| Condensing Boiler | n/a | n/a | yes | yes | yes |
| Low Temperature Boiler | n/a | n/a | no | no | no |
| B1 Boiler | n/a | n/a | no | no | no |
| Cogeneration Space Heater | n/a | n/a | no | no | no |
| Equipped with a Supplementary Heater | n/a | n/a | no | no | no |
| Combination Heater | n/a | n/a | yes | yes | yes |
| Nominal Heat Output for Space Heating | |||||
| Full Load | P4 | kW | 24.3 | 24.3 | 24.3 |
| Part Load | P1 | kW | 8 | 8 | 8 |
| Auxiliary Electricity Consumption | |||||
| Full Load | elmax | kW | 0.044 | 0.028 | 0.028 |
| Part Load | elmin | kW | 0.013 | 0.009 | 0.026 |
| Standby | PSB | kW | 0.002 | 0.003 | 0.002 |
| Seasonal Space Heating Energy Efficiency | |||||
| Full Load | q4 | % | 90 | 90 | 90 |
| Part Load | ni | % | 98.6 | 98.6 | 98.6 |
| Standby Loss | Pstby | kW | 0.05 | 0.05 | 0.05 |
| Ignition | Pign | kW | 0 | 0 | 0 |
| Emissions NOx (Gross) | NOx, pond Hs | mg/kWh | 28 | 25 | 30 |
| Annual Energy Consumption | ORE | GJ | 75 | 75 | 75 |
| Sound Power Level. Indoors | LWA | dB | 50 | 46 | 46 |
| Domestic Hot Water | |||||
| Domestic Hot Water | Elec | kWh | 0.136 | 0.133 | 0.137 |
| Water heating energy efficiency (Eco) Tapping Profile L | qW1-1 | % | 82 | 81 | 79 |
| Daily fuel consumption 24hr (GCV)Actual measured | Fuel | kWh | 14.7 | 14.83 | 15.14 |
| Annual electricity consumption | AEC | kWh | 29 | 28 | 29 |
| Annual fuel consumption | AFC | GJ | 11 | 11 | 11 |
WEEE DIRECTIVE 2012/19/EU
Waste Electrical and Electronic Equipment Directive
- At the end of the product life, dispose of the packaging and product in a corresponding recycle centre.
- Do not dispose of the unit with the usual domestic refuse.
- Do not burn the product.
- Remove the batteries.
- Dispose of the batteries according to the local statutory requirements and not with the usual domestic refuse.
The code of practice for the installation, commissioning & servicing of central heating systems
PRODUCT FICHE
LOGIC MAX COMBI² C BOILER
Ideal Heating ERP DATA
| SYMBOL | UNITS | MODEL | |||
| 24 kW | 30 kW | 35 kW | |||
| Condensing boiler | Yes | ||||
| Seasonal space heating efficiency class | A | ||||
| Rated heat output | kW | 24 | |||
| Seasonal space heating energy efficiency | ns | oh) | 94* | ||
| Annual energy consumption | QHE | GJ | 75 | ||
| Sound power level, indoors | LWA | dB | 50 | 46 | 46 |
| Water heating energy efficiency class | A | ||||
| Seasonal Space Heating Energy Efficiency of the Boiler | *% 94% | A | |||||||
| Temperature control (from fiche of temperature control) | % | B | |||||||
| Class I | Class 11 | Class III | Class IV | Class V | Class VI | Class VII | Class VIII | ||
| 1% | 2% | 2.% | 2% | 3% | 4% | 4.% | 5% | ||
Solar Contribution (from fiche of solar device)

Seasonal Space Heating Energy Efficiency of Package

Seasonal Space Heating Energy Efficiency Class of Package

The energy efficiency of the package of products provided for in this document may not correspond to its actual energy efficiency once installed in a building, as the efficiency is influenced by further factors such as heat loss in the products in relation to the building size and its characteristics.
NOTES FOR THE INSTALLER
For any technical queries please ring the Ideal installer helpline : 01482 498663
BOILER RESTART PROCEDURE –
Press the RESTART button. The boiler will repeat the ignition sequence if a heat demand is present.
DEFINITIONS
WARNING: Risk of injury or death
CAUTION: Risk of damage to objects
IMPORTAN T: Important information
Table of Acronyms
| CH – Central Heating | WRAS – Water Regulations Advisory Scheme |
| DHW – Domestic Hot Water | SAP – Standard Assessment Procedure |
| TRV – Thermostatic Radiator Valve | IEE – Institution of Electrical Engineers |
| PRV – Pressure Relief Valve | UKCA – UK Conformity Assessed |
| IE – Ireland | RHS – Right Hand Side |
| ETCI – Electro-Technical Council of Ireland | LHS – Left Hand Side |
| BS – British Standard | PCB – Printed Circuit Board |
Section 1-General
Table 1 General Data
| 24 kW | I 30 kW | I 35 kW | ||
| Gas Supply | 2H – G20 – 20 mbar | |||
| Gas Supply Connection | 15 mm copper compression | |||
| Injector Size | mm | 4. | 5. | I 4.9 |
| Inlet Connection | Cold Water | 15 mm copper compression | ||
| Outlet Connection | Cold Hot Water | 15 mm copper compression | ||
| Flow Connection | Central Heating | 22 mm copper compression | ||
| Return Connection | Central Heating | 22 mm copper compression | ||
| Flue Terminal Diameter | mm | 100 | ||
| Average Flue Temp-Mass Flow Rate | DHW | 63°C – 11g/s | 68°C – 13g/s | 73°C – 15g/s |
| CO2 Content (± 0.7) | Max. DHW | 9.% | 9.% | 10.% |
| Min. CH | 9.% | 9.% | 9.% | |
| Maximum Working Pressure (Sealed Systems) | bar (psi) | 2.5 (36.3) | ||
| Maximum Domestic Hot Water Inlet Pressure | bar (psi) [kPa] | 10.0 (145) [1000] | ||
| Minimum Domestic Hot Water Inlet Pressure* | bar (psi) [kPa] | 0.8(11.6)[80] | 1.3(18.9) [130] | I 1.3(18.9)**[130] |
| Minimum DHW Inlet Pressure to Operate at 0.6 bar System Pressure | All Model Sizes 0.5 bar | |||
| Electrical Supply | 230 V — 50 Hz | |||
| Power Consumption | W | 94 | 93 | I 110 |
| Fuse Rating | External : 3 A Internal : T4A HRC L250 V | |||
| Water Content | Central Heating litre (gal) | 1.2 (0.26) | ||
| Domestic Hot Water litre (gal) | 1.0 (0.22) | |||
| Packaged Weight | kg | 35. | 35 | 35 |
| Lift Weight | kg | 29. | 29. | 29. |
| Boiler Casing Size | Height mm | 700 | ||
| Width mm | 395 | |||
| Depth mm | 278 | |||
*Required for maximum flow rate. Boiler operates down to 2 L/min DHW delivery
** In areas of low water pressure the DHW restrictor can be removed
Table 2 Performance Data – Central Heating
| Boiler Input: | Max | Min | |||
| 24 kW | 30 kW | 35 kW | |||
| Boiler `Q’ Net CV Gross CV | kW | 24.3 | 4.9 | 6.1 | 7.1 |
| kW | 27 | 5.4 | 6.7 | 7.9 | |
| Gas Consumption | m3/h | 2.512 | 0.5 | 0.627 | 0.734 |
| (ft3/h) | (89) | (18.) | (22) | (26.) | |
| Boiler Output : | |||||
| Non Condensing 70°C Mean Water Temp. | kW | 24.2 | 4.8 | 6.1 | 7.1 |
| Condensing 40°C Mean Water Temp. | kW | 25.6 | 5.1 | 6.4 | 7.5 |
| Seasonal Efficiency* SEDBUK 2005 | 91.% | 91.% | 91.% | ||
| Seasonal Efficiency* SEDBUK 2009/2012 | 89.60% | 89.60% | 89.60% | ||
| NOx Classification | I CLASS 6 | ||||
Note. Gas consumption is calculated using a calorific value of 38.7 MJ/m³ (1038 Btu/ft³ ) gross or 34.9 MJ/m³ (935 Btu/ft³ ) nett
To obtain the gas consumption at a different calorific value:
a. For l/s – divide the gross heat input (kW) by the gross C.V. of the gas (MJ/m 3 )
b. For Btu/h – multiply the gross heat input (kW) by 26.8
c. For ft 3 /h – divide the gross heat input (Btu/h) by the gross C.V. of the gas (Btu/ft³ )
d. For m 3 /h – multiply l/s by 3.6
Table 3 Performance Data – Domestic Hot Water
| Maximum DHW Input: | 24 kW | 30 kW | 35 kW | |
| Boiler V’ Net CV Gross CV | kW | 24. | 30. | 35.4 |
| kW | 27 | 34. | 39.3 | |
| Gas Consumption | m³/h | 3. | 3. | 3.657 |
| ft³/h | 89 | 111 | 129 | |
| Maximum DHW Output | kW | 24. | 30. | 35.3 |
| DHW Flow Rate At 35°C Temp. Rise | 1/min gpm | 10. | 12. | 14.5 |
| 2. | 3. | 3.2 | ||
| DHW Specific Rate | 1/min gpm | 12. | 15. | 16.9 |
| 3. | 3. | 3.7 |
* The value is used in the UK Government’s Standard Assessment Procedure (SAP) for energy rating of dwellings. The test data from which it has been calculated, has been certified by a notified body.
C13 C33 C53 = A room sealed appliance designed for connection via ducts to a horizontal or vertical terminal, which admits fresh air to the burner and discharges the products of combustion to the outside through orifices which, in this case, are concentric. The fan is up stream of the combustion chamber.
I2H = An appliance designed for use on 2nd family gas, Group Honly.
II2H/3P = An appliance designed for use on 2nd or 3rd family gases, Group H or P.
Section 1 – General
| BOILER SIZE kW | G.C. Applicance No (Benchmark No.) |
| 24 | 47-349-99 |
| 30 | 47-387-01 |
| 35 | 47-387-02 |
Destination Country: GB

For UK, to comply with Building Regulations Part L1 (Part 6 in Scotland) the boiler should be fitted in accordance with the manufacturer’s instructions. Self-certification that the boiler has been installed to comply with Building Regulations can be demonstrated by completing and signing the Benchmark Commissioning Checklist.
Before installing this boiler, read the Code of Practice sheet at the rear of this book.
BENCHMARK COMMISSIONING CHECKLIST DETAILS
Boiler ………………………………………………………………Page
Make and model ……………………………………………… Above
Appliance serial no. on data badge …………….Front Cover
SEDBUK No. % ……………………………………………………….6
Controls
Time and temperature control to heating ……………………28
Heating zone valves ……………………………………………….13
TRVs …………………………………………………………………….10
Auto bypass …………………………………………………………..13
Boiler interlock ……………………………………………………….10
For all boilers
Flushing to BS.7593 ……………………………………………….13
Inhibitor …………………………………………………………………13
Central heating mode
Heat input …………………………………………. to be calculated
Boiler ………………………………………………………………Page
Burner operating pressure ………………………………………n/a
Central heating flow temp. …………….. measure and record
Central heating return temp. ………….. measure and record
For combination boilers only
Scale reducer ………………………………………………………..13
Hot water mode
Heat input …………………………………………. to be calculated
Max. operating burner pressure ………………………………n/a
Max. operating water pressure …………..measure & record
Cold water inlet temp ………………………..measure & record
Hot water outlet temp. ………………………measure & record
Water flow rate at max. setting …………..measure & record
For condensing boilers only
Condensate drain …………………………………………….. 23-24
For all boilers: Complete, sign & hand over to customer
NOTE TO THE INSTALLER: COMPLETE THE BENCHMARK COMMISSIONING CHECKLIST AND LEAVE THESE INSTRUCTIONS WITH APPLIANCE
Section 1 – General
1.1 INTRODUCTION
The Logic Max Combi 2 C range of boilers are wall mounted, condensing, combination gas boilers.
Features:
- High efficiency
- Full sequence
- Automatic spark ignition
- Low water content
- Fanned flue
The boiler is supplied fully assembled with a DHW plate heat exchanger, diverter valve, circulating pump, pressure gauge, PRV and CH expansion vessel.
Variable CH and DHW temperature controls are fitted on the user control and the boiler features a DHW preheat facility.
The boiler includes as standard:
-Automatic bypass
– Boiler frost protection
– Daily pump and diverter valve exercise.
The boiler casing is of white painted mild steel with a white polymer front panel.
The boiler temperature controls are visibly located in the control panel on the front of the boiler.
The heat exchanger is manufactured from cast aluminium.
The boiler is suitable for connection to fully pumped, sealed heating systems ONLY. Adequate arrangements for completely draining the system by provision of drain cocks
MUST be provided in the installation pipework.
Pipework from the boiler is routed downwards.
A PRV grommet is fitted to the boiler which requires the correct fitting and securing of a clip (supplied) to ensure safe discharge of the PRV should this occur.
The Ideal System filter is supplied with this boiler. Installation instructions for this are located within the system filter box.
Be sure to follow Ideal System filter installation and maintenance guide for correct method of installation. Failure to install the system filter correctly will affect boiler warranty.
Data Plate
The boiler model and serial number are shown on the data label which can be located on the bottom of the boiler casing, shown in – Water & Gas Connection Diagram.
1.2 OPERATION
With no demand for CH, the boiler fires only when DHW is drawn off, or periodically for a few seconds without any DHW draw-off, in order to maintain the DHW plate heat exchanger in a heated condition. This only occurs if the “PREHEAT” button is pressed and the display reads “PREHEAT ON or PREHEAT TIMED”.
When there is a demand for CH, the heating system is supplied at the selected temperature of between 30 o C and o 80 C, until DHW is drawn off. The full output from the boiler is then directed via the diverter valve to the plate heat exchanger to supply a nominal DHW draw-off of:
24 kW 9.9 l/min at 35ºC temperature rise.
30 kW 12.4 l/min at 35ºC temperature rise.
35 kW 14.5 l/min at 35ºC temperature rise.
The DHW draw off rate specified above is the nominal that the boiler flow regulator will give. Due to system variations and seasonal temperature fluctuations DHW flow rates/temperature rise will vary, requiring adjustment at the draw off tap.
At low DHW draw-off rates the maximum temperature may exceed 65ºC.
The boiler features a comprehensive diagnostic system which gives detailed information on the boiler status when operating, and performance of key components to aid commissioning and fault finding.
1.3 SAFE HANDLING
This boiler may require 2 or more operatives to move it to its installation site, remove it from its packaging base and during movement into its installation location. Maneuvering the boiler may include the use of a sack truck and involve lifting, pushing and pulling.
Caution should be exercised during these operations. Operatives should be knowledgeable in handling techniques when performing these tasks and the following precautions
should be considered:
- Grip the boiler at the base.
- Be physically capable.
- Use personal protective equipment as appropriate, e.g. gloves, safety footwear.
During all maneuvers and handling actions, every attempt should be made to ensure the following unless unavoidable and/or the weight is light.
- Keep back straight.
- Avoid twisting at the waist.
- Avoid upper body/top heavy bending.
- Always grip with the palm of the hand.
- Use designated hand holds.
- Keep load as close to the body as possible.
- Always use assistance if required.
1.4 OPTIONAL ACCESSORIES
Please visit idealheating.com to access the optional accessories for this boiler.
https://idealheating.com/logic-V4-literature-1
1.5 SAFETY
Current Gas Safety (installation and use) regulations or rules in force:
The appliance is suitable only for installation in the UK and should be installed in accordance with the rules in force. In the UK, installations must be carried out by a Gas Safe Registered Engineer. It must be carried out in accordance with the relevant requirements of the:
- Gas Safety (Installation and Use) Regulations
- Appropriate Building Regulations, either The Building
Regulations, The Building Regulations (Scotland), Building Regulations (Northern Ireland). - Water Fittings Regulations or Water byelaws in Scotland.
- Current I.E.E. Wiring Regulations.
Where no specific instructions are given, reference should be made to the relevant British Standard Code of Practice.
The Boiler has been tested and certified to: BSEN 15502-1, BSEN 15502-2, BSEN 15502-2-1, BSEN 60335-1, BSEN 60335-2-102, BSEN 55014-1 and
BSEN 55014-2 for use with Natural Gas & Propane.
Detailed recommendations are contained in the following British Standard Codes of Practice:
| BS5440:1 | Flues (for gas appliances of rated input not exceeding 70 kW). |
| BS5440:2 | Ventilation (for gas appliances of rated input not exceeding 70 kW). |
| BSEN12828 | Heating Systems in buildings: Design for water based heating systems. |
| BSEN12831 | Heating Systems in buildings: Method for calculation of the design heat load. |
| BSEN14336 | Heating Systems in buildings: Installation and commissioning of water based heating systems. |
| BS5546 | Installation of gas hot water supplies for domestic purposes (2nd Family Gases) |
| BS6798 | Installation of gas fired hot water boilers of rated input not exceeding 70 kW. |
| BS6891 | Installation and maintenance of low pressure gas installation pipework. |
| BS 7593:2019 | Code of practice for the preparation, commissioning and maintenance of domestic central heating and cooling water systems. |
Health & Safety Document No.635.
The Electricity at Work Regulations, 1989.
The manufacturer’s notes must NOT be taken, in any way, as overriding statutory obligations.
IMPORTAN T: This appliance is UKCA/CE certificated for safety and performance. Do not connect external control devices directly to this appliance unless recommended in this manual or by Ideal Heating in writing. If in doubt, please enquire. Unapproved control devices could invalidate the warranty of this appliance and infringe the Gas Safety Regulations.
1.6 SAFE HANDLING OF SUBSTANCES
No asbestos, mercury or CFCs are included in any part of the boiler or its manufacture.
1.7 LOCATION OF BOILER
The boiler must be installed on a flat and vertical internal wall, capable of adequately supporting the weight of the boiler and any ancillary equipment.
The boiler may be fitted on a combustible wall and insulation between the wall and the boiler is not necessary, unless required by the local authority.
WARNING: Rear access to the boiler is not permitted.
CAUTION: Do not fit the boiler outside.
Timber Framed Buildings
Boilers installed in a timber-framed building must comply with IGE/UP7 +A 2008.
Bathroom Installations
CAUTION: This appliance is IP20 rated, do not clean with jets of water.
You may install the boiler in any internal space. The installation must comply with the current IEE (BS 7671) Wiring Regulations and the electrical regulations applicable in Scotland.
If the appliance is to be installed in a room containing a bath or shower then the appliance must be installed beyond Zone 2, as detailed in BS7671.
Bathroom Installations
[0] Zone 0
[1] Zone 1
[2] Zone 2
[2*] Without the end wall, zone 2 must extend 600 mm from the bath
[A] 600 mm radius from the bath or shower
Compartment Installations
A boiler installed in a compartment does not require ventilation.
However, A boiler installed in a compartment must provide adequate clearances for servicing. The compartment should also be fitted with a suitable label in accordance with current standards.![]()
1.8 AIR SUPPLY
It is not necessary to have an air vent in the room or internal space where the boiler is installed.
1.9 GAS SUPPLY
Consult the local gas supplier to establish an adequate supply of gas. Do not use existing service pipes without consulting the local gas supplier.
The gas supply must be governed with a meter.
A gas meter can only be connected by the local gas supplier or by a Gas Safe Registered Engineer.
An existing meter should be checked, preferably by the gas supplier, to ensure that the meter is adequate to deal with the required gas supply rate.
It is the responsibility of the Gas Installer to size the gas installation pipework in accordance with BS6891.
Whilst the principle of the 1:1 gas valve ensures the Logic range is able to deliver it is full output at inlet pressures as low as 14 mb, other gas appliances in the property may not be as tolerant. When operating pressures are found to be below the minimum meter outlet of 19 mb these should be checked to ensure this is adequate for correct and safe operation. Allowing for the acceptable pressure loss of 1mb across the installation pipework, it can be assumed that a minimum permitted operating pressure of 18mb will be delivered to the inlet of the appliance.
(Reference BS6400-1 Clause 6.2 Pressure Absorption).
The external gas cock could further reduce the operating pressure when measured at its test point. The pressure drop is relative to the heat input to the boiler (kW), refer to graph below.
IMPORTANT: Ensure all gas valve connections are gas tight with a gas soundness check up to the gas control valve.
Installation pipes must be fitted in accordance with BS6891.
The complete installation MUST be tested for gas tightness and purged as described, for the majority of installations the appropriate standard is IGEM/UP/1B [23], but alternatively IGEM/UP/1 [21] or IGEM/UP/1A [22], as appropriate, can be utilized.
1.10 WATER CIRCULATION SYSTEM
IMPORTANT: A minimum length of 1 metre of copper pipe MUST be fitted to both flow and return connections from the boiler before connection to any plastic piping.
The central heating system should be in accordance with BS6798 and, in addition, for smallbore and microbore systems, BS5449.
Water treatment is covered later in these instructions.![]()
1.11 BOILER CONTROLS
Install CH controls to ensure that the boiler has no demand when there is no requirement from the system.
Heating systems with TRVs in individual rooms must include a thermostat to control the temperature in rooms without TRVs. At least 10% of the minimum boiler heat output should be achieved using a room thermostat. A bypass circuit with an automatic bypass valve must be fitted to systems with TRVs or two-port valves on all the radiators to ensure water flow.
1.12 ELECTRICAL SUPPLY
WARNING: This appliance must be earthed
Wiring external to the appliance MUST be in accordance with the current I.E.E. (BS7671) Wiring Regulations and any local regulations which apply.
The mains supply to the boiler and system wiring centre shall be through one common fused double pole isolator and for new heating systems, and where practical replacement installations, the isolator shall be situated adjacent to the appliance.
1.13 CONDENSATE DRAIN
The condensate drain provided must be connected to the drainage point on site. All condensate drainage pipework and fittings must be made of plastic.
IMPORTANT: The condensate drain pipework should be installed in accordance with BS6798.
The drain outlet on the boiler is sized for standard 21.5 mm overflow pipe. It is a universal fitting to allow use of different brands of pipework.
1.14 BOILER DIMENSIONS, SERVICES & CLEARANCES
The boiler connections are made on the boiler connection tails.
The following minimum clearances must be maintained for operation and servicing.
Additional space will be required for installation, depending upon site conditions.
Side and Rear Flue
a. Provided that the flue hole is cut accurately, e.g. with a core drill, the flue can be installed from inside the building where wall thicknesses do not exceed 600 mm.
Front Clearance
The minimum front clearance when built in to a cupboard is 5 mm from the cupboard door but 450 mm overall clearance is still required, with the cupboard door open, to allow for servicing.
* Bottom Clearance
Bottom clearance after installation can be reduced to 15 mm.
This must be obtained with an easily removable panel to provide the 100 mm clearance required for servicing.
For easy access to the pressure gauge a bottom clearance of 15 mm is required for a partial open door.
PRV Grommet![]()
IMPORTANT: Please ensure there is sufficient clearance either side and below the boiler, particularly from door hinges and the base of a cupboard, to allow the door to be opened to allow the pressure gauge to be checked. Also ensure there is sufficient access to the system filter for draining, cleaning and dosing. For guidance please see Ideal System Filter Installation Manual.
1.15 SYSTEM REQUIREMENTS – CENTRAL HEATING
a. The method of filling, refilling, topping up or flushing sealed primary hot water circuits from the mains via a temporary hose connection is only allowed if acceptable to the local water authority.
b. Antifreeze fluid, corrosion and scale inhibitor fluids suitable for use with boilers having aluminium heat exchangers may be used in the central heating system.
Section 1 – General
1.15 SYSTEM REQUIREMENTS – CENTRAL HEATING
a. The method of filling, refilling, topping up or flushing sealed primary hot water circuits from the mains via a temporary hose connection is only allowed if acceptable to the local water authority.
b. Antifreeze fluid, corrosion and scale inhibitor fluids suitable for use with boilers having aluminium heat exchangers may be used in the central heating system.
General
- The installation must comply with national and local regulations.
- Design the system for flow temperatures up to 80 C.
- The system components must be suitable for an operating pressure of 3 bar and a maximum temperature of 110°C.
The following components are incorporated within the appliance:
a. Circulating pump.
b. PRV, with a non-adjustable preset lift pressure of 3 bar.
c. Pressure gauge, covering a range of 0 to 4 bar.
d. An 8 litre expansion vessel, with an initial charge pressure o of 0.75 bar.
4. Makeup Water.
One of the following provisions must be made for replacing system water loss:
a. Manually filled vessel
The vessel must:
- Have a visible water level
- Be mounted at least 150 mm above the system’s highest point
- Connect through a non-return valve to the system
- Be at least 150 mm below the makeup vessel on the return side of the radiators
b. System prepressurisation.
The efficiency of the expansion vessel will be reduced in a pressurised system; a larger vessel or smaller system volume may be necessary. If the vessel’s capacity is not sufficient, an additional vessel must be installed on the return to the boiler.
If the system is not pressurised, the cold water capacity must not exceed 143 litres.
Guidance on vessel sizing is given in Table 4.
Water Flow Rate and Pressure Loss
| Max CH Output | kW | 24.2 |
| Water Flow Rate | l/min (gal/min) | 17.3 (3.8) |
| Temperature Differential | o C | 20 |
| Head available for System | m.w.g. (ft.w.g.) | 3.4 (11.1) |
| With Ideal System Filter Fitted & Valves | m.w.g (ft.w.g) | 3.1 10.2 |
Table 4 Vessel Sizing
| PRV setting bar | 3.0 | |
| Vessel charge pressure bar | 0.5 to 0.75 | |
| System pre-charge pressure bar | None | 1.0 |
| System volume | Expansion vessel | |
| (litres) | volume (litres) | |
| 25 | 2. | 2. |
| 50 | 3. | 4. |
| 75 | 5. | 6. |
| 100 | 6. | 7. |
| 125 | 8. | 9. |
| 150 | 9. | 11.0 |
| 175 | 11. | 13. |
| 190 | 12. | 14.0 |
| 200 | 13. | 15. |
| 250 | 16. | 18. |
| 300 | 19. | 22. |
| For other system volumes multiply by the factor across | 0.063 | 0.074 |
5. Filling
The system may be filled by the following method:
Where the mains pressure is excessive a pressure reducing valve must be used to facilitate filling.
a. Thoroughly flush out the whole system with cold water.
b. Fill and vent the system until the pressure gauge registers 1 bar and examine for leaks.![]()
c. Check that a 15 mm diameter pipe is correctly located and secured (using the clip supplied)
d. Check the operation of the PRV by raising the water pressure until the valve lifts. This should occur within 0.3 bar of the preset lift pressure.
e. Check no escape of water occurs except at the discharge point
f. Release water from the system until the minimum system design pressure is reached;
1.0 bar if the system is to be pre-pressurised.
1.16 SYSTEM REQUIREMENTS – DHW
Domestic Hot Water
- The DHW service must be in accordance with BS.5546 & BS6700.
- Refer to Table 1 for minimum and maximum working pressures. In areas of low mains water pressures the domestic hot water regulator may be removed from the
DHW flow turbine cartridge. The boiler will require the flow rate to be set to obtain a temperature rise of 35 C at the tap furthest from the boiler.
- The boilers are suitable for connection to most types of washing machine and dishwasher appliances.
- If the shower/mixer valve does not incorporate non-return valves the following must be followed:
a. The cold inlet to the boiler is fitted with an approved anti-vacuum or syphon non-return valve.
b. Hot and cold water supplies to the shower are of equal pressure. - Hard Water Areas
Where the water hardness exceeds 200 mg/litre (200 ppm), it is recommended that a proprietary scale reducing device is fitted into the boiler cold supply within the requirements of the local water company.
IMPORTANT: Provision must be made to accommodate the expansion of DHW contained within the appliance. If the DHW inlet contains a back flow prevention
device or non-return valve, e.g. a water meter, then a mini expansion vessel should be fitted between the device and the boiler in the cold inlet pipe.
Cold water, rising main and pipework in exposed areas need to be suitably lagged to prevent freezing.
Note DHW Expansion Vessel kit available from Ideal.
1.17 SYSTEM BALANCING
The boiler does not normally need a bypass but at least some radiators on the heating circuit, of load of at least 10% of the minimum boiler output, must be provided with twin lockshield valves so that this minimum heating load is always available.
Note. Systems incorporating zone valves which could completely cut off the flow through the system must also include a bypass.
Balancing
- Set the programmer to ON.
- Close the manual or thermostatic valves on all radiators, leaving the twin lockshield valves (on the radiators referred to above) in the OPEN position.

- Turn up the room thermostat and adjust the lockshield valve to give an uninterrupted flow through the radiator. These valves should now be left as set.
- Open all manual or thermostatic radiator valves and adjust the lockshield valves on the remaining radiators, to give around 20 o C temperature drop at each radiator.
- Adjust the room thermostat and programmer to
NORMAL settings.
Note. Systems incorporating zone valves which could completely cut off the flow through the system must also include a bypass.
1.18 WATER TREATMENT
CAUTION: Do not fill the heating system with softened water. Softened water could enhance corrosion.
Central Heating
The Logic range of boilers have an ALUMINIUM alloy heat exchanger.
IMPORTANT The application of any other treatment to this product may render the guarantee of Ideal Heating invalid.
The Ideal System Filter will aid against the build up of iron oxide debris, however the below water treatment is also recommended by Ideal Heating.
Ideal Heating recommend Water Treatment in accordance with the Benchmark Guidance Notes on Water Treatment in Central Heating Systems.
If water treatment is used, Ideal Heating recommend only the use of SCALEMASTER SM-1 PRO, FERNOX MBI, ADEY MC1, SENTINEL X100 or CALMAG CM100 inhibitors and associated water treatment products, which must be used in accordance with the manufacturers’ instructions.
- It is most important that the correct concentration of the water treatment products is maintained in accordance with the manufacturers’ instructions.
- If the boiler is installed in an existing system any unsuitable additives MUST be removed by thorough cleansing. BS7593:2019 details the steps necessary to clean a domestic heating system.
- In hard water areas, treatment to prevent lime scale may be necessary – however the use of artificially softened water is NOT permitted.
- Under no circumstances should the boiler be fired before the system has been thoroughly flushed.
For further information contact:
Fernox www.fernox.com Tel: +44 (0) 3301 007750
Sentinel Performance Solutions www.sentinelprotects.com Tel: +44 (0) 1928 704330
Scale aster Water Treatment Products www.scalemaster.co.uk Tel: +44 (0) 1785 811636
Calmat Ltd. www.calmagLtd.com Tel: +44 (0) 1535 210320
Adey www.adey.com Tel: +44 (0) 1242 546700
Section 2 – Installation
2.1 BOILER ASSEMBLY – EXPLODED VIEW
| 104 CH Return Valve | 119 Return Group Manifold | 218 Gasket – Burner | 324 Control Box Lid |
| 105 CH Flow Valve | 120 Flow Group Manifold | 219 Sump Clean Out Cover | 325 Control Box Front |
| 106 DHW Inlet & Outlet | 121 Plate Heat Exchanger | 223 Flue Manifold | 326 Blank Insert |
| 107 Filling Loop Pipe | 124 Flow Regulator | 224 Flue Manifold Top | 401 Heat Engine |
| 108 Pump Head | 127 Flow Sensor/Turbine | 227 Clamp Retaining Flue Turret | 503 Wall Mounting Bracket |
| 110 Auto Air Vent | 131 Water Pressure Switch | 228 Hose Condensate Internal | 504 Front Panel |
| 111 Diverter Valve Motor | 135 Pressure Gauge | 229 Condensate Trap | 505 Fascia |
| 112 Diverter Valve Body & Paddle | 203 Gas Cock | 231 Condensate Outlet Connection | 506 Bracket – Spark Generator |
| 113 Pressure Relief Valve | 205 Gas Valve | 239 Condensate Drain Tube | 507 Bracket – Expansion Vessel |
| 114 Pipe – PRV Outlet | 206 Pipe – Gas Injector | 302 PCB | |
| 115 Pipe – Flow | 211 Injector Assy | 306 Ignition/Detection Electrode | |
| 116 Pipe – Return | 214 Venturi | 308 Ignitor Unit | |
| 117 Pipe – Expansion Vessel | 215 Fan | 309 Thermistor | |
| 118 Expansion Vessel | 217 Burner | 313 Ignition Lead |
Note that item numbers are linked to the spares list

2.2 UNPACKING
The boiler is supplied fully assembled in Pack A.
Pack A Contents
- Boiler
- Hardware Pack Box
- Wall Mounting Plate
- These Installation/Users Instructions
- Boiler Warranty
- Wall Mounting Template
- PRV Pipe
- Ideal System Filter
Hardware Pack
Box Contents - 1x HP Box Dividers – 289 x 111 x 57.5 mm
- 1x Plug Male and Clip
- 1x Pipe DHW Outlet
- 1x Pipe Filling Loop
- 1x Valve DHW Inlet
- 2x Pipe CH Flow/Return
- 1x Valve Filling Loop
- 1x Valve CH G 3/4 x 22 mm Filling Loop
- 1x Cap Female
- 1x Valve CH G 3/4 x 22 mm
- 1x Pipe DHW Inlet
- 1x Nut G 1/2 x 16 Brass (Flat)
- 1x Gas Cock
- 1x PRV Clip
Accessory Bag Contents- 9x Washers*
- 2x Wall Plugs
- 2x Screws
- 1x Flue Clamp Screw

2.3 WALL MOUNTING TEMPLATE
IMPORTANT: Ensure the wall where the boiler will be is flat.
The wall mounting template is located on the internal protective packaging. The template shows the position of the fixing and rear flue centre holes for a standard installation.
- Secure the template into the required position. Ensure it is square by hanging a plumbing.
- If fitting a side flue, extend the flue centerline onto the side by 155 mm on a standard wall fix or 200 mm if using a stand-off bracket.
- Mark the following on to the wall:
a The selected group of wall mounting screw holes.
b. The centre position of the flue duct. Marking both the centre and the circumference of the flue duct. - Remove the template plate from the wall.

2.4 PREPARING THE WALL
WARNING: Ensure that, during the cutting operation, masonry falling outside of the building does not cause damage or personal injury.
1. Check all of the hole positions before drilling.
2. Cut the flue hole with a 127 mm core boring tool, ensure the hole is square to the wall.
3. Drill the 2 mounting holes with a 7.5 mm / 8 mm masonry drill and insert the plastic plugs provided.
4. Locate 2 No.14 x 50 mm screws in the wall mounting plate (one at each side, in any of the 3 holes provided at each side) and screw home. Ensure mounting bracket is
level.

2.5 FITTING THE WALL MOUNTING PLATE
- Screw the wall mounting plate to the wall using 2 wall plugs fitted previously with the 2 screws provided.
- Choose one of the 2 sets of slots in left and right bank. Ensure that at least one of the screws is fitted into a top slot and the mounting bracket is level.

2.6 MOUNTING THE BOILER
- Lift the boiler onto the wall mounting plate and locate it over the 2 tabs.

2.7 FLUES AND LOCATIONS
This installation & servicing manual must be read in conjunction with flue kit and fitting guide.
Telescopic horizontal flue 0.5 or 0.7 m Ideal part no.0.5 m 208169 0.7 m 208174 | Horizontal flue 0.6 or 0.8 m Ideal part no.0.6 m 208171 0.8 m 217442 | Flue extension 0.5 m, 1 m or 2 m Ideal part no.0.5 m 211037 1 m 203129 2 m 211038 | Flue deflector Ideal part no.208176 | Vertical flue terminal and connector Ideal part no.211039 |
Flue elbow 90° Ideal part no.203130 | Flue elbow 45° Ideal part no.203131 | Weather collar pitched roof Ideal part no.152258 | Weather collar flat roof Ideal part no.152259 |

WARNING:
- It is critical that products of combustion cannot re-enter the building
- The flue terminal must always have a free passage of air.
CAUTION:
- White sections of the flue must not be visible outside.
- Install a flue terminal guard where the flue terminal is less than 2 metres above a platform where persons can walk or come into contact with the terminal.
- Water is the only permitted lubricant for flue assembly.

2.8 FLUES AND LOCATIONS – CONTINUED
Section 2 – Flue Installation

B = Top Clearance
Top Clearance is measure from the top of the turret to the top of the hole where the flue terminates.
L = Effective flue length.
The effective length of the flue is measured from the edge of the turret to the flue terminal lip.
Flue systems that require extension kits must be installed with a 1.5° decline from the flue terminal back to the boiler.
A 1.5° decline can be achieved by designing the flue with a 26 mm rise per meter length of flue.
IMPORTANT INFORMATION
Install the flue in accordance to BS 5440:1 2008
Position the terminal, so the products of combustion do not cause a nuisance.
The terminal outlet duct must not be closer than 25 mm to combustible material.
The flue is secured in the wall using either sand and cement or heatproof silicone.
The flue must be supported by a bracket every metre of flue length and at every change of direction. Concealed flues must have inspection hatches no more than 1.5 metres from joints.
Where possible inspection hatches should be located at change of directions. Where this is not possible then bends must be viewable from both sides. Inspection hatches must be at least 300 mm²
| Horizontal | Maximum Effective Flue Length | |
| 24 kW | 9.0 metres | |
| 30 kW | 8.0 metres | |
| 35 kW | 6.0 metres | |
| Vertical | ||
| 24/30/35 kW | 7.5 metres | |
| Elbows increase resistance and have an effective flue length equivalence. The following table is an example. | ||
| Part | x | Resistance |
| 45° elbow | 2 | 1.2 metres |
| 90° elbow | 2 | 2.0 metres |
| Effective flue length | 3.2 metres | |
| Flue Terminal Positions | Min. Spacing* |
| 1.Directly below, above or alongside an opening. | 300 mm |
| 2.Below guttering, drain pipes or soil pipes. | 75 mm 25 mm* |
| 3.Below eaves. | 200 mm 25 mm* |
| 4.Below balconies or a car port roof. | 200 mm 25 mm* |
| 5.From vertical drain pipes or soil pipes. | 150 mm 25 mm* |
| 6.From an internal or external corner or a boundary alongside the terminal. | 300 mm 25 mm* |
| 7.Above adjacent ground, roof or balcony level. | 300 mm |
| 8.From a surface or a boundary facing the terminal. | 600 mm |
| 9.From a terminal facing a terminal. | 1200 mm |
| 10.From an opening in a car port into dwelling. | 1200 mm |
| 11.Vertically from a terminal on the same wall. | 1500 mm |
| 12.Horizontally from a terminal wall. | 300 mm |
| 13.Horizontally from an adjacent window | 600 mm |
| 14.Facing an opening into an adjacent building | 2000 mm |
| 15.At an angle to the boundary 90° 45° | 300 mm 600 mm |
| 16.Parallel to a boundary | 300 mm |
| 17.Below ground level — open light well a) Below ground b) Above floor level c) From side d) From facing surface | <1,000 mm 300 mm 300 mm 600 mm |
| *Only one reduction down to 25mm is allowed per installation. | |
2.9 HORIZONTAL FLUE POSITIONS

2.10 VERTICAL FLUE POSITIONS

2.11 FLUE SYSTEM DIMENSIONS
Flue Design
IMPORTANT:
- Flue lengths may vary, always measure flue lengths before cutting.
- Effective flue length and actual flue length are different measurements.
- Effective flue length is made up of the flue length equivalence and the flue sections between the turret, elbows and terminal.
- Actual flue length is the amount of flue needed to achieve the effective flue length, this includes insertions.

| Part | Actual Length | Insertion | Effective Length |
| 1 m flue length | 1 m | 30 mm | 970 mm |
| 1 m flue length | 1 m | 30 mm | 970 mm |
| 0.6 m flue terminal | 0.6 m | 30 mm | 570 mm |
| Total | 2.6 m | 90 mm | 2510 mm |
2.12 FITTING THE TURRET
- Ensure the condensate trap in filled with water
- Ensure the rubber seal is not damaged and fitted correctly on the appliance manifold.
- Firmly hold the flue and push the turret on until it has travelled 30 mm ensuring the flue has not rotated or moved forward.
- Push the turret into the manifold ensuring the upper plastic lip is flush with the top of the manifold.
- Fully engage the clamp location section into the manifold location hole and rotate down onto the flange.
- Use the securing screws to secure the clamp to the appliance.
- Ensure all sample points are accessible and all sample plugs and caps are fitted.

2.13 CUTTING THE FLUE
CUTTING HORIZONTAL FLUE TERMINAL (non-telescopic)
- Measure the required cut flue length (A + 44 mm)
- Measure from the outer terminal lip to the end of outer tube. Mark the required cut length (A + 44 mm) around the circumference of the outer tube and cut following the mark to ensure it is cut square.
- Mark and cut the inner tube 10 mm longer than the outer tube ensure the cut is square.
- Remove all burrs on the inner and outer tube and place a light chamfer on the inner tube to aid with assembly.

SETTING TELESCOPIC FLUE
- Measure the required length (A + 44 mm)
- Pull flue apart until the desired length is achieved ensuring the stop mark is not visible.
- Ensure both flue seams are at the top and the flue outlet terminal is uppermost.
- Drill a 3.5 mm hole through the small and large outer tube using the pilot hole on the large outer tube.
- Secure large and small outer tube using the screws provided.
- Seal the joint on the out tube with the tape provided.
- Fit the internal and external wall seals.

FITTING THE FLUE THROUGH THE WALL (Internal Installation)
- Measure the thickness of the wall.
- To this measurement add 14 mm.
- Make a mark on the flue shown as mark 1 (top right).
- Make another mark on the flue a further 14 mm in shown as Mark 2 above right.
- Fit the external wall seal (black) to the flue terminal ensuring it is fitted on the terminal outer lip seal.
- Fit the inner wall seal approximately 65 mm prior to Mark 2.

- Place the terminal end of the flue into the 127 mm core drilled centrally and slowly apply slight pressure and move the flue up or down or side to side. This will cause
the external wall seal to fold in and allow the flue to pass through the wall. - When the inner wall seal is flush against the wall pull back the flue until Mark 1 is flush with the inner wall surface.
- Hold the flue steady and push the inner wall seal towards the wall until Mark 2 is just visible.
FITTING THE FLUE THROUGH THE WALL
(External Installation)
- Follow steps 1 – 5 from above.
- Push the flue through the 127 mm core drilled hole from the outside
- Return inside the property and fit the inner wall seal to the flue.
- Pull the flue internally until Mark 1 is flush with the inner wall surface.
- Holding the flue in this position push the inner wall seal towards the wall until Mark 2 is just visible.
If Mark 1 is not flush with the inner wall surface and can be seen prior to the wall surface, then the external wall seal will have been dislodged and will require to be re-fitted. If this situation occurs, then please start the process from the beginning.
On completion the flue will be correctly installed as below.

IMPORTANT: Ensure no White flue is visible between the flue terminal and the wall.
A video showing how to correctly measure and fit a flue can be found by scanning the QR Code.
https://idealheating.com/logic-V4-literature-9
For the full range of FLUE AND ACCESSORIES please visit idealheating.com/flues
https://idealheating.com/logic-V4-literature-1
2.14 ASSEMBLING THE VERTICAL FLUE
Determine the correct height that the flue should terminate above the roof. If after calculating or measuring the overall flue height from the top of the boiler, it is necessary to cut both pipes of assembly A, then ensure they are cut equally leaving the inner flue tube longer than the outer air tube as supplied.
Ensure the cut pipe ends are free from any burrs.
- Position the roof flashing plate (supplied separately) over the hole cut in the roof and insert flue terminal from the roof end.
- Fit the vertical connector (supplied in kit) in accordance with the instructions provided.
- Secure the vertical connector by applying downward pressure on the connector.
- Position the clamp on the top face of the flue manifold and push it horizontally backwards. Locate both clamp lugs into the flue manifold and secure to the flue manifold with the M5 retaining screw.

- Push extension duct (if required (supplied separately)) into vertical connector.
Note. Ensure turret sample points are serviceable and all caps and plugs are fitted. Fill the condense trap/siphon with water. - If the last extension duct requires cutting, measure ‘X’, the distance between the duct (outer) and the terminal, and add 100 mm to this dimension. This gives the length of the last extension duct.
Note. Check the position of the inner flue duct relative to the outer duct on the assembled extension duct(s) and ensure the terminal flue duct is cut longer than the air duct to ensure engagement in the final flue duct seal. - Finally ensure the roof flashing plate is correctly sealed to the roof.

2.15 CONDENSATE DRAIN

This appliance is fitted with a symphonic 75 mm condensate trap system that requires filling before operating the appliance for the 1st time or after maintenance.
All condensate pipework should conform to the following:
a. Where a new or replacement boiler is being installed, access to an internal ‘gravity discharge’ termination should be one of the main factors considered in determining boiler location.
b. Plastic with push fit or solvent connections.
c. Internal plastic pipe work a minimum of 19 mm ID (typically 22 mm OD).
d. External plastic pipe must be a minimum of 30 mm ID (typically 32 mm OD) before it passes through the sleeved wall.
e. All horizontal pipe runs must fall a minimum of 52 mm per metre away from the Boiler.
f. External & unheated pipework should be kept to a minimum and insulated with Class “O” waterproof pipe insulation through freezing or otherwise.
g. All installations must be carried out in accordance to the relevant connection methods as shown in the “Condensate installation diagrams” & BS6798.
h. Pipework must be installed so that it does not allow spillage into the dwelling in the event of a blockage (through freezing)
i. All internal burrs should be removed from the pipe work and any fittings.
In order to minimise the risk of freezing, terminate the condensate drainage pipe using one of the following methods:
Internal Drain Connections
Route the condensate pipe by gravity to an internal, foul water discharge point.
Condensate Pump
When it is not practical to terminate the condensate pipe to an internal foul water discharge point using gravity, use a suitable pump recommended by the boiler or pump
manufacturer.
![]()
External Drain Connections
The use of an externally run condensate drainage pipe should only be considered after exhausting all internal termination options as described previously. An external system must terminate at a suitable foul water discharge point or purpose designed soak away. If an external system is chosen then the following measures must be adopted: The external pipe run should be kept to a minimum using the most direct and “most vertical” route possible to the discharge point, with no horizontal sections in which condensate might collect.
- For connections to an external soil/vent stack. Insulation measures as described should be used.

- When a rainwater downpipe is used, an air break must be installed between the condensate drainage pipe and the downpipe to avoid reverse flow of rainwater into the boiler should the downpipe become flooded or frozen.

- Where the condensate drain pipe terminates in a purpose designed soak away (see BS 6798) any above ground condensate drain pipe sections should be run and insulated as described above.

- Where the condensate drain pipe terminates over an open foul drain or gully, the pipe should terminate below the grating level, but above water level, to minimise “wind chill” at the open end. The use of a drain cover (as used to prevent blockage by leaves) may offer further prevention from wind chill.
Unheated Internal Areas
Internal condensate drain pipes run in unheated areas, e.g. lofts basements and garages, should be treated as external pipe.
Ensure the customer is aware of the effects created by a frozen condensate and is shown where this information can be found in the user manual.
Note. Please check current HHIC condensate discharge guidance available via the Gas Safe Registered Technical Bulletins List. Not Irish
Figure 1 – Connection of Condensate Drainage Pipe to Internal Soil & Vent Stack

Figure 2 – Connection of a Condensate Drainage Pipe Downstream of a Sink, Basin, Bath or Shower Water Trap to Internal Soil Vent Stack

Figure 3 – Connection of a Condensate Pump Typical Method (see manufacturer’s detailed instructions)

Figure 4 – Connection of Condensate Drainage Pipe to External Soil & Vent Stack

Figure 5 – Connection of a Condensate Drainage Pipe to an External Rainwater Downpipe (only combined foul/rainwater drain)

Figure 6 – Connection of a Condensate Drainage Pipe to an External Purpose Made Soak away.

2.17 CONNECTIONS & FILLING
CAUTION: Heating the isolation valves may damage the fibre seals
Fit each union with the fibre seals provided.
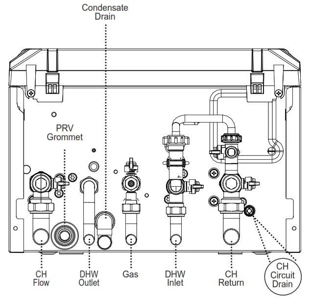
WATER CONNECTIONS CH
- Connect the CH flow service valve (black handle) and copper tail provided in the hardware pack to the threaded boss connection provided at the lower rear of the boiler.
- Connect the CH return valve (black handle) and copper tail.
IMPORTANT Install the Ideal system filter according to system filter installation and maintenance guide. Failure to install the system filter correctly will affect boiler warranty.
WATER CONNECTIONS DHW
- Fit the DHW inlet service valve (blue handle) and copper tail to the threaded boss connection ensuring the seal provided is correctly located.
- Fit the DHW outlet pipe tail to DHW outlet connection, ensuring the seal provided is correctly located.
- Fit the filling loop provided between the DHW inlet valve and the CH return valve.
CAUTION: The gas service cock is sealed with a non-metallic blue fibre washer, which must not be overheated when making capillary connections.
GAS CONNECTION
For details of the position of the gas connection:

The domestic hot water flow rate is automatically regulated to a maximum:
| kW | L/m | gpm |
| 24 | 9.9 | 2.2 |
| 30 | 12.4 | 2.8 |
| 35 | 14.5 | 3.2 |
PRV DRAIN
The PRV connection, located at the bottom left-hand side of the boiler, comprises an open ended grommet.
IMPORTANT
The grommet is designed for 15 mm Ø copper pipe.
If possible, preassemble and solder the pipework before Installing.
If this is not possible the soldering must be more than 100 mm away from the grommet. Make sure the grommet is not damaged by the heat.
Install the condensate pipe as follows:
- Make sure that the 15 mm Ø copper pipe is cut perpendicular to the pipe.
- Make sure that the pipe is not damaged, and clean and free from burs.
- Using pliers put the clip over the grommet. Continue to hold the clip open.
https://idealheating.com/logic-V4-literature-10
Note. Do not release the clip until step 5 (see below). - Push the copper pipe into the grommet (minimum of 15 mm). Make sure that the pipe is parallel with the grommet.
- Below the stop mark on the grommet open the pliers to release the clip.
- Make sure that the clip and pipe are attached correctly.
- Make sure that the PRV discharge pipe is correctly attached. Make sure that the angle of the pipe run is sufficient to remove discharged water.
WARNING:
Make sure that the water or steam (from the boiler) is discharged safely. Hot water or steam is dangerous and can cause serious injury, and damage to electrical systems.

A purpose made PRV drain pipe is provided with the boiler to allow safe discharge through a wall to the outside of the building. This is particularly relevant to ‘high rise’ installations but can be used for all installations.

FILLING
WARNING: Protect electrical connections from water
- Connect the filling loop, ensuring the washers are in place.
- Loosen the auto air vent dust cap.

- Check the following isolation handles on water connections are in the horizontal filling position (blue handle on DHW inlet and black handle on CH return C ).
- Position the CH flow isolation valve handle in the vertical position to enable filling.
- Slowly turn the filling loop handle (green B ) to the horizontal open position until the pressure gauge reads between 1 to 1.5 bar.
- Turn the filling loop handle (green B ) back to the closed (vertical) position.
- Turn the CH Return handle (black C ) and the DHW Inlet handle (blue ) to the open (vertical) position.
- Disconnect the filling loop from the DHW Inlet valve and fit the grey cap to the open end.
- Fit the Plug to the free end of the filling loop.
Filling System Positions shown
Top Up
- Connect the filling loop, ensuring the washers are in place.
- Loosen the auto air vent dust cap.

- Turn the DHW Inlet handle (blue ) to the horizontal position.
- Slowly turn the filling loop handle (green B ) to the horizontal open position until the pressure gauge reads between 1 to 1.5 bar.
- Turn the handle (green B ) on the filling loop back to the closed (vertical) position.
- Turn the DHW Inlet handle (blue ) to the open (vertical) position.
- Disconnect the filling loop from the DHW Inlet valve and fit the grey cap to the open end.
- Fit the Plug to the free end of the filling loop.
https://idealheating.com/logic-V4-literature-2
Top Up Pressure Positions shown

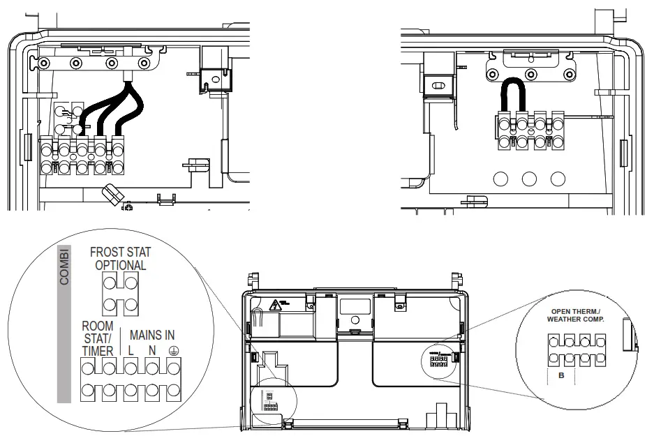
2.19 ELECTRICAL CONNECTIONS
WARNING: This appliance must be earthed A mains supply of 230 V ~ 50 Hz is required.
3 A fuse required. All external controls and wiring must be suitable for mains voltage.
Wiring external to the boiler must follow current I.E.E (BS7671) wiring regulations and local regulations.
Wiring should be 3 core PVC insulated cable, not less than 0.75 mm 2 (24 x 0.2 mm), and to BS6500 Table 16.
Connection must be made in a way that allows complete isolation of the electrical supply. The means of isolation must be accessible to the user after installation.
2.20 INSTALLER WIRING
WARNING: Ensure the supply cord is not damaged The boiler must be connected to a permanent live power supply.
Accessing the installer wiring
- Isolate the mains supply from the boiler.
- Remove the front panel.
- Swing down the control box into the service position, unclip and swing back the installer wiring cover and latch into the retaining clips.
- Carefully pierce the grommet, release the cable clamp via the screws and pull wiring through.
- Connect external wiring to the appropriate connections securely and then refit the cable clamp.
Once any wiring is completed, to secure the boiler, reverse the order above.
The link wire on the 230 V installer room stat/timer connection gives a demand in conjunction with the timer option plug inside the timer option cover. This is located on
the front of the control box.
Installer Connections (LHS)………………….Installer Connections (RHS)

2.21 EXTERNAL WIRING
External Controls – 230 V 50 Hz
Wiring a 230 V Programmable Room Stat (Diagrams A & C) or 230 V Timer & Room Stat (Diagram B).
- Remove the link wire from the room stat/timer connection.
- Connect the external cable from the room stat/timer across this connection. If a general live connection is used for the room stat or timer then connect this to the fused spur, on the load side (see Diagram C).
- If the room thermostat has compensation and requires a neutral connection, make this connection to the fused spur, on the load side.
Optional External Controls – Extra Low Voltage
Wiring Panther Programmable Room Stat (Diagram D).
- Remove the timer link plug inside the timer option cover, located on the front of the control box.
- Unclip the timer link socket from the aperture on the rear of the control box, locate the plug on the same harness branch and connect these together.
- Using the rubber bung located adjacent to these connections, insert it into the open aperture.
- Connect the external cable from the Panther Programmable Room Stat on the RHS of the boiler installer connections, labelled OpenTherm.
Frost Protection
If parts of the pipework run outside the house or if the boiler will be left off for more than a day or so then a frost thermostat should be wired into the system.
This is usually done at the programmer, in which case the programmer selector switches are set to OFF and all the other controls MUST be left in the running position.
The frost thermostat should be sited in a cold place, but where it can sense heat from the system.
Wiring a system frost thermostat, see diagrams E. Wire the frost thermostat across the two connections as shown.
If the boiler is installed in a garage it may be necessary to fit a pipe thermostat, preferably on the return pipework.
| Diagram A: 230 V Programmable Room Stat | Diagram B: 230 V Timer & Room Stat | Diagram C: 230 V Programmable Room Stat Use of Live from Isolator | Diagram D: Panther Programmable Room Stat | Diagram E: 230 V Optional Frost Stat |
![]() | ||||
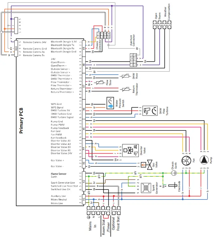
2.22 WIRING DIAGRAM

| Key | |
| bak: Black | g/y: green/yellow |
| gee: Grey | o: orange |
| r: Red | p: pink |
| g: green | v: violet |
| b: blue | y: yellow |
| br: brown | w: white |
| g/y: green/yellow | |
2.23 REPLACING PRE-FITTED MAINS CABLE
If it is necessary to use an alternative mains cable to the one pre-fitted then use the following guide.
Replacement wiring should comply with notes and be carried out by a qualified person.
![]()
- Isolate the mains supply to the boiler.
- Remove the front panel.
- Swing the control box down into the service position, unclip and swing back the installer wiring cover to latch into the retaining clips.
- Unscrew the L N & E connections & remove wires from connector.
- Remove the mains cable by pulling back through the grommet.
- Route the replacement through the grommet and re-fit.
- Close the installer wiring cover ensuring that it is located correctly and that the cable is retained into the strain relief as shown.

- Swing the control box back up into the operating position and re-fit the front panel ensuring a good seal is made.
The earth connection should be longer than the current carrying connections. If the cord anchorage slips, the current carrying wires become taut before the earth.
2.24 COMMISSIONING AND TESTING
A. Electrical Installation
WARNING: Electrical safety checks should be carried out by a qualified person.
Complete preliminary electrical system checks.
General
The combustion for this appliance has been checked, adjusted and preset at the factory for operation on the gas type defined on the appliance data plate.
Do not adjust the air / gas ratio valve.
Check the following:
- The boiler has been installed in accordance with these instructions.
- The integrity of the flue system and the flue seals, as described in the Flue Installation Section.
Proceed to put the boiler into operation as follows:
- Check the operational gas inlet pressure.
- Set up the boiler to operate at maximum rate by opening hot tap to maximum flow.
- With the boiler operating in the maximum rate condition, check that the operational gas pressure at the inlet gas pressure test point complies with the requirements.
- Ensure that this inlet pressure can be obtained with all other gas appliances in the property working.
![]()
B. Gas Installation
WARNING: Open windows, doors and extinguish flames before starting the next steps. Do not smoke.
- The whole of the gas installation, including the meter, should be inspected and tested for tightness and purged in accordance with the recommendations of BS.6891.
- Purge air from the gas installation by the approved methods only.

IMPORTANT: A condition of the manufacturer’s warranty is that Benchmark commissioning process is completed. The flow chart is provided on page 67.
2.25 INITIAL LIGHTING
Legend
| A. Domestic Hot Water Temperature Knob | I. Gas Service Cock |
| B. Central Heating Temperature Knob | J. DHW Inlet Valve |
| C. Hot Keys | K. CH Return Isolating Valve |
| D. Boiler Status Display | L. DHW Outlet |
| E. Burner On indicator | M. Filling Loop Valve |
| G. CH Flow Isolating Valve | N. Pressure Gauge |
| H. Gas Inlet Pressure Test Point |

CAUTION: Do not operate the appliance before it has been fully vented of air. If it is necessary to operate the pump, do so with the gas service cock turned off.
The boiler incorporates a fan overrun cycle which must not be interrupted by isolation of electricity supply.
- Check that the system has been filled and that the boiler is not airlocked.
- Ensure the automatic air vent cap is open.
- Refit the boiler front panel.

- Check that the drain cock is closed and that the CH and DHW isolating valves (G,K & J) are OPEN.
- Press the Mode button until a cross is shown going through both tap and radiator icons (boiler off).
- Switch the electrical supply OFF.
- Check that the gas service cock (I) is OPEN.
- Slacken the screw in the inlet pressure test point (H) and connect a gas pressure gauge via a flexible tube.
- Switch the electricity supply ON and check all external controls are calling for heat.

CENTRAL HEATING - Press the Mode Button (C) until there is no longer a cross through the Radiator icon. Turn the Central Heating Temperature Knob clockwise until a target of 80°C is
shown. The boiler control will now go through its ignition sequence until the burner is established. - If the boiler does not light then after 5 attempts the boiler will lock out and display “Ignition Lockout”. Press the Restart Button. The boiler will repeat its ignition sequence. If Restart occurs 5 times within 15 minutes then “Too Many Restarts” will be shown.
When the burner is established the flame symbol (E) will be shown on the display and the current flow temperature will be shown in the large digits underneath the radiator symbol.;
DOMESTIC HOT WATER - With the boiler firing, rotate the DHW Temp Knob (A) clockwise until a target of 65°C is shown and fully open a DHW tap. The boiler should continue to run and the current DHW temperature will be shown in the large digits underneath the tap symbol.
- Ensure that with the boiler operating, the dynamic gas pressure is able to obtain maximum output.

IMPORTANT The gas input to the burner is regulated by the gas valve according to the air flow produced by the fan. It is NOT user-adjustable. Any interference to sealed settings on the gas valve will adversely affect operation and render our warranty void.
- Turn off the DHW tap.
- Remove gas pressure gauge, tighten inlet pressure test point and check for gas tightness.
2.26 USER INTERFACE COMMISSIONING
When the boiler is powered up for the first time, you will have the options to set the contact details for boiler servicing and to vent the system.

2.27 CHANGING BOILER OPERATING MODE
The boiler mode is displayed by default, to change the mode, simply press mode and select the desired mode.

2.28 PREHEAT FUNCTION
Preheating will occur when the flow Temperature drops 15°C below the DHW target.
It will run until the flow temperature reaches 5°C below the DHW target or until 3 minutes has passed.
The preheat function will only run for a maximum of once in 30 minutes.

2.29 INTELLIGENT PREHEAT FUNCTION
If Preheat is switched to Timed then preheating will only occur when required, rather than all the time. The boiler learns the usage patten for DHW over a week and then
times the DHW preheat to only operate during the usage periods from the previous week.
This improves the speed of response for DHW whilst also reducing the use of gas.

2.30 MENU OPERATION
The menu option contains a list of attributes that show the operating state of the boiler. The installer should scroll down the menu and press enter to select the desired option.

Note. For Diverter Valve Mid Position, press down until mid position highlighted.
2.31 SETTING MAXIMUM AND MINIMUM RATES
Maximum DHW and Minimum Rate can be accessed through the menu option.

The boiler will run at Maximum DHW Rate for 10mins as long as there is sufficient cooling load

The boiler will run at Minimum Rate for 10mins If the return temperature is under 40°C then the fan will run for 30s at maximum rate before ramping down over 60s to minimum rate.
If the return temperature is above 40°C then the fan will ramp down over 60s to minimum rate.
2.32 GENERAL CHECKS
Make the following checks for correct operation in:
- Fully open all DHW taps in turn and ensure that water flows freely from them.
The display should show:
- Close all taps except the furthest one from the boiler and check that the boiler is firing at maximum rate. This is factory set to give a DHW temperature rise of approximately 35 o C at the flow rate stated on page 10 under “operation”.
- Reduce the DHW draw-off rate to about 3 l/min (0.7 gpm) and check that the boiler modulates to deliver DHW at approximately 65 o C.
- Close the DHW tap and check that the main burner extinguishes. The pump should overrun for 60 seconds. When the pump stops the display should show:

Note. On systems in excess of 2 bar inlet pressure a water pressure governor may be required to prevent water noise.
CH & DHW MODES
- Ensure that the CH external controls are calling for heat.
- Fully open a DHW tap and check that hot water is delivered.
The display should show:

Gas Rate
- Check the boiler gas rate when the boiler is at full DHW output.
- Check at the gas meter, with no other appliance in use. Refer to Tables 2 & 3 for gas rates.
- Close the DHW tap.
- Set the central heating external controls to OFF. The burner should go off and the pump continue to run for two minutes.
The display should show:
- Check the correct operation of the timer (if fitted) and all other system controls. Operate each control separately and check that the main burner responds.
WATER CIRCULATION SYSTEM
- With the system cold, check that the initial pressure is correct to the system design requirements. For pre-pressurised systems, this should be 1.0 bar.
- With the system hot, examine all water connections for soundness. The system pressure will increase with temperature rise but should not exceed 2.5 bar.
- With the system still hot, turn off the gas, water and electricity supplies to the boiler and drain down to complete the flushing process.
Note. A flushing solution should be used during the flushing procedure. Flushing solutions: Fernox Super floc, Sentinel X300 (new systems) or X400 (existing systems).
- Refill and vent the system, add inhibitor, clear all air locks and again check for water soundness.
- Reset the system initial pressure to the design requirement.
- Balance the system.

- Check the condensate drain for leaks and check that it is discharging correctly.
- Finally, set the controls to the User’s requirements.
The pump will operate briefly as a self-check once every 24 hours in the absence of any system demand.
WATER TEMPERATURES
Temperatures can be selected using the CH and DHW thermostats.
| Temperature Knob Setting | CH Flow Temp °C | DHW Outlet °C |
| Max | 80 | 65 |
| Min | 30 | 40 |
Due to system variations and seasonal temperature fluctuations DHW flow rates/temperature rise will vary, requiring adjustment at the draw off tap : the lower the rate the higher the temperature, and vice versa.
2.33 RESTART PROCEDURE

2.34 HANDING OVER
After commissioning the system, hand it over to the householder by the following actions:
- Hand the Instructions to the householder and explain their responsibilities under the relevant national regulations.
- Explain and demonstrate the lighting and shutting down procedures.
- Explain how to operate the boiler and system controls.
- Ensure the greatest possible fuel economy consistent with the household requirements of both heating and hot water consumption.
- Explain the precautions necessary to prevent damage to the system and to the building, in the event of the system remaining inoperative during frosty conditions.
- Explain the function and the use of the boiler heating and domestic hot water controls.
- Explain that due to system variations and seasonal temperature fluctuations DHW flow rates/temperature rise will vary, requiring adjustment at the draw off tap.
It is therefore necessary to draw the user’s attention to the section in the Users Instructions titled “Control of Water Temperature” and the following statement:
“Additionally, the temperature can be controlled by the user via the draw-off tap: the lower the rate the higher the temperature, and vice versa”. - Explain the function of the boiler fault mode.
- Explain and demonstrate the function of timers and temperature controls, radiator valves etc., for the economic use of the system.
- If a timer is fitted draw attention to the timer Users Instructions and hand them to the householder.
- Explain that the gauge behind the drop down door, indicates the central heating system pressure and that if the normal COLD pressure of the system is seen to decrease over a period of time then a water leak is indicated. Explain the re-pressurizing procedure and if unable to re-pressurize or if the pressure continues to drop a registered local heating installer should be consulted.

- Explain boiler restart procedure.

- After installation and commissioning please complete the Commissioning Checklist before handover to the customers

IMPORTANT - A comprehensive service should be carried out annually.
Stress the importance of regular servicing by a Gas Safe Registered Engineer. - Inform the householder of the boiler warranty and the requirement to register it to receive the full benefit.
Section 3 – Servicing
3.1 SERVICING SCHEDULE
WARNING: Servicing can only be carried out by Gas Safe Registered Engineers Always turn OFF the gas supply at the gas service cock, and switch OFF and disconnect the electricity supply to the appliance before servicing
Combustion testing must be carried out by a competent person using a combustion analyzer conforming to BS EN 50379-3:2012.
To ensure the continued safe and efficient operation of the appliance, it is recommended that it is checked at regular intervals and serviced as necessary. The frequency of servicing will depend upon the installation condition and usage but should be carried out at least annually.
For the latest copy of literature, visit our website idealheating.com.
PRELIMINARY INSPECTION
- Light the boiler and carry out a pre-service check, refer to the fault finding chart.
- Check the flue terminal (and terminal guard if fitted) for damage and obstruction.
- Check combustion by connecting the flue gas analyzer to the flue gas sampling point as shown in the diagram and measure CO and CO2 at maximum rate. Set the boiler to Maximum and Minimum heat inputs.
If the CO / CO2ratio is greater than 0.004 please proceed to “Cleaning Procedure”.
If the CO / CO2 ratio is less than 0.004 please proceed to “Check Procedure”.
CHECK PROCEDURE
- Check all water and gas joints for signs of leakage. Remake any suspect joints ensuring a gas tightness check is carried out if applicable and the water system is correctly refilled, vented and re-pressurised.
- Proceed to “IMPORTANT”.
IMPORTANT
- If, for any reason, the condensate trap has been removed, ensure the trap is refilled with water before re-assembling.
- After completing the servicing or exchange of components, always ensure all gas valve connections are gas tight with a gas soundness check up to the gas control valve.
- When work is complete the front panel MUST be correctly refitted, ensuring that a good seal is made.
- Clean the Ideal system filter, refer to system filter installation and maintenance guide for correct method of servicing.
- Complete the service section in the Benchmark Commissioning Checklist.
GENERAL
During Servicing, and after any maintenance or change of part of the combustion circuit, the following must be checked:
- The integrity of the flue system and the flue seals.
- The integrity of the boiler combustion circuit and the relevant seals.
- The operational (working) gas inlet pressure at maximum rate.
- The gas rate.
- The combustion performance.
CLEANING PROCEDURE
- Remove the casing.
- Visually check the appliance for signs of leakage.
- Remove the flue manifold.
- Remove the fan.
- Remove the burner.
- Refit the sump outlet cover.
- Clean the heat exchanger by pouring warm water across the whole heat engine to flush deposits taking care to avoid pouring water over the electrode.
- Check the electrode for damage and clean using an abrasive cloth. Check and adjust the spark gap. Replace the electrode if damaged.
- Clean out the sump outlet to ensure any debris is removed.
- Remove and clean the condensate trap and re- prime the trap before re-installing.
- Check the DHW filter for blockage.
- Re-assemble the components in reverse order.
- Clean the Ideal system filter. Refer to the system filter installation and maintenance guide for the correct method of servicing.
- Carry out post service checks on the combustion circuit. See General below.
- Check the system water quality in accordance with BS7593:2019.
- Complete the service record in the Benchmark section.
Do not operate the boiler if the front panel is not fitted.

3.2 REMOVAL / REPLACEMENT OF COMPONENTS
WARNING: Do not operate the boiler without a front panel fitted
When replacing any component.
- Isolate the electricity supply.
- Turn off the gas supply.
- Remove the boiler front panel.

- Swing the control box down into its servicing position. After removing / replacing any component.
- Ensure all gas valve connections are gas tight with a gas soundness check up to the gas control valve.
- Ensure all water connections are tight.
- Test the appliance for correct and safe operation.

Notes.
- In order to assist fault finding, the control panel has an LCD diagnostic display. The key to boiler fault conditions is shown in Section 4.
- In order to replace components in Sections 3.12, 3.15 and 3.21-3.32, it is necessary to drain the boiler.

3.3 DRAINING THE BOILER
![]()
CENTRAL HEATING CIRCUIT
- Close all the CH water isolating valves on both the flow and return.
- To drain the primary heat exchanger circuit: Open the drain valve and attach a length of hose to the CH drain point.
- After replacing any component on the boiler, remove the hose, close the drain valve and open all system isolating valves.
- Depressurize by reconnecting the filling loop, check for leaks before proceeding to check operation of the boiler.;
- Disconnect filling loop.
![]()
DOMESTIC HOT WATER CIRCUIT
- Close all the DHW water isolating valves on the boiler inlet.
- To drain the domestic hot water circuit: As there is no direct drain for the domestic hot water circuit, depending on the location of the boiler, opening the lowest hot water tap may drain this circuit. However it must be noted that some residual water will be released during replacement of components.
- After replacing any component on the boiler, open isolating valve.

3.4 BOILER FRONT PANEL REMOVAL / REPLACEMENT
REMOVAL
- Loosen the two screws retaining the front panel.
- Pull the two clips down to disengage and pull panel forward and upward and remove.

REPLACEMENT
4. Hook the panel onto the top retaining clips.
5. Push the panel until the 2 bottom spring clips engage ensuring the 2 knobs and 4 buttons line up with the holes in the front panel.
6. Re-tighten the two retaining screws.

3.5 FLUE MANIFOLD REMOVAL/REPLACEMENT
- Remove the two sump cover retaining screws.
- Remove the sump cover.
- Lift the manifold upwards to clear the sump.
- Move the manifold to the left and pull down to remove.

3.6 FAN AND VENTURI ASSEMBLY REMOVAL AND CLEANING
- Disconnect the electrical leads from the fan.
- Remove the clip from the gas control valve outlet and ease the pipe upwards. Rotate and then ease down to remove.
- Remove the extended nut on the fan mounting bracket.
- Lift off fan and Venturi assembly.
- Undo the two M4 screws and release the nozzle assembly.
- Inspect the injector for blockage or damage.
- Clean the outside of the injector and use a small flue brush to clean the injector hole. Do not use anything abrasive such as a file.
- Remove the screw and twist Venturi anti-clockwise to remove Venturi assembly, noting the orientation of the Venturi in relation to the fan body.
- Inspect fan outlet sealing gasket and replace if necessary.
- Ensure the Venturi is free from dust/debris.
- Check the ‘O’-rings are fitted correctly to the gas outlet pipe replacing if any damage is witnessed.

3.7 BURNER REMOVAL AND CLEANING
![]()
- Remove the 2 burner front fixing screws and the 2 rear extended nuts.
- Lift and pull forward the burner from the combustion chamber by holding the burner with two finger in the air inlet duct and your thumb on the top of the burner.
- Tilt the burner towards yourself so that it raises to the vertical position.
Lift the burner approximately 5 to 10 mm from the heat engine and then pull forward by the same amount.
https://idealheating.com/logic-V4-literature-3 - Pull the burner out from the left hand side of the boiler once it is in the vertical position.

- Carefully brush the ceramic burner with a soft non metallic bristle brush.

3.8 CLEANING THE HEAT EXCHANGER
- Replace the sump cover prior to the water flush process.
- Thoroughly flush the heat exchanger by pouring water into the top of the combustion chamber ensuring the full surface of the heat exchanger is cleaned. Avoid pouring water over the electrode.
- Remove the sump cover and clean loose deposits from the sump.

- Inspect the ignition/detection electrode. Ensure that it is clean and in good condition – replace if necessary.
- Check that the ignition gap is correct.


3.9 IGNITION / DETECTION ELECTRODE REPLACEMENT / INSPECTION
![]()
- Remove the fan.
- Remove the flue manifold.
- Remove the burner.

- When servicing the boiler inspect the condition of the electrode and check the dimensions shown. If there is damage to the electrode continue to follow steps below
for replacement. - Unplug the ignition lead from the electrode.
- Remove the earth lead from the electrode.
7. Remove the 2 screws holding the electrode to the combustion chamber.
8. Remove the electrode.
9. Fit the new electrode, using the new gasket supplied. Check dimensions as shown.
![]()

3.10 CLEANING THE CONDENSATE TRAP
https://idealheating.com/logic-V4-literature-3
- Pull off the rubber pipe at the sump drain.
- Turn the trap clockwise to disengage and lift to remove.
- Clean and fill trap with water.

3.11 BURNER INJECTOR REPLACEMENT
![]()
3.12 DHW FILTER & DHW FLOW REGULATOR CLEANING/REPLACEMENT
![]()
- Isolate the DHW system.

- Turn the housing anti clockwise and pull forward to remove the cartridge. Be prepared for some water release.
- Using a pair of pliers, pull out the plastic filter/flow regulator.
- Clean or replace filter as necessary.

3.13 EXTERNAL SYSTEM FILTER CLEANING GUIDE
- Switch off the boiler (isolate electrical supply).
- Close the inlet/outlet valves. Remove magnet and vent.
- Remove drain valve cap, open drain valve and vent.
- Open inlet valve slowly and flush out filter until water runs clear.
- Close the inlet valve. Close the drain valve.
- Reinsert the magnet and replace the drain valve cap.
- Open inlet/outlet valves, refill system and vent.
- Restart the boiler.

3.14 BURNER REPLACEMENT
![]()
https://idealheating.com/logic-V4-literature-3
3.15 RETURN THERMISTOR REPLACEMENT
- Isolate and drain down the boiler.
- Remove the clip from the pump housing and remove the thermistor.
- Disconnect the electrical lead from the thermistor.
- Reconnect the electrical lead to the new thermistor and reassemble, ensuring that the thermistor is fully engaged and the clip is correctly located.

3.16 SPARK GENERATOR REPLACEMENT
- Disconnect the leads from the spark generator.
- Gently push up the generator to release the bottom clip from the gas valve mounting bracket.
- Lift the spark generator up and out of the bottom retaining location point.

- Fit the new spark generator and reassemble, ensuring that the the earth lead is replaced.

3.17 GAS CONTROL VALVE REPLACEMENT
![]()
- Disconnect and remove the condensate trap and rubber connector.

- Unplug the electrical lead connection from the gas control valve.
- Remove the outlet gas valve clip and slide the pipe upwards.
- Undo the gas inlet pipe union at the inlet to the gas valve.
- Undo the two screws fixing the gas valve to the chassis base and lift the gas valve upwards.
- Fit the new gas control valve ensuring that the ‘O’ ring and sealing washer are in place and reconnect gas and electrical connections.
- Refit the trap.
- Ensure all gas valve connections are gas tight with a gas soundness check up to the gas control valve.

3.18 DIVERTER VALVE ACTUATOR REPLACEMENT
![]()
To remove the motor:
- Remove the condensate trap.

- Press Down on the hot keys until the diverter valve mid position is highlighted. Ensure that the diverter valve is in mid position.

- Place a flat bladed screwdriver in the actuator slot provided and ease out the actuator.
- Disconnect the electrical plug from the motor.
- Fit the new motor ensuring the arm is correctly engaged in the metal fork and reassemble ensuring the condensate trap is refilled with water. Reconnect the electrical plug to the motor.

3.19 CONDENSATE TRAP REPLACEMENT / CLEANING
![]()
WARNING: It is critical that the correct boiler size and fuel type is entered in to the boiler.
CAUTION: Fit the earth strap provided with the PCB to your wrist and secure to a suitable earth on the boiler chassis.
3.20 PRIMARY PCB REPLACEMENT
![]()
- Carefully release the four retaining clips and remove control box cover.
- Unplug all lead connections to the PCB.
- Spring out the four side retaining clips and pull the PCB upwards to clear the corner retaining posts.
- Fit the new PCB.
- Re-connect all plug connections.
- Reassemble.
- Turn power on, display shows:
![]()
Press Yes and the following screen is shown:
![]()
Press Next until [Logic Max] is shown. Press Select.
![]()
Press Next until correct Boiler type is shown:
Combi, Heat, System UK or System IE Press Select to confirm & the following screen is shown:
![]()
Press Select to confirm & the following screen is shown:

Press Yes to finish

3.21 DHW FLOW TURBINE SENSOR REPLACEMENT
![]()
- Drain the DHW system.

- Pull off the electrical connection.

- Using a suitable tool, lift and remove the retaining clip.
- Use the clip to ease the turbine sensor from its housing.
- Reassemble with new sensor.

3.22 PRESSURE GAUGE REPLACEMENT
![]()
- Drain the boiler.

- Remove the boiler front (see section 3.4), lower the control panel and remove the control box cover.
- Ensuring there is no pressure in the system unclip the C clip from the flow pipe port and remove the capillary connection together with ‘O’ ring.
- Releasing the two retaining clips on the pressure gauge ease the pressure gauge through the front of the control panel.
- Fit the new pressure gauge from the front of the lower control panel ensuring correct orientation. Locate push fit connection into flow pipe ensuring ‘O’ ring in place and secure with the ‘C’ clip.
- Refill the boiler.


3.23 PRV REPLACEMENT
![]()
- Drain the boiler.

- Remove the trap and rubber pipe.
- Pull out and remove the clip retaining the PRV.
- Lift out the PRV/pipe assembly.
- Remove the pipe and transfer to the new PRV.
- Reassemble ensuring the retaining clip is correctly fitted.
- Check the operation of the PRV by raising the water pressure until the valve lifts. This should occur within 0.3 bar of the preset lift pressure.
- Check no escape of water occurs except at the discharge point

- Release water from the system until the minimum system design pressure is reached; 1.0 bar if the system is to be pre-pressurised.

https://idealheating.com/logic-V4-literature-3

3.24 PUMP AUTOMATIC AIR VENT REPLACEMENT
- Drain the boiler.
- Remove the expansion vessel.
- Firstly, increase access area by disconnecting the 22 mm pipe connection at top of pump manifold and bottom of heat exchanger and remove pipe.
- The automatic air vent head is retained in the pump body with a bayonet connection. The air vent head and float assembly is removed by turning the head anti-clockwise (viewed from above) and pulling upwards.
- Reassemble. Ensure the air vent head ‘O’ ring seal is fitted.
- Ensure the air vent cap is loose.
- Refill the boiler. Check for leaks around the new air vent joint.
![]()

Section 3 – Servicing
3.25 REPLACEMENT OF DHW THERMISTOR
- Isolate the DHW system.
- Remove the retaining clip and extract the thermistorBe prepared for some water release.
- Disconnect the wiring harness.
- Fit the replacement thermistor and reassemble.
- Re-establish the DHW supply, turn on a hotwater tap checking for leaks.

3.26 DHW PLATE HEAT EXCHANGER REPLACEMENT
- Drain the boiler.

- Remove condensate trap.

- Remove the 2 hex screws securing the plate heat exchanger to the composite housings.

- Manoeuvre the plate heat exchanger out of the top LH or centre of the controls area. Be aware of any water spillage.
- Fit the new plate heat exchanger, using the new ‘O’-rings supplied.
Ensure that the depressions are on the bottom prior to fitting. - Reassemble.
- Refill the boiler.

- Check that the boiler operates in both DHW & CH modes.

3.27 DIVERTER VALVE BODY ASSEMBLY REPLACEMENT
SERVICING
To remove the valve body assembly:
- Drain the boiler.

- Remove the condensate trap.

- Remove the electrical plug from the divertor valve.
- Place a flat bladed screwdriver in the diverter valve motor body slot provided and ease out the motor.

- Remove the return thermistor electrical connection.

- Remove the pump electrical connections.

- Remove DHW Turbine electrical connection.

- Remove the DHW plate heat exchanger (note orientation).

- Loosen the nut above pump and rotate the pipe.
- If required remove expansion vessel connection hose.

- Remove the DHW inlet and CH return connection situated beneath the boiler.
- Remove the four torx head screws fixing the return manifold to the boiler sheet steel base.
- Lift the manifold assembly and remove from boiler.
- Twist and remove the DHW manifold.
- Remove the two diverter valve body fixing screws and withdraw the diverter valve body assembly.
- Fit the new diverter valve body assembly and replace the two fixing screws.
- Refit the DHW manifold, fit the assembly back to the boiler and reassemble.
- Refill the boiler and check for leaks. Check that the boiler operates in both DHW & CH modes.

3.28 PUMP HEAD REPLACEMENT
![]()
- Drain the boiler.

- Disconnect the two electrical leads from the pump.
- Remove the 4 hex screws retaining the pump head.
- Remove the pump head. Be aware of water spillage.
- Fit the new pump head.
- Reassemble.
- Refill the boiler.
![]()

3.29 CH WATER PRESSURE SWITCH REPLACEMENT
![]()
- Drain the boiler.

- Pull off the two electrical connections.
- Using a suitable tool, pull out the metal retaining clip.
- Carefully withdraw the pressure switch.
- Fit the new pressure switch and reassemble. Ensure the ‘O’ ring is fitted and replace clip.
- Refill the boiler.
![]()
Shown rotated 90º
3.31 HEAT ENGINE REPLACEMENT
![]()
CAUTION: Protect the gas and electrical controls with a waterproof sheet.
![]()
- Drain the boiler (CH Circuit Drain).

- Undo the two screws and remove the sump cover retaining the lower flue manifold.
- Lift the manifold to clear the bottom sealing gasket and remove manifold.
- Remove the fan / Venturi assembly and place on one side.

- Remove the burner and place on one side.

- Remove the ignition/detection electrode.

- Remove the spark generator.

- Remove the gas valve.

- Remove the expansion vessel.

- Remove the 2 M5 screws retaining the spark generator, mounting bracket and transfer bracket to the new heat exchanger.
- Undo the pump union nut, remove clip and remove pipe from expansion vessel.
- Remove the two retaining pipe clips and remove pipes.
- Remove the condensate rubber pipe.

- Remove the two heat exchanger fixing screws.
- Remove the heat exchanger, slide out of location bracket.
- If replacement sump required: Rotate heat exchanger assembly 180º. Place new sump onto heat exchanger, ensuring correct orientation and seal is in place.
Then gently apply pressure to the base of the sump at each tab fixing point and engage tabs onto the heat exchanger.

3.32 EXPANSION VESSEL RECHARGING & REPLACEMENT
RECHARGING
- Remove the charge point cap.
- Recharge the tank pressure to 0.75 bar.
- Reassemble.
REPLACEMENT - Drain the boiler CH circuit.
- Remove the retaining clip on the vessel water connection pipe and remove the pipe.
- Support the expansion vessel and unscrew the 2 screws from the securing bracket, located on the top of the boiler, and remove.
Note the position of the bracket on the vessel. - Remove the expansion vessel.
- Fit the new expansion vessel.
- Reassemble ensuring the ‘O’ ring seal is in place and refit the retaining clip.
- Refill the boiler and check for leaks.
![]()

Section 4 – Fault Finding
4.1 MAIN MENU, FAULT HELP
Fault finding help can be accessed through the menu.
Fault finding help lists all the common faults with the necessary checks. More detailed fault checks and actions are described in the following pages.
4.2 OVERHEAT LOCKOUT

4.3 IGNITION LOCKOUT

4.4 FLAME ON BEFORE GAS VALVE ON

4.5 LOW WATER PRESSURE

4.6 FLAME LOSS

4.7 FAN FAULT

4.8 FLOW THERMISTOR FAULT

4.9 RETURN THERMISTOR FAULT

4.10 OUTSIDE SENSOR FAULT

4.11 NO CH OPERATION BUT DHW WORKS OK

4.12 NO DHW BUT CH WORKS OK

4.13 NO DISPLAY

4.14 DHW THERMISTOR FAULT

Section 5 – Spare Parts
When replacing any part on this appliance use only spare parts that you can be assured conform to the safety and performance specification that we require. Do not use reconditioned or copy parts that have not been clearly authorised by Ideal Heating.
Failure to do so could affect safety or performance of this appliance.
Comprehensive spares parts information and details of approved Ideal Parts Distributors are available on idealparts.com
Our Parts team are also available to help with your Ideal Spare Parts enquiries on 01482 498665.
When calling, and to ensure we can provide you with the most accurate parts information, please ensure you have the following to hand;
- Boiler Model
- Appliance GC Number
- Boiler Serial Number

Section 6 – Benchmark to Commissioning
Code Of Practice
For the installation, commissioning and servicing of domestic heating and hot water products
Benchmark places responsibilities on both manufacturers and installers.* The purpose is to ensure that customers** are provided with the correct equipment for their needs, that it is installed, commissioned and serviced in accordance with the manufacturer’s instructions by competent persons and that it meets the requirements of the appropriate Building Regulations. Installers are required to carry out work in accordance with the following:
The use of the word Installer is not limited to installation itself and covers those carrying out installation, commissioning and/or servicing of heating and hot water products, or the use of supporting products (such as water treatment or test equipment).
“Customer includes householders, landlords and tenants.
Standards of Work
- Be competent and qualified to undertake the work required.
- Install, commission, service and use products in accordance with the manufacturer’s instructions provided.
- Ensure that where there is responsibility for design work, the installation is correctly sized and fit for purpose.
- Meet the requirements of the appropriate Building Regulations. Where this involves notifiable work be a member of a Competent Persons Scheme or confirm that the customer has notified Local Authority Building Control (LABC), prior to work commencing.
- Complete all relevant sections of the Benchmark Checklist/Service Record when carrying out commissioning or servicing of a product or system.
- Ensure that the product or system is left in a safe condition and, whenever possible, in good working order.
- Highlight to the customer any remedial or improvement work identified during the course of commissioning or servicing work.
- Refer to the manufacturer’s helpline where assistance is needed.
- Report product faults and concerns to the manufacturer in a timely manner.
Customer Service
- Show the customer any identity card that is relevant to the work being carried out prior to commencement or on request.
- Give a full and clear explanation/demonstration of the product or system and its operation to the customer.
- Hand over the manufacturer’s instructions, including the Benchmark Checklist, to the customer on completion of an installation.
- Obtain the customer’s signature, on the Benchmark Checklist, to confirm satisfactory demonstration and receipt of manufacturer’s instructions.
- Advise the customer that regular product servicing is needed, in line with manufacturers’ recommendations, to ensure that safety and efficiency is maintained.
- Respond promptly to calls from a customer following completion of work, providing advice and assistance by phone and, if necessary, visiting the customer.
- Rectify any installation problems at no cost to the customer during the installer’s guarantee period.
Benchmark Commissioning & Warranty Validation Service Record
It is a requirement that the boiler is installed and commissioned to the manufacturers’ instructions and the data fields on the commissioning checklist completed in full.
To instigate the boiler warranty the boiler needs to be registered with the manufacturer within one month of the installation. The warranty rests with the end-user (consumer), and they should be made aware it is ultimately their responsibility to register with the manufacturer, within the allotted time period.
It is essential that the boiler is serviced in line with the manufacturers’ recommendations, at least annually. This must be carried out by a competent Gas Safe registered engineer. The service details should be recorded on the Benchmark Service and Interim Boiler Work Record and left with the householder. Failure to comply with the manufacturers’ servicing instructions and requirements will invalidate the warranty.
This Commissioning Checklist is to be completed in full by the competent person who commissioned the boiler as a means of demonstrating compliance with the appropriate Building Regulations and then handed to the customer to keep for future reference.
Failure to install and commission according to the manufacturers’ instructions and complete this Benchmark Commissioning Checklist will invalidate the warranty. This does not affect the customer’s statutory rights.
* All installations in England and Wales must be notified to Local Authority Building Control (LABC) either directly or through a Competent Persons Scheme. A Building Regulations Compliance Certificate will then be issued to the customer.
© Heating and Hopwater Industry Council (HHIC)
GAS BOILER SYSTEM COMMISSIONING CHECKLIST & WARRANTY VALIDATION RECORD
| Address: | |||||||||||||||||||||||||||
| Boiler make and model: | |||||||||||||||||||||||||||
| Boiler serial number: | |||||||||||||||||||||||||||
| Commissioned by (PRINT NAME): | Gas Safe registration number: | ||||||||||||||||||||||||||
| Company name: | Telephone number: | ||||||||||||||||||||||||||
| Company email: | Company address: | ||||||||||||||||||||||||||
| Commissioning date: | |||||||||||||||||||||||||||
| Heating and hot water system complies with the appropriate Building Regulations? Yes | |||||||||||||||||||||||||||
| Optional: Building Regulations Notification Number (if applicable): | |||||||||||||||||||||||||||
| Time, temperature control and boiler interlock provided for central heating and hot water | Yes | ||||||||||||||||||||||||||
| Boiler Plus requirements (tick the appropriate box(s) | |||||||||||||||||||||||||||
| Boiler Plus option chosen for combination boiler in ENGLAND | Weather compensation | Smart thermostat with atomization and optimization | |||||||||||||||||||||||||
| Load compensation | Flue Gas Heat Recovery | ||||||||||||||||||||||||||
| Time and temperature control to hot water | Cylinder thermostat and programmer/timer | Combination boiler | |||||||||||||||||||||||||
| Zone valves | pre-existing | Fitted | Not required | ||||||||||||||||||||||||
| Thermostatic radiator valves | pre-existing | Fitted | Not required | ||||||||||||||||||||||||
| Automatic bypass to system | pre-existing | Fitted | Not required | ||||||||||||||||||||||||
| Underfloor heating | pre-existing | Fitted | Not required | ||||||||||||||||||||||||
![]()
![]()
![]()
https://idealheating.com/logic-V4-literature-3![]()
![]()
![]()
![]()
![]()
![]()
![]()
![]()
![]()
![]()
![]()
![]()
![]()
![]()
![]()


![]()

![]()
![]()

![]()
![]()
![]()
![]()










References
EXPERT ACADEMY
Ideal Heating | New Boilers, Heat Pumps & Heating Controls
Ideal Parts - Ideal Parts - Genuine Ideal Boiler Parts and Spares
营销SaaS建网站|商城|小程序;手机管网站,APP做营销,SCRM管客户,生意乐通达!
Home Page | ADEY
Installers First
Welcome — Heating and Hotwater Industry Council
Home - Scalemaster
Home Page | Sentinel
Dispose of business or commercial waste: Your responsibilities - GOV.UK
Hardware Pack
Accessory Bag Contents
Ideal part no.
Ideal part no.
Ideal part no.
Ideal part no.
Ideal part no.
Ideal part no.
Ideal part no.
Ideal part no.
Ideal part no.

Note. Check the position of the inner flue duct relative to the outer duct on the assembled extension duct(s) and ensure the terminal flue duct is cut longer than the air duct to ensure engagement in the final flue duct seal.







Lift the burner approximately 5 to 10 mm from the heat engine and then pull forward by the same amount.


























