ENGINEERING
TOMORROW
Installation guide
Pre-programmed Controller MCX15B2 for IPS 8
Replacement of MCX controller

148R9658
Prior to disconnect and remove the old MCX controller it is important to depressurize the ammonia side of the purger unit by following these steps (see fig. 1)
1. Close all supply lines from the purge points of the ammonia system (a)
2. Restart the controller to force pump-down
3. Wait for 20 minutes
4. Stop the compressor and other connected devices by switching OFF:
IPS variants:
084H5001, IPS 8, CE, 230 V AC, 1ph, 50 Hz
084H5002, IPS 8, 230 V AC, 1ph, 60 Hz
4a) Operate QM1: Thermal magnetic miniature circuit breaker – See Fig. 2a
084H5003, IPS 8, UL 230 V AC, 1ph, 60 Hz
4b) Operate Thermal magnetic miniature circuit breakers – See Fig. 2b
11QF1
11QF2
11QF3
12QF4
5. Close the SVA shut-off valve in the drain line (located under the IPS8 (b))
6. Release the remaining system pressure to ambient pressure by opening the SNV drain valve (c). This can also be done by attaching a permanent magnet on the built-in Main Purge valve (YV1 – AKVA 10) valve, for forced opening.
Exchange of MCX15B2 controller
Switch OFF:
IPS variants:
084H5001, IPS 8, CE, 230 V AC, 1ph, 50 Hz
084H5002, IPS 8, 230 V AC, 1ph, 60 Hz
6a) Operate Thermal magnetic miniature circuit breaker – See Fig. 2a
QM2
QM3
QM4
084H5003, IPS 8, UL 230 V AC, 1ph, 60 Hz
6b) Operate Thermal magnetic miniature circuit breakers – See Fig. 2b
14QF5
14QF6
14QF9
6c) Release MCX15B2 controller. See Fig. 3
6d) Unplug all connectors upper level. See Fig. 3
6e) Unplug all connectors lower level. See Fig. 4
6f) Remove old MCX15B2 and install new MCX15B2 and replug all connectors again on both upper and lower level.
Setting of new MCX15B2 controller
IPS variants:
084H5001, IPS 8, CE, 230 V AC, 1ph, 50 Hz
084H5002, IPS 8, 230 V AC, 1ph, 60 Hz
Operate Thermal magnetic miniature circuit breaker – See Fig. 2a
QM4 – Power to MCX15B2 controller
084H5003, IPS 8, UL 230 V AC, 1ph, 60Hz
Operate Thermal magnetic miniature circuit breakers – See Fig. 2b
14QF9 – Power to MCX15B2 controller
1) Enter password 200 (Main screen\Start\Login\ and enter password).
2) Enter number of Purge point in question for the particular application (Main screen\Parameters\Unit config\Valve settings\ and enter the valve in Parameter V10, Max_PP).
3) See general IPS User Guide/Start Up instruction. The pre-programmed MCX15B2 (code number 084H5067) is plug & play ready, and only where customer specific settings are applicable, these values must additional be entered into MCX15B2.
Switch ON again remaining Thermal magnetic miniature circuit breakers
IPS variants:
084H5001, IPS 8, CE, 230 V AC, 1ph, 50 Hz
084H5002, IPS 8, 230 V AC, 1ph, 60 Hz
QM1
QM2
QM3
084H5003, IPS 8, UL 230 V AC, 1ph, 60 Hz
11QF1
11QF2
11QF3
12QF4
14QF5
14QF6


Fig.1
- NH₃ bypass for draining purger
- Purge line to water tank

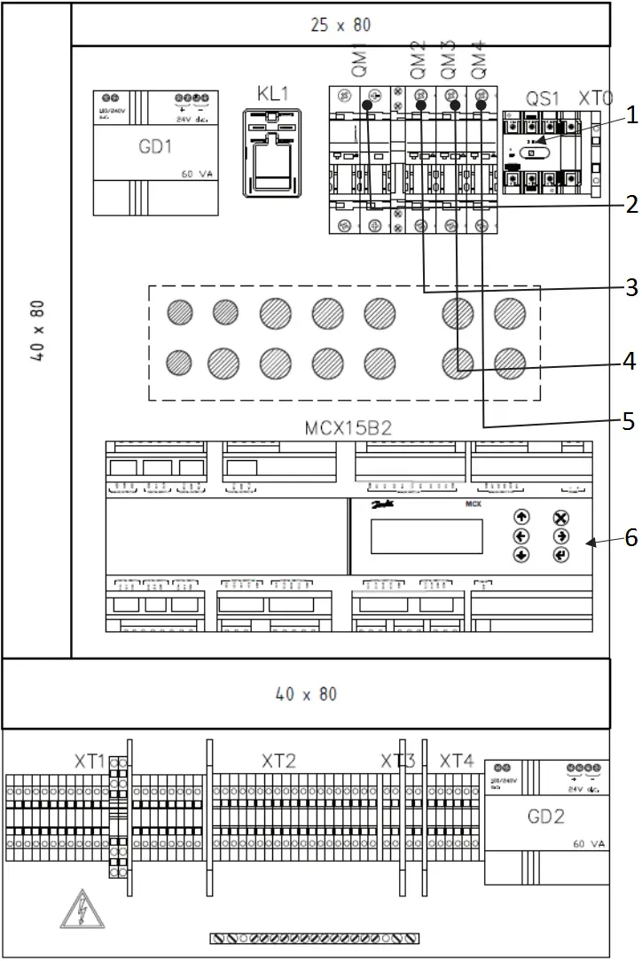
Fig.2a
- QS1: Main switch; IPS panel
- QM1: Thermal magnetic miniature circuit breaker; Compressor, Condenser, Extraction Air Fan, Crankcase Heater
- QM2: Thermal magnetic miniature circuit breaker; 24 V DC for MCX15B2 I/O, Front panel lights and Main Purge valve (YV1)
- QM3: Thermal magnetic miniature circuit breaker; Field connected solenoid coils
- QM4: Thermal magnetic miniature circuit breaker; 230 V AC to MCX15B2 controller
- MCX15B2 controller
Rear of the door

11QF1: Compressor
11QF2: Fan
11QF3: Condenser
12QF4: Heater
14QF5: 24 DC for I/0, Front panel lights and Main Purge valve (YV1)
14QF6: Field connected solenoids
14QF9: Power supply MCX15B2
Fig. 2b

Fig. 3
- Rail lock: Pull to release controller from suspension rail
Unplug all connections with wires connected and re-plug in the same sockets of the new controller

Fig. 4 . Controller Upper level
Unplug all connections with wires connected and re-plug in the same sockets of the new controller

Fig. 5 Controller Lower level
Danfoss A/S
Climate Solutions • danfoss.com • +45 7488 2222
Any information, including, but not limited to information on selection of product, its application or use, product design, weight, dimensions, capacity or any other technical data in product manuals, catalogues descriptions, advertisements, etc. and whether made available in writing, orally, electronically, online or via download, shall be considered informative, and is only binding if and to the extent, explicit reference is made in a quotation or order confirmation. Danfoss cannot accept any responsibility for possible errors in catalogues, brochures, videos and other material. Danfoss reserves the right to alter its products without notice. This also applies to products ordered but not delivered provided that such alterations can be made without changes to form, fit or function of the product.
All trademarks in this material are property of Danfoss A/S or Danfoss group companies. Danfoss and the Danfoss logo are trademarks of Danfoss A/S. All rights reserved.
AN420522619085en-000101 © Danfoss | Climate Solutions | 2022.09


















