
TANK M1 ASSEMBLY GUIDE
VERSION: XTTM1-RPH-101
PART #: 5706201-D

XTTM1-RPH-101 Tank Push Sled
| ITEM | PART NUMBER | DESCRIPTION | QTY |
| 1 | 5661401 | ASSY, CHASSIS WITH BRAKE SYSTEM | 1 |
| 2 | 5661501 | ASSY, REAR FRAME | 1 |
| 3 | 2024401 | WASHER, 8.4MM X 16MM X 1.8MM CLEAR ZINC | 8 |
| 4 | 2009801 | SCREW, M8-1.25 X 20L SOC HD GR 12.9 | 8 |
| 5 | 2010801 | WASHER, STEEL 12.7 ID-25 OD-2 THK CLEAR ZINC | 2 |
| 6 | 5654501 | ASSY, REAR WHEEL 10″ DIA X 3″ WIDE | 2 |
| 7 | 2010901 | WASHER, LOCK M12 SAE ST ZN | 2 |
| 8 | 2011301 | SCREW, M12-1.75 X 30L SOC HD GR 12.9 CLEAR ZINC | 2 |
| 9 | 56930PA | PTD ASSY, RH PUSH HANDLE | 1 |
| 10 | 56931PA | PTD ASSY, LH PUSH HANDLE | 1 |
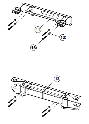
| 11 | 57144PA | PTD ASSY, UPPER MOUNT (OPTIONAL) | 1 |
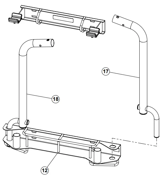
| 12 | 58027PA | PTD ASSY, LOWER MOUNT (OPTIONAL) | 1 |
| 13 | 2001 101 | WASHER, FLAT 3/8 SAE ST ZN | 8 |
| 14 | 5617001 | V-STRAP, TANK (OPTIONAL) | 1 |
| 15 | 5560801 | ASSY, TANK TOW ROPE (OPTIONAL) | 1 |
| 16 | 2031 101 | SCREW, 3/8″ LAG X 2.5″L CLEAR ZINC | 8 |
| 17 | 57668PA | PTD ASSY, WHEELBARROW HANDLE, LEFT (OPTIONAL) | 1 |
| 18 | 57669PA | PTD ASSY, WHEELBARROW HANDLE, RIGHT (OPTIONAL) | 1 |
TOOLS NEEDED FOR ASSEMBLY:
- 10MM ALLEN WRENCH (INCLUDED)
- 6MM ALLEN WRENCH (INCLUDED)
- AIR PUMP WITH GAUGE
- PHILLIPS SCREW DRIVER

NOTE:
LOOSELY tighten bolt connections in this step


NOTE:
SECURELY tighten all bolt connections in this step and previous step


TANK M1 RESISTANCE ADJUSTMENT

TANK M1 PUSH/PULL BAR ADJUSTMENT

TANK OPERATION

V-STRAP ATTACHMENT (OPTIONAL)

TOW ROPE ATTACHMENT (OPTIONAL)

WHEELBARROW HANDLE ATTACHMENT (OPTIONAL)

XTM1-WMSS
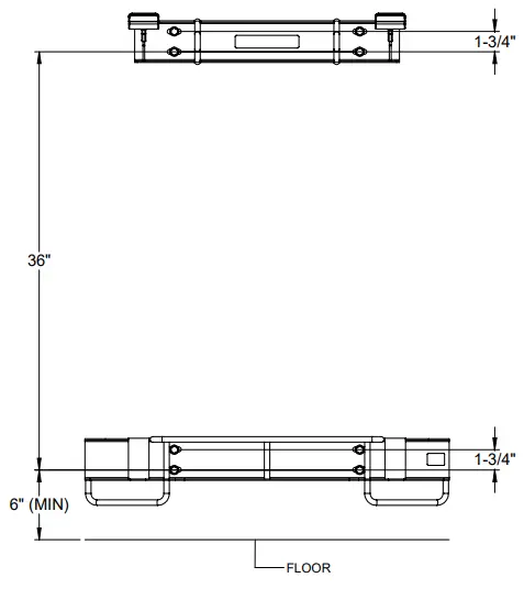
WALL MOUNT STORAGE SYSTEM (OPTIONAL)

NOTES:
The images above show the anchoring hardware used for attaching to typical walls with wood studs spaced 16″ on center. The anchors used will depend on the wall construction.
NOTE: At least four anchoring locations must be used in each part. The pull-out strength of the anchoring bolts used must be greater than or equal to 200 lbs. (91 kg)
SECURELY tighten bolt connections in this step
WARNING:
The UPPER MOUNT MUST be anchored to the wall using four WALL ANCHORS suitable for that particular wall construction

WARNING:
The LOWER MOUNT MUST be anchored to the wall using four WALL ANCHORS suitable for that particular wall constuction
XTM1-WMSS WALL MOUNT STORAGE SYSTEM (OPTIONAL) M1 STORAGE

XTM1-WMSS WALL MOUNT STORAGE SYSTEM (OPTIONAL) PUSH HANDLE STORAGE

XTM1-WMSS WALL MOUNT STORAGE SYSTEM (OPTIONAL) WHEELBARROW HANDLE STORAGE

INSPECTION & LUBRICATION
INSPECTION:
ATTENTION:
PLEASE ENSURE THAT ALL TIRES ARE INFLATED TO 30 PSI. FAILURE TO DO SO MAY RESULT IN TANK VEERING DURING USE.
Once a month, check for loose bolts on frame and wheels. Tighten if necessary.
Once a month, remove shroud as shown on PAGE 16 and check that the chain and sprockets are clean, free of rust, dust and grime.
Make sure that the chain is properly lubricated.
If chain ever becomes loose, see PAGE 17 to adjust chain.
Once a month, check tire pressure and inflate if needed.
LUBRICATION:
Once a month, the sprockets should be cleaned and the chain should be lubricated.
RECOMMENDED LUBRICATION: Use a Dry lubrication for indoor use, and wet lubrication for outdoor use. Most bicycle shops carry a variety of different lubricants and can recommend a lubricant based on the conditions where the TANK will be used.
| #TorqueFitness #TorqueTANK | |
| https://www.instagram.com/torquefitnessusa/ | |
| https://www.youtube.com/c/TorqueFitness | |
| https://www.facebook.com/groups/thetankcommunity |
SHROUD REMOVAL – STEP 1

SHROUD REMOVAL – STEP 2

CHAIN ADJUSTMENT
TO SET THE CORRECT CHAIN TENSION FOLLOW THESE STEPS:
1) TIP M1 BACK SO THAT IT RESTS ON THE REAR WHEELS AND PUSH HANDLES. AS SHOWN.
2) LOOSEN ALL FOUR BOLTS ONE FULL TURN EACH. (BOLT SHOULD BE LOOSE ENOUGH TO ALLOW THE BRAKE MODULE TO MOVE). ALLOW GRAVITY TO PULL THE BRAKE MODULE DOWNWARD REMOVING THE EXCESS SLACK.

IMPORTANT SAFETY INSTRUCTIONS:
WARNING: The safety of this product can be maintained only if it is examined regularly for damage and wear. See inspection and lubrication section on page 13 for more details.
- DO NOT overinflate tires! All tires should be inflated to 30 PSI. Check air pressure periodically.
- Keep all loose clothing, hair and shoelaces away from moving parts.
- Keep children away from the TANK M1 during use.
- DO NOT attempt to use the TANK M1 for any purposes other than that for which it was intended.
- Wear shoes with rubber or high-traction soles. High heels, dress shoes, sandals or bare feet are not suitable for use with the TANK M1.
- DO NOT drop the front wheel down when turning the TANK M1 around. Carefully set the front wheel down – especially with weight plates on the weight horn.
- DO NOT drop the weight plates onto the TANK M1. Doing so, may result in damage to the TANK M1.
- DO NOT place more than 135 LBS. on the weight horn of the TANK M1.
- DO NOT use the TANK M1 in wet or slippery conditions.
- DO NOT push the TANK M1 while any accessories are attached to the push/pull bar.
- DO NOT stand or ride on the TANK M1.
- DO NOT use the TANK M1 without the shroud.

Torque Fitness
11201 Xeon Street NW Ste 101
Coon Rapids, MN USA 55448
www.torquefitness.com
Toll free: 1-877-TORQUE5 (1-866-664-9894)
or 763-754-7533 (8:30 am – 5:00 CST).
For sales: [email protected]
For service: [email protected]
















