Grecian In Ground Pool Kit
Instructions Manual
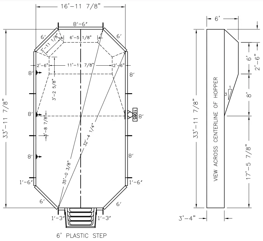
PGR02037 Grecian In Ground Pool Kit
Pool Size: 17′ X 34′
Pool Shape: GRECIAN
Pool Number: PGR02037
Bill of Materials
| PART NO. | QUANTITY | DESCRIPTION |
| “A” FRAME | 12 | “A” FRAME ASSEMBLY |
| CS901GC | 8 | GRECIAN CIRNER ANGLE |
| 5S42130XXX0 | 2 | 1′-3″ Straight PANEL W/0 Z |
| 5S42160XXX0 | 2 | 1′-6″ Straight PANEL W/0 Z |
| 5S42600XXX1 | 4 | 6′ Straight PANEL W/1 Z |
| 5S42800RCN2 | 3 | 8′ Straight PANEL W/2 Z WITH Return |
| 5S42800WCN2 | 1 | 8′ Straight PANEL W/2 Z WITH 1085 Skinner |
| 5S42800XXX2 | 2 | 8′ Straight PANEL W/2 Z |
| 5S42860XXX2 | 1 | 8′-6″ Straight PANEL W/2 Z |

NOTE: THIS IS A NON DIVING POOL.
| Date: 01/16/23 | Perimeter: 92′ – 0″ |
| Drawn By: JAY I. | Area: 541.3 SQ. FT. |
| Scale: 1/8″ = 1′- 0″ | Notes: — |
This information is the confidential property of Cardinal Systems, Inc. Disclosure or duplication without proper written approval is strictly prohibited. Acceptance and use of this drawing constitutes knowledge and acceptance by the user of the terms and conditions set forth in the notice and warning which accompanied this drawing is incorporated herein and made part hereof and is found on Cardinal Systems, Inc’s website at www.CardinalSystemsInc.com
CardinalSystemsInc.com
250 Route 61 South, Schuylkill Haven, PA 17972
570-385-4733
fax: 570-385-1318
[email protected]


















