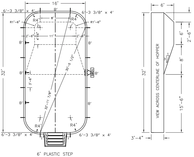
Cardinal PRT37841 Rectangle In-Ground Pool Kit

Bill of Materials
PART NO/ QUANTITY/ DESCRIPTION
- A FRAME/14/A FRAME ASSEMBLY
- 5C42633XX04000/4/6-3 3/8″ x 4′ Radius C PANEL W/0 Z
- 5S4210OXXX0/2/1 Straight PANEL W/0 Z
- 5S 42800RCN2/3/8′ Straight PANEL W/2 Z WITH Return
- 5S42800WCN2/1/8 Straight PANEL W/2 Z WITH 1085 Skimmer
- 5S42800XXX2/3/8′ Straight PANEL W/2 Z
Dimension
NOTE: THIS IS A NON-DIVING POOL.
- Date: 01/16/23
- Drawn By: JAY.
- Scale: 1/8″ = 1-0″
- Perimeter: 89-1 5/8
- Area 498.3 SSQ. FT.
- Notes:-
- This information is the confidential property of Cardinal Systems, Inc. Disclosure or duplication without proper written approval is strictly prohibited. Acceptance and use of this drawing constitutes knowledge and acceptance by the user of the terms and conditions set forth in the notice and warning which accompanied this drawing is incorporated herein and made a part hereof and is found on Cardinal Systems, Linc’s website at www.CardinalSystemsinc.com

- CardinalSystemsinc.com





















