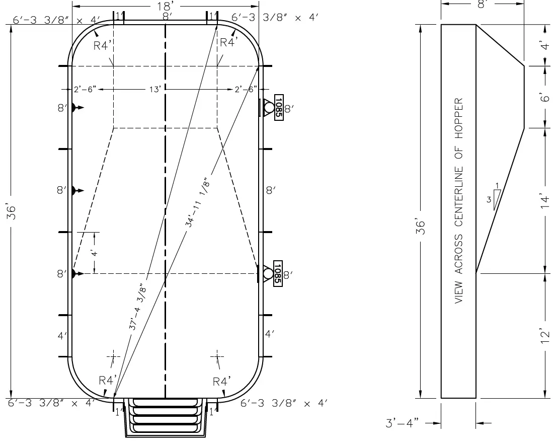
Cardinal PRT37844 18′ x 36′ Rectangle In Ground Pool Kit

Product Information
The information provided in the user manual is related to a product offered by Cardinal Systems, Inc. The manual contains the following details:
- Pool Size: 18′ X 36
- Pool Shape: RECTANGLE
- Pool Number: PRT37844
- Company Information (Address, Phone Number, Fax Number, Email Address, and Website)
- Date of Pool Installation
- Perimeter of the Pool
- Drawing By (Name of the person who created the pool drawing)
- Area of the Pool
- Scale of the Pool Drawing
- Notes related to the pool installation
It is important to note that this information is considered confidential and should not be disclosed or duplicated without proper written approval from Cardinal Systems, Inc.
Product Usage Instructions
The user manual does not provide specific product usage instructions. However, if you have purchased a product from Cardinal Systems, Inc. related to the pool installation, please refer to the product-specific user manual or instructions that came with the product for proper usage instructions. If you have any questions or concerns related to the pool installation or product usage, please contact Cardinal Systems, Inc. customer service at the provided phone number, fax number, or email address.
WHAT’S INCLUDE

DIMENSION


250 Route 61 South, Schuylkill Haven, PA 17972
570-385-4733
fax: 570-385-1318
[email protected]
This information is the confidential property of Cardinal Systems, Inc. Disclosure or duplication without proper written approval is strictly prohibited. Acceptance and use of this drawing constitutes knowledge and acceptance by the user of the terms and conditions set forth in the notice and warning which accompanied this drawing is incorporated herein and made part hereof and is found on Cardinal Systems, Inc’s website at www.CardinalSystemsInc.com.




















