
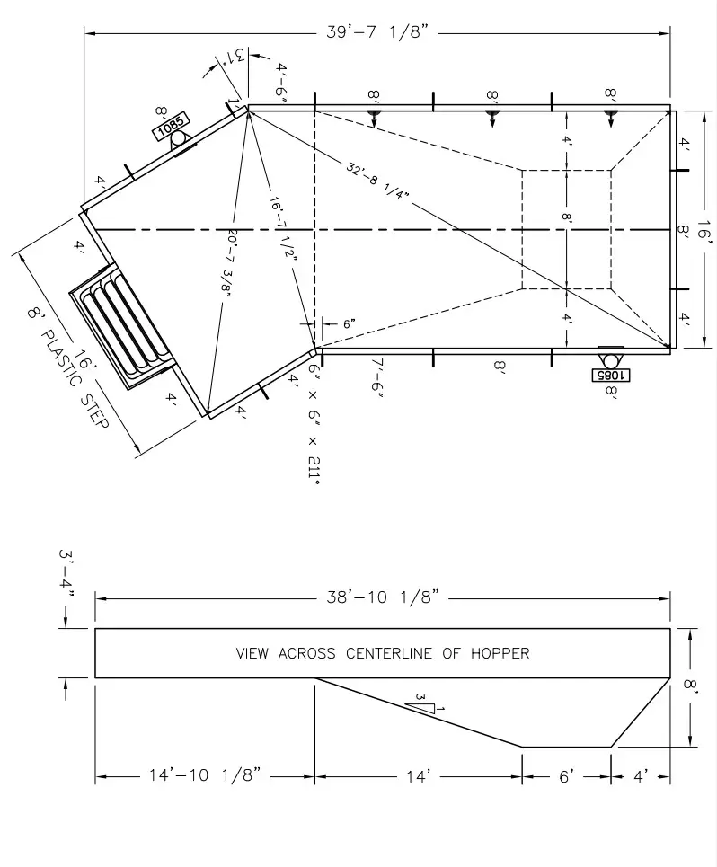
PLE00704 Lazy-L Inground Pool Kit
Pool Size: 16 X 39
Pool Shape: LAZY
Pool Number: PLE 00704
250 Route 61 South, Schuylkill Haven, PA 17972
570-385-4733
fax: 570-385-1318
[email protected]
| Bill of Materials | ||
| PART NO. | QUANTITY | DESCRIPTION |
| ‘A’ FRAME | 13 | ‘A’ FRAME ASSEMBLY |
| CS902SA | 4 | 90 DEG CORNER ANGLE |
| CS902SB | 4 | 6′ RAD CORNER FILLER ‘BIG VEE’ |
| CS930WW-31 | 1 | 31° CORNER ANGLE |
| 5S42100XXXO | 1 | 1′ Straight PANEL W/O L |
| 5S42400XXX0 | 7 | 4′ Straight PANEL W/0 Z |
| 5S42460XXX0 | 1 | 4′-6′ Straight PANEL W/O Z |
| 5S42760XXX2 | 1 | 7′-6′ Straight PANEL W/2 Z |
| 5S42800RCN2 | 3 | 8′ Straight PANEL WE Z WI H Return |
| 5S42800WCN2 | 2 | 8′ Straight PANEL W/2 Z WITH 1085 Skimmer |
| 5S42800XXX2 | 2 | 8′ Straight PANEL W/2 Z |
| 5742060211060 | 1 | 6′ x 6′ x 211° ELL |

| Date: 01/16/23 | Perimeter: 106-0 |
| Drawn By: JAY I | Area: 592.0 SQ. FT |
| Scale: 1/8 = 1-0 | Notes:————– |
This information is the confidential property of Cardinal Systems, Inc. Disclosure or duplication without proper written approval is strictly prohibited. Acceptance and use of this drawing constitutes knowledge and acceptance by the user of the terms and conditions set forth in the notice and warning which accompanied this drawing is incorporated herein and made part hereof and is found on Cardinal Systems, Inc’s website at www.CardinalSystemsInc.com




















