Cardinal PLE00705 Lazy-L In Ground Pool Kit

Product Information
- Product Name: Pool
- Manufacturer: Cardinal Systems, Inc.
- Address: 250 Route 61 South, Schuylkill Haven, PA 17972
- Contact Information: 570-385-4733 (phone), 570-385-1318 (fax), [email protected] (email)
- Confidentiality: The information provided in this user manual is the confidential property of Cardinal Systems, Inc. Any disclosure or duplication without proper written approval is strictly prohibited.
Product Usage Instructions
- Step 1: Determine the shape and size of your pool.
- Step 2: Refer to the “Pool Size” and “Pool Shape” sections in the user manual to ensure compatibility with our product.
- Step 3: Use the provided “Pool Number” to order the appropriate product for your pool.
- Step 4: Measure the perimeter and area of your pool using the “Perimeter” and “Area” sections in the user manual.
- Step 5: Follow the instructions provided by Cardinal Systems, Inc. to properly install and maintain the product.
Note: For more information on the terms and conditions of use, refer to the notice and warning section on the manufacturer’s website at www.CardinalSystemsInc.com.
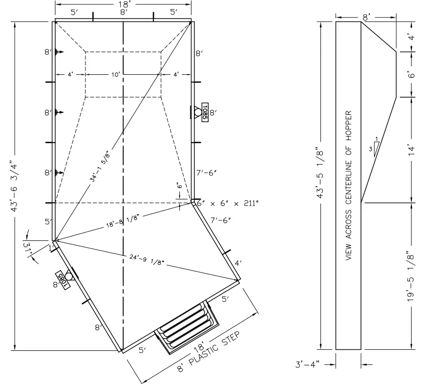
PRODUCT SPECIFICATION
- Pool Number: 18 X 43
- Pool Shape: LAZY ELL
- Pool Size: PLEO0705
WHAT’S INCLUDE

DIMENSION


250 Route 61 South, Schuylkill Haven, PA 17972
570-385-4733
fax: 570-385-1318
[email protected]
This information is the confidential property of Cardinal Systems, Inc. Disclosure or duplication without proper written approval is strictly prohibited. Acceptance and use of this drawing constitutes knowledge and acceptance by the user of the terms and conditions set forth in the notice and warning which accompanied this drawing is incorporated herein and made part hereof and is found on Cardinal Systems, Inc’s website at www.CardinalSystemsInc.com.




















