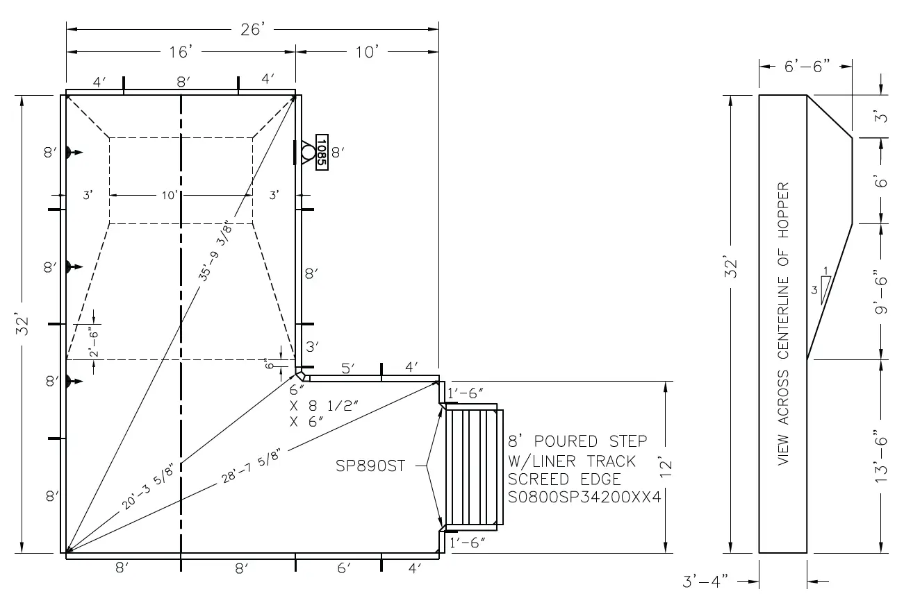
Cardinal PTR03356 True-L In Ground Pool Kit

BILLS OF MATERIALS

DIMENSION

This information is the confidential property of Cardinal Systems, Inc. Disclosure or duplication without proper written approval is strictly prohibited. Acceptance and use of this drawing constitutes knowledge and acceptance by the user of the terms and conditions set forth in the notice and warning which accompanied this drawing is incorporated herein and made part hereof and is found on Cardinal Systems, Inc’s website at www.CardinalSystemsInc.com



















